信任之城的绿洲,中国香港 / Area-17 Architecture & Interiors
概念 CONCEPT
体现专业性、可靠性与宁静的空间
A SPACE THAT EMBODIES PROFESSIONALISM, RELIABILITY AND TRANQUILITY
▼项目概览,Overall view

都市 URBAN
通过融入香港常见的城市元素,创造一个扎根于传统的空间,从而在场所语境与客户之间建立起联系。
Incorporating elements commonly found in Hong Kong to create a space that feels rooted in tradition fosters a connection with the local context and clients.
▼办公室入口,Entrance of the office


信任 TRUST
空间的设计在美学与功能上共同体现“信任”这一理念,以此强化律所对诚信与可靠性的承诺。
The design of the spaces embodies trust through it’s aestetic and functionality to reinforce the Firm‘s commitment to integrity and reliability.
▼咖啡区,Coffee area

绿洲 OASIS
自然元素的融入能够显著提升客户的归属感与放松感。当人们步入一个包含天然材料、植物与自然光线的空间时,他们往往会感受到平静与舒适。
Integrating natural elements can significantly enhance the feeling of being welcome and at ease for clients. When people enter a space that incorporates natural materials, plants, and organic lighting, they often experience a sense of calm and comfort.
▼圆形木质书架为中心的方形空间,Central square dominated by a circular wooden bookshelf


这种与自然的联系让人产生安全与踏实的感受,并确信自己来到了一个正确的地方——一个可以自在呼吸、放松并做回自我的环境。这样的空间有助于思维清晰、减轻压力并促进身心健康,让客户不仅在身体上感到舒适,也在情感上获得安全与信任。
This connection to nature helps them feel safe, grounded, and reassured that they have found the right place-an environment where they can truly breathe, relax, and be themselves. Such spaces promote mental clarity, reduce stress, and foster a sense of well-being, making clients feel not only physically comfortable but also emotionally secure in their surroundings.
▼办公空间,Office area

焦点元素(龙门) FOCUS ELEMENT (DRAGON GATE)
通过将“龙门”作为设计母题,空间得以与本地文化信仰和传统产生深刻共鸣,为体验者建立起有意义的精神连接。这一元素强化了办公空间整体的信任与和谐氛围,象征着访客与员工共同穿越的一段通道或旅程——一个令人释然、受欢迎并获得安定感的过程。它不仅是一种装饰性特征,更是象征“转化、守护与正能量”的强大符号,在空间中营造出舒适与归属的感受。
By incorporating the dragon gate as a motif, the design can resonate deeply with local cultural beliefs and traditions, creating a meaningful connection for those who experience it. This element can enhance the overall atmosphere of trust and harmony in the office, symbolizing a passage or journey that visitors and employees pass through to be relieved, welcomed, and reassured. It serves not only as a decorative feature but also as a powerful symbol of transition, protection, and positive energy, fostering a sense of comfort and belonging within the space.
▼办公区走廊,Office area corridor

关于项目 ABOUT THE PROJECT
Area-17为位于香港岛湾仔核心地带的Hugill & Ip律师事务所打造了本项目。该空间源自本地材料与香港独特工艺的融合——瓷砖、混凝土与金属交织构成空间肌理,色彩体系呼应香港的标志性色调——深绿与温暖包裹的红。以“信任的绿洲(Oasis of Trust)”为概念,项目旨在为客户传递保护感、宁静与信任,营造一个让人能够依赖细致且专业团队的空间。律所空间呈现出轻松、友好而极简的氛围,植物、艺术作品与过滤系统共同散发出温暖而积极的能量。
所选用的材料包括:
• 墙面采用微水泥饰面
• 半透明过滤玻璃隔断
• 定制地毯铺设地面
• 以定制瓷砖包裹的家具
Area-17 signs the project for the Hugill & Ip law firm in the vibrant heart of Wan Chai, on Hong Kong Island. The space is born from the meeting of local materials and the city’s characteristic craftsmanship: tiles, concrete, metal, with a color palette that recalls Hong Kong iconic hues — deep green and warm, enveloping red. The concept, called “Oasis of Trust” aims to convey a sense of protection, serenity, and confidence to clients, within a space where they can rely on attentive and skilled professionals. The law firm features a relaxed, welcoming, and minimalist atmosphere, where plants, artworks, and filtration systems emit a warm and positive energy.
The chosen materials include:
• Microcements for the walls
• Filtering glass panels
• Custom-designed carpeting for the floors
• Furniture upholstered with bespoke tiles
▼瓷砖桌细部,Tiled table detail

空间中最具标志性的建筑元素是“龙门”,它打破了天花的规律性,引导访客走向事务所的核心——一个以圆形木质书架为中心的方形空间,书架不仅用于迎宾与导向,也组织了通往会议室的流线。咖啡区设有一张长形瓷砖桌,被构思为一个多功能空间:在这里,工作、对话与思想的交流以非正式而富有活力的方式自然发生。在香港这座充满活力的都市中,Area-17为律所呈现了一种全新的愿景:不仅是一个专业的工作场所,更是一个以人为本、温暖宜人的环境——一个为幸福感与信任而设计的城市绿洲。
The distinctive architectural element is the Dragon Gate, which breaks the regularity of the ceiling and guides visitors toward the heart of the studio: a central square dominated by a circular wooden bookshelf that welcomes, orients, and distributes flows toward the meeting rooms. The coffee area, with a long tiled table, is conceived as a multifunctional space: a place where work, conversation, and idea exchanges happen in an informal and dynamic setting. In the bustling urban environment of Hong Kong, Area-17 presents a new vision for a law firm: not just a professional space, but also a warm, human-centered environment designed for wellbeing and trust.
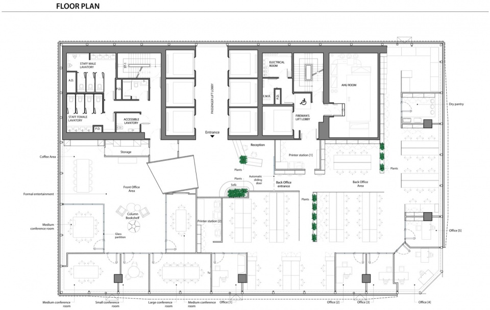
▼平面图,Floor plan

Location: Level 25, Six Pacific Place, 50 Queen’s Rd E, Wan Chai (Hong Kong)
Area: Approx. Tot area: 650sqm
Design: Area-17 Architecture & Interiors
Client: Hugill & Ip
Year of completion: 2025
Dimension: 650 sqm
PROJECT CREDITS
Architect
Giovanna imbimbo
Paolo Giannelli
Design Team
Alessia Concato
Antonella Cinque
Marta Viscido
Contractor
James RICE, Sheung Wan, Hong Kong, https://www.james-rice.net/
Manufacturers / Products
Kartell, Louis Poulsen, Hay, Polspotten, Humans since 1982,
Gardeco (collection by Guido Deleu), Formalighting
Photography Credits
Steve Wong | https://www.onetwenty-three.com/














