米兰Eurinome之家,意大利 / Degli Esposti Architetti
Eurinome之家建于米兰皮耶罗·德拉·弗朗切斯卡街的一块梯形地块上。该区域的地块划分总体遵循森皮奥内大道微微倾斜的方向,唯独街道正面的建筑朝向与之略有偏离。
Casa Eurinome is built on a trapezoidal lot along Via Piero della Francesca, in an urban area where the land subdivision follows, with the exception of the street facing one, the barely divergent lay of Corso Sempione.
▼项目概览,Project overview


这是一座双体量建筑。面向街道的五层前楼顺应街道走向;内侧的后楼则为七层,与地块分割方向一致。两者之间的不对齐关系由一个狭长的共用走廊加以调和,并作为两栋建筑之间的联结与分配空间。
The house is a double-bodied building: the span of 5 stories facing the street follows its lay; the inner span of 7 stories follows the land parcels. The misalignment is articulated by the common distribution corridor, squeezed between the two bays.
▼沿街立面,Street-front facade


借鉴意大利建筑师塔夫里的“轻盈的从容”理念,设计将所有的不规则性限制在中央的服务空间中,从而保证了各个公寓内部空间的几何秩序与规律性。
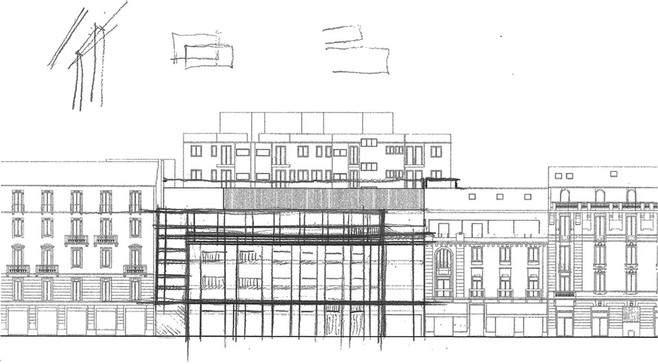
▼设计草稿,Design draft

With memory of Tafurian sprezzatura, the geometric regularity of apartment rooms is assured, by confining irregularity to that central service space.
▼几何秩序与规律性,Geometric order and regularity


面向街道的房间退进建筑界面之内,腾出空间形成一系列外廊,外廊由透视比例精确计算的竖向隔墙所筛隔,这些隔墙在立面上延伸成阳台,隐约围合出小型内院。此设计呼应了米兰住宅传统中的经典范例,如Giuseppe Terragni与Pietro Lingeri的作品。由于街道宽度有限,无法从正面完整地观看建筑立面,因此设计特意采用斜向视角的策略。透视隔墙的立柱与间距经过精确设计,从靠近市中心的特定角度观看时,它们显得等宽且等距,从而在视线上形成一种视觉秩序的错觉。
The rooms on the street set back from the line of the street building wall, leaving room for loggias screened by a diaphragm of walls proportioned in anamorphic perspective, which extend into balconies concealing a small patio, as in well-known precedents of Milanese houses: think of Terragni and Lingeri. Being precluded by the reduced caliber of the public street from an easy frontal view of the house, the street façade is designed by privileging a foreshortened viewpoint: walls and intercolumniations of the diaphragm are designed so as to make them appear from a specific point of view, positioned more toward the city center of equal size and equidistant.
▼精确设计的立面,A precisely designed facade


▼立面细节,Facade details

▼阳台,Balconies

▼内院天井,The small patio

在此之上,一道由截面为6厘米的金属方框构成的“第二层次”结构,向建筑师Guglielmo Mozzoni的住宅作品致敬,以轻盈的线性构架调和了建筑厚重的体量与上方开阔天空之间的关系。
A second order consisting of a metal frame of square section (6 cm side), a homage to Guglielmo Mozzoni’s houses, mediates the relationship between the building mass and the sky.
▼室内空间,Interior space



该项目入围由罗马MAXXI国家当代艺术博物馆与米兰三年展联合举办的2025年“意大利建筑奖”。
Casa Eurinome has been nominated in 2025 edition of Premio italiano di architettura by MAXXI Rome and Triennale di Milano.
▼区位图,Location plan

▼总平面图,Site plan

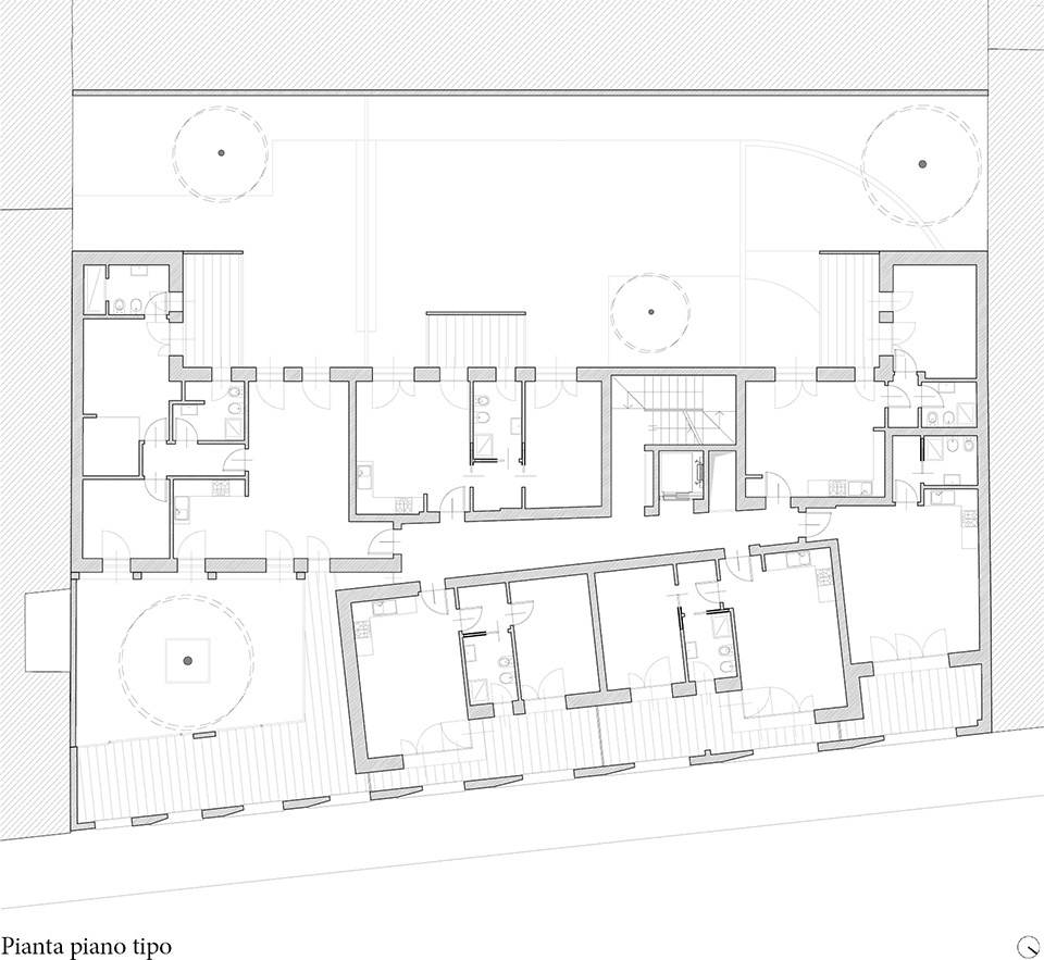
▼各层平面图,Floor plans




▼立面图,Elevation drawing

▼剖面图,Section drawing


Degli Esposti Architetti S.r.l.
Villa Lavezzari, 6 via Mauro Macchi
20124 Milan, Italy
T +39 02 8360062
F +39 02 8356406
Email: press@dearchitetti.it
Casa Eurinome
Milan, 2020-2024
Address: Via Piero della Francesca 29, Milan
Storeys: 9 (2 underground storey, 7 storeys above ground)
Building length and width: 33.4m x 17.4m
Building height: 22.2m
Unit number: 18
Underground parking lots: 16
Credits
Architect:
Degli Esposti Architetti:
Arch. Lorenzo Degli Esposti, Milan; registered architect, Milan n. 13949
Arch. Paolo Lazza, Milan; registered architect, Milan n. 11126
Supervision of construction:
Arch. Lorenzo Degli Esposti
Arch. Paolo Lazza
General contractors:
Gregori & Lochis S.n.c.
Developer:
Villa Petrogalli S.r.l.
Photography
Maurizio Montagna – mauriziomontagna.com














