JOOLZ工厂总部改造,荷兰 / Beyond Space
JOOLZ在负责任的企业家精神方面有着强烈的意识形态主张。在“Space Encounters”项目中,我们赢得了提案,旨在将他们的核心价值——积极设计——融入到他们位于一座旧机器厂建筑中的新总部。
JOOLZ has a strong ideological agenda when it comes to responsible entrepreneurship. With Space Encounters, we won the pitch to translate their core value, positive design, into their new headquarters in a former machine factory building.
▼场地周边,Surrounding of the space

▼从街道向里看,View from street


▼宽敞的工业大厅,Spacious industrial hall



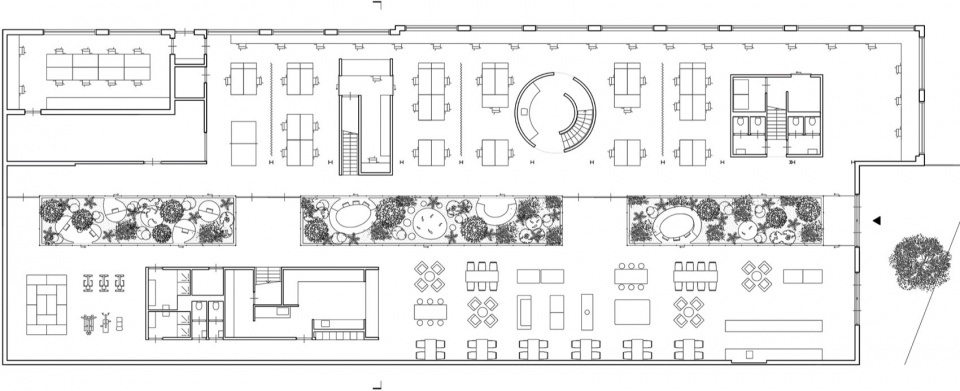
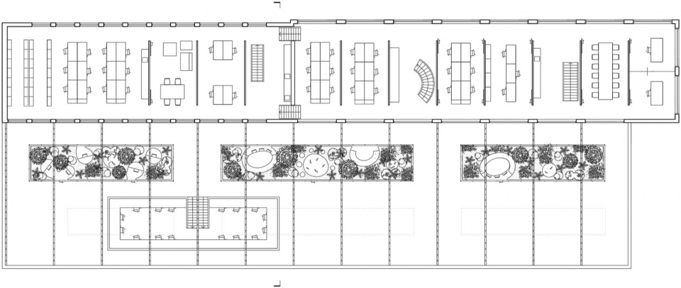
他们的新办公室位于阿姆斯特丹北区一个正在发展的区域,面积为1600平方米,包含一个宽敞的工业大厅和一座普通的办公楼,后者遗憾地掩盖了前者的所有特色。为了改善这一点,我们拆除了底层的所有隔墙,并在办公楼立面上开设了大窗洞,进一步去除了建筑的普通感,同时使路人可以不受阻碍地看到大厅的内部景观。我们将新的玻璃窗以一定角度安装——这与品牌的理念一致——以提高透明度。
Their new office in the developing part of Amsterdam Noord measured 1600 m2 and consisted of a spacious industrial hall, and a generic office building, the latter regrettably obscuring all the character of the former. To remedy, we removed all the walls from the ground floor. Creating large openings in the office building’s facade further scraped away the generic mediocrity while allowing the passerby an unobstructed view of the hall. We placed the new glazing at an angle to — in line with the brand’s beliefs — improve transparency.
▼绿植中的办公空间,Office space in the green plants

▼花园,Gardens


▼走廊,Corridor

▼花园细部,Gardens deatils


最大的一项改动是三座奢华的花园,里面种满了树木、植物,还养着池塘里的鱼。这些花园与三处现有的天窗相连接,呼应了原有建筑的尺度和完整性。这些大规模的花园不仅改善了室内气候,还为员工提供了更多富有异域风情的选择,作为他们当天的工作场所。
By far the biggest intervention is three, lavish gardens filled with trees, plants and fish in a pond. Jutting up to three existing roof lights, they echo the scale and the integrity of what was already there. These large-scale gardens carry he added benefit of improving the internal climate and provide employees with some more exotic choices to pick as their work location for the day.
▼夜景,Night view

▼一层平面,Ground floor drawing

▼二层平面,First floor drawing

▼立面图,Front drawing

Project team: Joost Baks, Stijn de Weerd, Gijs Baks, Remi Versteeg, Bram van den Heuvel, Naomi Cheung San, Ines van Sandick
Contractor: Barten groep, Houten
Structural engineer: Van Rossum, Amsterdam
MEP engineer: Huisman van Muijen, Den Bosch
Landscape design: Moss, Amsterdam
Contract furniture: Lensvelt, Amsterdam
Photography: Jordi Huisman, Peter Tijhuis
Program: Office
Client: Joolz
Collaboration: Space Encounters
Floor Area: 1.600m2
Status: Completed in 2016
Location: Amsterdam, The Netherlands














