H&M首尔圣水洞店 / SKYnoa
SKYnoa为H&M首尔圣水洞打造的全新概念空间,打破传统,将零售,艺术与文化相融合,邀请顾客在其中自由探索,搭配并创造属于自己的造型。H&M以首尔为出发点,打造出兼具国际传播力与社交影响力的品牌体验平台。通过这一空间,H&M的宣言 “A Stage for one and for all” 得以具象呈现,它不仅是时尚的舞台,更是自我表达的文化现场。
Partnering with SKYnoa, H&M introduces a new store at Seongsu, a hyper-transformative space that acts as immersive cultural hub, tailored to Seoul contexts, while amplifying global brand reach through content creation and social sharing. The space is a hybrid of retail, cultural experience and content engine. H&M’s manifesto “A Stage for one and for all” is conveyed through this cultural stage for fashion and self-expression in the heart of Seoul with global resonance.
▼店铺外观,store facade


圣水洞曾是工业重镇,如今已成为首尔最具年轻活力的文化与创意聚集地之一,汇集了概念店、画廊、咖啡馆与国际品牌快闪。SKYnoa从街区中随处可见的大型广告牌与剧院帷幕汲取灵感,以布料包覆建筑的外立面,营造出若隐若现的神秘感。幕布立面象征着舞台的开启,邀请来访者走上属于自己的风格舞台。设计在保留原有建筑立面的同时,赋予其H&M式的当代新貌。首层采用半透磨砂玻璃围合,激发好奇心的同时使行人可隐约窥见室内陈列。外侧设有混凝土长凳,巧妙地将室内体验延伸至街头。
Once an industrial district, Seongsu has evolved into one of Seoul’s most dynamic cultural and creative hubs, now home to concept stores, galleries, cafés, and international fashion pop-ups. Drawing inspiration from the neighborhood’s distinctive large billboards and theatrical stage curtains, SKYnoa envelops the top levels of the building with fabric drapes, draws visitors in with mystery. The curtain facade symbolizes the unveiling of a stage, inviting customers to step onto the stage of their own personal style journey. This gesture preserves the characteristics of the original façade while dressing it anew with H&M’s contemporary touch. The ground floor, enclosed in translucent frosted glass walls, sparks curiosity as passersby catch glimpses of the merchandise within. Raw concrete stools line the exterior, subtlety extending the space into the street.
▼首层采用半透磨砂玻璃围合,
The ground floor, enclosed in translucent frosted glass walls


主入口以H&M经典“&”符号造型呈现,区分于大众化门店设计的同时,宣示品牌正从“YOLO(You Only Live Once)”转向更理性,更精致的“YONO(You Only Need One)”高质量生活态度。H&M 品牌红调的楼梯犹如剧场的幕间休息区,是连接前后章节的过渡空间,营造出温暖而具有文化共鸣的氛围同时提供了打卡区。
The main entrance, shaped as an ampersand symbol (&), symbolizes a new chapter for H&M, softening its past retail space image while signaling a bold shift towards a more thoughtful approach to design, quality, and production, from YOLO to YONO (You Only Need One). The sculptural staircase dipped in H&M red acts as an intermission, a theatrical pause between acts. Evoking the ambiance of a theater foyer, it offers a place to linger and corners for photo opportunities, weaving the entire experience into a cohesive narrative.
▼红调的楼梯犹如剧场的幕间休息区,
sculptural staircase dipped in H&M red acts as an intermission, a theatrical pause between acts



▼红调的楼梯,sculptural staircase dipped in H&M red


室内设计如同一场连贯的戏剧旅程,每一层皆是探索个人风格的“新一幕”。首层设计灵感为灵活可变的舞台,陈列着H&M精选商品。空间中央的高速护栏被重塑为雕塑与商品展示为一体的装置,与镜子表面的巨型雨刮器相呼应,将圣水洞的工业历史重新演绎。外部设有隐蔽的蓝色汽车装置花园,向街区的汽车修理历史致敬。裸露天花板保留建筑原貌,兼具功能与叙事性,营造出街头感与玩味并存的都市氛围。
Inside, the design unfolds in 3 stages, with each level offering a new act in the exploration of personal styling. The first floor functions as a flexible stage featuring studio curated goods and products from premium selection. At the center of the space, highway guardrails are reimagined as sculptural display fixtures, along with windshield wiper installation on mirror, references Seongsu’s industrial past. A secret outdoor garden featuring a blue car installation pays homage to the district’s automotive heritage and can be seen as a playful take on valet parking. The exposed ceiling keeps the building in its raw shell. The mix of raw materials and industrial textures anchors the brand in a street-relevant contemporary context.
▼蓝色汽车装置花园,A secret outdoor garden featuring a blue car installation

▼首层陈列空间,display room on the ground floor



▼标志性的红点缀空间,The iconic red accents adorn the space


▼陈列细部,display detail


二层以“衣橱”为灵感,木质模块化陈列单元将空间分割为多个主题“衣柜”,分别展示不同品类的关键单品,设计融合趣味性的零售策略与视觉叙事。另一侧空间受到韩服纱质的轻盈感启发,邀请顾客在空间中自由探索、搭配、组合,如同行走在一个安静的步入式衣橱中。空间中央的大型织物装置同样以韩服流苏为灵感,在工业肌理之中注入柔和的文化意象。
The second floor takes inspiration from the concept of a wardrobe. Wood modular container displays divide the space into curated “closets,” each framing key products by category. The design blends playful retail strategy with visual storytelling. On the other side is a walk-in closet, inspired by the airiness of traditional Hanbok fabric, invites visitors to explore and assemble their own outfits as they move through the space. At the center, a large fabric installation inspired by traditional Korean Hanbok creates a moment of cultural resonance and softness amid the industrial framework.
▼木质模块化陈列单元,wood modular container


▼大型织物装置以韩服流苏为灵感,a large fabric installation inspired by traditional Korean Hanbok


▼大型织物装置以韩服流苏为灵感,
a large fabric installation inspired by traditional Korean Hanbok


三层则聚焦于“个性化”体验。以“For You, By Me”为主题,当地时装社媒达人和KOL精心搭配的造型在此陈列,空间被转化为一个亲密的自我表达与社群互动场所。中央试衣间打破了传统零售空间设计并成为三楼的核心区域,形成如T台般的动线,周围商品围绕其呈现。镜面墙体增强空间的沉浸感与互动性。试衣间外的每一侧都可单独为创作者及活动呈现多元而鲜活的H&M叙事。
On the third floor, the focus shifts to personalization. Outfits curated by KOLs and local social media creators are showcased under the theme “For You, By Me” transforming the space into an intimate environment for self-expression, styling, and sharing. The central fitting room becomes the heart of the floor that evokes a runway. Mirror-lined walls amplify the sense of immersion and intimacy, while the layout allows each section to function as a distinct zone, adaptable for different creators and events.
▼亲密的自我表达与社群互动场所,
an intimate environment for self-expression, styling, and sharing



▼陈列细部,display detail


▼镜面墙体增强空间的沉浸感与互动性,Mirror-lined walls amplify the sense of immersion and intimacy


▼试衣间细部,fitting room detail


▼试衣间细部,fitting room detail


SKYnoa以现代设计为手法,续写当地历史并打造出属于H&M的沉浸式文化空间 – 一个能让时尚消费者探索,试验和自我表达的地点。
SKYnoa wanted to create a cultural hub for H&M, where fashion aspirers can discover, experiment and express their identities in a truly unique and authentic way.
▼店铺夜景,night view

▼街景夜景,street view at night


▼街景夜景,street view at night

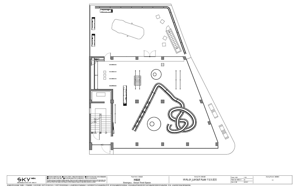
▼一层平面,ground floor plan

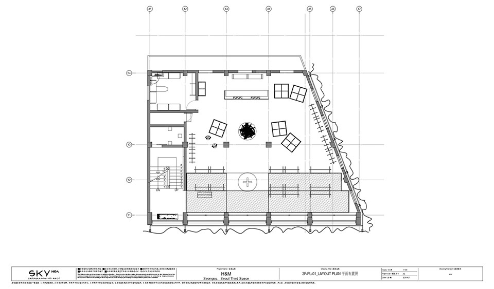
▼二层平面,first floor plan

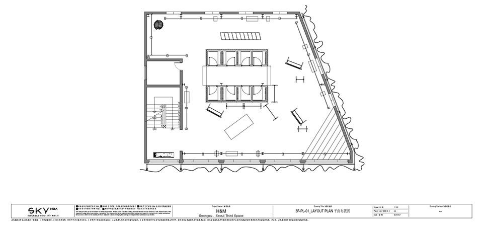
▼三层平面,third floor plan















