时代对话:15世纪宫殿再利用,意大利 / RX lab
本项目位于米兰Sforza地铁沿线区域,将一座15世纪宫殿式贵族府邸的一部分改造为一家来自加州的科技公司的意大利总部。这座宫殿可视为一部“历史复写本”:其最早可追溯至维斯孔蒂家族时期(14–15世纪),之后经历新古典主义改造及20世纪80年代的多次干预,层层叠加呈现出跨越数百年的建筑演变。
Located within the Sforza Metro Line area of Milan, this project transforms part of a 15th-century palazzo into the Italian headquarters of a California-based technology company. The palazzo is a historical palimpsest: its origins trace back to the Visconti family era (14th–15th century), followed by neoclassical modifications and later interventions from the 1980s. These accumulated layers reflect a continuous architectural evolution across centuries.
▼室内概览,Overview of the indoor space

▼办公空间概览,Overview of the office


项目并未试图抹去过去,而是在原有肌理之上新增当代层次,以尊重建筑真实性为原则,将拆除降至最低,并借助既有空间逻辑与材料智慧展开设计。这种方法将历史遗留的结构不规整或局限转化为设计潜能,使新建筑不再与历史对立,而是作为其自然延续出现。
Rather than erasing the past, the project introduces a new contemporary layer that respects the authenticity of the host structure. Demolition was minimized, and the design works with the spatial logic and material intelligence of the existing building. This approach transforms problems and irregularities into design opportunities, allowing the new to emerge not in opposition to history, but as its natural continuation.
▼办公空间1,Office space 1

▼办公空间2,Office space 2

空间布局在保留与再诠释原有构件的基础上,为当代办公需求提供功能性与开放的空间灵活度。在庄严厚重的历史内部空间中,橡木与桦木、半透明再生塑料、聚碳酸酯以及精致的光照共同营造出克制的极简设计语言。这些材质与光影的介入为传统与创新搭建桥梁,并以克制方式呈现科技公司的面貌。
The spatial layout preserves and reinterprets original elements, celebrating the building’s historical character while ensuring contemporary functionality. Within the solemnity of its ancient interiors, a renewed atmosphere is created through a restrained, minimalist palette of oak and birch wood, translucent recycled plastics, polycarbonate, and refined lighting. These tactile and luminous interventions remain visually quiet and respectful toward the historic envelope, forming a bridge between heritage and innovation while subtly conveying the client’s technological identity.
▼从高处看,Viewed from a height

再生塑料部件的使用是工作室在数字增材制造研究的一部分。定制化的家具与灯光系统探索物联网可能性,重新定义人与空间的互动方式。项目同时进行了工作场所舒适度与使用体验研究,证明历史保护项目同样能够满足人体工学、灵活性与可持续性的当代标准。
The use of recycled plastic components forms part of the studio’s broader research into digital additive fabrication. Custom-made lighting and furniture explore IoT capabilities, redefining how users perceive and interact with space. A study on workplace comfort and human experience accompanied the design, demonstrating that historic preservation can meet contemporary standards of ergonomics, flexibility, and sustainability.
▼会议室,Meeting room

最终,项目展示了一种以创新支持历史层次的再利用方式,使岁月痕迹与当代功能共存,并持续增强那些构成米兰建筑身份的城市记忆。
Ultimately, the project stands as a refined example of adaptive reuse as dialogue — where innovation serves to enhance, not erase, the layered histories that continue to shape Milan’s architectural identity.
▼走廊和定制化的家具与灯光系统,Corridor and custom-made lighting and furniture

Digital Methodology 数字化方式
本项目在BIM环境中构建完整的3D数字原型,并通过实时渲染进行推演。这种技术使团队能够精确操控建筑结构与材料细节,渲染不再只是最终呈现工具,而是作为虚拟原型平台发挥作用。所有二维图纸与施工资料均直接从最终数字模型中提取,确保从概念到落地的高度一致性。
The project was entirely developed through a 3D digital prototype built in a BIM environment and explored via real-time rendering. This technology allowed the team to control every architectural and material detail using rendering not as a final communication tool, but as a virtual prototyping environment. All 2D drawings and construction materials were directly extracted from the final digital model, ensuring complete design coherence between concept and execution.
▼墙面细部,Wall detail

沉浸式VR和桌面漫游让业主能够实时了解空间结构关系并参与设计方案。这种数字化流程使工作室得以在施工前预判并解决技术与感知问题,将精准度、体验感与参与度整合为持续性的设计工作流,迈向“数字增强型再利用”的愿景。
The immersive VR and desktop explorations also enabled the client to actively participate in the design process, visualizing and understanding spatial relationships in real time. This digital methodology allowed our studio to anticipate and resolve technical and perceptual issues before construction, merging precision, experience, and participation into a seamless design workflow — a clear step toward the studio’s vision of digitally enhanced adaptive reuse.
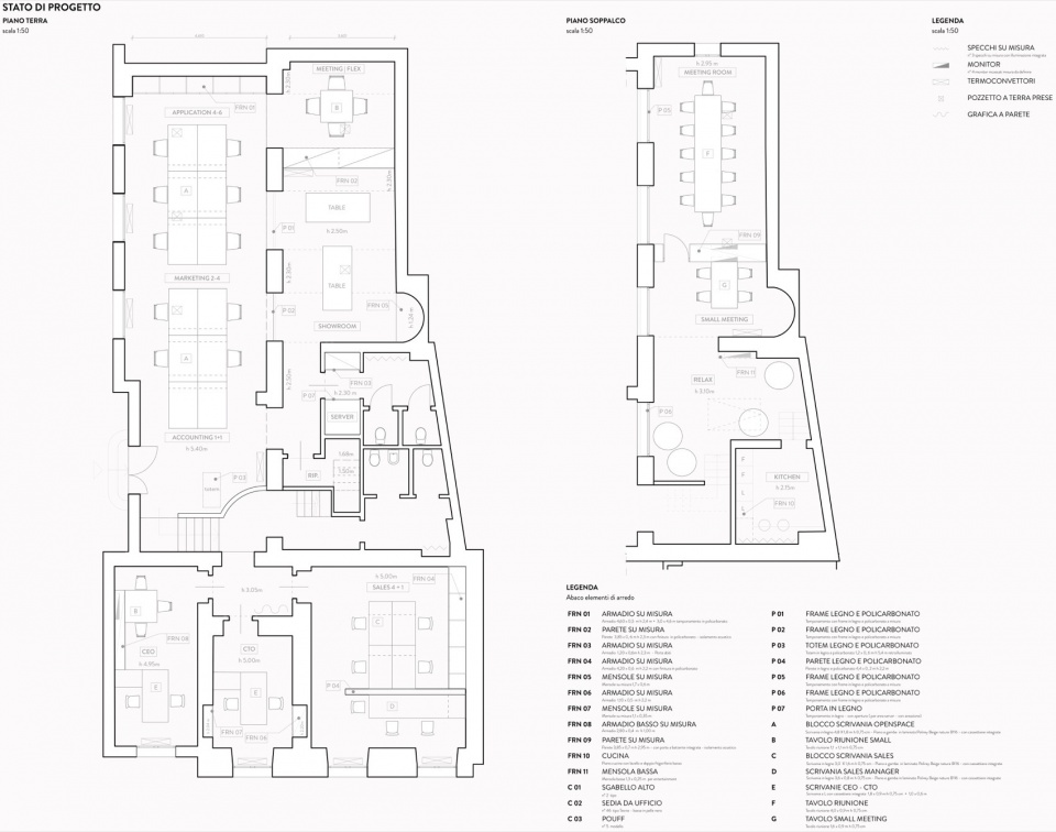
▼布局,Layout















