馥园住宅,湖北 / 衡建筑
距馥园住宅的场地不足2公里就是一片新近规划的社区,已经耸立了不少新商品房。这是一块被芝麻田环绕的宅基地,中央有一处低洼地,雨季时常积水。业主希望在满足日常居住功能的同时,也能容纳亲友聚会,并营造一种“田隐”的氛围——如“开轩面场圃”般,既融入田野,又保持内敛。一侧是工厂与新兴社区带来的喧扰与节奏变化,另一侧是农田无边开敞所带来的空旷,如何在田野生活与现代人居之间取得平衡,成为我们设计思考的核心焦点。
Less than 2km from Fuyuan Residence’s site lies a newly planned neighborhood, already dotted with numerous new commercial housing buildings. The plot is a house lot surrounded by fields of sesame, with a shallow depression at its center that frequently collects water during the rainy season. The client sought a home that could accommodate both everyday living and gatherings with family and friends, while evoking a sense of “field retreat” (tian yin)—a spatial atmosphere akin to the classical poetic ideal of “opening a window onto fields and gardens”: embedded in the countryside yet quietly introspective. On one side, factories and the emerging urban neighborhood bring noise and a faster pace of life; on the other, the boundless openness of the farmland creates a sense of vastness and solitude. Balancing the tranquility of rural life with the conveniences of contemporary dwelling thus became the central focus of our design thinking.
▼馥园住宅航拍,Aerial View of Fuyuan Residence

我们希望这个住宅聚落置身于田野环抱的场地之中,能够回应气流、丘陵与远方地景的多重信息。它不应孤立地矗立于田间,也应避免“一眼看尽”的静态印象。随着人在场地中的行进与视角的转换,建筑群应呈现出不断变化的形态与空间关系,从而形成一种“动态建筑”的体验。
We envision this residential cluster as deeply embedded within a site embraced by open fields, actively responding to the flows of air, the rhythms of the hills, and the layered information conveyed by the distant landscape. The ensemble should neither stand in isolation amid the fields nor present a static impression that can be “grasped at a single glance.” Instead, as people move through the site and their viewpoints continually shift, the forms and spatial relationships among the buildings should continuously evolve, thereby generating what we describe as a “dynamic architecture” experience.
▼馥园住宅,Fuyuan Residence

▼馥园住宅庭院,Fuyuan Residence Courtyard


这一理念源于我们对意大利建筑师卡洛·莫里诺(Carlo Mollino)的研究——1947年,他在阿尔卑斯山区设计了黑湖小屋(Chalet del Lago Nero),一座兼具功能与诗意的滑雪缆车站。莫里诺并未简单复制传统山地建筑,而是对典型原型(如 baita、grangia、rascard)进行系统性的提取与变形。他在单体建筑中实现了双重形象的共存:朝向山谷的一侧采用传统的双坡屋顶,呈现出扎根于地的厚重感;而朝向山体的一侧则以单坡屋顶向景观敞开,配合悬挑露台,形成轻盈前冲的姿态。两侧立面的渐进过渡与一个统一的三坡屋顶融合。其屋顶的形态会唤起动态、飞行与身体运动的联想。以一种近乎拼贴式的、将截然不同的图像配置组合在一起,实现从不同角度观看时形态剧烈变化的特性——这正是动态感知的基础。建筑不再是一个静态体量,而是一个随观者移动不断“变形”的空间事件。
This concept stems from our study of Italian architect Carlo Mollino—particularly his 1947 design of the Chalet del Lago Nero in the Alps, a ski-lift station that seamlessly merges function with poetic expression. Mollino did not merely replicate traditional alpine architecture; rather, he systematically extracted and transformed archetypal forms—such as the baita, grangia, and rascard. Within a single building, he achieved a coexistence of dual identities: the valley-facing side features a conventional double-pitched roof, conveying a sense of grounded solidity, while the mountain-facing side opens toward the landscape with a single-slope roof and a cantilevered terrace, creating a light, forward-thrusting gesture. These contrasting façades are subtly mediated through gradual transitions and unified by an integrated three-part roof geometry. The building’s overall silhouette evokes associations with movement, flight, and dynamic bodily postures.Through an almost collage-like compositional strategy—juxtaposing radically different formal configurations—Mollino created an architecture whose appearance shifts dramatically with the viewer’s changing perspective. This very mutability lies at the heart of “dynamic perception.” The building thus ceases to be a static mass and instead becomes a spatial event that continually “transforms” as one moves around it.
▼黑湖小屋,Chalet del Lago Nero,Carlo Mollino

住宅聚落由三个居住单元组成,呈U形环绕场地中央由洼地形成的椭圆形水体布局。建筑体量以不规则、相互咬合的几何方式组合,并依托两个独立的基台,与水体共同围合出一个内向的庭院。整体布局顺应场地的自然肌理,尤其是水系的蜿蜒形态,呈现出一种“拥抱”景观的姿态。
The residential cluster consists of three dwelling units arranged in a U-shape around an elliptical water body formed by a central depression on the site. The building volumes are composed as irregular, interlocking geometric forms, resting on two separate plinths and, together with the water body, enclosing an inward-oriented courtyard. The overall layout follows the natural grain of the site—particularly the meandering form of the watercourse—adopting a gesture that “embraces” the landscape.
▼U形场地,U-shape site

1号楼由东西坡向的三层主体与南北坡向的一层廊亭结合组成。围绕主体建筑设置围廊,这在东西方建筑中都很常见:中国古建筑中的檐廊,日本住宅建筑的缘侧空间(Engawa),西方古典建筑尤其是意大利文艺复兴时期别墅 (Villa)中的凉廊(Loggia)。无论哪种类型都出于同种思考:建立内与外之间的感官认知缓冲带,制造“庇护中的开放”。风、光、声可自由进入,而雨不能,以便形成一个由田野到居住的过渡融合。我们将檐廊部分被化用室内空间,以避免形式上过于贴近某一特定风格。
Building 1 combines a three-storey main volume oriented along the east–west slope with a single-storey pavilion aligned north–south. Encircling the main block is a perimeter gallery—a spatial device deeply rooted in both Eastern and Western traditions: the yanlang (eaves gallery) in classical Chinese architecture, the engawa (veranda) in Japanese houses, and the loggia in Western classical design, particularly in Italian Renaissance villas.Though culturally distinct, all these forms share a common intention: to establish a sensory threshold between interior and exterior—what might be called “sheltered openness.” Here, wind, light, and sound flow freely, while rain is kept at bay, creating a gentle transition from the open fields into domestic space.In our interpretation, the eaves gallery is absorbed into the interior realm, not as a literal stylistic quotation, but as a reimagined spatial condition—deliberately avoiding overt reference to any single tradition.
▼1号楼,Building 1

▼1号楼东侧立面,East Elevation of Building 1

▼1号楼西侧立面,West Elevation of Building 1

▼1号楼北侧立面,North Elevation of Building 1

▼1号楼南侧立面,South Elevation of Building 1

2号楼沿着东西向的道路摆放,尽量拉长在外侧观察建筑的过程。这栋楼只有一层,俩端由1号和3号保护,被外院包裹,体量低伏在地,将在其身后的1号楼浅浅地露出来。
Building 2 is aligned along the east–west road, deliberately elongated to extend the experience of viewing it from the outside. It is a single-story structure, flanked and sheltered at both ends by Buildings 1 and 3, and enclosed by an outer courtyard. Its low-slung volume hugs the ground, allowing Building 1 behind it to peek subtly above its roofline.
▼2号楼,Building 2

3号楼采用盐盒式住宅(Saltbox house)的非对称屋顶,以应对农田侧持续强风的气候挑战。东侧屋顶是平缓的长坡,顺应农田侧开阔地形的自然气流走向。从芝麻田张望过来,这一侧的建筑姿态低伏,屋面几乎变成了建筑的立面。其中段凹进,凹口位置屋面下折形成又一个双坡,形成半围合中庭。凹进的设计一方面避免过大的连续屋面导致过于沉闷,在节奏上得到一种呼吸;另一方面增加了建筑的受光长度和进光方向。西侧屋面则坡角较陡,给东侧屋顶提供侧向力支撑。
Building 3 adopts the asymmetrical roof of a Saltbox house to respond to the persistent strong winds from the farmland side. The eastern roof features a long, gentle slope that follows the natural airflow across the open terrain. Viewed from the sesame fields, the building presents a low, receding profile—so much so that the roof itself almost functions as the façade. At its center, the volume steps back; the roof folds down at this recess to form a secondary gable, creating a semi-enclosed courtyard. This indentation serves two purposes: first, it breaks the monotony of an excessively long roofline, introducing a rhythmic “breath” into the composition; second, it increases the building’s exposure to daylight and diversifies the directions of natural light entry. The western roof, by contrast, is steeper, providing lateral structural support to the gentler eastern slope.
▼3号楼,Building 3

▼3号楼北侧立面,North Elevation of Building 3

▼3号楼东侧立面,East Elevation of Building 3

▼3号楼南侧立面,South Elevation of Building 3

三栋建筑的屋顶都尝试了一些形式突破,或组合,或变形。1号楼是由两个坡向不同的双坡屋顶嵌合;2号楼局部屋面打破屋脊线的限制做了延申形成巨大的开口成为观景区;3号回应场地的风向条件,一侧低伏在地一侧陡峭。屋顶的尺寸几乎都超过了建筑墙体的边界。其一可以保护木结构防止潮湿腐坏,另外也将梁架和主体的交接隐藏在阴影内。
The roofs of all three buildings experiment with formal breakthroughs—through combinations, deformations, or hybridizations. Building 1 integrates two gable roofs oriented in different directions, interlocking them into a unified composition. Building 2 partially extends its roof beyond the conventional ridge line, creating a large opening that functions as a framed view of the landscape. Building 3 responds to the site’s prevailing wind patterns: one side hugs the ground with a low-slung profile, while the other rises steeply.In each case, the roof overhangs significantly beyond the building’s wall boundaries. This serves both practical and poetic purposes: it protects the timber structure from moisture and decay, while also concealing the junction between beams and walls within deep shadow.
▼2号楼和3号楼,Building 2 and Building 3

屋顶与墙体之间的关系被有意识地疏离——或是借助线性高窗切割出悬浮的视觉暗示,或是通过玻璃山墙的透明性模糊界域,又或是在屋脊处开凿洞口,以光与空的介入强化建筑与大地的分离感。最终,屋顶仿佛挣脱了实体的束缚,漂浮于田野之上,以舒展的姿态回应开阔的自然环境。变造过的屋顶间相互对话,在视觉上形成连续的整体,其起伏轮廓拟合了风拂过丘陵的姿态—如同我们在上文所述卡洛·莫里诺的黑湖小屋所展现的气质。它与田园节律相呼应,营造出自然延续的地景韵律与亲人的尺度感。
The relationship between roof and wall is deliberately loosened—sometimes through linear clerestory windows that create a visual suggestion of suspension; sometimes through transparent glass gables that blur the boundary between inside and outside; and at other times through apertures cut into the ridge, where light and void intensify the sense of the building lifting away from the earth.Ultimately, the roof appears to break free from the constraints of the solid mass beneath, hovering above the fields in an open, graceful gesture that responds to the vastness of the surrounding landscape. These transformed roofs enter into a visual dialogue with one another, forming a continuous, rhythmic silhouette that echoes the way wind flows over hills—evoking the very same spirit embodied in Carlo Mollino’s Chalet del Lago Nero, as previously described. In harmony with the rhythms of rural life, they generate a landscape-inflected cadence and a human-scaled intimacy.
▼屋顶与墙体,roof and wall

为实现超限的屋面,结构选用了钢木结合的复合体系:沿屋脊方向布置的钢梁承担主要跨度,其截面被室内的墙体遮蔽,而支撑局部屋面的短跨檩条则采用方木,使暴露于室内的木构与灰空间中的悬挑构件均呈现温暖的木质肌理。这种材料与构造的双重策略,既满足了大跨度的技术需求,又以自然质感延续了建筑与环境的对话。
To achieve the exaggerated roof overhangs, a hybrid steel-and-timber structural system was adopted: along the ridge direction, steel beams carry the primary span, their sections concealed within interior walls, while shorter-span purlins supporting local roof segments are made of square timber. This ensures that both the exposed interior timber elements and the cantilevered components in the semi-outdoor gray spaces exhibit a warm, tactile wooden grain. This dual strategy of material and construction not only fulfills the technical demands of long spans but also sustains a sensory dialogue between the building and its natural surroundings through the intimacy of natural textures.
▼楔形窗 ,Wedge Window

▼室内楼梯,Interior Staircase

▼室内走廊,Interior Corridor

▼室内窗景,Interior Window View

▼馥园住宅庭院夜景,Night View of Fuyuan Residence Courtyard

开窗设计作为突破传统民居形式,获得某种当代性的核心策略。我们受到尤哈尼·帕拉斯马在《肌肤之目:建筑与感官》的启示——“当我们不经意间瞥见窗外的风景,或用余光扫过墙面的纹理时,我们与环境的联系反而是最真实、最亲密的”。这一洞察促使我们摒弃对“凝视”式构图的追求,转而以碎片化的“瞥见”构建感知:建筑立面朝向旷野的不同方向,窗口自由地被布置在立面,楔形窗切割出光影的斜角,水平长窗延展视线的纵深,线性高窗引入天光,花窗与方窗则在细节处织就视觉的韵律。窗洞作为媒介,将光与户外的片段引入室内,使建筑成为承载感官叙事的容器——其表情并非由宏大叙事定义,而是通过窗与墙的对话,将偶然的凝视转化为连续的体验。
Window design emerged as a core strategy for transcending traditional rural typologies and achieving a distinctly contemporary sensibility. We drew inspiration from Juhani Pallasmaa’s The Eyes of the Skin: Architecture and the Senses: “When we glimpse a landscape through a window incidentally, or catch the texture of a wall in our peripheral vision, our connection to the environment becomes the most authentic and intimate.” This insight led us to abandon the pursuit of a monumental, frontal composition in favor of fragmented “glimpses” that shape perception.Windows are freely arranged across façades facing the open fields in various directions: wedge-shaped apertures carve dynamic angles of light and shadow; horizontal ribbon windows extend the depth of the view; linear clerestory openings draw in skylight; and small square or decorative windows weave subtle visual rhythms at close range. As mediators, these openings bring in fragments of light and landscape, transforming the building into a vessel for sensory narratives—its character not defined by a grand, singular statement, but through an ongoing dialogue between windows and walls, turning fleeting glances into a continuous, unfolding experience.
▼模型,Model



▼平面图,Master Plan

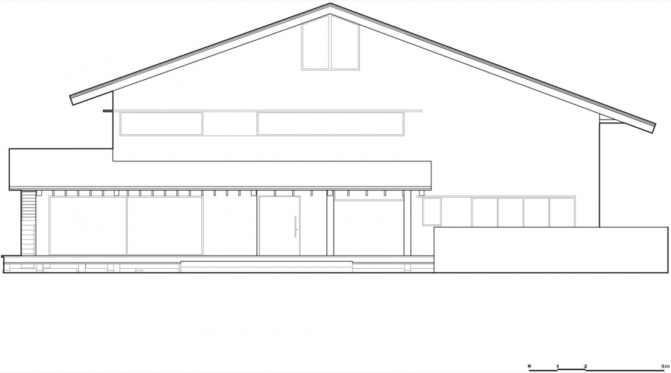
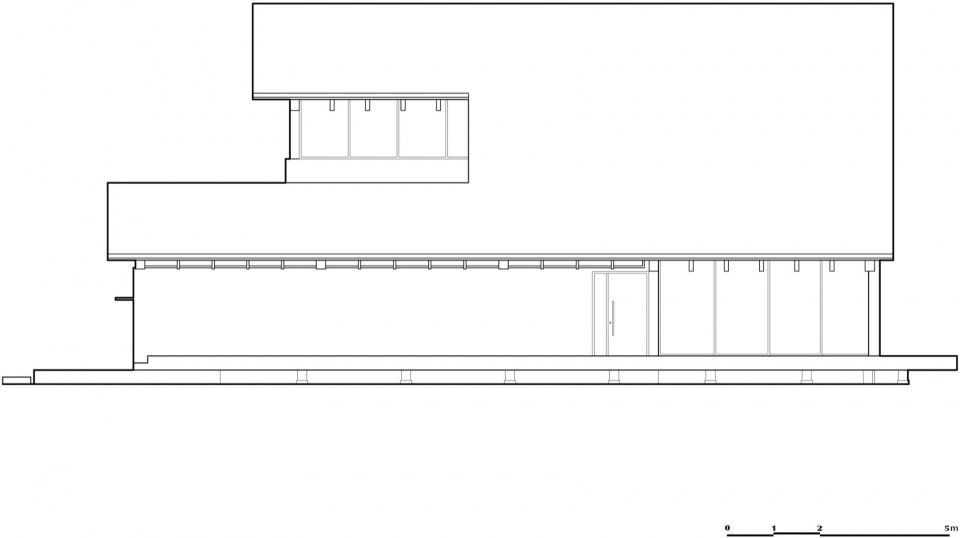
▼1号楼南侧立面图,South Elevation Drawing of Building 1

▼1号楼北侧立面图,North Elevation Drawing of Building 1

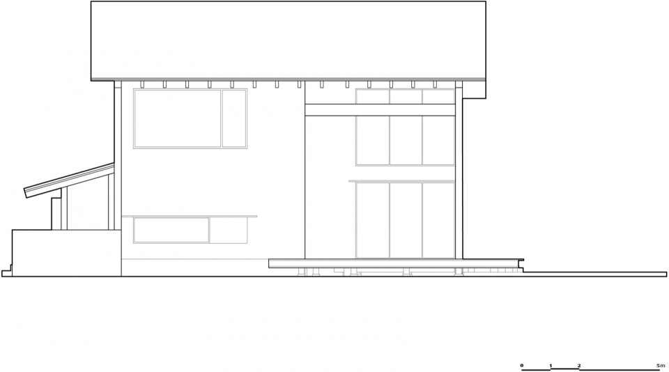
▼3号楼南侧立面图 ,South Elevation Drawing of Building 3

▼3号楼东侧立面图 ,East Elevation Drawing of Building 3

Project Name: Fuyuan Residence
Location: Huanggang, Hubei Province, China
Function: Residential
Architecture Design: Modum Atelier
Architects: : Zhou Ruizhe, Li Wenshuang, Zhang Siyi
Building Area: 925 m²
Design Period: June 2022 – February 2023
Construction Period: February 2023 – December 2024
Materials: Concrete, Steel Structure, Asphalt Shingles, Walnut Veneer Panels
Contractor: Hubei Zhenyu Construction Engineering Co., Ltd.
Photography: Liu Guowei
Contact Email: modumateier@163.com














