御堂筋DAIBIRU大楼,日本 / 日建设计
这是一座在日本第二大城市大阪的主干道御堂筋上临街而立的租赁式办公楼,大楼虽身处日本特有的高密度城市环境中,却毗邻两旁种满美丽银杏树的御堂筋与绿意盎然的神社。设计团队充分利用这一场地条件,将能否看到绿植和天空作为参数,通过模拟来优化外部遮阳鳍片的布置,从而构思出外装设计,为日本的塔楼设计提出了新的方案。同时,低楼层设有俯瞰御堂筋的露台,在高密度城市中创造出立体广场的概念。
This tenant office building faces Midosuji Boulevard, the main thoroughfare in Osaka, Japan’s second-largest city. Located within a uniquely dense urban environment, the design leverages the site’s conditions facing Midosuji’s beautiful ginkgo tree-lined avenue and the greenery of a nearby shrine. An exterior design was derived via simulation, using the presence/absence of views of greenery and sky as parameters for the optimal placement of exterior solar fins, in a novel approach to Japanese tower design. Terraces overlooking Midosuji were created on the lower floors, establishing the concept of a multi-layered plaza within a high-density city.
▼建筑外景,Exterior of the Building


地块位于历史悠久的神社轴线上,由此从堪称日本建筑根源的“御柱”中获得灵感,采用泛着深灰色光泽的垂直柱体,赋予建筑骨架正统性,并在连接神社与办公楼群的区域群造型中实现了新旧和谐。遮阳鳍片带有斑驳变化的细腻色调,与御堂筋两旁的银杏树相映成趣,为街景增添了色彩。
Positioned along the axis of a venerable shrine, the building’s framework gains legitimacy through vertical pillars gleaming in a slate gray tone inspired by onbashira pillar forms, considered among the “roots” of Japanese architecture. This harmonizes old and new within the collective forms of the neighborhood, linking the shrine and the office building complex. The subtle, variegated tones of the solar control fins resonate with the ginkgo trees lining Midosuji, adding color to the cityscape.
▼建筑与自然,Building and nature

▼将绿化引入建筑,Integrating greenery into the architecture


在步行友好的主干道上建造以人为本的大楼 A People-Centric Building on a Walkable Main Street
根据大阪市《御堂筋未来愿景》,御堂筋正在通过将车道全面人行道化来推进步行友好城市的建设。在此背景下,设计团队探讨了高密度城市中以“人”为核心的办公楼的理想形态。
Based on the city of Osaka’s “Midosuji Future Vision,” walkable urban development through the conversion of entire roadways into sidewalks is progressing at Midosuji. Here, we pursued the ideal form of a people-centric office building within a high-density city.
▼首层电梯厅,First-floor elevator lobby

▼一层大厅,First-floor lobby


在商业价值高的1层,店铺采用了大面积临街展示的橱窗设计。其上方,通过在与抬升至地面18m高的办公体量之间进行大胆的挖空处理,设置了绿植丰富的室外露台。这里如同可俯瞰御堂筋举办游行等庆典活动的观礼席,同时从御堂筋仰视的行人视角也能感受到空间与绿意的延展,由此诞生了连接城市与建筑的“立体广场”这一全新的广场概念。
▼景观分析,Landscape analysis


The high-value commercial first floor is designed as a large show window, with prominent storefronts that face the street. Above this, a large recess was created between the ground level and the 18 meter-high office volume, forming a lush outdoor terrace. This terrace serves as a viewing platform overlooking Midosuji Boulevard, where parades and festive events occur. It also creates a sense of expansive space and greenery for pedestrians looking up from the street, establishing a new “multi-layered plaza” concept that connects the city and the building.
▼二层窗景,Second-floor view



从1层入口到2层门厅,再到户外露台,建筑通过以本土植物为主的绿植与水景,不断将御堂筋的绿意引入室内空间。迎接来客的是亲生命性的环境,进入上层的办公空间后,外装鳍片在光照下以细腻色调闪耀生辉,为空间增添了色彩。通常处于阴暗隐蔽处的疏散楼梯与电梯厅相邻,以此积极引入自然光,同时通过窗边的色彩变化与透过树叶洒落的斑驳光影,打造出令人想要漫步的“Wellness楼梯”,旨在提升使用者的健康水平。
From the first-floor entrance through the second-floor lobby to the outdoor terrace, native plants and water features draw Midosuji greenery continuously into the building. Users are welcomed into a biophilic environment. Upon entering the upper office spaces, the exterior fins, shimmering with delicate hues as they catch the light, add color. The evacuation staircase, typically relegated to the rear, was positioned adjacent to the elevator hall to actively incorporate natural light. Through the changing colors around the windows and dappled sunlight, this “Wellness Staircase” entices walking, contributing to user well-being.
▼二层户外景观,Second-floor outdoor view

▼二层户外空间,Second-floor outdoor terrace


▼多层露台街景,Multi-layered plaza street view

反映式设计“Reflective” Design
在当下的办公楼中,抑制环境负荷与追求节能性已成为理所当然的要求,同时我们认为,满足人类对“眺望景观”的根本性需求对办公室职员而言同样至关重要。将看到“天空”以及御堂筋和神社“绿意”的视野定义为积极元素,并将从办公室内眺望这些景观的视野程度可视化为“景观潜力 (View Potential)”。 通过用鳍片总量规定建筑应满足的遮阳性能,再运用计算设计技术将其与“景观潜力”进行对照并实现最优配置。此外,不仅考虑日照负荷,还通过对包含周边温度和内部发热在内的“综合环境负荷”进行逐小时的精细模拟,最大限度提升了工作人员的舒适度。
▼天空与绿地的视野比例,Sky & green view ratio

▼鳍片细节,Fin detail

While environmental impact reduction and energy efficiency are now standard requirements for modern office buildings, we considered fulfilling the fundamental human desire for “views” to be crucial for office workers. We defined views of the sky and the greenery of Midosuji and the shrine as positive elements, quantifying their extent from within the office as “view potential.” We specified the required solar shading performance of the building in terms of total fin volume. Using computational design, we optimized the placement of these fins by comparing them against view potential. Detailed simulations assessed not only solar radiation load but also “total environmental load” which encompasses surrounding temperatures and internal heat generation, in order to maximize worker comfort.
▼建筑立面,Building facade

这是为反映规划地周边环境,平衡兼顾“景观”与“降低环境负荷”这对矛盾而开发的通用型独创性设计手法“反映式设计”。
▼日照示意图,Solar analysis diagram


Reflective design is a versatile and original methodology developed to mediate the conflicting objectives of views and environmental load reduction while reflecting the surrounding environment of the site.
▼鳍片与办公空间,Fins and office space



建筑的可持续性与办公楼的品质Architectural Sustainability and Office Quality
建筑配备了完善的BCP(业务连续性计划,包括可连续运行72小时的应急发电机及容量充足的储备仓库等),是可以满足使用者各类需求的高品质办公楼。
This high-quality office space meets all user needs with a comprehensive BCP plan, including a 72-hour emergency generator and ample storage capacity.
▼办公层电梯厅,Elevator lobby on the upper floor

通过采用带有散水装置的高效热源、显热潜热分离空调、新风制冷空调、自然通风及二氧化碳控制等技术,与同等规模的基准建筑(Baseline Building)相比,成功削减了40%以上的能源消耗,并获得了日本环境性能最高等级的认证。建筑采用了内置于幕墙的通风单元与公共区域通风窗联动自动开关的自然通风系统。另一方面,照明和温度方面引进了利用终端的能动控制系统,使用户能够直观地自主调节环境。
▼节能曲线图,Energy-saving curve

▼立面剖面图,Facade section

By adopting high-efficiency heat sources with sprinklers, latent/sensible heat separation air conditioning, outside air cooling, natural ventilation and CO2 control, energy savings of over 40% were achieved vs. baseline buildings of similar scale, earning Japan’s highest environmental performance certification. The natural ventilation system automatically coordinates the opening and closing of ventilation units integrated into the curtain wall and shared-area ventilation windows. Meanwhile, an active control system allows users to adjust lighting and temperature settings.
▼卫生间采光,Bathroom daylighting


▼楼梯间,Staircase

▼楼梯间光影,Staircase daylighting

此外,大楼采用的减震结构可承受法律规定需考虑的最大震级1.5倍的地震动。同时,还考虑到通过采取各类措施来削减前期碳排放,如没有废弃原有结构体(大楼重建前的地下结构体)而是作为挡土墙加以利用,以及在结构体中积极使用回收材料等。
The building also employs a damping structure capable of withstanding seismic forces 1.5 times the maximum earthquake intensity resilience required by law. Upfront carbon reduction was also considered by utilizing the pre-existing building’s (undemolished) basement structure as retaining walls, and by actively incorporating recycled materials.
▼夜景,Night view


▼夜景下的二楼露台,The second-floor terrace at night

▼总平面图,Master plan

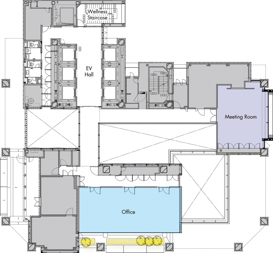
▼一层平面图,First floor plan

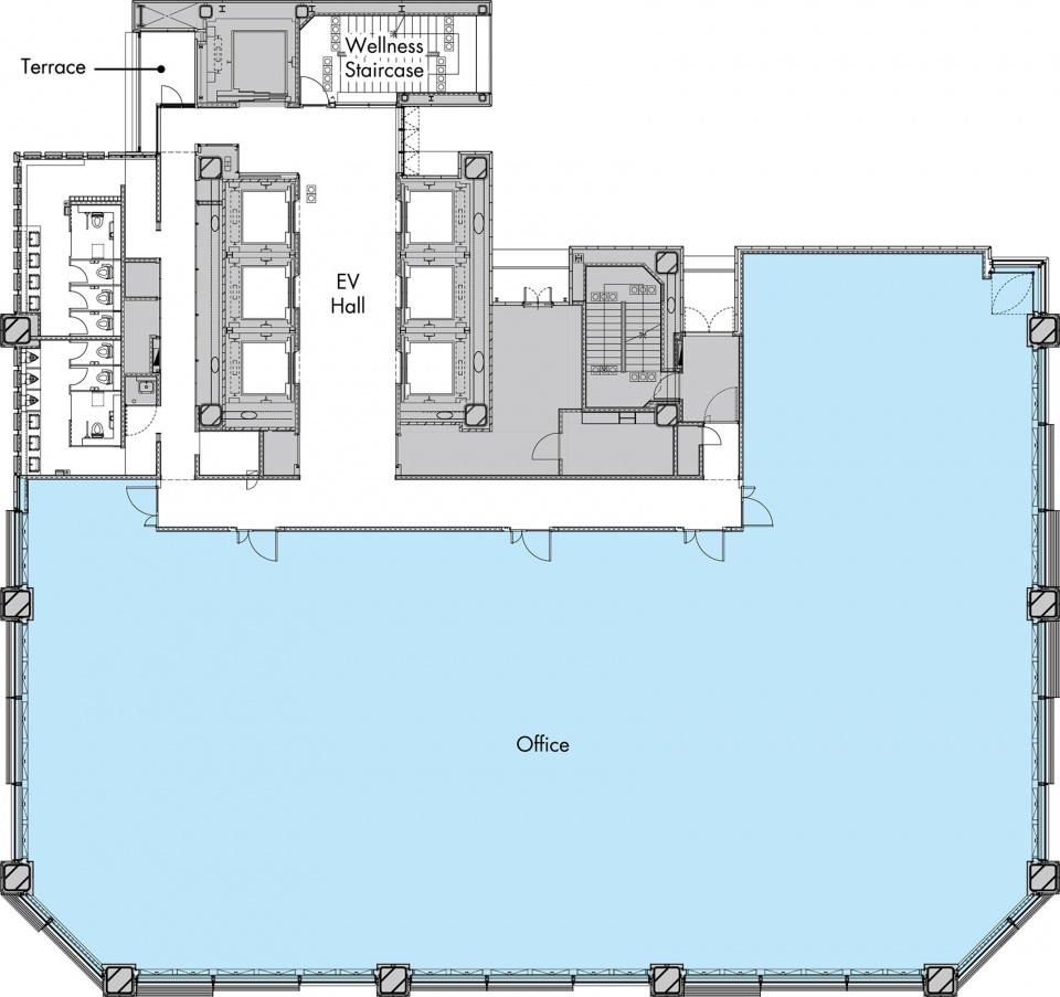
▼二层平面图,Second floor plan

▼三层平面图,Second floor plan

▼标准平面图,Standard floor plan

▼东立面与南立面,East facade & south facade

▼西立面与北立面,West facade & north facade

▼剖面图,Section

▼立面结构大样图,Facade structure detail drawing


▼鳍剖面,Fins section

建筑概要
项目名称(中文) 御堂筋DAIBIRU大楼
项目名称(英文) Midosuji Daibiru Building
用途 办公室、零售商铺
所在地(都道府县、市) 日本大阪府大阪市
用地面积(m2) 1,491.92㎡
建筑面积(m2) 20,275.57㎡
层数 地下1层、地上20层
最高高度(m) 97.32m
主体结构 钢结构、部分型钢混凝土结构
竣工年月 2024年1月
项目描述(简要介绍) 这是一座在日本第二大城市大阪的主干道御堂筋上临街而立的租赁式办公楼,大楼虽身处日本特有的高密度城市环境中,却毗邻两旁种满美丽银杏树的御堂筋与绿意盎然的古老神社。设计团队充分利用这一场地条件,将能否看到绿植和天空作为参数,通过模拟来优化外部遮阳鳍片的布置,从而构思出外装设计,为日本千篇一律的塔楼设计提出了新的方案。
低楼层部分设置了可俯瞰御堂筋举办游行等庆典活动的露台,在高密度城市中创造了连接城市的立体广场这一全新的广场概念。
资料来源
业主(中文) DAIBIRU株式会社
业主(英文) DAIBIRU CORPORATION
主创设计 日建设计
主要业务范围 设计・监理
施工单位 大林组
其他设计合作企业 照明:Sirius Lighting Office
标识(Wellness楼梯):OK设计室
照片来源1 Akira Ito [aifoto]
照片来源2 NIKKEN SEKKEI LTD
项目负责人信息(截至2025年11月)
姓名 所属部门、职位
喜多 主税 建筑设计总部 设计部门 设计总监
金子 公亮 建筑设计总部 设计部门 设计总监
谷口 尚史 建筑设计总部 设计部门
Project Details
Project name (English) Midosuji Daibiru Building
Purpose Offices, Retail Stores
Location(prefecture, city) Osaka City, Osaka Prefecture
Site area(m2) 1,491.92
Total floor area(m2) 20,275.57
Number of floors 1 basement floor, 20 above-ground floors
Eave height/max height (m) 97.32
Main structure Steel structure with partial use of reinforced concrete sections
Completion month/year January 2024
Short Description This tenant office building faces Midosuji Boulevard, the main thoroughfare in Osaka, Japan’s second-largest city. Within Japan’s uniquely dense urban environment, the site conditions facing the beautiful ginkgo-lined Midosuji and a historic shrine with preserved greenery were leveraged. An exterior design was devised through simulation, using the presence/absence of views of greenery and the sky as parameters for the optimal placement of solar control exterior fins, offering a fresh proposal for Japan’s often generic tower designs.
The lower floors feature terraces overlooking Midosuji Boulevard, where parades and festive events are held, creating a new idea for public spaces in high-density cities: a multi-layered plaza that connects with the urban fabric.
Credits
Client name(English) DAIBIRU CORPORATION
Lead architect Nikken Sekkei Ltd
Main scope Architectural design and supervision
Construction Contractor Obayashi Corporation
Other cooperating company Lighting: SIRIUS LIGHTING OFFICE Inc
Signage(Wellness Stairwell):OK design Inc.
Photo credit 1 Akira Ito [aifoto]
Photo credit 2 Nikken Sekkei Ltd
More:株式会社日建设计。更多关于:Nikken Sekkei Ltd














