SY公寓改造,北京 / 川岛雅矢建筑环境设计室
背景·概念 Background·Concept
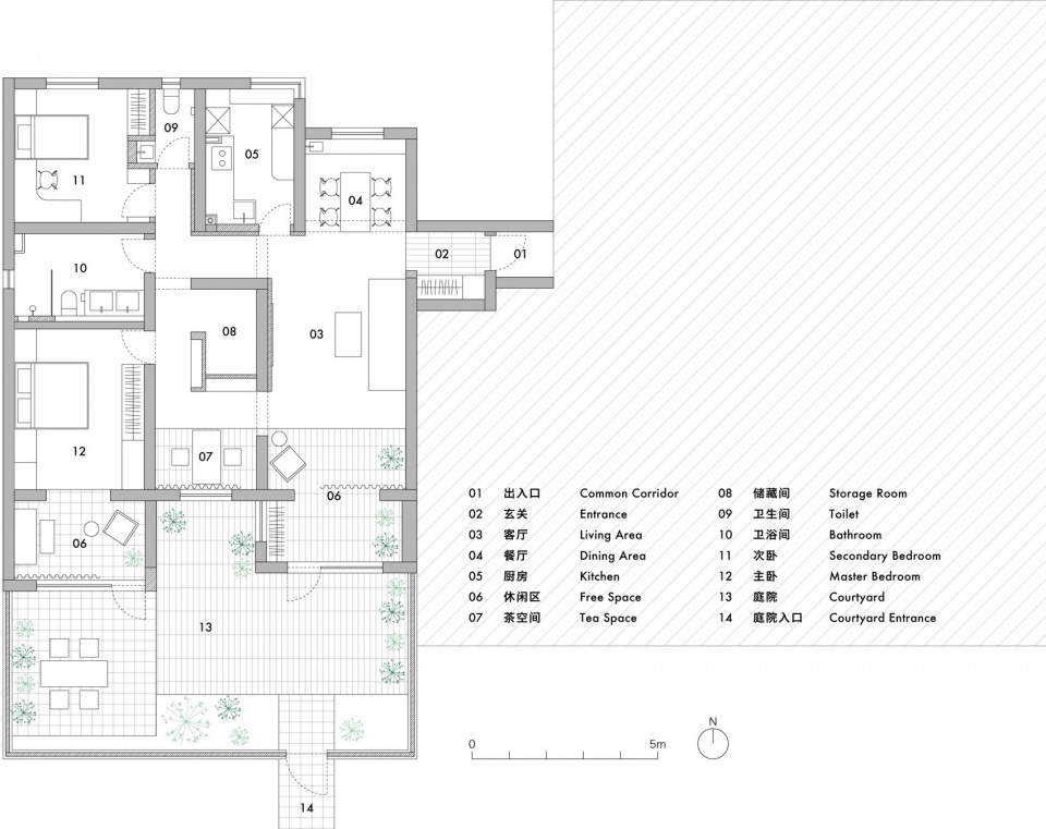
位于北京郊区,是一处室内面积约153平方米的公寓改造。居住者是一对夫妻和两只猫,位于地上一层,并拥有约60平方米的室外院子。
This project is a renovation of a 153-square-meter apartment located in the suburbs of Beijing. The home sits on the ground floor and is inhabited by a couple and their two cats, with an additional 60-square-meter garden outside.
▼茶室,Tea room

业主的设计需求是打造一个简单明快、风格干净,但又“不至于过于整齐”的空间。我们将这一要求理解为“不整齐”或“轻微错动”的状态,并以此为设计的起点。目标是在城市郊外的一层住宅中,创造一个能够与室外院子融为一体、互动共生的生活空间。
The clients requested a space that is simple and straightforward, The clients wanted a space that is simple, clear, and clean in style, yet not “overly tidy.” We understood this as embracing a state of slight irregularity or subtle misalignment, and used it as the starting point for the design.Our aim was to create a ground-floor living environment unique to suburban settings—one that allows daily life to flow seamlessly together with the garden outside.
▼客厅,Living room

空间构成 Spatial Composition
在空间布局上,原有的三间独立房间被减少为两间,将其中一间的面积并入客厅。通过拆除部分隔墙,南侧窗户的采光得以加强,使客厅更加明亮,并形成了一个具有回游动线的宽敞客厅空间。
▼拆除墙体以扩大空间和提升流动性
Remove some walls to expand space and improve circulation

In reorganizing the layout, the original three private rooms were reduced to two, and the area of one room was incorporated into the living space. Removing several interior walls increased the amount of sunlight entering from the south-facing windows, resulting in a brighter and more fluid, circulation-friendly living room.
▼客厅作为核心组织空间,Living room serves as the core organizational space


虽然客厅是一个连续的整体空间,但其中既有开阔的区域,也有类似狭窄小径般的尺度空间,为人和猫提供了多样、富有层次的居所体验。此外,原本客厅与庭院之间设有封闭的阳台,使室内与室外之间的距离变得疏离,空间也相对昏暗。我们首先将阳台取消,使自然光尽可能深入室内,让客厅变得明亮起来。同时,通过将室外铺装材料延伸至室内较深的位置,让庭院从户外自然地延续进室内,形成一种“室内也能拥有一小片庭院”的空间结构。
▼将室外地面延伸到室内,融合内外空间
Set back outdoor flooring to connect inside and outside

▼从平面图上看内外的渗透融合,
The infiltration and integration of the inside and outside can be seen from the floor plan

Although the living room is a continuous, open space, it contains both generous, expansive areas and narrower, alley-like passages. This variation in spatial scale creates a richness of places for both the residents and their cats.Originally, a fully enclosed sunroom separated the living room from the garden, creating a dim space and a psychological distance from the outdoors. By removing this enclosure, we allowed natural light to reach deeper into the interior, brightening the living area. Furthermore, extending the exterior paving material into the deeper parts of the interior created a sense of continuity from the garden into the home—almost as if a small portion of the garden exists inside.
▼回游动线的宽敞客厅,Fluid, circulation-friendly living room

▼开放、流动的空间,An open and flowing space

一般来说,室内与外部的边界通常由建筑外墙来界定,而我们通过将铺装的边界线“向室内错动”,为室内创造了一个如同室外般的空间体验。
Typically, the boundary between interior and exterior is defined by the building’s exterior wall. By “shifting” the boundary of the paving inward, we introduced a small, outdoor-like space within the interior.
▼狭窄小径般的尺度空间,Narrower, alley-like passages

以焕新的客厅作为空间核心,餐厅、厨房、两间卧室、品茶空间以及室内的小庭院都沿着回游动线自然展开,构成了一个流动、开放而又富有层次的整体布局。
With the renewed living room as the center, the dining area, kitchen, two bedrooms, tea corner, and a small indoor garden are arranged along a circular circulation route, forming an open, flowing spatial composition.
▼两座桦木“小屋”,Two birch “cottages”

材料与细节 Materials & Details
在平面上处于“未对齐”关系的客厅回游核心墙体与厨房墙体,采用了同样的桦木材料加以统一。而围绕它们的其他墙面则全部以白色处理。通过这种对比手法,营造出一种仿佛两座桦木“小屋”在空间中轻微“错位”而立的不整齐美感。
The wall that forms the center of the living room’s circulation and the kitchen wall—although not aligned on plan—were finished in the same birch material. The surrounding walls were kept entirely white. By creating this contrast, the two birch “volumes” appear to stand slightly misaligned within the space, producing a gentle sense of intentional irregularity.
▼卧室,Bed room

制造“边界错动”效果的铺装石材延伸进入小玄关、客厅、品茶空间以及卧室的一部分,在功能与心理层面上都带来了空间的扩展。同时,在同一空间内让木地板与石材并置共存,也为生活方式和空间使用方式提供了更多可能性。
The stone paving that generates this “shifted boundary” extends into the small entrance, the living room, the tea space, and part of the bedroom, creating both functional and psychological expansiveness. At the same time, the coexistence of wood flooring and stone surfaces within a single space introduces new possibilities for how the residents can use and inhabit the interior.
▼厨房,Kitchen

客厅与卧室使用的地面均统一为桦木木地板,但卧室的墙面与天花并未采用客厅所使用的白色涂料,而是选择了略带暖色的柔和涂装,使卧室呈现出更加舒缓、温柔、令人安心的氛围。
The flooring used in the living room and bedrooms is unified in birch wood. However, the bedroom walls and ceiling are finished not in the same white paint used in the living areas, but in a softer, slightly warm-toned coating, creating a calmer, gentler, and more comforting atmosphere.
▼角落空间,Corner space


总结 Conclusion
“生活在城市中的人们,如何让生活与自然保持适当关系?”尤其是在城市中心,自然往往被视为“失落的存在”。
“How can people living in cities maintain a meaningful relationship with nature?”In dense urban centers, nature is often treated as something that has been “lost.”
▼木质柜子,Wooden cabinet


光线进入的方式、风的流动、内外空间之间模糊、街道中的小片绿地或天空的开阔——将这些自然元素引入室内的巧思,正是即使在密集的都市核心,也能维持与自然联系的关键。
The way light enters a space, how air flows through it, the ambiguous zones between inside and outside, and the small pockets of greenery or glimpses of open sky within the city—it is precisely these ways of editing our distance to nature that hold the key to preserving a sense of connection to it, even in the most crowded parts of the city.
▼内外空间之间模糊, Ambiguous zones between inside and outside

本次的改造虽然发生在城市郊外一层公寓,这样相对容易感受到自然气息的环境中,但也可以看作是我们在城市生活中思考如何与自然共生的一次小小试验。今后,我们希望继续探索在城市中如何与自然共生,并通过建筑将这种思考付诸实践。
Although this renovation took place in a ground-floor apartment on the outskirts of the city—an environment where the presence of nature are relatively easy to access—it was also a small experiment in exploring how we, as urban dwellers, might coexist with nature.We hope to continue seeking new ways to live alongside nature within the city, and to put these explorations into practice through architecture.
Project Name:SY Apartment Renovation
Project Location:Shunyi District, Beijing, China
Type:Residence
Architects:Masaya Kawashima / mk – a
Client:Private Client
Size:Single – floor
Site Area:153 m²
Building Area:153 m²
Design Period:02.2025 – 04.2025
Construction Period:04.2025 – 07.2025
Photography Credit:Qin Wei
Material:Wood (Birch, Cherry), Birch wood flooring, Warm-toned stone,Light warm-tone decorative paint, White latex paint














