野一茶集,重庆 / 几里建筑
前言Foreword
在山城密集的夹缝中,有一片自然的栖息地承载着城市的平和与沉静,这一次,我们延续着Natural Techtonic自然主义的建构方式 ,在山林间塑造了一处会呼吸的茶室,将一种斯堪的纳维亚式的理性与温厚嵌入城市的肌理中,也由此尝试去重塑人与自然以及现代都市之间的关系。
In the dense crevices of this mountain city, there exists a natural oasis that holds the city’s peace and stillness. This time, continuing the Natural Tectonic approach, we shaped a breathing teahouse among the wooded slopes—embedding a Scandinavian rationality and warmth into the urban fabric, and through it, attempting to reweave the relationship between humans, nature, and the modern metropolis.
▼俯瞰图,Aerial View

我们从Lewerentz对建构智性的思量中收获启示,将东方的“气韵”(stimmungsmaleriei)与地中海的浪漫主义相连,秩序与野性,精确与粗放,都内化在现代的材料系统和建造方式里,以更为普适的方法,邀请人们进入,停驻。
Inspired by Lewerentz’s meditation on tectonic intelligence, we connected the Eastern notion of Stimmungsmalerei with Mediterranean romanticism. Order and wildness, precision and rawness, are internalized within contemporary material systems and construction methods—inviting people, through a more universal language, to enter and linger.
▼茶室外观,exterior view

对东方的 理解 Understanding of the East
法国学者François Jullien曾这样阐述东方美学:“它是进深之道(通往简朴、自然和根本),也是淡漠之途(近离特殊、个体及偶然)。它的超验性 (transcendance)不会领我们到另一个世界,我们甚至是通过内在性(immanence) 去经历它的。”
The French scholar François Jullien once articulated the esthetics of the East as follows: “It is a path of depth (leading to simplicity, nature, and the essential), yet also a path of indifference (distancing itself from the particular, the individual, and the accidental). Its transcendence does not lead us to another world; indeed, it is through immanence that we experience it.”
▼山里的茶室,Teahouse in the Mountains

如何去用空间和材料去表达东方的姿态,是我们一直在思考的问题。我们尝试用东方的美学观念去操作现代材料,与金属,玻璃等工业化的材料碰撞。在树木层叠的掩映中,小屋泛着序列的精妙光泽,阴翳和明亮交织,它不直白地被呈现,还原着东方的迂回。同时它赤裸的敞开的结构,既有理性的秩序,又保留了东方内在的精神亲和力(spiritual affinity),让人在袒露的空间中感受人类之间的亲密,友爱。
How to express an Eastern posture through space and materials is a question we constantly contemplate. We attempt to operate modern materials—metal, glass, and other industrial elements—through the lens of Eastern esthetic principles. Nestled among layered trees, the cabin gleams with a sequenced subtlety, where shadow and light intertwine. It is not presented explicitly, but rather reflects the indirect, nuanced approach characteristic of the East.At the same time, its exposed, open structure maintains a rational order while preserving an inward spiritual affinity—an Eastern sensibility that allows people to feel intimacy and kinship within an unveiled space.
▼茶室一侧,One Side of the Teahouse

空间的 精神 The Spirit of Space
在「野一」茶集整体设计上,我们没有依循传统,而是将东方性的内观与静笃,交由更普适的方式进行表达。茶文化自大航海时代进入欧洲,时至今日又回溯到我们身旁。因此我们希望它以一种更轻盈的姿态介入日常。
In the overall design, we did not adhere to tradition. Instead, we expressed the introspective stillness of Eastern sensibility in a more universal language. Tea culture traveled to Europe during the Age of Discovery, and today it returns to us. Thus, we wanted it to engage with daily life in a lighter, more graceful manner.
▼入口,entrance

茶室由三面格栅围合而成,致密的阳极氧化铝以及木板格栅重构出茶室的肌理,实时映照着外部自然的呼吸与脉动。出挑的屋檐与自然建立更立体的互动,当风和光进入,消解了人造建筑和自然的界限,描绘出沉静且充满夏日气息的氛围。
▼建筑空间轴测图,Axonometric drawing of architectural space

The tearoom is enclosed on three sides by lattice screens. Dense anodized aluminum and wooden slats reinterpret its texture, continuously mirroring the breath and pulse of the outside world. The extended eaves establish a more dynamic dialog with nature—as wind and light enter, they dissolve the boundary between the built and the natural, sketching a serene, summer-infused atmosphere.
▼金属结构,Metal Structure

▼木头的肌理,The Grain of Wood

▼木头与金属交织,Wood and Metal Intertwined

▼格栅,Grille

面向庭院一侧,通透的玻璃与赤裸的结构相互嵌套,坦然地敞开其自身与地景交互。悬吊的帆布因其柔性和微微的弧线使整个空间有了弹性,又有力地向外过渡,中心庭院的大树、起伏的草木以及远处湖面的波光,一并框景入室,与“内蕴视野”“坐穷泉壑”等中国文化语意有了具象的连结。
On the side facing the courtyard, transparent glass and exposed structure nest within each other, opening frankly to the external scenery and interacting with the landscape. Suspended canvas, with its soft materiality and gentle curve, lends elasticity to the space while powerfully mediating the transition outward. The courtyard’s large tree, undulating plants, and the shimmer of the distant lake are all framed into the interior, forming a tangible connection with the poetic Chinese notion of “sitting amid inexhaustible springs and valleys.”
▼面向庭院,Facing the Courtyard

▼庭院,courtyard

材料的 诗性 The Spirit of Space
在海德格尔的比喻中,“Litchtung”意指林中开阔地,也包含着启迪隐意,当日光行移至林中空地,置身于「野一」,身心在光影中得以丰盈,这种体验又与“虚实相涵”“藏修息游”的中国建筑气韵有着隐秘的共通。
In Heidegger’s metaphor, “Lichtung” refers to a forest clearing, yet carries connotations of revelation. When sunlight moves into that open space within the woods, one enters a state of Yeeii—body and mind are enriched within light and shadow. This experience shares a subtle resonance with the stimmungsmaleriei of Chinese architecture.
▼外观,External view


在材料的表达上,我们寻求的并非物的「属性」,而是它们的「特性」。我们没有使用过多怀旧的古老的物件去造一个深沉的底色而是选择大量现代工业的造物,如银色的阳极氧化铝板,去构建一处可呼吸的,更靠近现代生活语境的东方茶室。
In the expression of materials, we seek not their physical properties, but their character. We avoided using nostalgic, aged objects to create a solemn backdrop. Instead, we employed contemporary industrial elements—such as silver anodized aluminum panels—to build a breathable, modern Eastern tearoom, closer to the language of contemporary life.
▼阳极氧化铝板,Anodized Aluminum Panel

日光为格栅覆上一层序列的柔晕,它自身的材质又留存着一种刚性,在自然中坚定地实现自己。这层复合的表皮与入口处纯粹的木制柱体并置出一种微妙的平衡,东方的秩序与北欧的理性共时性的平行。
Sunlight drapes the lattice with a sequenced soft glow, yet the material itself retains a certain rigidity, firmly asserting its presence within nature. This composite skin, juxtaposed with the pure wooden columns at the entrance, achieves a delicate balance—an Eastern order and Nordic rationality existing in parallel.
▼光影,Light and Shadow


午后的光从庭院漫入,投下郁郁葱葱的树影。朴拙厚重的木门划分空间,门上的金属线条延伸出理性的光泽,与四壁均匀涂抹的白色艺术漆并肩,构成了室内空间的基底。
Afternoon light spills in from the courtyard, casting lush tree shadows. A thick, rustic wooden door divides the space, its metal inlay extending a rational sheen. Alongside the evenly applied white artistic plaster on the walls, this forms the foundation of the interior.
▼树荫环绕,Shaded by Trees Nestled in the Tree Canopy


夜晚降抵,茶室变成丛林里亮着灯的小屋。醺黄的光从宣纸质感的灯膜中蔓延开来,经由白墙的二次映射,使空间澄明而纯粹,长木、砖石都浸润在光的灵晕中,氛围有了更为内化的体验。
As night descends, the tearoom becomes a small, lit cabin in the woods. A warm amber glow spreads from rice-paper-like lighting membranes and, reflected by the white walls, renders the space clear and pure. Long planks and stone are bathed in an aura of light, creating a more internalized atmosphere.
▼夜间概览,Night view



承载茶事的几案,泛着如经年使用般的温润光泽,象征着从外部进入到一间茶室,从一种状态进入另一种状态。质朴的木地板横亘于晦明之间,在这静坐,沉思,总能获得东方式的能量。
The tea table, glowing with a patina akin to years of use, symbolizes the transition from outside into the tearoom—from one state to another. The unadorned wooden floor stretches between light and shadow; sitting here in contemplation, one draws upon an Eastern kind of energy.
▼室内概览,Overall of the interior

▼室内细部,details

致密的室外格栅,在此刻退隐为含蓄的外框。建筑在沉默的林地间,散发着悠然、平静的光晕,如古时丛林中闪动的篝火,邀请人停驻,对温暖的靠近已经写入我们的基因。这种考究的光线策略,在强化空间仪式感的同时,也让建筑成为弥合自然、人文与现代主义的媒介。
Outside, the dense lattice now recedes into a subtle frame. The building, amidst the silent woods, emits a tranquil, serene glow—like flickering bonfires in ancient forests, inviting one to pause. The instinct to draw near warmth is written into our genes. This deliberate lighting strategy not only strengthens the spatial sense of ritual but also allows architecture to act as a medium reconciling nature and human spirit.
▼室内光影,Interior Light and Shadow

结语 Summary
「野一」茶集,在其物理形态之外,更多是一种心灵的观照。公园湖心旁,大片的野放草地减缓着城市的密度,山体起伏,树木伸展,茶室的金属体量在林间隐隐彰显着现代的气息,这种气息与东方的适意与情趣共存。通过无形的“气息”广泛弥漫,使人在无意识中识别它,感知它,接近中国传统画理中的“气韵”,不可名状却能被普遍感受到。
Yeeii Teahouse transcends its physical form to become a mirror for contemplation. Beside the lake in the park, expansive wild grasslands soften the urban density, with rolling hills and stretching trees. The metallic volume of the teahouse subtly asserts a modern presence amidst the woods—a presence that coexists with Eastern ease and poetic sensibility. An intangible “atmosphere” permeates widely, allowing people to unconsciously recognize, sense, and approach what traditional Chinese painting theory calls “stimmungsmaleriei”—ineffable yet universally felt.
▼俯瞰图,Aerial View

基于对生活与情境的共情想象,我们通过控制材料、光影、尺度与序列,营造出一个接近森林,天空,大地的场所。人们身处其中,共享“百业暂休”的闲暇,“无价”的地理气候。人类需要丰饶的生活,也有对安静的永恒需求,这种感受在都市生活中显得格外珍贵,城市因此获得丰富的层次,人与自然,人与人,人与城市的关系产生了更深刻的联结。
It is precisely through empathetic imagination toward life and context that we shaped this place—close to forest, sky, and earth—by orchestrating materials, light, scale, and sequence. Here, people share a “priceless” geographic climate that nourishes body and mind—a sensation particularly precious in urban life. Humans need abundance in living, yet also harbor an eternal need for stillness, thus giving rise to the city’s diversity and layers. A deeper connection has been formed between humans and nature, among people, and between people and the city.
▼总平面,master plan

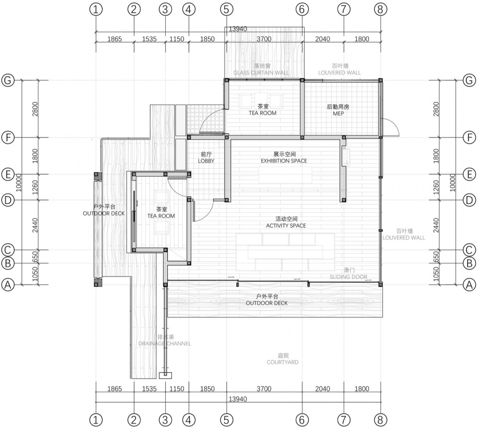
▼平面,floor plan

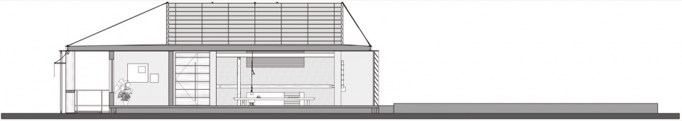
▼剖面,section


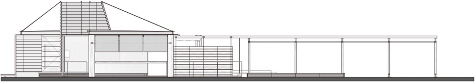
▼西立面,west elevation

▼正立面,elevation

Project Name|Yeeii Teahouse
Location|Yihe Ecological Park, Chongqing
Floor Area|110.37㎡
Design Period|February 2025
Completion Date|June 2025
Architectural Design|vari architects
Principal Architects|Qi Fan
Project Architects| Feng Pan’ao Li Jun, Zhang Heming, Zhang Yiming
Photography|Wu Qingbo
Copywriting|Wang Liu Xu Xiaoyi














