首钢一高炉·SoReal科幻乐园,北京 / 筑境设计+当红齐天+首钢国际工程技术公司
从2018年11月奔驰A级轿车的发布盛典起,三高炉便成为首钢园区更新的“明星高炉”。随着连续三届BTV跨年晚会、央视迎冬奥晚会等重磅活动相继落地,三高炉已跃升为京西重要的文化地标。与之相呼应的“姊妹炉”——一高炉,则在它的东侧静静伫立,等待着一场羽化成蝶的蜕变:筑境设计携手当红齐天SoReal,联合首钢国际工程技术公司、深圳九天龙和中国建研院,以前沿科幻业态为这座百年高炉注入了崭新动能,不仅推动首钢园更新迈入沉浸式体验新维度,更打造出聚焦工业遗产+科幻沉浸的行业更新“新样板”。
Since the launch event of the Mercedes-Benz Class A sedan in November 2018, the No.3 Blast Furnace has become a “Star Blast Furnace” in Shougang Park’s regeneration. With successive high-profile events like three consecutive BTV New Year’s Eve Galas and CCTV’s Winter Olympics Welcome Gala, it has risen to an important cultural landmark in western Beijing. Its “sister furnace”-the No.1 Blast Furnace-stands quietly to its east, awaiting a metamorphosis like a butterfly emerging from its chrysalis: CCTN Design, partnered with SoReal, together with BSIET, Shenzhen Jiutianlong and China Academy of Building Research, injecting new vitality into this century-old blast furnace with cutting-edge sci-fi formats. This not only elevates Shougang Park’s regeneration into a new dimension of immersive experiences but also creates a “new industry model” for regeneration focusing on industrial heritage + sci-fi immersion.
▼一高炉及周边鸟瞰图,
Aerial of Shougang No.1 Blast Furnace·SoReal Sci-Fi Paradise and Its Surroundings

场地基底与改造策略:尊重遗存,功能创新 Site Context and Renovation Strategy: Respect Heritage, Function Innovation
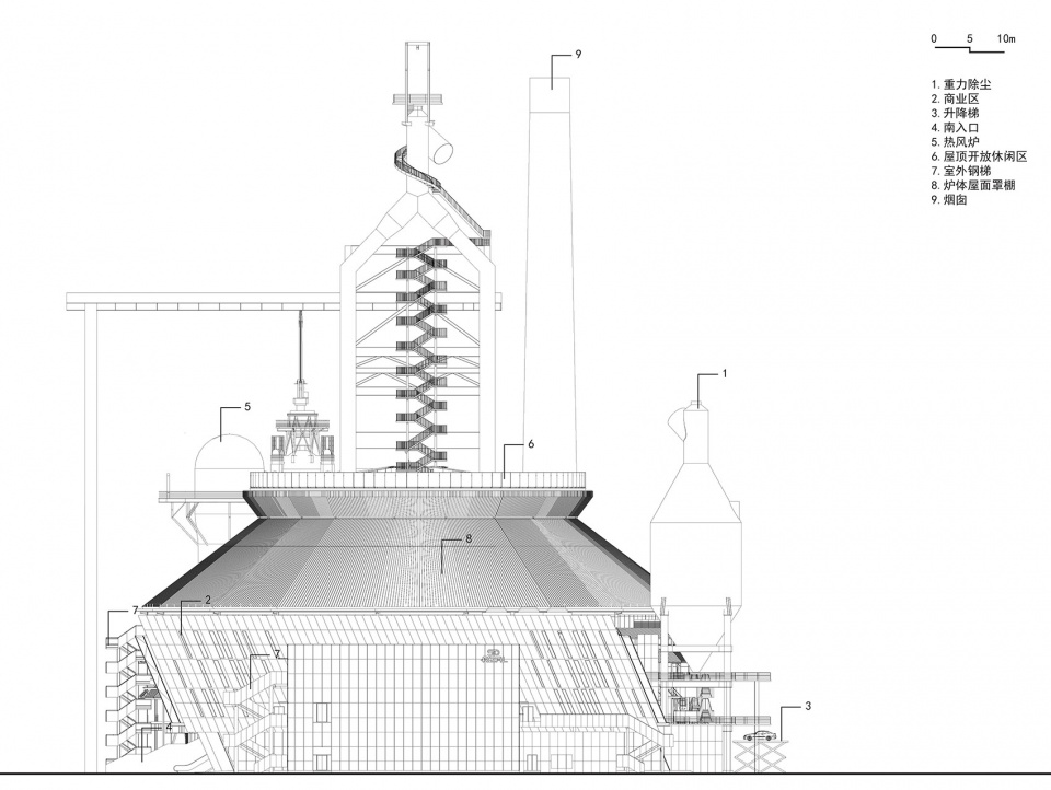
首钢一高炉位于北京首钢园北区,地处群明湖大街东侧、金安科幻广场西南角,西望三高炉、东邻二高炉,南侧正对园区中心绿轴景观带,是首钢工业遗产阵列的核心展示节点。这座总高104.4m、胸径80m的钢铁巨构,始建于1919年,见证了首钢的初创与兴盛,历经多轮改造升级后于2010年停产。2019年起,一高炉改造以“科技赋能工业遗产”为核心思路,植入VR、AR、5G、全息影像等前沿技术,融入沉浸式剧场、电竞、数字展览等新消费业态,将其改造为集文化、科技、娱乐于一体的 “首钢一高炉·SoReal科幻乐园”,为首钢园乃至京西片区注入全新活力。
▼项目在首钢园北区区位图,Location Map of the Project in Shougang Park North District

Shougang No.1 Blast Furnace is located in the North District of Shougang Park, Beijing. It stands east of Qunming Lake Avenue, southwest of Jin’an Sci-Fan, with No.3 Blast Furnace to the west, No.2 Blast Furnace to the east, and directly facing the central green axis landscape belt of the park to the south. As a core exhibition node in Shougang’s industrial heritage array, this 104.4-meter-tall steel structure with an 80-meter breast diameter was first built in 1919. It witnessed the establishment and prosperity of Shougang Steel Plant, and was decommissioned in 2010 after multiple renovations and upgrades. Since 2019, the transformation of a blast furnace has taken “technology empowering industrial heritage” as the core idea, implanted cutting-edge technologies such as VR, AR, 5G, and holographic images, integrated into new consumer formats such as immersive theaters, e-sports, and digital exhibitions, and transformed it into the “Shougang No.1 Blast Furnace·SoReal Sci-Fi Paradise” that integrates culture, technology, and entertainment, injecting new vitality into Shougang Park and even the western Beijing area.
▼一高炉·SoReal科幻乐园外景,Exterior View of the Project

作为首钢园更新转型的关键项目,一高炉改造以 “遗存保护为基、功能创新为核”,制定了三大核心策略:
空间梳理重构:打开炉芯、增设楼层,将原炼铁工艺大空间转化为适配娱乐休闲功能的高密度垂直空间,既保留工业肌理,又满足现代体验需求;
设施取舍优化:梳理整合附属设施,保留高炉本体、热风炉、重力除尘器等核心工业遗存,对低效控制楼按“正投影不变”原则原地重构,同步引入符合时代特征的功能造型元素,实现“新旧共生”;
风貌与科技融合:延续工业风立面气质,通过仿黑钢纹理铝板、超白玻璃幕墙等材质搭配,结合泛光灯光设计注入科技感,平衡历史肌理与现代功能。
As a key project for the renewal and transformation of Shougang Park, the renovation of No.1 Blast Furnace adheres to the principle of “heritage preservation as the foundation and functional innovation as the core”. Three core strategies were formulated:
Space Reorganization and Reconstruction: Open the furnace core and add floors to transform the former large iron-making process space into a high-density vertical space adapted to entertainment and leisure functions. It not only retains the industrial texture, but also meets the needs of modern experience;
Facility Selection and Optimization: Sort out and integrate ancillary facilities, preserve core industrial heritage (including the blast furnace itself, hot blast stoves, and gravity dust collectors). The inefficient control building is reconstructed in situ according to the principle of “orthographic projection unchanged”, and simultaneously introduce functional and stylistic elements that reflect contemporary characteristics, achieve “old and new symbiosis”;
Integration of Style and Technology: Maintain the industrial-style facade character, through the combination of imitation black steel texture aluminum plate, ultra-white glass curtain wall and other materials, combined with the flood lighting design to inject a sense of technology, balancing historical texture and modern functions.
▼首钢一高炉改造前后对比,Before-and-After Comparison of Shougang No.1 Blast Furnace Renovation




设计严格遵循“遗存正投影不变”原则,确保工业遗产的空间肌理不受破坏。东侧旧主控楼因安全隐患拆除后,新建综合商业楼沿用原建筑的东西向宽度与南北向投影范围,仅以斜向切削的造型语言,营造出“从钢铁壳体中抽离新功能”的破茧重生意象,与高炉本体形成视觉对话,传递转型活力。
▼设计草图,Design Sketches

▼保留工业遗存与正投影肌理,Preserved Industrial Heritage and Orthographic Projection Texture

The design strictly adheres to the principle of “unchanged orthographic projection of heritage” to ensure the spatial texture of the industrial heritage remains intact. After the original old main control building on the east side was demolished due to potential safety hazards, the newly built comprehensive commercial building adopts the same east-west width and north-south projection range as the original building. Only through the design language of diagonal cutting does it create an imagery of “breaking out of the cocoon and rebirth by extracting new functions from the steel shell”, forms a visual dialogue with the blast furnace itself, and conveys the vitality of transformation.
▼项目整体效果图,Overall Rendering

形态呼应与入口设计方面,项目在高炉本体与新建主控楼之间,以梯形收窄的喇叭状主入口串联,外层宽、内层渐收的空间形态自然引导人流,搭配拾级而上的台阶与雨棚内的连续灯条,塑造“通往科幻未来”的仪式感。周边热风炉、烟囱、重力除尘器等辅助设施被完整保留,与高炉本体共同构成工业遗产的完整叙事场景。
In terms of form echoing and entrance design, a trumpet-shaped main entrance tapering in a trapezoidal form connects the blast furnace itself and the newly built main control building. The spatial form with a wider outer layer and gradually narrowing inner layer naturally guides the flow of people. Combined with the stepping stairs and continuous light strips inside the canopy, it creates a sense of ritual “Leading to a sci-fi future”. Surrounding auxiliary facilities such as hot blast stoves, chimney and gravity dust collectors have been fully preserved, together with the blast furnace itself forming a complete narrative scene of industrial heritage.
▼入口建成后,Completed Entrance of the Project


材质与色彩表达方面,设计坚持“修旧如旧”与“新旧共生”的材质策略:高炉本体保留原始铁锈肌理、沧桑钢板与斑驳质感,最大化延续工业历史感;新建主控楼采用平行四边形仿黑钢纹理铝板,与高炉本体形成材质呼应;东、南侧立面选用超白玻璃幕墙,以通透质感传递商业娱乐建筑的开放性。这种材质色彩搭配,既是高炉生产景象的当代转译,也是新旧元素和谐共存的视觉体验。夜间,泛光灯光掠过钢铁炉壁,科技感蓝光与工业遗存的厚重质感交织,强化“钢铁+科幻”的独特气质。’
▼新建商业楼设计效果图,Design Rendering of the Newly Built Commercial Building

In terms of material and color expression, the design adheres to the material strategy of “restoring the old as the old” and “coexistence of old and new”: the blast furnace itself retains the original rust texture, weathered steel plates and mottled appearance to maximize the continuation of the industrial historical sense; the newly built main control building adopts parallelogram-shaped aluminum panels with black steel-like texture, forming a material echo with the blast furnace itself; the east and south facades are made of ultra-clear glass curtain walls, conveying the openness of commercial and entertainment buildings through transparent texture. This combination of materials and colors is not only a contemporary translation of the blast furnace’s production scene, but also a visual experience of the harmonious coexistence of old and new elements. At night, floodlights sweep across the steel furnace walls, where the high-tech blue light intertwines with the dense texture of industrial heritage, enhancing the unique charm of “steel + sci-fi”.
▼一高炉保持了铁锈工业风色彩,Retains the Rusty Industrial-Style Color

空间营造:“并蒂莲”式垂直布局与星际穿越体验 Space Creation: “Twin-lotus” Vertical Layout and Interstellar Travel Experience
相较于三高炉以静态展示为主的利用模式,一高炉改造实现了空间利用的迭代突破——以“内容先行”为导向,充分激活罩棚内高达40m的垂直空间,打造多层次、高密度、强互动的 “垂直科幻之城”,彻底转变工业建筑冰冷的机械感。
▼内部功能分析图,Internal Function Analysis Diagram

▼业态分布示意图,Function Distribution Diagram

Compared with the utilization mode of the No.3 Blast Furnace which mainly focuses on static display, the renovation of No.1 Blast Furnace has achieved an iterative breakthrough in space utilization-guided by the principle of “content first”, it fully activates the 40-meter-high vertical space inside the canopy, creating a multi-layered, high-density and highly interactive “Vertical Sci-Fi City”, completely transforms the cold mechanical feel of industrial buildings.
▼一高炉夜间泛光效果,Night Lighting of Shougang No.1 Blast Furnace

一高炉内部功能以南北并置的“并蒂莲”模式分区,两组高大空间遥相呼应,构筑立体交织的沉浸式场景:
The internal functions of the project are divided in a “twin-lotus” layout mode with north and south sections. The two grand spaces echo each other from afar, constructing a three-dimensionally interwoven immersive scene:
▼二层引擎区,2nd Floor Engine Area


▼三层中枢大厅,3rd Floor Central Hub Hall


南侧为科幻乐园区,聚焦动态互动体验,二至六层垂直分布载具体验、跳楼机、无动力滑索、高空探索、攀岩救援、绳网虫洞等数十种项目,以及生态秘境、齐天号观测中心等互动科技体验区,游客可化身 “星际探险家”,在高低错落的空间中穿梭嬉戏,尖叫与欢笑交织,热闹氛围贯穿全场。
The southern section is a dynamic sci-fi amusement area focusing on interactive experiences. Dozens of projects are distributed vertically from the 2nd to the 6th floor, including vehicle experience, drop tower, unpowered zip line, high-altitude exploration, rock climbing and rescue, rope net wormhole, as well as interactive technology experience zones such as the ecological secret realm and Qitian Observation Center. Visitors can transform into “interstellar explorers”, shuttling and playing in the undulating spaces, where screams and laughter intertwine, and the lively atmosphere permeates the entire venue.
▼高空攀爬区,Climbing Area


▼跳楼机,Jumping Machine Area

▼三层生态秘境,3rd Floor Ecological Secret Realm

▼三层生态秘境,3rd Floor Ecological Secret Realm

北侧为光影秀场区,包含全国最大的多人VR虚拟对战区“33 Meta Club”,赛博朋克美学与高炉钢结构形成强烈视觉张力,同时具备科幻产业顶级发布功能,中国科幻大会、京西电竞节、TGA 腾讯电竞运动会等顶级活动均在此举办,成为国内顶配沉浸式科幻体验空间。
The northern section is a show area, featuring “33 Meta Club”-the largest multi-player VR virtual battle zone in China. The cyberpunk aesthetics and the blast furnace’s steel structure create strong visual tension. It also boasts a top-tier release function for the sci-fi industry, having hosted top-tier events such as CSFC (China Science Fiction Convention), Western Beijing E-Sports Festival, and TGA Tencent E-Sports Games, making it a top-equipped immersive sci-fi experience space in China.
▼四层超时空影院,4th Floor Transcendent Cinema

▼星舰商街,Commercial Street


▼五层数字对战区,5th Floor Digital Battle Zone


▼北区33 Meta Club,33 Meta Club in North Area

围绕这一布局,动线设计聚焦内部垂直串联,构建层层递进的星际探险旅程:北侧12m挑高的秀场与半月形看台激荡能量至高炉各个角落;南区二至五层乐园区上下贯通,交错盘旋的扶梯与楼梯打破楼层界限,搭配科幻感装饰如置身星际空间站,持续激发探索欲;三层炉体中央打开炉芯打造“炉芯咖啡”网红店,让工业建筑与日常生活碰撞;各层商业区、美食巷以“星际补给站”为原型,深度绑定消费场景与探险剧情,让体验持续延伸;六层光影互动区经旋转坡道直达41m炉顶花园,从封闭科幻场景“破空而出”,俯瞰工业与自然全景,实现“从未来回归现实”的感官转折。
Centered around this layout, the circulation design focuses on internal vertical connection, creating a progressive interstellar adventure journey: The 12m-high northern show area with semicircular stands radiates energy throughout the blast furnace; The 2nd-5th floor southern area is vertically linked, with intertwined spiral escalators and stairs breaking floor boundaries-paired with sci-fi decorations, it evokes an interstellar space station vibe to fuel exploration. On the 3rd floor, the furnace core is hollowed out for the internet-famous “Core Café”, blending industrial architecture with daily life. Commercial zones and food streets on each floor are modeled as “interstellar supply stations”, integrating consumption with adventure plots. The 6th-floor exhibition area leads directly to the 41m roof garden via a spiral ramp, offering a panoramic view of industry and nature and realizing a sensory shift from “future to reality”.
▼发布活动现场,Show Area Event Scene

▼自三层看台俯瞰秀场,Overlooking the Show Area from the 3rd Floor Grandstand

▼三层炉芯咖啡,3rd Floor Core Café

而沉浸式体验的核心,在于让科技与工业遗产精神深度融合而非堆砌——VR、AR、5G、全息投影等技术成为“连接历史与未来”的桥梁,让冰冷钢铁成为科幻体验的一部分:“齐天号”星舰体验中,座椅震动与虚拟星云共振,让“星际穿越”扎根工业遗存;“银翼领航”太空模拟驾驶、“陨星迷航”返回舱等项目,实现虚实共生的沉浸感;国内首个5G+VR大型线下体验中心落地于此,未来还将部署5G边缘云和XR技术,还原《头号玩家》般的极致体验,让科技真正“生长于工业基底”。
The core of the immersive experience lies in the integration of technology and industrial heritage spirit, not mere stacking: VR, AR, 5G and holographic projection serve as bridges “connecting history and future”, integrating cold steel into sci-fi experiences. Projects like “Qitian” starship (seat vibration synchronized with virtual nebulae), “Silver Wing Navigation” space simulation, and “Meteor Trek” return capsule deliver a virtual-real integrated immersion. Home to China’s first large-scale 5G+VR offline experience center, it will further deploy 5G edge computing and XR technology in the future, replicating the ultimate experience of Ready Player One and enabling technology to truly “grow from the industrial base”.
▼炉芯外休息区,Rest Area Outside the Furnace Core

▼仰望一高炉罩棚顶,Looking Up at the Top of the Blast Canopy

▼六层光影展厅,6th Floor Light and Shadow Exhibition Hall

价值赋能:工业遗产的活态重生 Value Empowerment: Vibrant Rebirth of Industrial Heritage
作为全球首个以科幻产业赋能重工业高炉遗产的标杆项目,一高炉·SoReal科幻乐园的落成,不仅实现工业遗产从“生产”到“消费”的转型,更探索出存量更新的全新路径。自2024年开业至今,一高炉已累计接待游客超100万人次,周末节假日常常一票难求,由它掀起的“科幻”热潮,更带动首钢园创下5.8亿元的产业销售额。这座曾经沉睡的钢铁巨兽,凭借其独特的“钢铁+科幻”气质,正在从娱乐空间升级为文化发声平台,成为京西片区的“新地标”,更为首钢园注入持续发展的产业“新引擎”,实现社会价值、经济价值和文化价值的多重回归,印证了工业遗产“活态重生”的可能性。
As the world’s first benchmark project to empower the legacy of heavy industry blast furnaces with sci-fi industry, the completion of Shougang No.1 Blast Furnace·SoReal Sci-Fi Paradise has not only realized the transformation of industrial heritage from “production” to “consumption” but also explored a new path for stock regeneration. Since its opening in 2024, the venue has received a total of over 1 million visitors, with tickets often sold out on weekends and holidays. The “sci-fi” boom it sparked has driven Shougang Park to achieve 580 million yuan in industrial sales. This once dormant steel giant, with its unique “steel + sci-fi” vibe, has evolved from an entertainment space to a cultural platform-becoming a new landmark in western Beijing and a sustained industrial “engine” for Shougang Park. It has realized the multiple return of social, economic and cultural values, proving the possibility of “vibrant rebirth” for industrial heritage.
▼各具特色的首钢姊妹炉——一、三高炉,
Shougang No.1 & No.3 Blast Furnaces with different characteristics

结语 Conclusion
首钢一高炉·SoReal科幻乐园的更新实践,既未割裂工业历史的厚重根基,也未盲从科技潮流的表面喧嚣,而是以 “遗存保护为骨、科幻内容为魂、技术赋能为脉”,让百年高炉完成从生产设施到消费体验场域、从城市记忆符号到区域活力引擎的双重跃升。这不仅是工业遗产与科幻产业深度融合的破局之作,更是中国百年钢铁精神跨越时空、与未来对话的精神坐标——让沉睡的工业遗存,在科技与创意的赋能下,成为承载城市记忆、驱动未来发展的鲜活力量。
The regeneration practice of Shougang No.1 Blast Furnace·SoReal Sci-Fi Paradise neither severs the profound roots of industrial history nor blindly follows the superficial hype of technological trends. Instead, it takes “heritage protection as the backbone, sci-fi content as the soul, and technological empowerment as the vein”, enabling the century-old blast furnace to achieve a dual leap-from a production facility to a consumer experience venue, and from an urban memory symbol to a regional vitality engine. It is not only a pioneering work of in-depth integration between industrial heritage and the sci-fi industry but also a spiritual landmark where China’s century-old steel spirit transcends time and space to dialogue with the future. Thanks to the empowerment of technology and creativity, this once dormant industrial relic has become a vivid force bearing urban memories and driving future development.
▼首钢一高炉·SoReal科幻乐园夜景,Nightview

▼总平面图,Master Plan

▼首层平面图,1st Floor Plan

▼二层平面图,2nd Floor Plan

▼三层平面图,3rd Floor Plan

▼四层平面图,4th Floor Plan

▼五层平面图,5th Floor Plan

▼六层平面图,6th Floor Plan

▼41m炉顶平面图,41m-high Roof Floor Plan

▼东立面图,East Elevation

▼西立面图,West Elevation

▼南立面图,South Elevation

▼北立面图,North Elevation

项目信息
Project Information
Project name: Shougang No.1 Blast Furnace·SoReal Sci-Fi Paradise
Project type: Industrial building renovation, leisure and entertainment
Design: CCTN Design, Beijing Shougang International Engineering Technology Co., Ltd. (BSIET)
Website: www.acctn.com/www.bsiet.com
Contact e-mail: cctn@acctn.com
Design year: 2019.7-2020.3
Completion Year: The main building renovation was completed 2021.11. The internal mechanical and electrical fire protection was completed 2024.2 and began trial operation.
Leader designer & Team:
Leader designer: Hongtao Bo
CCTN Design Team: Hongtao Bo, Fanxing Meng, Rui Zhao, Qi Kang, Ji Lin
BSIET Team: Huixin Wu, Zhaocun Wang, Bole He, Yiming Li, Gang Chen, Jungang Li, Jing Song, Hongcheng Pan, Xilei Chen, Xuefei Wang, Jianyu Kang, Guopu Shang, Jiang Zhu, Qianqian Zhang, Xinyu Zhang
Project location: Shijingshan District, Beijing
Gross built area: 19,985㎡
Photo credit: CCTN Design, SKY LIMIT ENTERTAINMENT, ZHANG JIN Photography
Operator: SKY LIMIT ENTERTAINMENT
Interior/Scene Design: Shenzhen Jiutianlong Decoration Design Engineering Co., Ltd.
Special Fire Design: China Academy of Building Sciences Co., Ltd.
Construction: Beijing Shougang Construction Group Co., Ltd.
Clients: Beijing Shougang Construction Investment Co., Ltd.
Materials&Brands: Glass Curtain Wall – Tianjin CSG Architectural Glass; Zinc – Magnesium – Aluminum Alloy Sheet – Jiangsu Kaiter New
Composite Decor Materials ; Solid Aluminum Panel – Jin Sheng Aluminum Industry ; Revolving Door – Tianjin Chengxin Automatic Doors;Fire – rated Folding Door – Jiangsu Better Automatic Door














