东山西埔湾苑酒店,福建漳州 / 源境建筑设计
东山岛地处福建南部沿海要冲,拥有深厚的海洋文化底蕴。西埔湾苑项目坐落于岛西南角的前楼镇,原址为一处渔业仓库与管理中心。项目旨在通过打造岛上首个以滨海潜水为核心主题的度假酒店综合体,引入“旅游+体育”的新业态模式,推动在地产业结构的多元化升级,并在焕新海岸景观的同时,重塑深厚的场所记忆。
Dongshan Island, located at a crucial coastal crossroads in southern Fujian, has long been a thriving hub of maritime culture. The Dongshan West Bay Resort is sited on a decommissioned pier once home to Qianlou Town’s historic fishery center. The project re-imagines the former site of fishing warehouses as a coastal sanctuary, immersing its guests in the maritime geography and the panoramic seascape of southern Fujian. As Dongshan Island’s first diving-themed resort, the project is a cornerstone of the fishing town’s revitalization, pioneering a ‘tourism + recreation’ model that diversifies the local economy beyond its traditional roots.
▼酒店鸟瞰,Hotel Aerial View

▼村落中的滨海栖居,A Coastal Sanctuary Amongst the Village

▼邻近历史水产养殖片区的酒店,The Hotel Amongst the Historic Aquaculture Hub

▼栖居于渔村的酒店,Hotel Amongst the Fishing Village

▼酒店与海湾,An Interface Between Land and Sea

▼酒店立面与海浪的对话,A Dialogue with the Ocean Waves

项目核心设计挑战在于如何在有限用地内容纳多元功能,并平衡酒店居住的私密性与滨海空间的公共属性。设计以两组L型体量围合布局,明确功能分区:酒店客房与餐饮区布置于西南侧临海面,确保所有客房皆可饱览无垠海平面与日落胜景;潜水主题商业区则位于东北侧沿街面。围合的布局不仅能高效组织业态,更在中央庭院营造宜人微气候,有效缓解盛夏强烈日照与冬季凛冽海风的影响。
▼设计过程分析图,Process Diagram

The design navigates the challenge of a compact site by arranging two L-shaped volumes to create a sheltered courtyard configuration, protecting a central gathering space from the hot summer afternoon sun and the harsh prevailing hibernal winds from the east. 31 hotel suites and F&B areas are positioned along the southwestern coastline, ensuring that each room captures panoramic views of the sea and the sun-setting horizon. To the northeast, a nautical-themed commercial arcade animates the street front, weaving the project into the commercial and social fabric of the village.
▼晨光中的东立面,East Facade – Morning View

▼酒店西南角,Southwest Perspective View

▼公共观景堤防,The Public Pier

▼酒店东北视角,Northwest Perspective View

本次设计一改以往酒店将场地内海岸线“私有化”以标榜特色的做法,通过体块的错动与层叠退台,塑造出一系列开放共享的观景平台,将海景资源释放给岛民与游客,从而重构了滨海酒店与社区的关系。艺术装置的融入进一步点化了场所气质,营造出悬浮于海天之间的沉浸体验。
Departing from the conventional practice of seafront privatization, the hotel invites the entire community to experience the coastline through a series of multi-tiered, open-air viewing platforms. A public boardwalk weaves along the project’s perimeter to provide both residents and visitors shared access to the stunning sea views, thereby redefining the relationship between the coastal hotel and the surrounding community.
▼酒店入口,Hotel Entrance View

▼酒店前广场,Hotel Entrance Plaza

▼通向海岸线的洞穴,A Public Threshold Towards the Coastline

建筑立面的灵感源自海浪层叠翻涌之态,富有韵律的飘逸弧线形塑出起伏的天际线,与太平洋的潮汐律动相呼应。东北侧潜水塔则采用弧形穿孔铝板幕墙系统,以波光粼粼的视觉效果消解体块的厚重感;横向长窗如潜艇舷窗,将壮丽海景框入建筑内部。首层以岛上海蚀洞穴为意象,构建连续的拱形海景画框,引导公众在行进间沉浸于海洋文化的叙事氛围中。
The building’s facade draws inspiration from the rhythmic forms of the seascape. At ground level, a continuous arcade—reminiscent of the island’s sea-eroded caves—acts as a series of viewfinders to the ocean, guiding the public to engage with the ocean through their senses. Evoking the silhouette of local peaks, curvilinear triangles punctuate the hotel’s corridor walls, flooding hallways with northeastern light while directing gaze toward the distant mountain ranges. From a distance, the undulating skyline and sinuous balcony profiles echo the tides of the Pacific. On the northeastern side, a 24-meter diving tower is clad in a curved, perforated aluminum panel system, its rippling texture dissolving the monumentality of the pool’s concrete structure. Elongated oculus windows, reminiscent of submarine portholes, frame panoramic views towards the horizon.
▼竖向波浪铝板幕墙系统,Fluted Aluminium Cladding System

▼呼应海浪的流线型阳台,Sinuous Hotel Suite Balcony Detail

▼酒店前台,Hotel Reception

▼海景餐厅,Seafront Hotel Restaurant

▼对公众开放的观景平台,Viewing Deck Open to the Public

▼尊享双人海景套房,Executive Hotel Suite

▼家庭套房的海景视野,Ocean View inside the Hotel Suite

西埔湾苑不仅是一座为区域经济发展注入新动力的酒店,更是于在地文脉中植根,面向未来的一次全新表达。以建筑为媒介,激活沉寂的海岸线,连接陆地与海洋,重塑人、建筑与自然的关系。
By re-imagining industrial remnants as a public haven, the Dongshan West Bay Resort revitalizes a once-dormant coastline, transforming the island’s southwest edge into a new destination for ecological tourism and a renewed gateway into the Pacific. More than just hospitality, the hotel serves as a tectonic interface between land and sea, channeling the region’s maritime geography into a memorable architectural experience.
▼日落天际线与酒店,The Hotel Amongst the Sunset Horizon

▼客房与公众共享日落景观,A Shared Sunset View between the Room Guests and the Public

▼潜水塔舷窗式的观海窗口,The Diving Tower’s Porthole Windows

▼滨海公共栈道,Coastal Public Boardwalk

▼总平面图,Master Layout Plan

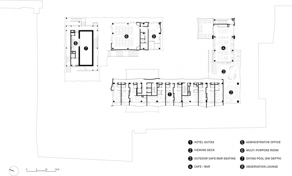
▼首层平面图,1F Floor Plan

▼二层平面图,2F Floor Plan

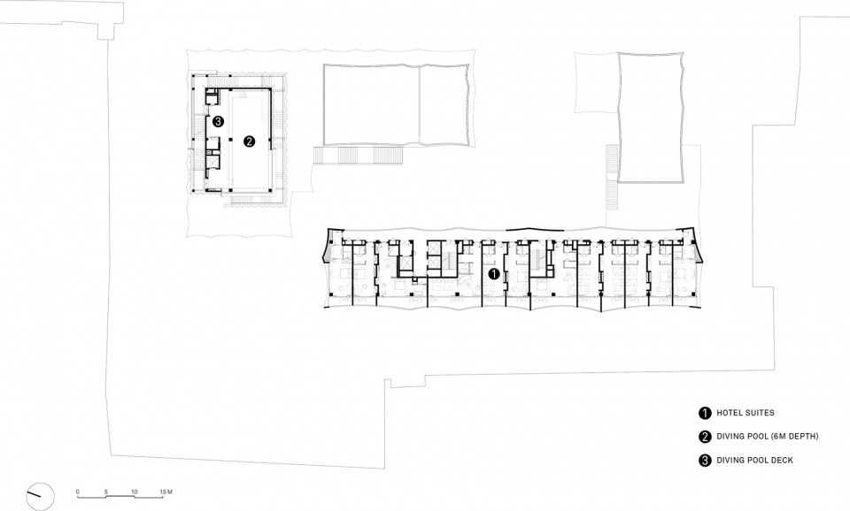
▼三层平面图,3F Floor Plan

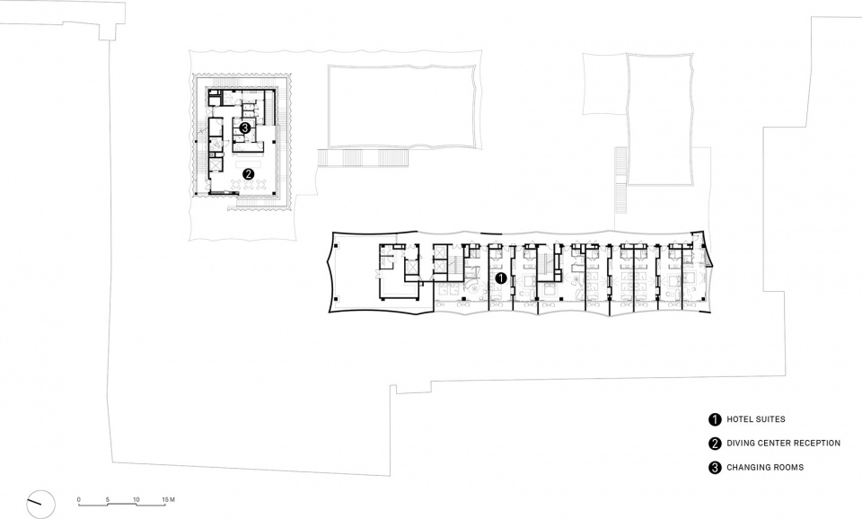
▼四层平面图,4F Floor Plan

▼剖面,Sections



Project name: Dongshan West Bay Resort
Project type: hotel
Design: Protoscapes
Website: http://www.protoscapes.com/
Contact e-mail: j.huang@protoscapes.com
Design year: 2023
Completion Year: 2025
Design Lead: Huang Jinhui, Chan Pakkin
Design Team: Qiu Bin, Hu Bin, Cai Zhijie, Chen Tianying, Lin Zhaoli, Liu Wanting
Project location: No. 188, Xialinwei, Dingshang Village, Qianlou Town, Dongshan County, Zhangzhou City, Fujian Province
Gross built area: 7813.45 ㎡
Photo credit: Arch-Exist Photography, Lin Yongchen
Partner: Fujian First Construction Group Fuzhou Construction Co., Ltd. (Construction Drawing Team & Construction Team), J Studio (Interior Lighting Consultant)
Clients: Dongshan Minxinan Southwest Cultural Tourism Development Co., Ltd.
Materials (Brands): Stone Effect Texture Coating (SKSHU Paint Co., Ltd.), Aluminium Panel (Guangdong Huatushi Building Materials Industrial Co., Ltd.), Glass (CSG Holding Co., Ltd.)














