伊巴泰大厦,巴西 / Studio Arthur Casas
伊巴泰大厦(Ibaté Building)由Studio Arthur Casas为开发商Cáucaso设计,位于巴西圣保罗São Paulo的Vila Nova Conceição社区一处街角地块。该区域处于城市高密度发展轴线与安静、以住宅为主的城市肌理之间的过渡带。这一独特的城市条件成为场地决策与建筑与周边关系塑造的关键基础,使项目既能回应大都市的垂直尺度,也能融入社区温和、有序的生活节奏。设计策略以空间品质与城市融合为核心,强调结构的清晰表达、材料的理性使用,并通过公共空间的塑造提升整体居住体验。
The Ibaté Building, designed by Studio Arthur Casas for the developer Cáucaso, is located on a corner lot in the Vila Nova Conceição neighborhood in São Paulo – a transition zone between the more densely built-up axis of the city and a residential, calm urban fabric. This urban condition was fundamental to the site’s decisions and the building’s relationship with its surroundings, allowing the project to engage both with the vertical scale of the metropolis and the gentler flows of the neighborhood. The design approach prioritizes spatial quality and integration with the urban environment, focusing on structural clarity, conscious use of materials, and enhancing common areas.
▼项目鸟瞰,Aerial-view of the project


▼沿街视角,Street-view of buiding


建筑结构完全外露。立面采用清水结构混凝土构成,不再附加任何饰面。肋状的表面肌理与温润的色调赋予建筑一种坚实而连续的整体形象,并成为垂直绿化的承载基础。植物景观被有机地整合进建筑体系之中,在视觉与热环境层面共同发挥调节作用。
The building’s structure is fully exposed. The facades are made of structural concrete, without cladding. With a ribbed appearance and warm pigmentation, the material creates a solid, continuous visual identity, serving as a base for vertical landscaping, which is organically incorporated into the architecture and acts as a thermal and visual moderator.
▼水结构混凝土立面,Structural concrete facade


▼植物景观发挥调节作用,Landscaping acts as a moderator

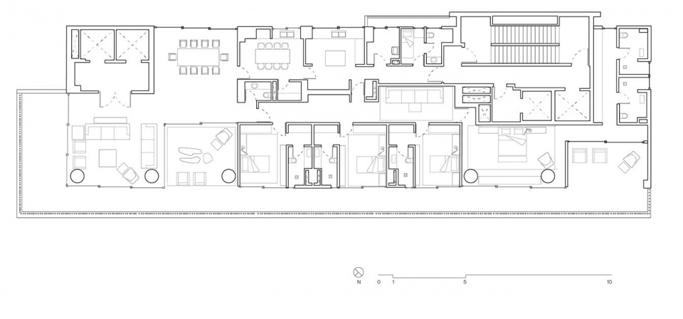
塔楼沿狭长地块纵向布置,标准层面积约为450平方米。每层仅设置一套住宅单元,清晰划分社交、私密与服务功能空间。垂直交通由两组电梯核心筒组织,所有住宅均实现对流通风,拥有面向室外的大尺度开口,并经过精细的日照朝向控制。正立面完全向连续露台打开,每户单元均设置环绕式外廊,并配置花槽。花槽在不同楼层交错变化,避免立面的机械重复,同时引入体量层次变化与自然遮阳效果。铝制栏杆配以黄铜色表面处理,并结合大面积玻璃窗,共同构成建筑的外立面体系。
The tower is placed on a longitudinal lot, with units organized in approximately 450 sqm floor plans. Each floor contains a single residential unit, clearly dividing the social, private, and service areas. Circulation is through two elevator cores, and all units are designed with cross-ventilation, large openings to the exterior, and careful solar orientation. The front facade is completely open to a continuous terrace, with perimeter walkways on each unit, featuring alternating planters that shift position on each floor. This modulation prevents repetition between floors, introducing volumetric variation and natural shading. Aluminum guardrails with brass finish and large glass windows complete the building envelope.
▼交错变化外立面,Shifting exterior

▼外立面细节,Exterior details


在首层,建筑与城市之间的过渡通过一处宽敞、无障碍的开放空间实现,辅以景观与家具布置。项目未采用传统的封闭式入口,而是以通透的玻璃“围合”构建一个面向城市的开放前厅,在强化透明性的同时,强调公共空间的集体属性。泳池、电梯厅以及由艺术家 Túlio Pinto 创作的耐候钢当代雕塑共同置于同一空间之中,呈现出艺术、休闲与交通功能在象征与使用层面的叠合。
At ground level, the transition between the city and the building is mediated by a generous, barrier-free area with landscaping and furniture. Instead of a traditional closing, the project proposes a glazed “enclosure”, working as an open antechamber to the city while reinforcing transparency and the collective nature of common spaces. The pool, elevator hall, and a contemporary sculpture in corten steel by Túlio Pinto share the same environment, suggesting a functional and symbolic overlap between art, leisure, and circulation.
▼透明的公共空间,Transparent public space

▼首层入口,Ground floor entrance


▼入口前厅,An open antechamber


室内延续了整体材料语言,通过大量使用混凝土、木材、玻璃以及暖色金属,保持空间表达的连续性。木饰面被用来隐藏技术性门扇,并引导室内流线。家具陈设精选了多位巴西现代与当代设计师的经典作品,包括Jorge Zalszupin、Carlos Milan、Marcelo Magalhães、Guilherme Wentz、Lattoog以及Arthur Casas本人设计的作品。其中的亮点包括+55design出品的Soft扶手椅,以及Herança Cultural的Square餐桌。
Inside, the material continuity is preserved with the extensive use of concrete, wood, glass, and metals with a warm finish. Elements like wood panels camouflage technical doors and organize the flow. The furniture curation includes pieces by renowned Brazilian modern and contemporary designers such as Jorge Zalszupin, Carlos Milan, Marcelo Magalhães, Guilherme Wentz, Lattoog, and Arthur Casas himself, with highlights like the Soft armchair (+55design) and the Square table (Herança Cultural).
▼室内家具布置,Interiro furniture layout


▼半户外空间,Semi-outdoor space

在可持续策略方面,项目整合了多项节能与环保措施,包括用于泳池加热的太阳能板、水资源再利用系统,以及电动车充电基础设施。对流通风设计与景观在热环境与视觉系统中的深度参与,进一步强化了建筑的环境效率。
Among the sustainable solutions incorporated, standout features include solar panels for pool heating, water reuse, and infrastructure for electric vehicle charging. Cross-ventilation and the integration of landscaping into the thermal and visual system further emphasize the environmentally efficient approach.
▼泳池,Pool


▼停车场,Parking lot

在这一项目中,对设计的关注贯穿于从城市尺度到细部层面的各个层级,旨在使建筑成为城市中一个持久而有机的组成部分。伊巴泰大厦通过结构、材料与功能之间的高度统一,形成了一种清晰而自洽的设计策略。其对城市景观的贡献体现在建构理性、空间尺度的慷慨,以及对场地语境的敏锐回应之中,尤其强调将混凝土作为一种完整的建筑语言,并作为连接建筑与景观共生关系的核心媒介。
In this project, attention to design spans all scales, aiming to make the building a permanent and integrated element within the city. The Ibaté synthesizes a design strategy where structure, material, and function are coherently articulated. Its contribution to the urban landscape lies in the combination of constructive rationality, spatial generosity, and a careful reading of the context, with a focus on using concrete as an integral architectural element and a support for a symbiotic relationship between architecture and landscape.
▼夜览,Nightview


▼总平面图,Master plan

▼户型图,Unit plan

▼剖面图,Section

Author Studio Arthur Casas
Project Manager Architecture Cadu Vilela
Project Manager Interiors Mariana Santoro
Project Manager Decoration Fabiola Andrade
Dates 2016-2025
Landscaping Renata Tilli
Land area 2162 sqm
Built area 21.082,02 sqm
Location Moema-São Paulo,SP,Brazil
3D Elephant Skin
Photos Fran Parente














