Orthoffice牙科诊所,俄罗斯 / Sulina Design
从一开始,业主对于打造一处现代化牙科诊所室内空间的愿景便激发了我们的设计灵感。他们希望营造一个不同于传统诊所的独特环境:在诊所内部引入共享办公区域,并为患者设置一处咖啡角。同时,业主也高度重视员工的身心福祉,因此我们为工作人员设计了可进行备餐、更衣以及配备舒适淋浴设施的功能空间。最终呈现的,是一处当代牙科诊所室内设计,重新定义了人们对牙医诊所乃至医院空间的固有认知。
From the outset, our clients’ vision for a modern dental clinic interior design sparked our inspiration. They sought to create a unique environment, incorporating a co-working area within the clinic along with a café corner for patients. Remarkably, they also prioritized their staff’s well-being, so we designed spaces equipped for meal preparation, changing, and comfortable showers. The result was a contemporary dental clinic interior design that redefined the traditional perception of a dentist’s office or hospital.
▼项目概览,Aerial-view of the project


▼主入口接待区,Main reception area


▼诊室前等候空间,Waiting area before treatment rooms


▼流动的空间尺度,Activating spatial perception


设计的核心理念在于为空间引入一种“非完美”的状态,以打破人们对传统诊所冰冷、无菌的刻板印象,并将舒适性置于首位。通过多种不同的抹灰工艺手法,空间在统一中呈现出变化,避免了单调的重复节奏。每一个空间不仅拥有独特的视觉表达,也具备各自不同的触感体验,使整体环境在观赏与触摸层面都富有吸引力。
Our core idea was to introduce to the design some imperfections to avoid the classical sterile clinic associations and to prioritize comfort. By using a range of approaches to applying plaster we brought the space together without cyclicity. Each space acquired not only its unique look, but also its own tactile features. It became something that was interesting both to look at and touch.
▼空间的变化,Change of the space


▼非正式交流空间,Informal social space


▼独立会谈空间,Private meeting room

▼诊室,Clinic room

在设计过程中,团队充分考虑了患者的实际需求,使每一处等候空间都适合工作使用,例如在各个候诊区均设置了电源插座。一层空间的视觉重点是一座通往屋顶的靛蓝色螺旋楼梯,员工可在夏季于屋顶休憩放松。楼梯被一圈明亮的“光之门廊”所框定,塑造出一种独特而略带神秘感的标志性形象。
Our designers have considered the patients’ needs, making each waiting zone suitable for work with such nuances as sockets available in every hall. The key accent we created for the first floor was an indigo-coloured spiral staircase to the rooftop, where the employees could take a break and relax in the summer. The staircase was framed with a light portal, which created a unique and enigmatic signature look.
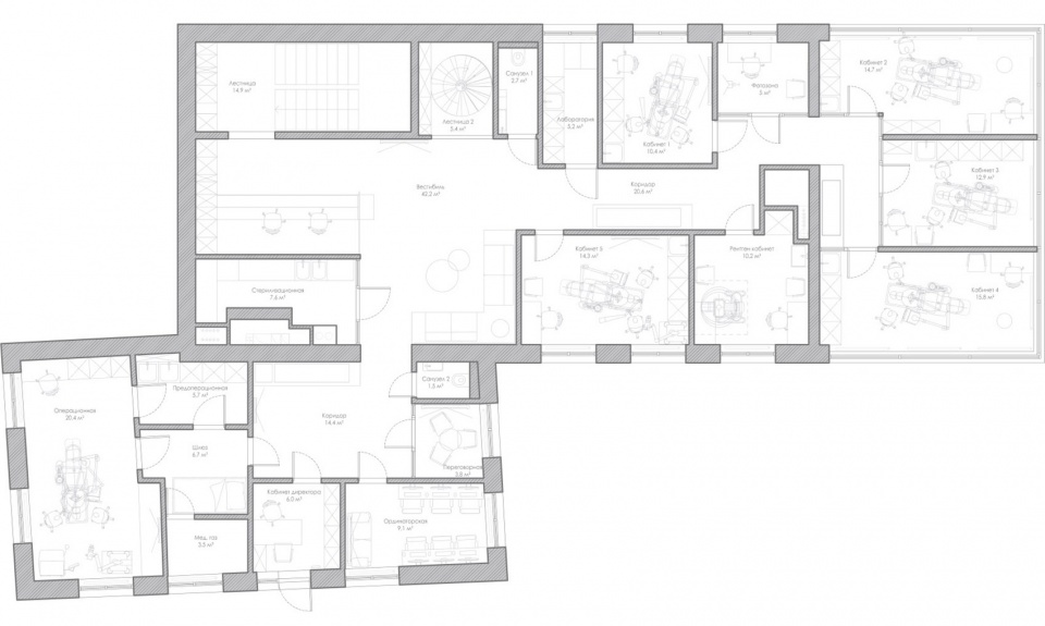
▼一层平面图,First floor plan

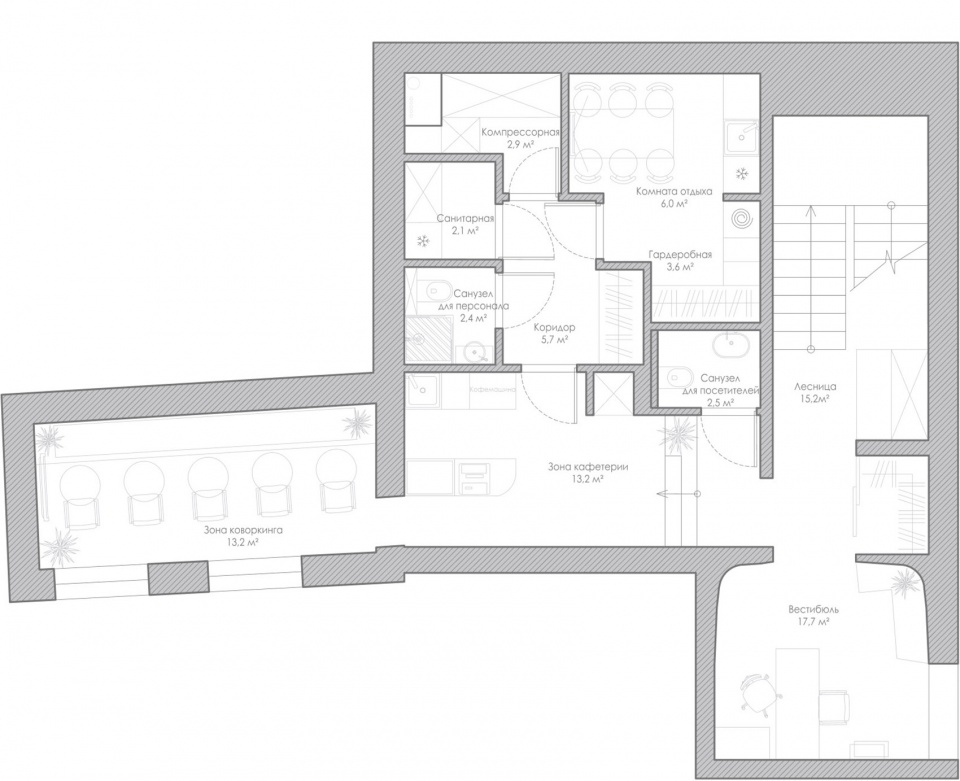
▼二层平面图,Second floor plan

Project Name: Orthoffice
Design: Sulina Design
Styling: Sulina Design
Photographer: Inna Kablukova














