弗朗什-孔泰高级工程学院(ISIFC),法国 / Dominique Coulon & Associés
法国弗朗什-孔泰大学创建于600年前,如今汇集了分布在六座城镇与城市中的多所院校。布卢瓦—特米斯(Bouloie-Temis)校区位于法国城市贝桑松的西北部,构成了一处卓越的建筑场所,将19世纪的历史性纪念建筑与20世纪60年代的理性主义建筑并置融合。该校区也是大学规模最大的综合园区。
The University of Franche-Comté, France, was founded 600 years ago. Today, it brings together institutions in six towns and cities. The Bouloie-Temis campus lies in the north-west of the French city of Besançon. It forms a remarkable architectural site that combines a 19th-century historical monument with rationalist architecture of the 1960s. It is the university’s largest complex.
▼建筑外观概览,Building exterior overall view


▼建筑立面,Building façades


▼建筑立面近景,Building façades close view



▼内庭花园与环廊,Courtyard garden with surrounding circulation

为弗朗什-孔泰高级工程学院(ISIFC)建设新建筑的设计,属于一段长期的结构与社会转型进程。贝桑松市政府意识到主校区年久失修的问题,并希望为城市打造一个重要的教学与科研枢纽,因此启动了一项现代化更新计划,目标是在2027年前以可持续方式新建或翻新共计40,000平方米的建筑面积,其中多达2,000平方米将用于技术相关空间。
▼功能布局、入口连续性与生物气候策略示意,
Programme layout, entrance continuity and bioclimatic strategy diagrams© Dominique Coulon & Associés

The design of new buildings for the Franche-Comté Advanced School of Engineering (ISIFC) is part of a long story of structural and social transformations. The city council of Besançon was aware of the disrepair of its main campus and was driven by a desire to give its city a major hub for teaching and research. So it began a modernisation project that aimed to create or renovate 40,000m2 of buildings sustainably by the year 2027. As much as 2,000m2 of this floor area would be dedicated to technology.
▼室内公共区域,Interior common space



▼混凝土内庭与斜射日光,concrete inner courtyard with angled sunlight

▼可折叠隔墙打开后的阶梯教室,Lecture hall with folding partitions opened

▼阶梯教室概览,Panoramic view of the lecture hall



▼隔墙打开后阶梯教室向外看,Lecture hall with partitions opened towards outside

▼教室内部,Classroom interior


▼茶水间内部,Pantry interior


▼橙色共享空间与夹层玻璃盒,
Orange common room with glazed mezzanine


▼夹层视角俯瞰共享空间,Mezzanine view over the common room

▼共享空间与夹层视窗,Common room with mezzanine window

ISIFC承担着培养未来生物医学工程师的教学与培训任务。为应对不断增长的人员规模以及来自产业界的强烈需求,学院亟需新建建筑以实现师生人数的翻倍。其毕业生能够参与临床研究,并设计用于诊断、治疗及医疗辅助的各类设备。
▼教学空间的多种使用模式示意,
Diagrams of flexible teaching space configurations

The ISIFC teaches and trains future biomedical engineers. It needed new buildings to double its number of people and support a strong demand from industry. Its graduates are able to design devices for diagnosis, treatment and medical assistance and take part in clinical research.
▼室内交通空间,Circulation space




校园更新同样扎根于当下时代:它将成为城市中的一片“会呼吸的”绿色绿洲,为贝桑松提供65,000平方米的景观公园用地以及1,000平方米的公共温室。这一“公园式校园”由景观事务所Altitude 35设计,作为环绕城市的森林在物理与生物层面上的延伸。校园内部以可持续交通方式为主要出行手段,植物配置的选择既旨在保护并彰显场地卓越的自然遗产,也充分考虑了全球变暖的背景。
The campus renovation is rooted in its era as it will also be a breathing oasis of natural greenery for the city and will offer 65,000m2 of landscaped parkland and 1,000m2 of public greenhouses. This “parkland campus” was designed by the landscaping firm Altitude 35 as a physical and biological extension of the woods that surround the city. You get around it using sustainable transport. The choice of plants was made to preserve and showcase the site’s remarkable natural heritage and take global warming into account.
▼走廊空间,Corridor




新校园的设计旨在支持教师与学生实践方式的转变。学术群体、企业以及当地居民都将被邀请在这些友好的公共空间中交流互动,或参与体育与文化活动。同时,这里也将提供户外工作的可能性,以及设有一家团结互助型食品杂货店。通过多条景观化的连接路径与新的交通联系,城市与校园在此融为一体。
The new campus was designed to support changes in practices among lecturers and students. The academic community will be invited as much as firms and local inhabitants to meet up in these convivial spaces or enjoy sporting or cultural events here. They will also have the possibility of open-air work here and of shopping in a solidarity grocery. The city and the campus merge into one here thanks to several landscaped connections and new transport links.
▼总平面图,Site plan

▼首层平面图,Ground floor plan

▼二层平面图,First floor plan

▼三层平面图,Second floor plan

▼屋顶平面图,Roof plan

▼剖面图,Section


▼立面图,Elevation


Contracting owner: Grand Besançon Métropole
Project manager: Dominique Coulon & Associés
Architect: Dominique Coulon
Competition supervision: Sophie Georgel, Manon Genevois
Project supervision: Mathilde Blum, Steve Letho Duclos, Blandine Kuntz, Jean Scherer
Worksite supervision: Hugues Villiaumey
Engineering consulting firm for structure: Batiserf Ingénierie
Engineering consulting firm for electricity and fire safety systems coordination: BET Gilbert Jost
Engineering consulting firm for fluids and environment: Solares Bauen
Engineering consulting firm for geotechnical engineering: ECR Environnement
Economics: E3 Économie
Acoustics: DB Silence
Perspectives: ArtefactoryLab
Scheduling, Oversight and Coordination: PMM Conseil
Health and Safety Coordination: Socotec
Planning: Alphaville
Inspection: Alpes Contrôle
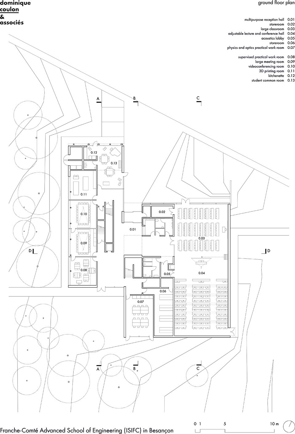
Programme: 355m2 adjustable hall (143m2 lecture hall with 100 seats and 212m2 conference hall with 150 seats), 13 classrooms, optics practical work rooms, prototyping room, 3D printing room, student common room, administrative offices.
Location: 51 avenue de l’Observatoire, 25000 Besançon, France
Google Maps Location
Floor area: 2,105m2 (total floor area)
Cost: €5,420,000 excl. VAT
Schedule:
Competition: January 2020
Studies: June 2020 to March 2022
Project execution: July 2022 to December 2024
Firms: Dromard (earthworks, landscaping, parkland, outdoor drainage), Albizzati (building shell, polished concrete floors, indoor drainage), ERTCM (metal frameworks), SMAC (roofing, watertightness), Druet (external aluminium door and window frames, glazing, sun protection), Tecnibat (partitioning, lining, ceilings), Ingénierie Bois Noroy (internal timber door and window frames, signage, furniture), Remy (locks), Tecnibat (indoor paintwork, end-of-project cleaning), Schindler (lift), Eiffage Énergies (electrics – strong and weak currents), EIMI (heating, ventilation, air-conditioning), EIMI (plumbing, sanitary installations), ACT 2 (lectern fittings in lecture and conference hall)
Photographs: Eugeni Pons














