LAGO别墅,西班牙 / FRAN SILVESTRE ARQUITECTOS
本项目提出了一种与花园深度交织的建筑策略,通过最大化建筑与景观的接触界面,消解建成空间与自然之间的边界。在马德里拉·莫拉莱哈这一语境中,这种对环境关系的强调尤为重要。设计刻意摒弃紧凑的体量形式,转而采用向上延展的布局结构,呼应阿尔法罗(Alfaro)部分作品中所呈现的空间姿态。项目试图调和一种看似对立的特质:几何的精确性与有机的自然感。其构造虽严谨克制,却在感知层面呈现出一种仿佛自然生长、偶然落位的状态。
A proposal is made for an architecture that intertwines with the garden, maximizing the perimeter of contact with the landscape and dissolving the boundaries between the built and the natural. In this area of Madrid, that relationship with the surroundings acquires a singular value. To achieve this, a compact volumetry is deliberately abandoned in favour of an ascending layout that evokes certain works by Alfaro. The project aspires to resolve a dichotomy: to be both geometric and organic. Although its structure is precise, the inhabitant perceives it as something natural, almost as if it had settled into the place in an apparently random way.
▼鸟瞰,Bird’s eye view


▼半鸟瞰,half-aerial view


▼外观概览,Exterior view


▼虚实对比,volume


建筑融合了两种原型:作为开放、向外延展空间的“亭”,以及更为内向却依然露天的“庭院”。设计灵感部分源自格伦·默卡特(Glenn Murcutt)与斯蒂芬·贝尔(Stephane Beel)等人在狭长平面中对室内外关系的处理方式。各功能体量以大半径曲线生成,形成纵向贯通的线性构件,并通过并置关系优化空间流线。由此,五个具有独立气质的花园被建筑布局自然界定——它们既是庭院,也是开放的景观空间,持续激活建筑内部与外部之间的视觉与感知联系,并为未来生长的大尺度植被预留时间与空间。
The project combines two ancestral archetypes: the pavilion, understood as an open and centrifugal space; and the courtyard, conceived as a more sheltered yet open-air domain. We have always been fascinated by the relationship with the exterior in some elongated-plan projects by Glenn Murcutt and Stephane Beel, among others. The pieces are configured as longitudinal, through-running elements, obtained by means of a large-radius curve. These bodies are juxtaposed to optimise circulation. From this interplay emerge five gardens with their own identities —almost open courtyards— defined by the disposition of the architecture. Each offers a particular atmosphere and multiplies visual relationships, ensuring that the exterior is always an active presence in the experience of the whole. They are spaces prepared to host the large-scale plant species that will arrive over time.
▼外观,exterior view


▼外观近景,closer view of exterior


▼向外延展空间的“亭”,pavilion that extends outward into space

▼近景,closer view of exterior


▼室外泳池,outdoor pool


▼廊下空间,gray space



功能组织顺应这种上升逻辑展开:底层布置游泳池与客房;中层为面向湖景展开的公共起居空间;最高层则集中夜间功能,形成一条“桥”式体量,其下方生成宽阔而连续的遮阴露台。不同体量的交汇处设置交通核心,不仅串联起各层空间,也进一步强化了建筑与地形、景观之间的连续关系。
The programme is organised according to this ascending logic. On the lower level are the swimming pool and guest rooms; above it unfolds the day area, oriented towards the nearby view of a lake; and at the highest level are the night spaces, gathered into a single piece that acts as a bridge and generates beneath it a wide shaded terrace. At the point where the different pieces converge lies the communication core, which articulates the levels and reinforces the continuity between architecture and landscape.
▼“桥”式体量,single piece that acts as a bridge


▼灯光效果,lighting effect


▼模糊的室内外界限,blurred exterior and interior boundaries

▼餐厅,dining area

▼客厅,living room

▼厨房,kitchen

▼二层空间,upper floor space

▼由室内看露台,viewing the terrace from interior

▼浴室,bathroom

▼走廊,hallway

▼天窗,skylight


▼明亮的空间氛围,bright space ambiance

▼光影,light and shadow

▼光影,light and shadow

▼明暗对比,contrast between light and dark

▼室内泳池,indoor pool

最终,项目回归到建筑中最为基础而恒久的命题——比例。正是通过对构件宽度与尺度的精确控制,空间关系得以成立,不多不少,恰如其分。
Ultimately, the project is born from something as ancient as it is essential in architecture: proportion. It is through a meticulously calibrated width of the elements that the desired spatial relationship is achieved. Nothing more and nothing less.
▼夜景鸟瞰,aerial night view

▼夜览,night view


▼夜览细部,detail of the night view

▼模型,model


▼总平面图,site plan

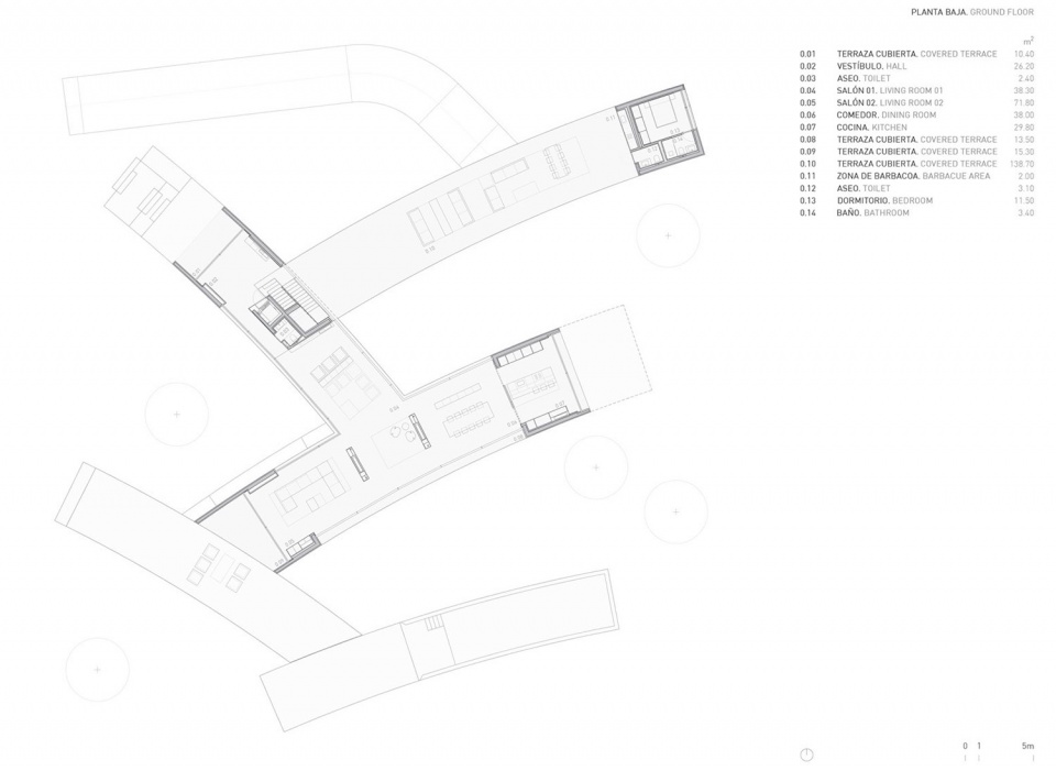
▼首层平面图,ground floor plan

▼二层平面图,first floor plan

▼地下平面图,basement floor plan

▼立面图,elevations

▼剖面图,sections

VILLA LAGO, LA MORALEJA
LA MORALEJA, MADRID, SPAIN
ARCHITECTURE FRAN SILVESTRE ARQUITECTOS
PROJECT TEAM Fran Silvestre | Principal in Charge
María Masià | Collaborating Architect
Estefania Soriano | Collaborating Architect
Carlos Lucas | Collaborating Architect
INTERIOR DESIGN ALFARO HOFMANN
DEVELOPER 37 THREESEVEN
TECHNICAL ARCHITECT Jorge Carrión Ponce
José Miguel Cota San Andrés
STRUCTURAL ENGINEER: Estructuras Singulares
PHOTOGRAPHER: Fernando Guerra
VIDEO: Jesús Orrico
GENERAL CONTRACTOR: Project Work
COLLABORATORS
Pablo Camarasa | Collaborating Architect
Ricardo Candela | Collaborating Architect
Sevak Asatrián | Collaborating Architect
Javi Herrero | Collaborating Architect
Facundo Castro | Collaborating Architect
Anna Alfanjarín | Collaborating Architect
Laura Bueno | Collaborating Architect
Toni Cremades | Collaborating Interior designer
Susana León | Collaborating Architect
David Cirocchi | Collaborating Architect
Neus Roso | Collaborating Architect
Nuria Doménech | Collaborating Architect
Andrea Raga | Collaborating Architect
Olga Martín | Collaborating Architect
Víctor González | Collaborating Architect
Pepe Llop | Collaborating Architect
Alberto Bianchi | Collaborating Architect
Andrea Blasco | Collaborating Interior designer
Laura Palacio | Collaborating Architect
Carlos Perez | Collaborating Architect
Jovita Cortijo | Collaborating Architect
Claudia Escorcia | Collaborating Architect
Diana Murcia | Collaborating Architect
Olga Fernández | Collaborating Interior designer
Daniel Fenollosa | Collaborating Architect
Andrés Marín | Collaborating Architect
Álvaro Navarro | Collaborating Architect
Diana Chilingaryan | Collaborating Architect
Maria Barberá | Collaborating Architect
Roberto Marañón | Collaborating Architect
Ana de Pablo | Financial Manager
Sara Atienza | Marketing Manager
Valeria Fernandini | Financial Department
José María Ibañez | Business developer CCG y México
Andrea Álvarez | Marketing & PR
Néstor Bolinches | Business Developer
LOCATION La Moraleja, Madrid
YEARS OF CONSTRUCTION 2022 – 2024
BUILT AREA: 1106 m2
PLOT AREA: 3066 m2
PRODUCT TYPOLOGY: Single-Family Home














