五里关麓坊店,四川成都 / 凡筑ArchFAN
项目背景 Project Background
川渝人爱火锅,火锅蕴含着乐观的共存之道——兼容并蓄,给我“都倒下去煮”;体谅尊重,请你“油碟自己打”。成都满大街的火锅店,每一家的红油锅底都在翻滚,每一家的毛肚儿都在七上八下。“五里关火锅”是当中的佼佼者,其环境、菜品、锅底、小吃都具有自己特色,吸引着广泛的新老食客,无论中午还是晚上,总是一座难求。五里关开在老城区的店铺环境是一种混合的地方风貌:旧木、水泥、青砖、红砖、石板、石灰等等传统的地方材料拼接运用,老板相信这种风格对店铺的经营具有非常积极的作用,于是在新城区的新店设计中坚持延续这种风格。店铺商家和新店所属商业体的风格产生冲突:自发的地方风貌和被规训的现代样式之间的冲突。商业体运管方对店铺外部风貌具有较强的管控意识,商家提供的改造装修申报方案中,过于地方性和风格化的外部空间设计不被允许实施。我们在这个时间点介入项目,任务是重新设计五里关麓坊店的外摆,需要适应整体街区风貌,同时得到店铺商家的认可。
▼五里关老店的外摆和室内档口,
Outdoor seating and interior stalls of the original Wuliguan restaurant

People in Sichuan and Chongqing are passionate about hot pot, a dish that embodies an optimistic philosophy of coexistence—inclusiveness, as reflected in the spirit of “Just throw everything in to boil together”; and mutual respect, exemplified by “Prepare your own sesame oil dip.” Chengdu’s streets are lined with hot pot restaurants, where red oil broths simmer vigorously and beef tripe is blanched “seven times up and eight times down” (a traditional cooking method for tender tripe). Among these, Wuliguan Hot Pot stands out as a standout brand, renowned for its distinctive ambiance, dishes, broths, and snacks. It attracts a wide base of loyal and new customers, making it hard to secure a spot whether for lunch or dinner. The ambiance of Wuliguan’s old-town locations blends local architectural styles, incorporating traditional regional materials such as reclaimed wood, concrete, bricks, stone slabs, and lime. The owner believes this aesthetic plays a pivotal role in the restaurant’s success, so they insisted on preserving it for the new shop in the new urban area. However, a conflict arose between the restaurant’s desired style and that of the commercial complex housing the new location: a clash between spontaneous local charm and regulated modern design. The property management maintains strict control over external storefront aesthetics, rejecting the restaurant’s initial renovation proposal for its overly regional and stylized exterior design. We stepped in at this juncture to redesign the outdoor seating area of Wuliguan’s Lufang Branch, tasked with aligning it with the overall streetscape while gaining the owner’s approval.
▼与广场贴合的构筑边界,Plaza-aligned structural boundary

▼与街道贴合的构筑边界,Street-aligned structural boundary

▼构筑与建筑的尺度互补,Scale interplay between structure and building

氛围 | 搭棚的大排挡 Ambiance | Stall-style Dining under Canopies
新建的城区和街道,整洁、明亮而又精致,摒弃了自发、无序、混杂的市井状态,也就因此丧失了一些生活的气色。这种结果可能是城市化进程的必由路径,但并非自下而上个体生活的必然抉择。设计希望借着完成商铺外摆功能的契机,在有限的条件和界面以内,尽力去实现一个兼容、灵活的场所;让新建的商业体增加一个吞吐的气口;形成一组有趣的城市片段。
▼改造生成分析图,Renovation generation diagram

New urban districts and streets are often tidy, bright, and refined, but in shedding the spontaneous, disordered, and mixed qualities of street life—thus losing some vitality of daily life.. This outcome may be an inevitable part of urbanization, but it is not necessarily the choice of grassroots daily life. Through designing the outdoor seating area, we aimed to create a compatible and flexible space within limited conditions, adding a breathable interface to the commercial complex and forming an engaging urban vignette.
▼搭棚的大排档,Stall-style dining under canopies

▼沿街近人尺度的伞棚,Street-facing human-scale canopies

我们采用“搭棚棚的大排档”作为设计意向,想要以此唤起对市井氛围的场所记忆。小尺度连续折叠的三角形伞棚,与大体量堆叠的建筑体形成对话,体量和尺度的压缩,带来更近人的感受。室外构筑物分为有顶和无顶两部分空间。有顶空间立面开敞,夏冬两季增设临时塑料围挡作为气候分隔。无顶空间各面都开敞,是场所限定的框架构筑物,荷载设计上考虑了加建屋面板的余量,根据未来的发展可灵活搭设。采用型材搭接使得构筑具有“临时”物的气质,有顶和无顶的两组构筑物之间产生对话,给人架子还在搭建中的“未完成”印象,传达出市井中即兴、松弛的节奏。
We adopted the concept of a “Stall-style Dining under Canopies” to evoke memories of vibrant street life. The small-scale, continuously folded triangular canopies contrast with the large, stacked building volumes, creating a more intimate human scale through compression. The outdoor structure is divided into covered and uncovered spaces. The covered area features open facades, with temporary plastic enclosures added seasonally, while the uncovered area is open on all sides, serving as a frame defining the area; its load-bearing design allows for future roof panel installation, enabling flexible expansion. The use of prefabricated steel sections gives the structure a “temporary” feel, and the dialogue between the covered and uncovered parts creates an impression of ongoing construction, conveying the improvised, relaxed rhythm of street life.
▼连续的折叠三角伞棚,Continuous folded triangular canopies

▼型材搭建的“临时”感,Temporary quality of profiled steel structure

使用 | 对街道和经营的考虑 Performance| Streetscape and Operations
街道环境的公共议题和个体经营的专属性,两者存在先天矛盾。前者指向共享、开放、统一有序,后者期望独立、围合、个性鲜明。我们相信在重塑街道魅力的过程中,真正具有活力的街区,或是具备长期发展考虑的社区店铺经营者,都不会仅仅执迷于地面界限的拉扯。更好的答案是在街道和经营之间找到平衡,从空间使用到身体感受上,达到恰当的融合。我们是在设计店铺的外摆、立面、门头;同时也在设计街道和生活。
▼独立档口和打开的立面,Independent stalls and opened façade

There is an inherent conflict exists between the public nature of street environments and the exclusivity of individual businesses: the former emphasizes sharing, openness, and uniformity, while the latter seeks independence, enclosure, and distinctiveness. We believe that in revitalizing street charm, truly vibrant neighborhoods and community business owners with long-term visions will not fixate on disputes over ground boundaries. Instead, the optimal solution lies in balancing street publicness and business needs, achieving seamless integration in both spatial use and sensory experience. In designing the restaurant’s outdoor seating, facade, and entrance, we are also designing the street and daily life itself.
▼伞棚下的门头,Entrance signage beneath canopy

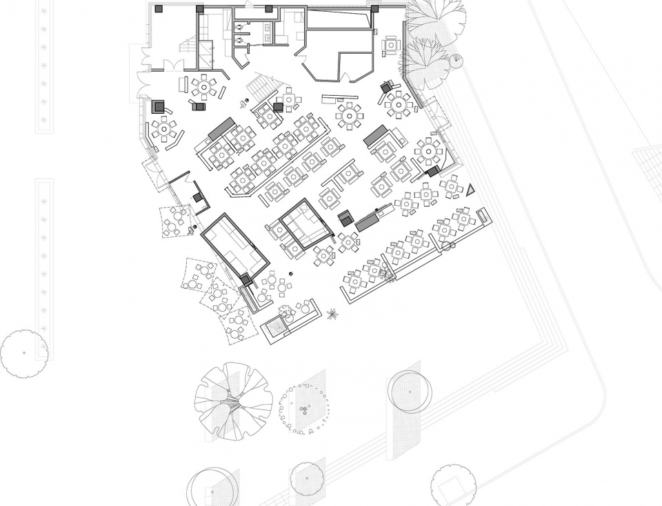
外摆区域的边界根据总平面建筑边线偏移得出,拥有密切的场地契合关系,其范围大小根据预估人流量划定,以满足高峰时期等候、就餐的要求。等候区域与街道相融,过客动态人流可以穿行于等候区域的食客静态人流之间,传递出好像市集一样混杂纷繁的感受。等候区域细分为三个小范围:端部为开敞的坐凳等候区;中部为开敞的站桌等候区;另一端是与入口、外摆就餐区临近的半开敞卡位等候区。不同的室外家具布置方式:散座、站靠、卡座,针对相对细分的行为模式和人群。卡座优先提供给带老人和小孩儿的客人,散座提供给排号靠后需要久等的客人,倚靠的桌板提供给想要站一会儿或者排号临近的客人。不同的行为模式形成更加丰富的活动场景,让等候看上去不那么单调和被动。外摆就餐区处于有顶、立面半围合的区域,我们对这部分相关的布局做了两个微调:1、外摆的6张餐桌旋转后正交于建筑边界摆放,将以前的4人位调整成6-8人位的半卡座,增强了经营的灵活性;2、打开原有建筑幕墙边界,设计了一个室内外的过度就餐区,以整面拉通的折叠窗作为灵活分隔,将室内外的经营空间联系起来,串联成更饱满的大排档场景。
The boundary of the outdoor seating area is offset from the building’s main facade, ensuring close integration with the site. Its size is determined based on projected foot traffic to accommodate waiting and dining during peak hours. The waiting area merges with the street, allowing dynamic pedestrian flow to intersect with static waiting customers—creating a bustling, market-like atmosphere. The waiting area is divided into three zones: an open bench seating area at one end, an open standing table area in the middle, and a semi-enclosed booth waiting area near the entrance and outdoor dining zone. Different outdoor furniture configurations—loose seats, standing counters, and booths—cater to diverse behavioral patterns and customer groups: booths are prioritized for families with elderly members and children, loose seats for customers with longer wait times, and standing counters for those waiting briefly or approaching their turn. These varied configurations enrich the activity scenarios, making waiting less monotonous and passive. The outdoor dining area is located in a covered, semi-enclosed space with a partial facade. We made two subtle adjustments to its layout: 1) Six outdoor tables were rotated to align orthogonally with the building boundary, converting the original 4-seat tables into 6-8-seat semi-booths to enhance operational flexibility; 2) The original building curtain wall boundary was opened up to create a transitional indoor-outdoor dining area, with full-length folding windows serving as flexible dividers. This connects the indoor and outdoor operational spaces, forming a more cohesive open-air stall scene.
▼饮料甜品档口及散座等候区,Beverage & dessert stall with loose seating

▼站靠等候区,Standing waiting area

五里关火锅过去的店铺将小吃、甜品作为特色来经营,会设置独立的档口作为展示窗口,以此烘托室内气氛。新店延续了这种布置方式,我们提供的方案在此基础上做了微调:1、将原设计的异形档口,调整成矩形规则档口,并旋转角度,使两个档口正交于建筑柱网轴线体系,让视觉感保持丰富而不混乱,形成更加有效的入口格局;2、档口脱离开建筑的原始混凝土柱子,形成更单纯的体量,使独立档口的概念更加分明;3、长方体档口较大面对外,独立的档口在可行的范围内尽量向室外方向移靠,介入街道空间,明档四面为敞开或可开启界面,提供最大限度的开放性。通过这些细微的调整动作,使饮料甜品档、小吃档像是从店铺主体分裂出来的新细胞,成为街道上的两个独立小店,体量和尺度的变化丰富了沿街空间效果。独立的档口服务于店铺就餐区,同时服务于等候区和到店自提的外带功能,为“等待”或者“路过”的场景提供了颇具既视感的消费摩擦面。
Wuliguan Hot Pot has traditionally featured snacks and desserts as signature offerings, with independent display counters to enhance the indoor ambiance. The new outlet continues this tradition with minor refinements: 1) The originally irregular counters were redesigned into regular rectangular shapes and rotated to align orthogonally with the building’s column grid, ensuring a visually rich yet uncluttered entrance layout; 2) The counters were detached from the building’s original concrete columns to form more distinct volumes, reinforcing the concept of independent stalls; 3) The larger faces of the rectangular counters face outward, and the stalls are positioned as far outdoors as feasible to engage with the street space. The open or operable interfaces of the display counters maximize openness. These subtle adjustments transform the beverage/dessert and snack counters into “new cells” split off from the main restaurant—acting as independent small stalls on the street. Variations in volume and scale enrich the street-facing spatial effect. The independent counters serve not only the indoor dining area but also the waiting area and takeout customers, creating a tangible consumption interface for “waiting” or “passing by” scenarios.
▼室内空间,Interior space


▼厨房区域外观,Kitchen area exterior


建造 | 伞棚的构成 Construction | Composition of the Canopies
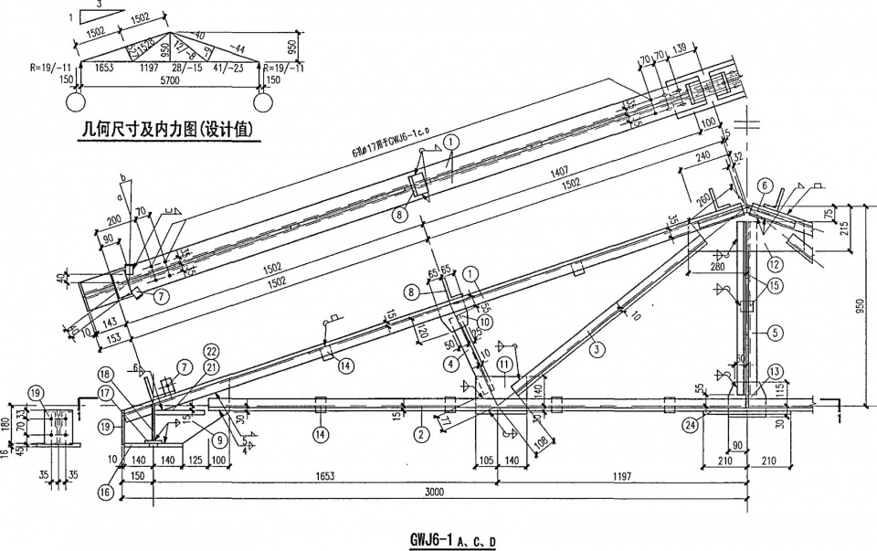
伞棚采用型材制作骨架,包括H型钢和角铁,屋面采用镀锌铁板敷设。所采用的型材相比矩管而言,视觉上更加轻巧。构造上参考传统厂房大空间常用的“轻型屋面三角形钢屋架”,据此基本构成进行深化设计,有色油漆喷涂下的传统建构方式,或许能够令人产生记忆闪回,去响应项目设计之初,商家关于经营场所风貌方面的展望。
▼伞棚的构成,Canopy structural composition

▼参考作法《05G517轻型屋面三角形钢屋架》,
Reference: Lightweight triangular steel roof truss (05G517)

▼局部节点图,Detail node diagram

The canopies feature a framework made of profiled steel, including H-section steel and angle iron, with galvanized iron sheets for the roof. Compared to rectangular tubes, the selected profiles appear visually lighter. The structure draws inspiration from the “lightweight triangular steel roof trusses” commonly used in large-span traditional industrial buildings, with further refinements to the basic design. The traditional construction method, finished with colored paint, may evoke nostalgic memories—responding to the owner’s initial vision for the restaurant’s ambiance.
▼镀锌板屋面板,Galvanized roof panels

▼镀锌板屋面板直立锁边,Standing seam galvanized roof panels

▼搭棚的大排档夜景,Stall-style dining under canopies night view



▼“未完成”印象,Intentional unfinished expression


▼三角形钢屋架夜景,Triangular steel roof truss night view

▼小吃档口夜景,Snack stall night view

▼室外客座区夜景,Outdoor dining area night view

▼三角形钢屋架夜晚近景,Triangular steel roof truss close view at night

▼室内空间夜景,Interior night view


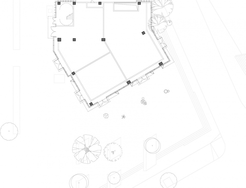
▼建筑原始平面,Original building plan

▼前期设计平面图,Early-stage design plan

▼实施设计平面图,Final construction plan

Project Name: Green Canopies by Street | Wuliguan Lufang | ArchFAN
Project Type: Renovation and Interior
Location: Lufang Phase II, Chengdu, Sichuan
Design Unit: ArchFAN | Chengdu ArchFAN Architectural Design Co., Ltd.
Lead Architect: Zhong Zixun
Design Team: Chen Dongxu, Wei Yinggang, Tan Jingjing
Design Period: September 2023 – October 2023
Construction Period: November 2023 – January 2024
Structural System: Steel Structure
Site Area: 120 square meters
Construction Cost: 300,000 RMB
Architectural Photography: Arch-Exist Photography
Collaborator: Huo Gen (Structural Design)
Client: Chengdu Wanhua New Town Development Co., Ltd., Wuliguan Hotpot
Materials: Steel, Galvanized Sheet, Brick














