阿那亚金山岭百米粒,河北 / ATLAS 工作室
围火而聚Gathered Around the Fire
百米粒是一家历经由北京到大理的湘菜馆,主打温馨适口有品位的创意菜系,本次落地河北承德金山岭,建筑方案以“围火而聚”为叙事主题,将古老仪式重新诠释为现代审美,以令人升起温暖感受的原木拼贴,调和山居生活的寂闲清冷,打造富有社区感、烟火气的亲民餐饮体验。
Nice Rice a Hunan creative cuisine establishment that has journeyed from Beijing to Dali before taking root in Chengde’s Aranya Golden Mountain. Now, the restaurant’s theme of Gathering Around the Hearth—a primordial ritual reimagined for contemporary sensibilities—creates an intimate, community-focused dining experience imbued with authentic rustic elegance.
▼建筑外景,Exterior of the building


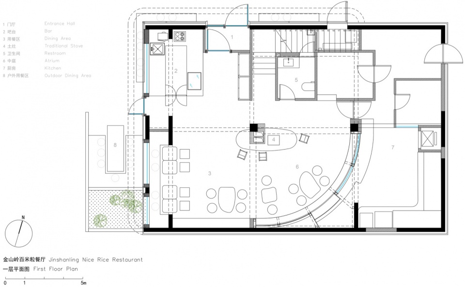
原建筑同为2层3开间两进深的长方形标准户型,一层有中庭天井空间,二层拥有1/3面积的户外露台。以原天井空间为原点,近乎3.5米的巨型灶台被设置在中心位置,灶台由天然绿色大理石板敷面,质感斑驳,令人想起波提切利时代经典马赛克镶嵌艺术,不同颜色和大小的石粒也呼应了“百米粒”品牌的精神。黑色烟囱大而醒目直插屋顶,定位空间全新秩序与美学基调,一层同餐区域环绕灶台布置,从两侧出入口通道经吧台直达,紧贴墙壁定制的展示橱柜与储存单元,以环抱灶台为中心的四分之一处圆弧形墙壁收尾,同时作为空间隔断,分开厨房与用餐区。
▼分析图,Analysis diagram

Anchoring this composition stands a monumental 3.5-meter marble hearth at the atrium’s heart, its surface remaining the feeling of ancient mosaic craftsmanship. From this core element, a striking black chimney ascends vertically through the roof, establishing both a new spatial hierarchy and the essential aesthetic statements. The ground floor dining area radiates organically around the central hearth. Two strategically positioned bar counters guide circulation while creating natural viewing corridors toward the fire. Custom-designed cabinets and storage units trace the perimeter walls, their forms culminating in elegant quarter-circular curves that embrace the hearth while subtly demarcating kitchen from dining spaces—a sophisticated resolution of programmatic division through architectural gesture.
▼一楼就餐区,1F Dining area



洞天福地An Earthly Paradise
借用原天井空间通高,设计方案顺势将屋面开口以玻璃幕墙封闭处理,自然光线由露台与屋顶汇入一层餐区,当阳光照射,光线聚于室内,牙白墙壁与赤陶砖面形成强烈反差,提亮室内光照明度。从室外天井到室内天井的转变,使餐区拥有一处筒状形体化空间,强化了环壁炉四周竖向动势,对中间体量的向心式组织,生动展现了用餐环境的聚集属性。
Embracing the full vertical expanse of the original atrium, the design seals the overhead opening with expansive glass planes, orchestrating a deliberate channeling of natural illumination from both terrace and roof into the heart of the dining space. As sunlight permeates the volume, it accumulates within—sculpting a dramatic interplay between ivory-white wall surfaces and terracotta-hued flooring that intensifies the luminous quality of the interior. The transition from exterior to interior atrium articulates a cylindrical spatial entity, amplifying the vertical dynamism centered around the hearth. This centripetal spatial choreography reveals the essential gathering-oriented character of the dining environment, where architecture serves as both stage and participant in the ritual of communion.
▼出餐口,Serving window

▼楼梯间,Staircase

二层空间被划分为4个独立用餐区,除露台用餐区外,室内拥有两处私密包厢,与一处开放区,较底层空间相比,上层空间更小型更私密,墙面依旧使用温暖原木饰面包覆,保持材质连贯性。
The second level unfolds as a sequence of four distinct dining realms. Beyond the open-air terrace dining zone, two intimate private chambers and an open exterior seating area establish varied atmospheres of retreat. These upper spaces cultivate a more restrained acoustic and spatial quality compared to the vibrant ground floor, while maintaining material continuity through warm wood paneling that envelops the walls.
▼二层空间,Second level area


▼二层过道,Second level corridor


事实上,食物烹饪是一门有关想象力的学科。空间中尝试使用多种不规则圆形图案,呼应百米粒品牌的有机质感,从外立面吸人眼球的窗洞设计到餐区桌椅搭配,从二层包间的隔断墙体到天井圆洞开口,每个元素都凝聚着餐厅及主理人天马行空的创意能量。
Culinary practice, in its essence, represents an art of transformation and imagination. From the shaped window openings on the facade to the curated pairing of tables and chairs, from the flowing partition walls to the circular apertures framing views toward the atrium—each element embodies the boundless creative energy that defines both the establishment and its visionary proprietor.
▼二层就餐区和阳台入口,2F Dining area and balcony entrance

室内照明设计旨在为空间叙事增添层次感。一层中庭的风筝装置灯具,与studiososlow工作室合作,脱胎于非遗工艺与当代设计的理念碰撞,从空中垂坠直下,连续飘悬,因风而动,搭配红土色地砖与原木桌椅,唤起秋日的丰饶诗意。楼梯间甄选的白色壁灯宛如一粒粒饱满的大米。二层开放区的“云朵”吊灯,购自由Frank Gehry设计的量产系列,具有无法言说的奇异感,其褶皱、卷曲、凸起和凹痕的标志性外观,夺人眼目。隐藏的中心光源消弭室外和室内空间界限,这些光影装置唤醒了人们对建筑体验中的自然意蕴的感知。
The lighting composition further elevates this narrative. The “Kite” installation in the ground floor atrium—a collaborative creation with Studio soslow—emerges as a dialogue between intangible cultural heritage and contemporary design thinking, and interacts with terracotta tiles and wooden furnishings to evoke sensations of autumnal abundance. In the stairwell, white wall lamps recall plump grains of rice, while the second floor features Frank Gehry’s “Cloud” pendant lights, a mass produced series whose distinctive folded, curled, and undulating forms possess an indefinable peculiarity. These luminous interventions, together with concealed central lighting sources, dissolve the boundary between interior and exterior, awakening a poetic consciousness of nature’s presence within the architectural experience.
▼夜景,Night view


▼一层平面图,First floor plan

▼二层平面图,Second floor plan

▼立面图,Elevation


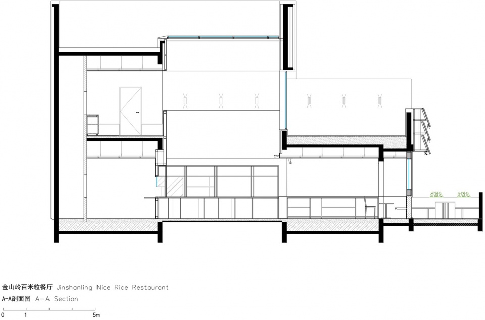
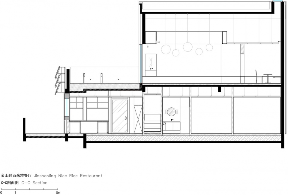
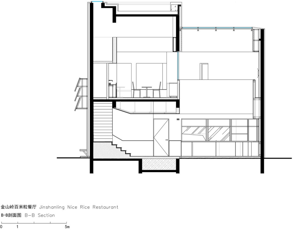
▼剖面图,Section




Name:Nice Rice in Aranya Golden Mountain
Category:Restaurant
Area:200 sqm
City:Chengde,Heibei,China
Year: 2024 /11 – 2025/06
Client:Nice Rice
Architects:ATLAS Studio
Office Lead Architect(s):Jenny Chou
Design Team: Qiongying Cai, Xuejing Wang, Jinhong Jiang
Materials: Rice Husk Paint, Four Seasons Green Marble,Ceramic Tiles, Black Titanium Steel, Oak, Cork, Artistic Coatings
Light:studiososlow,Belux Cloud
Façade System Consultant:Qinhuangdao Haoyue Construction Engineering Co., Ltd.
Interior Construction:Zhongyu Sunshine (Beijing) Decoration Engineering Co., Ltd.
Photographs:Xueman Hu
Words:Hongsoo














