卡尔顿府联排20号翻新,英国 / RSHP
RSHP改造了位于圣詹姆斯保护区的卡尔顿府联排20号。该建筑原为一座老旧的20世纪70年代写字楼及地下车库,经更新后转变为高品质商业综合体。项目在保留原有建筑约 55% 的基础上完成复杂改造,新建四层,使整体达到 11 层,总建筑面积约16.2万平方英尺。
RSHP has transformed 20 Carlton House Terrace—a tired 1970s office building and basement car park—into a high-quality commercial development in the St James Conservation Area. Retaining 55% of the original building, the complex transformation delivers an additional four floors and offers a total 162,000 sq.ft. of commercial space across 11 floors.
▼项目鸟瞰,Aerial-view of project

项目周围环绕着多座一级和二级保护建筑,其中包括由约翰·纳什(John Nash)设计的卡尔顿府露台 10–18 号。在这一高度敏感的历史环境中,方案创造了一处出人意料的当代建筑介入。项目核心为空间重新布局的双层通高接待大堂,配以全玻璃电梯组贯通所有楼层,并设置一座全新中庭,为低层空间引入充沛自然光。宽敞的屋顶露台可享受 360 度全景视野,而理顺后的平面布局在前瞻性的机电策略支持下,为多样化用途与租赁方式提供了高度灵活性。
▼轴测图,Axon diagram

Surrounded by Grade I and II listed buildings including 10–18 Carlton House Terrace by John Nash, the scheme creates an unexpected contemporary intervention within a highly sensitive heritage context. At its heart sits a repositioned double-height reception, a fully glazed lift group connecting all floors, and a new atrium flooding the lower levels with natural light. Generous rooftop terraces afford panoramic views, and a rationalized floor plan offers flexibility in tenure supported by a forward-looking servicing strategy.
▼立面概览,Overview of exterior

RSHP最初的竞赛方案设想为一座全新重建项目。然而,通过进一步的细致分析,团队发现可在保留大部分既有上部结构与地下空间的前提下实现设计理念。业主提出的核心要求——显著增加建筑面积并提升使用与租赁灵活性——通过引入一条全新的线性核心筒得以实现。该核心筒整合并协调了建筑中20世纪70年代与90年代两个不同时期的结构体系,从根本上重塑了平面逻辑。这一线性“嵌入体”重新梳理建筑体量,形成区域内最为宽敞的屋顶露台,可远眺圣詹姆斯公园、威斯敏斯特宫、特拉法加广场以及伦敦金融城的壮丽景观。
▼建筑体量分析,Consented massing

RSHP’s original competition scheme was conceived as a fully new-build redevelopment. However, further careful analysis showed how the concept could be achieved while retaining most of the existing superstructure and basement. The client’s brief—to substantially increase area and enhance tenure flexibility—is delivered through a new linear core that reconciles the 1970s and 1990s portions of the building, fundamentally revising the plan. This linear ‘insert’ re-orders the massing, yielding the most generous roof terraces in the local area, with spectacular views over St James’s Park, the Palace of Westminster, Trafalgar Square, and the City of London.
▼沿街视角,Street view

通过在低层策略性拆除部分柱网,并在新增高层采用无柱大跨度结构,项目最大化提升了室内空间效率,并由全电动化机电服务策略统一支撑。在部分保留并修复的立面中引入新增及放大的玻璃开口,显著改善自然采光条件,提升使用者舒适度与身心健康。居中设置的电梯群进一步优化了办公平面布局,使其可灵活分割为多个独立租赁单元,同时共享通往屋顶露台的便捷通道。
▼改造前后对比,Before & After

Interior space is maximized via strategic column removal at lower levels and column-free spans on the new upper floors, all served by an all-electric servicing strategy. New and enlarged glazing in the partly retained and restored façade improves natural daylight and occupant wellbeing. The centrally placed lift group rationalizes the office space into easily splittable tenancies with shared access to terraces.
▼立面框架,Facade frame


原有地下车库被改造为采光良好、用途灵活的综合空间,可用于餐厅及展示/报告厅,并通过建筑周边及中庭新增屋顶天窗引入自然光。轻质屋顶扩建部分被清晰识别为当代建筑介入,同时以审慎而克制的方式与下方既有建筑融合,充分尊重周边住宅环境及从议会山通往威斯敏斯特宫的法定视廊关系。项目中大体保留的波特兰石立面,延续并回应了纳什设计的卡尔顿府联排所体现的乔治亚时期上、中、下三段式柱式构图,在历史语境中呈现出恰当而节制的更新表达。
The basement car park has been transformed into well-lit, flexible-use accommodation providing canteen and presentation rooms, with natural light admitted at the perimeter and via the new atrium rooflight. The lightweight roof extensions are clearly read as contemporary additions while sensitively integrating with the existing building below, respecting relationships to nearby residences and the statutory viewing plane from Parliament Hill to the Palace of Westminster. The largely retained Portland Stone façade respects and acknowledges the tripartite Georgian orders of the Nash terrace.
▼天然石材立面,Natural stone facade

由Elliott Wood结构工程师团队发现的原始方案档案图纸,对项目早期设计阶段的发展起到了至关重要的作用。Elliott Wood所开展的系统性、溯源式结构分析,以高度确定性验证了RSHP方案的可行性。这些研究成果同时为修复此前遗失的20世纪70年代设计元素提供了依据,包括恢复街道柱廊中缺失的一根立柱,使建筑在历史连续性与整体完整性上得以重新确立。
The discovery of archive drawings from the original scheme, unearthed by structural engineers at Elliott Wood, was vital to early-stage design development. Elliott Wood’s forensic analysis proved the feasibility of RSHP’s proposals with a high degree of certainty. The findings also informed the restoration of previously lost 1970s design elements, including reinstating the missing column in the street colonnade.
▼屋顶花园景观,Roof garden

▼轻质的屋顶拓展空间,The light-weight roof extensions


▼景观电梯内部,The panoramic lift

▼入口大堂,Lobby


▼采光天窗,Natural light skylight

▼总平面图,Site plan

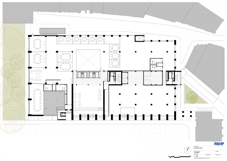
▼首层平面图,Ground floor plan

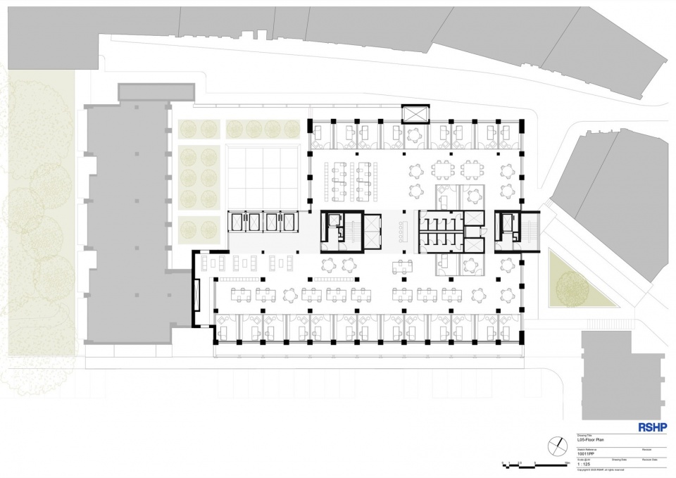
▼六层平面图,5th floor plan

▼八层平面图,7th floor plan

▼南立面图,South elevation

▼东立面图,South elevation

▼剖面图,Section

▼幕墙细节图,Details

Location: London, UK
Site Area: 21,400 m²
Project Schedule: 2019 – 2025
Client: H.I.G. Capital
Architect: RSHP
Developer: Clivedale / Altius Real Estate
Delivery Architect: EPR Architects
Structural Engineer: Elliott Wood
Environmental Engineer: Hoare Lea
Quantity Surveyor: Core Five
Planning Consultant: DP9
Heritage Consultant: KM Heritage
Highways/Waste: Transport Planning Practice














