二十春&宝物饭局,南京 / 拙木空间设计
评事街作为南京重要的历史风貌区,是老城南的缩影,它至今仍保留了丰富的文化记忆和市井生活气息。二十春立基于此,试图在老城南的历史肌理中植入一个具有当代公共性的社区节点。其价值在于绵延市井的活力。
As an important historical and cultural area in Nanjing, Pingshi Street serves as a microcosm of the southern part of the old city, retaining rich cultural memories and the atmosphere of everyday life. Based on this, Ch’unments aims to implant a contemporary public community node into the historical fabric of the southern part of the old city. Its value lies in the continuous vitality of everyday life.
▼建筑外景,Exterior of the Building

设计的核心是通过在地转译,将场地记忆、市井生活与当代休闲需求交织,营造一个既能融入老街巷日常纹理,又能激发社区活力的“街角公园式”咖啡馆。希望设计能够最终超越咖啡馆的商业本体,塑造一个具有吸附力的社区公共空间。
The core of the design lies in interweaving site memory, everyday life, and contemporary leisure needs through local interpretation, creating a “corner park-style” café that can both blend into the daily texture of old streets and alleys and stimulate community vitality. It is hoped that the design can ultimately transcend the commercial essence of the café and shape a community public space with strong appeal.
▼葫芦门,Cucurbit gate

入口处的葫芦门洞源于传统中式园林的符号简化,它以一种近乎“笨拙”的、带有手工感的形态出现,暗示着内部空间的轻微超现实感。外墙选用与周边老民居楼相似的马赛克,它是八九十年代最常见的外墙材料之一。我们试图以材料的时间对话使新体量在肌理上嵌入街区。
The gourd-shaped door opening at the entrance originates from the simplification of traditional Chinese garden symbols. It appears in a seemingly “clumsy” and handmade manner, hinting at the slightly surreal feeling of the interior space. The exterior wall is made of mosaic similar to the surrounding old residential buildings, which was one of the most common exterior wall materials in the 1980s and 1990s. We try to embed the new volume into the texture of the neighborhood through a temporal dialogue of materials.
▼葫芦门细节,Cucurbit gate detail

▼一层室内空间,First floor interior space


▼咖啡区,Coffee area

室内挑高了一处转角平台,并在窗边设置老公园里的木制“美人靠”。这一设计旨在使室内楼梯过渡到二楼的区域有缓冲和休憩的余地;同时创造闹市中的“凭栏远眺”。临窗坐位主动引导“晒太阳”这一极具市井生活气息的行为,将原本私密的咖啡消费转化为可观看、可参与的街道生活场景。
The interior design features a raised corner platform and wooden “loungers” reminiscent of old parks, positioned by the window. This design aims to provide a buffer and resting space for the area where the interior staircase transitions to the second floor, while also creating a “view from the balcony” amidst the bustling city. The window seats actively encourage the behavior of “sunbathing”, which is highly characteristic of urban life, transforming the originally private coffee consumption into a street life scene that can be observed and participated in.
▼美人靠,Loungers

▼一层室内细节,First floor interior detail

▼楼梯,Staircas


二楼‘宝物饭局’是品牌对本地菜的新尝试,视觉呈现上延续了一楼活泼中式的表达。以一种介于碧色和翠色之间的醽绿贯穿整个垂直面,结合舒展的枝条,在旧木中透着生机。
The ‘Bao food’ on the second floor represents the brand’s new attempt at local cuisine, visually continuing the lively Chinese expression of the first floor. A vibrant green, somewhere between turquoise and emerald, runs through the entire vertical plane, combined with stretching branches, revealing vitality amidst the old wood.
▼二层室内空间,Second floor interior space



▼布局细节,Layout details




靠窗一侧的白色坡屋顶未作过多干预,以保证室内开阔疏朗的轻松氛围。靠墙的半坡顶我们以木饰面平行于屋面局部包裹,一是为了遮蔽背后的消防管道,同时以屋面做装饰简化墙面过于琐碎的表达。
The white sloping roof on the side near the window has not been overly intervened to ensure an open and spacious atmosphere indoors. The half-sloping roof near the wall is partially wrapped with wood veneer parallel to the roof. This is to conceal the fire pipes behind and also to simplify the overly detailed expression of the wall with the roof as a decoration.
▼室内氛围,Indoor atmosphere


▼傍晚室外细节,Exterior detail at night

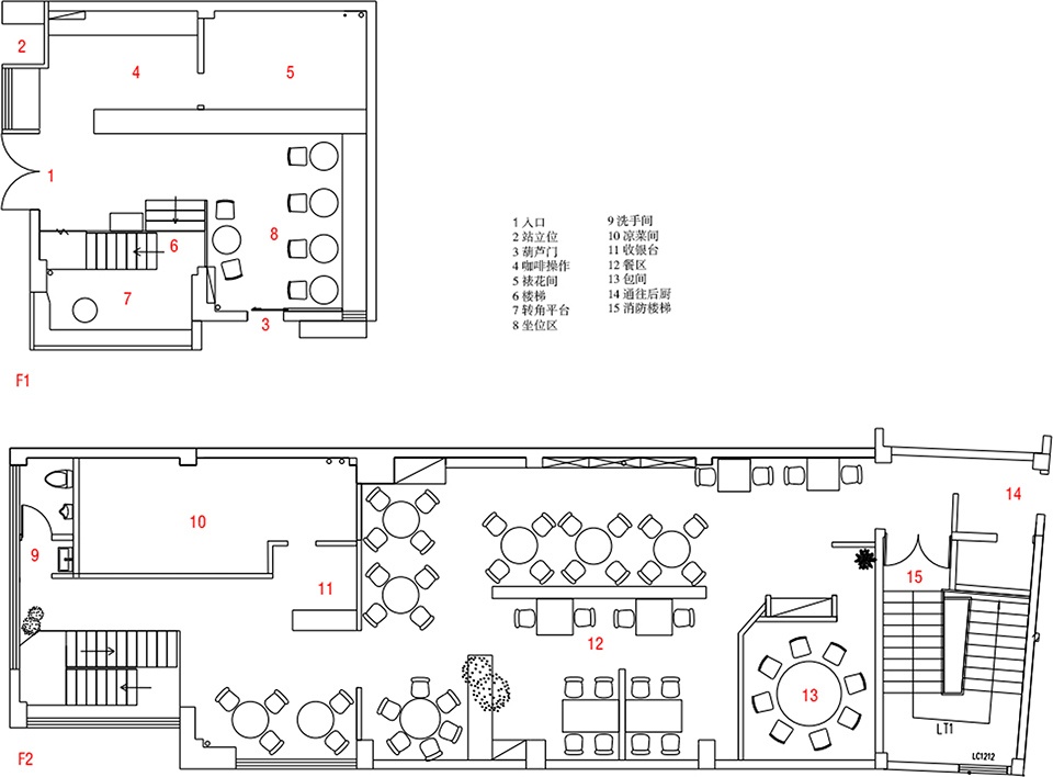
▼平面图,Floor plan

Project name: Ch’unments&Bao food
Design company: Nanjing Zhuomu space design
Leader designer: Wu Yuanyuan
Construction period: October 2025 – December 2025
Project address: Xinanli Pishi Street, Nanjing
Project area: 240 ㎡
Photography copyright: Obsidian
Main materials: steel plates, used wood, mosaic, floor paint
拙木空间设计
82737877@qq.com














