开场咖啡,浙江温州 / aptdotapt 攻玉
作为一家坐落于温州乐清的社区精品咖啡店,开场On-Site是一个能量发生地。除了提供富有地方特色的特调咖啡与餐食外,它更关注人与人之间的交流聚合,以及场域能量的交换与连结。我们为其构建了品牌战略、品牌命名、视觉识别系统与室内空间。
Located in a small town in Zhejiang, China, Café On-Site(开场Kai-Chang) is conceived as a field of energy for neighborhoods. Beyond serving locally inspired signature coffee and food, the café focuses on human gathering and interaction — on how energy flows, accumulates, and connects within a spatial setting.We developed the project holistically, including brand strategy, naming, visual identity, and interior design.
▼项目概览,overview of the project

▼立面,facade


“开场”有三重含义:
[1]Opening, Introduction. 指好戏开场,演出开始。
[2]Place, Spirit of Place. 场,特指场所,延伸至场所精神。
[3] “Chang”, Local Resonance.谐音“厂”,取自温州人“爱开厂”的地方文化。
*英文品牌名On-Site亦有“在现场”之意。
▼旋转门,Rotated Door

“开场(Kai-Chang)” carries three layers of meaning:
[1]Opening / Introduction — the moment when a performance begins, when the stage is set.
[2]Place / Spirit of Place — “场(Chang)” refers to a site, extending to the atmosphere and spirit embedded within it.
[3]“Chang” / Local Resonance — a phonetic reference to “厂” (factory), drawing from Wenzhou’s well-known entrepreneurial culture of “opening factories.”
*The English name On-Site further emphasizes the idea of “being present,” reinforcing the project’s situated and local character.
▼立面细部,facade details


「从空间能量到动力装置」 「On Site, On Track: From Spatial Energy to Mechanical Elements」
如何将“场域能量”这一抽象概念转译为三维空间与可感知的体验,并与咖啡店功能有机结合,是设计的核心命题。
A key design challenge was how to translate the abstract notion of spatial energy into tangible three-dimensional forms, while integrating it seamlessly with the functional requirements of a café.
▼室内概览,overview of the interior


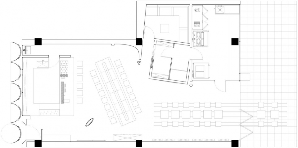
从平面规划上,我们通过对主要区域进行不同角度的旋转,并置入四个形态各异的柱子来引导流线与视线行进的方向,从而打破线性空间的均质与平衡。人在此被自然地引向开阔或安定之处,这便是流动的场域能量体现的第一层。
▼轨道上的桌椅,Seats on Track
In the floor plan, major zones are subtly rotated at different angles, while four formally distinct columns are introduced to guide circulation and sightlines. This strategy disrupts the homogeneity of a linear space and establishes moments of openness and enclosure. Visitors are naturally drawn either toward more expansive areas or into sheltered corners — the first layer through which spatial energy becomes perceptible.
▼轨道上的桌椅,Seats on Track


不同的人在此处汇合,故事也总是同时发生。我们为开场设置了一系列动能装置,以回应不同场景与角色的多重叙事:人们从主入口进入玄关,弧形门滑入内嵌圆形轨道;咖啡师在吧台内将卡扣扣进凹槽,把特调从外卖口递出去;顾客围坐在花池长桌旁,将尽头的红幕拉上打卡拍照;店员忙着把这一季的新品面包挂上四芒星展示架,推到客人面前解说。天气刚刚好,好想坐在外面晒太阳——不如我们直接把咖啡桌沿着滑轨划到外面去!
▼后立面,Back Facade
Different people converge here, and multiple narratives unfold simultaneously. A series of kinetic mechanisms was designed to support these layered scenarios:
guests enter through the main entrance as a curved door slides into a recessed circular track; baristas lock fittings into grooves behind the counter to pass coffee through the takeaway window; customers seated around the planter table draw the red curtain at the far end to take photos; staff members hang seasonal pastries on a four-point star display rack and roll it toward newly arrived guests for presentation. On pleasant days, the scene extends outdoors — tables glide along embedded tracks, seamlessly shifting coffee moments into the sunlight.
▼吧台桌椅,Bar Seats



我们将“场域能量”的品牌精神内化于机关与场景之中,使抽象的概念在此转化为二维视觉语言与三维空间形态。
Through these mechanisms and scenes, the brand’s core idea of spatial energy is internalized within everyday actions, transforming an abstract concept into both two-dimensional visual language and three-dimensional spatial experience.
▼轨道上的桌椅,Seats on track



「模糊内外:作为社交媒介的立面」 「Inside Out, Outside In: Facade as communicator」
考虑到场地所在商圈的复杂性,我们为前后立面采用了不同的处理策略。前立面紧邻一家极具烟火气的烧烤店,对咖啡店而言并非理想邻居。我们既希望行人能在百米外的街道上注意到开场的存在,又需隔绝油烟与噪声。一般的店招与大面积玻璃窗的组合似乎不足以让开场从中脱颖而出,并解决其面临的挑战。
▼前外卖口,Front Takeout Window

Given the complexity of the site within a dense commercial district, the front and rear facades are treated differently. The front facade directly faces a neighboring barbecue restaurant — lively and grounded, yet not an ideal context for a café. On-Site needed to remain visible from across the street while shielding itself from smoke, noise, and visual clutter. Conventional storefront strategies of signage and transparent glazing proved insufficient.
▼面包店厨房,Bakery Kitchen

▼品尝区,Tasting Room

▼洗手区,Washing Area

我们从品牌视觉语言中提取几何元素,以五个具有建筑形态与空间感的空心半圆柱构成前立面,通过重复的秩序强化门面的节奏感。近距离看,我们在空心圆柱内,以人身体的尺度,在不同高度横向设置了平面,使前立面可倚可坐。夜晚,暖光从弧形缝隙间溢出,行人凑近可瞥见室内的热闹景象。
▼后外卖口,Back Takeout Window

Drawing from the brand’s visual language, five hollow semi-cylindrical volumes with architectural presence were assembled to form a semi-enclosed front facade. Their repetition establishes rhythm and identity. At a closer scale, horizontal surfaces are embedded within the cylinders at varying heights, allowing the facade to be leaned against or sat upon. At night, warm light seeps through the curved gaps, offering passersby fleeting glimpses of the lively interior beyond.
▼圆柱,Column


后立面正对邻近的公园草坪,我们将其完全打开,模糊内外的边界,并将室内滑轨延伸至室外。人们只需轻轻推动桌椅,便可自然地过渡到草坪空间中。
The rear facade opens fully toward an adjacent park lawn. Here, the boundary between inside and outside dissolves: interior tracks extend outward, allowing tables and chairs to slide effortlessly into the landscape. A subtle push is all it takes for the café to expand into the public green space.
▼前立面细节,Front Facade Details


▼后外卖窗口构造,Back Takeout Winddow Mechanism

▼面包店厨房扶手,Bakery Kitchen Handrial

▼长桌细节,Long Table Detail

「强烈的几何印象:平面视觉到空间的延续」 「A Strong Geometric Continuity: from Graphic Language to Spatial Form」
在立面和室内空间中,我们设置了一系列不同形式、重复出现的元素:动态的弧线,圆形金属,四芒星展示架,倒三角长灯——这些元素源自品牌视觉识别系统,我们将其贯穿在空间的设计中,形成专属于“开场”强烈的几何印象。
Across both the facade and interior, a series of recurring geometric elements — dynamic curves, circular metal components, four-point star display racks, and inverted triangular linear lights — appear in varying forms. All originate from the brand’s visual identity system and are carried consistently into space, forming a strong and coherent geometric impression.
▼夜景,night view


▼平面图,Plan

▼后立面,Back Facade

▼轨道上的桌椅,Seats on Track

▼旋转门,Rotated Door

▼前外卖口,Front Takeout Window

▼后外卖口,Back Takeout Window

▼前外卖口节点,Front Takeout Window Detail

▼后外卖口节点,Back Takeout Window Detail

Project Name: Café On-Site(开场Kai-Chang)
Project Location: Wenzhou, Zhejiang, China
Design Firm: aptdotapt
Contact e-mail: info@aptdotapt.com
Project Scope: Interior Design, Brand Strategy, Visual Identity System, Merchandise Design, Packaging and Display
Project Type: Food & Beverage, Commercial
Project Area: 140㎡
Design Team: Jinrui Zhang, Leanne Letong Meng, Zheye Cai
Design Period: April 2025 – June 2025
Completion Time: June 2025 – December 2025
Facade Consultant: I/O Project
Photography: Yumeng Zhu














