曼谷生态匣居,泰国 / Unknown Surface Studio
在拉抛区密集而喧闹的城市肌理之中,当城市持续发出躁动的嗡鸣,一处隐藏的静谧悄然存在。生态匣居并非一座高声宣告自身存在的建筑,而更像是一种低声细语,一处在四面皆为邻里的汤匙形封闭地块上孕育而生的庇护所。建筑向内生长,将一块“失明”的土地转化为一个由光、影与静默构成的私人世界。
In the heart of Ladprao’s dense urban chaotic fabric, where the city creates a restless hum, lies a hidden stillness. “Terrarium House” emerges not as a structure that shouts, but one that whispers—a sanctuary born from the constraints of a spoon-shaped, landlocked plot surrounded by neighbors on all four sides. Here, the architecture turns inward, transforming a blind piece of land into a private world of light, shadow, and silence.
▼建筑鸟瞰,Aerial view of the building


抵达的序列 The Sequence of Arrival
旅程始于一条仅有4米宽的狭长通道,如同汤匙的柄部。建筑师将这一空间不仅视为入口,更塑造成一段精神上的过渡。天然石材墙体夹道而立,延展的木质天花在上方庇护,拉长而压缩的空间感官制造出神秘与期待的瞬间。这是一条具有仪式感的通道,在揭示内部庇护所之前,缓缓洗去外部世界的喧嚣。
The journey begins at the narrow, 4-meter wide access—the handle of the spoon. The architect choreographed this space not merely as an entrance, but as a transition of the soul. Flanked by natural stone walls and sheltered by a stretching wooden ceiling, this elongated tunnel compresses the senses, creating a moment of mystery and anticipation. It creates a ceremonial passage that washes away the chaos of the outside world before unveiling the sanctuary within.
▼狭长入口通道,Narrow entrance passage

一个鲜活的的玻璃展柜 A Living Glass Cabinet
跨越门槛,空间豁然展开,进入住宅的核心——中央庭院。建筑在保留场地原有树木的前提下,将自然包裹其中,如同一只玻璃陈列柜般环绕生长,形成一个被保护的生态箱。这片绿色核心作为被动采光源,主导着日常的光影表演:阳光透过枝叶洒落,在木质内饰上投射出不断变化的阴影。随着太阳角度的变化,住宅的氛围随之呼吸与转化,每一个时刻都呈现出不同的空间情绪。
Crossing the threshold, the space expands into the home’s beating heart: the Central Courtyard. Preserving the site’s original trees, the house wraps around nature like a glass vitrine—a “Terrarium” where life flourishes protected. This green core functions as a passive light source, orchestrating a daily performance where sunlight filters through leaves, painting shifting shadows upon the wooden interiors. The atmosphere of the house breathes and transforms with the sun’s angle, creating a different mood for every hour of the day.
▼中央庭院外部,Central courtyard exterior

▼中央庭院室内,Central courtyard interior




▼中央庭院近景,Central courtyard close view



连续的流动与顶层居所 Seamless Flow & The Penthouse
尽管四周被邻里包围,室内却呈现出近乎无界的感受。双层挑空的起居空间赋予垂直方向的自由,弧形玻璃墙体消解了空间的转角,使客厅、工作区与上层空间之间形成视觉上的连续流动。二层作为私密的顶层居所,安置艺术收藏与主卧空间,并始终与中央中庭保持着持续的对话关系。
Despite the enclosing neighbors, the interior feels boundless. A Double Space living area creates vertical freedom, while curved glass walls dissolve corners, allowing visual fluidity between the living room, workspace, and the upper levels. The second floor operates as a private Penthouse, housing an art collection and the Master Bedroom, all connected by this continuous dialogue with the central void.
▼双层挑空的起居空间,Double-height living space

▼俯瞰中央庭院,Upper level overlooking the courtyard

▼生态箱垂直空间,Terrarium vertical space


▼二层室内空间,Second floor interior space



▼一层卧室,Ground floor bedroom

▼二层卧室,Second floor bedroom


匠人的建造宣言 The Master Builder’s Craft
使生态匣居脱颖而出的,是其富有灵魂的材料表达。作为一位资深承包商的自宅,这座住宅本身即是一份关于工艺的宣言。设计精心挑选了七种不同树种,并通过化学漂白处理,使其呈现出接近日本桧木(Hinoki)的统一色调。这种视觉上的柔和掩藏着结构上的智慧:住宅采用无柱结构,由钢结构与铁坚木(Takhian wood)玻璃框架共同承重铝制屋顶。这是一场对材料真实性的颂扬,让结构与肌理以最诚实、也最美的状态被呈现出来。
What sets Terrarium House apart is its soulful materiality. As the residence of a master contractor, the home serves as a manifesto of craftsmanship. Seven distinct species of wood were meticulously selected and chemically bleached to achieve a singular, harmonious hue reminiscent of Hinoki cypress. This visual softness conceals structural ingenuity; the house employs a column-free design where steel and Takhian wood glass frames bear the weight of the aluminum roof. It is a celebration of “Truth to Materials,” leaving structure and texture exposed in their most honest and beautiful forms.
▼不同木材的统一色调,Unified tone of multi-species wood


▼过道,Corridor


自然生成的建筑 Architecture of Nature
景观并非事后的附加,而是空间的共同创造者。入口处高挑而纤细的树木穿越天花的开口生长,将视线引向天空;室内,舒展的枝叶成为天然的帘幕,过滤视线并确保绝对的私密性。在生态匣居中,建筑与自然并非简单共存,而是彼此拥抱,营造出一处仿佛与城市隔绝的、恒久的静谧绿洲。
The landscape is not an afterthought but a co-creator of space. Tall, slender trees at the entrance pierce through ceiling voids, drawing the eye upward to the sky. Inside, spreading foliage acts as a natural curtain, filtering sightlines and ensuring absolute privacy. In this Terrarium House, architecture and nature do not just coexist; they embrace, creating a timeless oasis where the city feels a world away.
▼保留原有树木的生态箱,Terrarium with existing trees

▼生态箱内仰望天空,Terrarium interior towards sky

▼室内一角,A corner of interior space


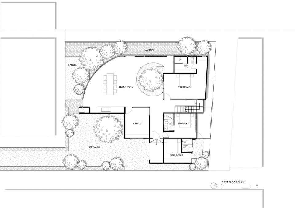
▼一层平面图,1st floor plan

▼二层平面图,2nd floor plan

▼屋顶平面图,Roof plan

▼剖面图,Section

Project Name: TERRARIUM HOUSE
Completion Year: 2025
Scale: 450 sqm.
Project Location: Bangkok , Thailand
Architecture Firm: Unknown Surface Studio
Website: https://unknownsurfacestudio.com/
Contact e-mail: unknownsurfacestudio@gmail.com
Lead Architects: Cievanard Nattabowonphal, Piyanat Songkhorh, Nonglak Boonsaeng
Photo credit: Rungkit Charoenwat














