隐山林居,中国台湾 / 公羽山松建筑师事务所
这个名字有两个意涵一个是树林的栖地,而另一个则是谐音方式表达人借住于”邻居”大自然的居所之中。建筑不是占有这片土地,“借住”隐含着对环境的尊重、友好与共享,体现了永续与共生的价值观。
Hidden Mountain Dwelling carries a double meaning. One speaks of a habitat within the forest; the other is a phonetic metaphor suggesting that humans are merely temporary neighbors—borrowing a place to live within nature’s domain. To borrow is not to possess. It implies humility, respect, and a shared responsibility toward the land—an ethos of coexistence where architecture steps back, and life in nature begins to speak.
▼项目概览,Overview of the project

▼入口,Entrance

场地与背景 Site & Context
事业有成的业主在退休之际想要回归故乡,在中部山谷间购入狭长型山坡用地,想打造两夫妻山林隐居的生活,基地范围位于两不同高程之平台上。较高处有开放空间腹地,较低处则有树林环绕,与远山遥望自然景观丰富。设计上希望能打破建筑与自然的藩篱,让居住不仅是“观看”风景,而是“成为”风景的一部分。
Commissioned by a successful couple preparing for retirement, the project is conceived as a secluded retreat in the mountain valleys of central Taiwan. Their intention was not to build a trophy house, but a quiet residence where everyday rituals could return to a slower rhythm—one that is measured by light, wind, mist, and the changing seasons. The site is a long and narrow hillside parcel situated between two terraces at different elevations. The upper platform offers an open clearing, while the lower terrace is embraced by dense woodland. Beyond the immediate trees, layered ridgelines unfold in the distance, with clouds and fog drifting through the valley. This duality—open plateau above and forest enclosure below—became the foundation of the spatial narrative.Rather than treating the landscape as a background view, the design sought to dismantle the boundary between architecture and nature. Here, dwelling is not defined by watching the scenery, but by becoming part of it.
▼让居住不仅是“观看”风景,而是“成为”风景的一部分,Dwelling is not defined by watching the scenery, but by becoming part of it


以 [ 横向框景自然 纵向林间游园 ]为设计概念Design Strategy: Horizontal Framing / Vertical Roaming
设计以一个简单而分层的概念为指导: “横向框景自然,纵向林间游园。”横向(Static/Visual):利用水平带状线条构成,将远山与云雾像卷轴划一样“框”进室内,收纳着山谷的四季。
The design is guided by a simple yet layered concept: “Framing nature horizontally; roaming the forest vertically.” Horizontal (Static / Visual): A continuous horizontal language forms the architectural “frame,” pulling distant mountains and drifting clouds into the interior like a scroll painting. The home becomes an instrument of collection—capturing seasonal atmospheres and holding them gently within daily life.
▼建筑融入山谷之间,The building blends into the valley


纵向(Dynamic/Experiential):透过悬挑的长廊与动线,让植物与蕨类可以在下方生长,也创造人在树林间行走的体验,树枝间透出的光影、微风在廊道与林间穿梭游玩、细雨打落一地残红铺上了自然的地毯;此时长廊不只是过道,更是体验自然生态的游程。
Vertical (Dynamic / Experiential): In contrast, the vertical experience is composed through cantilevered corridors and layered circulation paths. Vegetation and ferns are allowed to grow beneath these routes, creating a sense of walking within the forest rather than merely beside it. Light filters through branches, wind plays along the passage, and soft rain scatters petals onto the ground like a natural carpet. The corridor is not simply a connection between rooms—it becomes an ecological promenade.
▼悬挑的长廊创造人在树林间行走成为体验自然生态的游程,The cantilevered corridor creates a journey for people to experience the natural ecology while walking among the woods


▼为不遮挡视野楼梯采垂直等高线规划,成为走进树林的廊道,To avoid obstructing the view, the staircase is planned with vertical contour lines, serving as a corridor leading into the forest

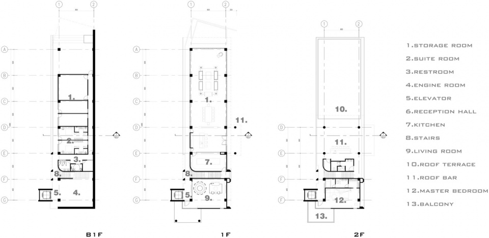
建筑量体垂直规划如下:建筑按垂直顺序组织,每一层都根据其与地形的关系和居民的日常节奏来定义。B1根植:与山坡挡土墙共构,成为稳固的根基。衔接对外动线也存放务农园艺工具与登山装备之用。
Spatial Organization:Root / Stitch / Nest: The architecture is organized in a vertical sequence, each level defined by its relationship to the terrain and the inhabitant’s daily rhythm. B1 — Rooted (Root): Embedded into the hillside and interwoven with the retaining structure, the basement forms a stable foundation—like roots gripping the slope. It connects to the outer movement routes and stores farming tools, gardening equipment, and hiking gear, supporting a life grounded in the landscape.
▼楼梯空间,The step spaces


1F 缝合:地板面与高处腹地水平衔接,作为公共空间成为连结上下楼层的枢纽,将远山的宏观视野与近树的微观生态串联起来。透过大跨度的玻璃帷幕,强调通透感,轮播着自然光阴的更迭。
1F — Sutured (Stitch): Aligned with the upper terrace, the first floor acts as the social core and the hinge of the home. It stitches together the distant panorama and the close-up forest ecology, linking macro and micro scales of nature. A large-span glass façade enhances transparency, allowing daylight to rotate slowly through the interior like a moving calendar.
▼透空楼梯设计也将光影与自然过筛展现特殊框景,The porous steps frame shadows and greenery as one moves, turning circulation into a continuous act of viewing

2F 栖居:为主卧室与屋顶露台空间,位于至高点俯瞰山谷、星宿,云海,享受大自然的美好。楼梯滤光:为不遮挡视野楼梯采垂直等高线规划,透空楼梯设计也将光影与自然过筛展现特殊框景。
2F — Inhabited (Nest): The highest level hosts the primary suite and roof terrace. Overlooking the valley, clouds, and constellations, it becomes a private sanctuary in the sky—where dawn fog, starry nights, and mountain breezes shape a daily sense of wonder. Filtered Stair Light: To preserve uninterrupted views, the stair is conceived as a vertical contour—an open, permeable structure that filters light, air, and scenery. The porous steps frame shadows and greenery as one moves, turning circulation into a continuous act of viewing.
▼起居室,living room

永续与共生 Sustainability & Coexistence
这座建筑既是望向远山的“框”,也是穿梭林间的“廊”,亦为人与自然联系的“桥”。谦卑地退让,让风、光、雨、绿成为空间的主角。在这里,时间不再以时钟度量,而是随着树叶的荣枯与光影的推移,缓缓流动。永续与共生 本案的永续并非一份勾选清单,而是一种克制与尊重的态度。建筑不试图凌驾于山坡之上,而是与地形协商——将扰动降到最低,让自然持续作为空间的主要性格与主角存在。
Sustainability in this project is not treated as a checklist, but as an attitude of restraint and respect. The building does not dominate the hillside; it negotiates with it—minimizing disturbance and allowing nature to remain present as the primary character of space.
By lifting and cantilevering key circulation elements, the ground is preserved for vegetation growth and ecological continuity. The house embraces natural light, wind, and seasonal humidity as part of its atmosphere, reducing reliance on excessive artificial control. Here, architecture becomes an interface—helping humans live gently within a complex natural system.
▼以轻触大地方式建筑与自然共生,
Build in a way that gently touches the earth to coexist with nature


▼依照现地林相退缩与自然共生,
Retreat in accordance with the local forest landscape and coexist with nature

材质性与氛围 Materiality & Atmosphere
材料的选择强调触感、通透与安定感——以此支撑“借居”的居所意图。透明并非用来炫示,而是作为消弭边界的工具:玻璃界面延伸视线至谷地深处,而层叠的结构框架则建立节奏与比例,却不以自身压过地景。建筑也被设计成能承载时间的容器。光成为一种材料,影成为装饰,雨成为声音。它不与自然竞争,而是让自然被看见——使森林变得可见、可闻,也可被栖居。
Material choices emphasize tactility, permeability, and calmness—supporting the intent of a “borrowed” dwelling. Transparency is used not as spectacle, but as a tool to dissolve edges: glass surfaces extend sightlines into the valley, while layered structural frames establish rhythm and proportion without overwhelming the landscape. The architecture is designed to host time. Light becomes a material, shadow becomes ornament, and rain becomes sound. Instead of competing with nature, the building reveals it—making the forest visible, audible, and inhabitable.
▼夕阳下的景色,The scenery under the setting sun

▼傍晚,At dusk

▼水平带状线线条框景夜景,Horizontal ribbon lines frame the night view

▼夜景,night view

结语 Conclusion
《隐山林居》透过抬升与悬挑关键的动线构件,地面得以保留给植栽生长与生态连续性。住宅也将自然光、风与季节性的湿度纳入空间氛围的一部分,降低对过度人工控制的依赖。在这里,建筑成为一种介面——协助人以更温柔的方式,栖居于复杂而动态的自然系统之中。
Hidden Mountain Dwelling is simultaneously a frame for distant ridgelines, a corridor weaving through woodland, and a bridge reconnecting human life with nature. It steps back with humility, allowing wind, light, rain, and greenery to lead the story.Here, time is not measured by clocks, but by the changing of leaves and the drifting of light—slowly, quietly, like a landscape breathing.
▼平面图,plan

▼立面图,elevation

▼剖面图,section

Project name:Hidden Mountain Dwelling
Project type: Private Residence.
Design: WSAA Design Team
Website: https://www.facebook.com/wsaa2017
Contact e-mail: wsaa.issac@gmail.com
Design year: 2021
Completion Year: 2025
Leader designer & Team: Weng Sung Hao (Lead Architect)
Project location: Nanzhuang Township, Miaoli County, Taiwan
Gross built area: Building Area: 770㎡
Photo credit:Lanyuphoto














