广州白云(棠溪)站东地块双塔室内设计,广州 / 上海都设营造建筑设计事务所有限公司
延续白云站“水润木棉”的建筑哲思,以白云山的层峦叠翠为灵感,创造一处可驻留、可呼吸、可与自然对话的沉浸式办公场所,与高效舒缓兼具的工作氛围,重塑城市云端的工作理想与空间形态。
Continuing the architectural ethos of “Water Embracing the Kapok” from Baiyun Station, and inspired by the undulating greenery of Baiyun Mountain, we have created an immersive workplace that invites pause, encourages breath, and fosters dialogue with nature. By balancing efficiency with tranquility, this design reshapes the ideal of work and spatial form in the city’s clouds.
▼四层“云端大堂”,弧形顶面形成自然引导,将城市喧嚣隔绝,让白云山成为空间的永恒对景与精神锚点。On the fourth floor, the “Cloud Lobby” features a gently curved ceiling that creates a natural flow, shielding the space from the noise of the city and framing Baiyun Mountain as a timeless backdrop and spiritual anchor.

由都设(上海都设营造建筑设计事务所有限公司)担纲室内设计的广州白云(棠溪)站东地块塔楼公区项目,其室内空间已于近日随项目整体交付逐步呈现。广州白云站是 “亚洲最大铁路综合枢纽之一”,配套场站综合体工程是实现其 “站城融合” 模式的基础,东地块双塔室内设计以建筑与立面逻辑为起点,延续“高山流水”的形态语言,将立面语言延伸至室内尺度,实现建筑、立面与室内空间的系统协同,助力枢纽从交通设施向城市公共活动空间的整体演进。
The interior spaces of the Tower Public Areas at the East Plot of Guangzhou Baiyun (Tangxi) Station, designed by DuShe Design (DuShe Architectural Design Co. Ltd., Shanghai), have recently been gradually unveiled following the overall delivery of the project. As one of the “largest railway transportation hubs in Asia,” Guangzhou Baiyun Station relies on its supporting station complex to realize the “Station-City Integration” model. The interior design of the East Plot Twin Towers takes the architectural and facade logic as its starting point, continuing the morphological language of “High Mountains and Flowing Water.” By extending the facade language to the interior scale, the design achieves systematic synergy between the architecture, facade, and interior spaces, facilitating the hub’s overall evolution from a mere transportation facility into a vibrant urban public activity space.
▼建筑为山,幕墙为水,“水润木棉”是贯穿从宏大到细微的整体设计基因。The architecture forms the mountains, and the curtain wall flows like water. “Water Embracing the Kapok” serves as the holistic design DNA that runs through everything, from the grand scale to the minute details.

东地块双塔楼矗立于广州白云站这一超级TOD枢纽之上,定位为大湾区独角兽企业总部写字楼。我们希望它不仅是在枢纽上盖一座写字楼,更是对传统枢纽上盖办公模式的突破性重塑——从单纯的交通附属,转向一个激发活力的城市节点。从建筑“高山流水”的立面语言出发,让自然的形态与意境在室内空间延续生长,精准回应新兴企业对空间品质、人才吸引与社群连接的深层需求。在集约高效的交通枢纽之上,创造一个有辨识度、与自然人文连接的办公场所。Standing atop the super TOD hub of Guangzhou Baiyun Station, the twin towers on the East Plot are positioned as headquarters office buildings for unicorn enterprises in the Greater Bay Area. Our vision is not merely to build an office tower above a transportation hub, but to deliver a groundbreaking reinvention of the traditional transit-oriented office model—transforming it from a mere transportation adjunct into a dynamic urban node. Drawing inspiration from the architectural facade language of “High Mountains and Flowing Water,” the design allows natural forms and artistic conception to evolve and flourish within the interior spaces. This approach precisely addresses the deep-seated needs of emerging enterprises regarding spatial quality, talent attraction, and community connectivity. Ultimately, it creates a distinctive workplace that fosters connections with nature and culture, all within the context of an intensive and efficient transportation hub.
▼东北塔结合塔楼立面连续的流线语言,整体空间如水流倾泻般自上而下展。Integrating the continuous streamline language of the tower’s facade, the overall space unfolds from top to bottom like a cascading flow of water.

同源逻辑下的双重空间转译Dual Spatial Interpretation under a Common Logic
在统一的逻辑源头下,东地块两座塔楼依据其不同的公共属性,生长出姿态各异的空间形态。
From a unified conceptual origin, the two towers in the East Plot have evolved into distinct spatial forms, shaped by their differing public attributes.
1.东北塔|“木棉成序”Northeast Tower | “Kapok in Order”
如何让建筑立面上流淌的“水”的意象,与木棉花瓣的形态共鸣,穿越玻璃幕墙,在室内空间中延续、演化,成为人们可感、可知、可停留的体验?东北塔大堂弧形吊顶与建筑雨棚自然衔接,形成一道流畅而有力的视觉引导。通过纵向延伸与轴线强化,将进入后的动线引导转化为清晰而集中的空间体验,自然地把视线引向端头的白云山。结合塔楼立面连续的流线语言,整体空间如水流倾泻般自上而下展开,在秩序与节奏中建立清晰而稳定的公共场所形象。
▼东北塔大堂呼应白云站的上升卷曲的花瓣形态,弧形吊顶与雨棚自然衔接行形成连续的整体。The lobby of the Northeast Tower echoes the rising and curling petal form of Baiyun Station, with the curved ceiling naturally connecting to the canopy to form a continuous whole.

How can the imagery of “flowing water” on the architectural facade resonate with the form of kapok petals, traverse the glass curtain wall, and continue to evolve within the interior space, becoming an experience, that people can feel, perceive, and linger in?The curved ceiling of the Northeast Tower lobby naturally connects with the architectural canopy, forming a smooth yet powerful visual guide. Through vertical extension and axis reinforcement, the circulation upon entry is transformed into a clear and focused spatial experience, naturally directing the gaze toward Baiyun Mountain at the far end. Integrating with the continuous streamline language of the tower’s facade, the overall space unfolds from top to bottom like a cascading flow of water, establishing a distinct and stable image of a public place through order and rhythm.
▼一体化的弧面构造,让建筑语言在室内完美延续。光,成为描绘“水流”轨迹的画笔。The integrated curved structure allows the architectural language to continue seamlessly indoors. Light becomes the brush that paints the trajectory of the “flowing water.”

通过墙面与吊顶的一体化弧形构造,让建筑外部的曲线在室内无缝延续。层叠式的吊顶系统,将灯光、风口等机电设备精心隐藏,仅留下柔和洗墙光晕模拟“水流倾泻”的光影层次。天然石材的温润与铜色金属的精致在统一色调中碰撞,于简约中蕴藏丰富的细节质感。
Through the integrated curved construction of the walls and ceiling, the external curves of the building continue seamlessly into the interior. The layered ceiling system carefully conceals MEP equipment such as lighting and air vents, leaving only a soft wall-washing glow to simulate the layered light and shadow of “flowing water.” The warmth of natural stone collides with the sophistication of copper-toned metal within a unified color palette, embodying rich textural details within a minimalist aesthetic.
▼石材的弧形墙面与弧形的吊顶构件形成节奏的变化。The curved stone walls and curved ceiling components create a rhythmic variation.

▼温润的石材和柔和的光影组合成流动的空间。Warm stone and gentle light blend to create a space that flows like water.

大堂向内展开的空间序列在纵深方向被持续拉伸。弧形顶面与线性灯光共同构成明确的视觉指向,使电梯厅及相关公共区域不再被简单理解为功能性空间,而成为大堂体验的自然延续。
The inwardly unfolding spatial sequence of the lobby is continuously stretched along the depth. The curved ceiling, together with the linear lighting, forms a clear visual orientation, transforming the elevator lobbies and related public areas from mere functional spaces into a natural continuation of the lobby experience.
▼大堂梯厅铜色弧形金属吊顶,让步入其中的访客仿佛踏上了一辆穿梭时空的列车。The coppertoned curved metal ceiling in the lobby elevator hall creates an experience where visitors feel as if they have boarded a train traveling through time and space.

▼楼层标识采用源自老车站的标识构成方式,以回应白云站作为交通枢纽的空间属性。The floor identification adopts a signage composition derived from old railway stations, responding to the spatial identity of Baiyun Station as a major transportation hub.

2.东南塔|“潮涌珠江”Southeast Tower | “Tide of the Pearl River”
如果说东北塔是沉稳的序曲,东南塔则是激昂的乐章。大堂以“潮涌”为主题,顶面化为一道连续起伏的波浪,充满动势与能量,仿佛将珠江的勃勃生机凝固定格。大堂顶面采用连续起伏的曲线构造,呼应建筑立面与雨棚的线性语言,并通过由低至高的空间引导,将人流自然引入室内。墙面、地面与吊顶在材质与构造上形成连续关系,使室内空间成为建筑表达在内部尺度上的延伸。
▼通过由低至高的空间引导,将人流自然引入室内。Through spatial guidance that rises from low to high, pedestrian flow is naturally drawn into the interior.

If the Northeast Tower is a steady prelude, the Southeast Tower is a stirring crescendo. Taking “Surging Tide” as its theme, the lobby ceiling transforms into a continuous undulating wave, full of momentum and energy, as if freezing the vibrant vitality of the Pearl River in time. The lobby ceiling adopts a continuously undulating curved structure, echoing the linear language of the architectural facade and canopy. Through spatial guidance that rises from low to high, pedestrian flow is naturally drawn into the interior. The walls, floor, and ceiling form a continuous relationship in terms of material and construction, allowing the interior space to become an extension of the architectural expression at an intimate scale.
▼承接翻起的雨棚,形成具有方向性与能量感的公共入口空间。Continuing from the upturned canopy, it forms a public entrance space with a strong sense of direction and energy.

▼东南塔大堂顶面采用连续起伏的曲线构造,雨棚势能翻涌至室内。The lobby ceiling of the Southeast Tower features a continuously undulating curved structure, allowing the momentum of the canopy to surge into the interior.

在细部层面,流线型金属片以首尾相连的方式呈波浪状展开,构建出动感而连续的空间形态。机电设施如照明、送风口及喷淋装置等均巧妙隐藏于金属片间隙之中。白色灯具与吊顶融为一体,避免视觉突兀;金属线条遵循编织式构造逻辑,曲线背衬深灰色穿孔板,既起到固定作用,又满足排烟通风功能需求,同时有效遮蔽吊顶内部结构与管线系统。
▼左图-吊顶线条平面示意,右图-吊顶线条断面示意。Left: Ceiling Line Plan Diagram Right: Ceiling Line Section Diagram

At the detailed level, streamlined metal fins unfold in a wave-like pattern, connected end-to-end to create a dynamic and continuous spatial form. MEP facilities such as lighting, air supply outlets, and sprinklers are cleverly concealed within the gaps between the metal fins. The white light fixtures are integrated seamlessly with the ceiling to avoid visual disruption. Following a woven structural logic, the metal lines are backed by dark gray perforated panels. This design not only serves a fixing function but also meets smoke exhaust and ventilation requirements, while effectively concealing the internal ceiling structure and piping systems.
▼每一片流线型金属都是一次精密的定制,其间隙巧妙收纳所有设备,实现纯粹视觉与完备功能的无缝融合。Each streamlined metal fin is a precise custom creation. Their gaps cleverly accommodate all equipment, achieving a seamless fusion of pure aesthetics and complete functionality.

墙面与地面采用相同材质进行连续铺装,增强空间的整体感。墙面褶皱肌理与吊顶形态形成视觉互动,赋予大堂动态韵律感,塑造生动的空间形象。石材墙面通过渐变三角面处理,强化雕刻感与动感效果,延续吊顶的律动节奏。顶部凹槽设置洗墙灯光,勾勒出清晰轮廓,突出褶皱肌理特征,进一步强化材质表现力。在转角部位,墙面采用45度斜切处理,并集成标识导引系统,不仅自然引导视线朝向电梯厅,也提升了细节的层次感与功能性。The walls and floor adopt the same material for continuous paving, enhancing the overall sense of space. The folded texture of the walls engages in a visual dialogue with the ceiling form, endowing the lobby with a dynamic rhythm and shaping a vivid spatial image. The stone walls are treated with gradient triangular facets to enhance their sculptural quality and dynamic effect, continuing the rhythmic flow of the ceiling. Recessed wall-washing lights are installed in the top grooves to outline clear contours, highlight the characteristics of the folded texture, and further strengthen the expressive power of the material. At the corners, the walls are finished with a 45-degree miter cut and integrated with the signage system. This not only naturally guides the line of sight toward the elevator hall but also enhances the layering and functionality of the details.
▼墙面石材通过渐变斜面产生韵律感。The stone wall creates a sense of rhythm through the use of gradually changing inclined surfaces.

▼石材斜切丰富细节变化。The mitered stone edges enrich the details with subtle variations.

▼电梯厅延续墙地一体化设计语言,提取广州地铁标识系统的几何特征作为灯带构成的设计原型,并将其延伸至墙面与吊顶,形成清晰且具有识别性的空间界面。The elevator hall continues the integrated wall-floor design language. Extracting the geometric characteristics of the Guangzhou Metro signage system as the design prototype for the light strips, the design extends them to the walls and ceiling, forming a clear and recognizable spatial interface.

3.地面层转换大堂及标准层|建筑逻辑在日常层级中的延续Ground Floor Transfer Lobby & Typical Floors | The Continuation of Architectural Logic in Daily Hierarchies
在以建筑与立面逻辑为起点的整体框架下,地面层转换大堂与标准层公共界面承担着将空间语言转译至日常使用层面的角色。设计不再追求形式上的强化,而是通过对材料体系、构造方式与空间秩序的统一控制,使整体概念在不同尺度与使用频率下保持一致的判断。地面层空间延续了四层主大堂的构成逻辑,在保持曲线关系与整体气质的前提下,对材料与做法进行有序简化。Within the overall framework rooted in architectural and facade logic, the Ground Floor Transfer Lobby and the public interfaces of the Typical Floors serve as the bridge that translates the spatial language into the realm of daily use. Instead of pursuing formal exaggeration, the design maintains a consistent aesthetic across varying scales and usage frequencies through the unified control of material systems, construction details, and spatial order. The Ground Floor space continues the compositional logic of the 4th-floor Main Lobby, streamlining materials and construction methods in an orderly manner while preserving the curvilinear relationships and overall temperament.
▼天花由铝型材转为涂料体系,地面由石材调整为瓷砖。The ceiling transitions from an aluminum profile system to a painted finish, while the flooring is adjusted from stone to ceramic tiles.

标准层公共界面则进一步回到高频、长期使用的现实语境中。设计通过稳定而克制的体系控制,使电梯厅与公共走道在反复出现的日常场景中,持续保持与整体建筑逻辑一致的完成度。这一层级的设计不强调单点效果,而强调系统在长期运行中的可靠性——也正是都设在复杂项目中始终坚持的设计价值所在。
The public interfaces of the Typical Floors further return to the practical context of high-frequency, long-term use. Through stable and restrained systematic control, the design ensures that the elevator lobbies and public corridors maintain a level of completion consistent with the overall architectural logic amidst the repetitive daily scenarios. The design at this level does not emphasize singular focal points but rather the reliability of the system during long-term operation—this is precisely the design value that Dushe consistently upholds in complex projects.
▼墙面则通过铝板转印石材的方式,延续与主大堂一致的肌理表达。The walls utilize a stone-pattern transfer process on aluminum panels to maintain the same textural expression as the Main Lobby.

结语|一种以结果为导向的设计体系Conclusion | A ResultsOriented Design System
在专业愈发细分、交接常现断层的今天,白云(棠溪)站东地块双塔项目是一次难得的“整体性”实践。当室内设计从建筑概念萌发之初便深度介入,与建筑、幕墙、灯光、机电进行一体化构思,所能实现的并非简单的叠加,而是一种浑然天成的空间能量。四层大堂的那幅山景,不仅是视觉的馈赠,更是这种整体性思维结出的果实。它提醒我们:最好的办公空间,从不让人感到被工作围困,它让人抬头见山,心中有序,在高效之中,仍能保有与天地自然共鸣的从容。
At a time when professional disciplines are increasingly fragmented and handoffs often disjointed, the Baiyun (Tangxi) Station East Plot Twin Towers project represents a rare practice in “holistic” design. When interior design becomes deeply involved from the very inception of the architectural concept, and evolves in an integrated manner with architecture, facade, lighting, and MEP, the outcome is not a simple sum of parts, but a seamless, inherent spatial energy. The mountain view framed in the 4thfloor lobby is more than a visual gift; it is the natural fruit of this holistic way of thinking. It reminds us that the best office space never makes people feel trapped by work. Instead, it allows them to look up and see the mountains, to feel centered and ordered, and to maintain a sense of calm resonance with nature even amidst highefficiency work.
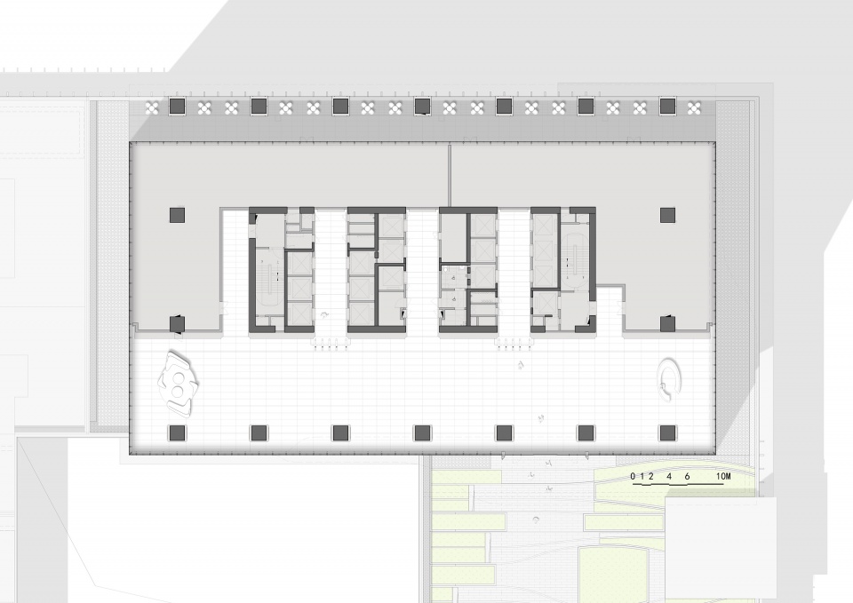
▼东北塔空中大堂平面图,Northeast Tower Sky Lobby Plan

▼东南塔空中大堂平面图,Southeast Tower Sky Lobby Plan

▼东北塔空中大堂立面图,Northeast Tower Sky Lobby Elevation

▼东南塔空中大堂立面图,Southeast Tower Sky Lobby Elevation

▼东北塔空中大堂剖面图,Northeast Tower Sky Lobby Section

▼东南塔吊顶的曲线形态,与雨棚对应。The curved form of the Southeast Tower ceiling corresponds to that of the canopy.

▼东南塔空中大堂剖面图,Southeast Tower Sky Lobby Section

▼东北塔地面大堂剖面图,Northeast Tower Ground Lobby Section

项目信息
General Information
Project Name: Guangzhou Baiyun (Tangxi) Station East Plot – Twin Towers Interior
Completion Year: 2025
Gross Built Area: Approximately 16,320 square meters (including 7,820 square meters for the Northeast Tower and 8,500 square meters for the Southeast Tower)
Design Firm: DuShe Architectural Design Co.Ltd., Shanghai
Company Website: www.shdsd.cn
Contact Name: Jielu Zhu
Contact e-mail: zhujielu@shdsd.cn
Firm Location: 5F No.436 Hengfeng Road, Jingan District, Shanghai
Project location: East side of Shicha Road, Xinshi Sub-district, Baiyun District, Guangzhou
Additional Credits
Design Firm: DuShe Architectural Design Co. Ltd., Shanghai
Design Team: Yijia Liu, Tianqi Ding, Yudan Li, Yanxin Li, Yujia Zhai,Juntao Kong,Ruifeng Qiang
Clients: Guangzhou Hongsheng Real Estate Development Co., Ltd.
Overall Lead & Architectural Design: Guangzhou Metro Design & Research Institute Co., Ltd.
Interior Constructor: China Railway Construction Engineering Group Co., Ltd.
Façade Design: Architectural Design and Research Institute of SCUT Co., Ltd. & Academician He Jingtang Studio
Collaborators: Shenzhen Zhongzhuang Construction Group Co., Ltd.
Categories
Please refer to the project categories on the website: https://www.archdaily.com/search/projects (up to three can be selected): Offices, Interior Design, Public Architecture
Material\Branding
Please provide the three materials used in the project and the corresponding brands (required, you can directly fill in the Chinese name)
1.Ceramic tiles (Nobel Tiles)
2.Engineered stone (Gelandi Solid Surface)
3.Paint (Dulux)
Media Provider
Photo credits: TAL
Photographer’s website: https://thinkingandluck.com
Photographer’s e-mail: work@thinkingandluck.com














