嘉都艺术中心、社区咖啡沙龙与艺术家工作室,河北 / 即作建筑
项目背景与定位Project Background
自1998年中国住房商品化改革以来,房地产行业高速发展,北京城市化进程不断加速,大量人口的涌入催生了巨大的居住需求。与之毗邻的河北燕郊凭借地理优势,逐步成为承接首都居住功能外溢的重要区域,大规模住宅建设由此塑造了其以居住社区为主导的城市肌理。随着中国城市发展逐渐从增量建设转向存量更新,如何在既有社区结构中重新激活空间价值,将现存建筑资源转化为具有公共意义的社区资产,成为新的城市议题。
Since China’s housing market reforms in 1998, rapid urban expansion has reshaped cities across the country. On Beijing’s eastern edge, Yanjiao in Hebei Province has emerged as a sprawling residential satellite city. Large-scale residential development has consequently shaped an urban fabric dominated by housing communities. As China’s urban development gradually shifts from incremental construction to stock renewal, a new urban agenda has emerged: the reactivation of spatial value within existing community structures, transforming building stock into community assets of public significance.
▼燕郊鸟瞰,Aerial view of the project

本次设计对象为2021年竣工的住宅社区。我们通过三个不同功能空间的更新实践——将配套建筑重塑为社区艺术中心,相邻区域改造为社区咖啡沙龙,并选取一组住宅单元设计为艺术家工作室——形成公共展示、社交生活与个人创作的艺术生态链场景,为存量社区提供了一种轻量化、可衍生的“点状激活”路径。
The project is located within a residential community completed in 2021. Through the transformation of three distinct spaces—the conversion of an ancillary building into a community art center, the renovation of an adjacent area into a community café, and the adaptation of a residential unit as an artist studio—a spatial network is established, linking public exhibition, social interaction, and individual creative practice. This project offers a cost-effective and generative model of “punctual activation” for existing residential communities.
▼场地原状,Site original condition

嘉都艺术中心:动态的“艺术容器”Jiadu Art Center: A Dynamic Vessel for Art
嘉都艺术中心旨在构建一个具有高度开放性与包容度的社区公共场所。我们希望空间本身成为一种可变的容器,通过灵活转换适应不同使用需求,减少临时搭建,提升使用的可持续性。
The art center is conceived as a dynamic and inclusive public space that fosters community engagement—a mutable vessel adaptable to different programmatic needs through flexible transformations, thereby reducing temporary construction and enhancing long-term sustainability.
▼移动墙体的使用,Movable wall in use



我们采用“轻介入”策略回应原有空间的复杂性。在梳理结构、墙体、管井管线与空间关系后,新的建造如同在空间置入一组大型装置,以“放置”的动作重塑空间秩序。通过可移动多重墙面系统实现空间功能的自由转换:中部墙面闭合时,空间划分为两个独立区域,可同步容纳两组独立活动;完全打开时,则形成贯通场域,为大型活动提供可能。其他墙面通过推拉变换,提供多样活动流线与展览模式,灵活响应展览、讲座、放映、工作坊、儿童活动等多元场景。空间中的柱体被钢架与麦秸板所构筑的体量围合,包裹管线设备的同时,成为集展示、休憩于一体的围柱装置,创造驻足交流的角落。模块化家具系统进一步强化空间适应性,使用时灵活组合,承担桌、椅、展架等功能;闲置时隐入背景,保持空间整体性。
▼使用模式分析图,Modes of use diagram

In response to the constraints of the existing structure and mechanical systems, the intervention adopts a “light-touch” approach. By reorganizing the spatial configurations, the new construction introduces a series of large-scale installations that reshape the spatial order through their strategic placement. multi-layer system of movable walls enables fluid functional configurations. When the central walls are closed, the space divides into two independent areas capable of hosting simultaneous activities. When fully opened, it unfolds into a continuous field suitable for larger events. Other walls reposition to create varied circulation routes and exhibition surfaces, allowing the space to accommodate exhibitions, lectures, screenings, workshops, and children’s activities. Existing columns are wrapped in steel-framed volumes clad in straw board, becoming hybrid devices that integrate display, seating, and concealed services—creating niches for informal encounters. A modular furniture system further enhances adaptability: during events, the pieces can be flexibly combined as tables, chairs, or display stands; when not in use, they recede into the background, preserving the overall spatial clarity.
▼展览空间,Exhibition space


▼展览状态,Exhibition in progress


这种动态的空间机制,令社区中的参与者得以轻松地发起各种活动,激发社群对空间的想象力,从而在持续的自发参与中,催化社区与艺术的共同生长。
This dynamic spatial system allows community members to easily initiate a wide range of activities, encouraging new interpretations of the space. Through continuous and spontaneous participation, it catalyzes the shared growth of community life and artistic practice.
▼围柱装置 ,Column-wrapping installation

▼模块化家具 , Modular furniture


社区咖啡沙龙:社群的客厅Community Café: A Shared Living Room
社区咖啡沙龙延续艺术中心的设计策略,通过梳理原有建筑元素,转化为空间叙事线索,塑造如剧场般富有节奏的空间体验。入口区域营造展廊般的到达体验,两侧墙体以材质对比和形式塑造的秩序感引导访客步入内部。将原有大面积弧形落地窗作为视觉重心,沿窗设置低台吧座,最大化景观视野的同时化解玻璃幕墙的安全隐忧。木制吊顶以柔和形态遮盖原有顶面杂乱的结构,界定群体座位区域。其下方,麦秸板通过堆叠构成雕塑般的展示体量,以符号化形体强化空间叙事。制作吧台、储藏与卫生间整合为热轧钢体量,形成清晰的服务单元。
▼空间体验分析图 , Spatial experience diagram

The community café extends the design strategy of the art center, transforming existing architectural elements into spatial narrative cues and creating a theatrical spatial sequence. The entrance unfolds like a gallery prelude: flanking walls employ material contrast and a deliberate formal order to guide visitors inward. The existing glass façade is preserved as the visual focal point, with a continuous low table set along it—a gesture that frames the landscape while addressing safety concerns associated with its outward-leaning geometry. A timber suspended ceiling, with its gentle curvature, conceals the existing structure and services above while visually defining the main communal seating area. Below it, stacked strawboards form sculptural display volumes whose symbolic forms reinforce the spatial narrative. The service counter, storage, and restroom are consolidated into a single volume clad in hot-rolled steel, establishing a clear service core within the open plan.
▼就餐区 , Dining Area



▼制作吧台, Service counter


我们通过功能体量形态的塑造、材质对比与家具布置,划分出不同氛围的功能场景,建立内部环境与户外风景的对话,在维持空间流动性的同时,营造兼具社交性与独立感的多层次环境。由此,咖啡沙龙不仅是艺术中心的配套功能,更成为社区中自然形成的社交枢纽。
Functional volumes, contrasting materials, and carefully arranged furniture create zones of varying atmospheres. These spatial layers establish a dialogue with the surrounding landscape while maintaining continuity and balancing sociability with moments of privacy. In this way, the community café becomes more than a supporting facility for the art center—it naturally evolves into a social hub for the neighborhood.
▼群体座位区域, Communal seating area

▼入口处立面, Entrance area


艺术家工作室:创作的孵化器Artist Studio: An Incubator for Creative Practice
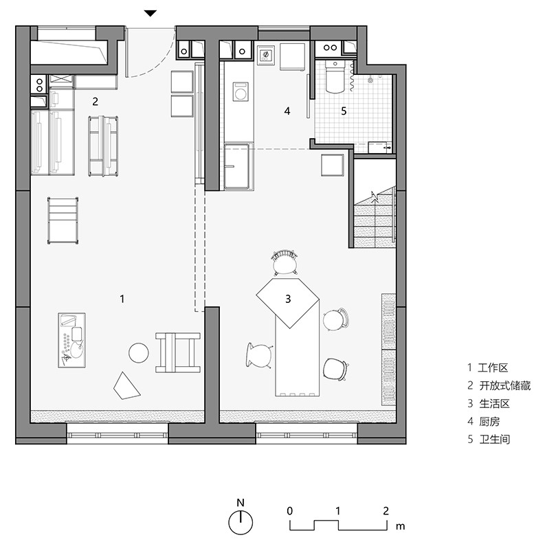
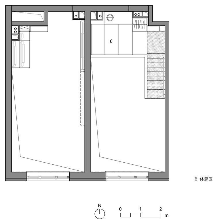
艺术家工作室需满足创作、生活与社交多重功能,在有限面积内实现高度灵活性与复合性。项目选取社区典型户型中的相邻两户南北向窄长开间,通过打通两户间的非承重墙形成2.4米宽视觉通廊,优化东西向观看距离。3.7米原始层高为创作提供适宜尺度,亦为生活区的局部跃层结构提供可能。一道可移动展墙系统在空间中部游移,可灵活分隔工作区与生活区,并允许根据使用需求进行复制扩展,承担画作储藏与展示功能,更为艺术家在创作时提供多幅作品同时工作的可能性。
▼移动展墙系统+ 窗系统分析图, Movable wall system + window system diagram

The artist studio serves as a container for creation, daily life, and social interaction—achieving remarkable flexibility and programmatic richness within a limited footprint. The project adapts two adjacent, narrow, north–south oriented residential units typical of the community’s layout. By removing non-load-bearing walls, a 2.4-meter-wide visual corridor was created, extending the east–west sightline. The original 3.7-meter floor height provides a comfortable scale for artistic production while also allowing the insertion of a partial mezzanine within the living area. A movable wall system glides through the center of the space, flexibly separating working and living areas. The system can be replicated as needed, functioning as both artwork storage and display while enabling the artist to work on multiple pieces simultaneously.
▼工作室概览, Overview of the studio



▼多功能桌, Multifunctional table

▼厨房, Kitchen

窗系统通过全遮光与半遮光蜂窝帘的垂直调节,结合整扇框架的水平推拉,同步满足光线控制、自然通风与隐私保护需求。定制多功能桌融合热轧钢板与桦木多层板,在创作台面、生活餐桌与会客场所之间自由转换。
Day-and-night honeycomb blinds regulate the light environment through vertical movement. Combined with horizontally sliding frame, they address natural ventilation, privacy, and light control. A custom-designed table fabricated from hot-rolled steel and birch plywood transitions seamlessly between work surface, dining table, and meeting area.
▼画作与空间, Artwork within space


设计回应了艺术创作与生活中的流动性,工作室不被设定为单一功能的“完成状态”,而是一种可持续调整的工作框架,在艺术实践的发展过程中不断被重新定义与使用。
The design embraces the fluidity inherent in artistic practice. The studio is not conceived as a fixed functional space, but as an adjustable working framework that can evolve alongside the artist’s practice.
▼移动墙体系统, Movable wall system

▼窗系统的光线控制, Light control with honeycomb blinds

材料策略:本真与克制的表达Material Strategy
材料策略上,我们致力于呈现材质自身的表达,通过系统化材料语言串联三个空间。水磨石地面以细腻颗粒与中性色调光反射,为空间建构均匀柔和的环境基底;热轧钢板在保留工业生产痕迹的同时,展现工整质感;麦秸板通过几何化堆叠,既形成富有表现力的展示体量,又赋予空间温暖肌理。这些材料的并置,在坦诚展现工业属性的同时,通过彼此对话,共同构筑空间平实而克制的基调,让材质本身成为空间叙事的重要参与者。
The material strategy emphasizes the intrinsic qualities of materials, using a coherent palette to connect the three spaces. Terrazzo flooring with fine aggregates establishes a neutral and evenly luminous ground. Hot-rolled steel retains traces of industrial fabrication while allowing precise detailing. Strawboard, through geometric stacking and composition, forms expressive display volumes while introducing warm textural depth. This juxtaposition of materials—honestly expressing industrial character while establishing dialogue between surfaces—shapes the project’s restrained spatial atmosphere, allowing the materials themselves become active participants in the spatial narrative.
▼材料细部, Details

社区艺术生态的生成Cultivating a Community Art Ecosystem
在以住宅开发为主导形成的社区结构中,文化空间往往缺乏持续发生的公共生活。本项目并未以单一文化建筑回应这一需求,而是通过对既有商业与住宅空间的转化,将嘉都艺术中心、社区咖啡沙龙与艺术家工作室构建为一个彼此关联的空间网络。随着运营的展开,一些艺术家工作室与小型画廊也相继入驻社区,进一步丰富了这一文化网络的结构。项目以小尺度、分布式的空间结构,以“轻介入”的设计策略,撬动社区公共生活的潜能。在使用与聚集之中,逐渐生成一种能够自我生长、持续演化的开放型社区艺术生态。
Within community structures largely shaped by residential development, cultural spaces often lack sustained public life. This project reorganizes existing commercial and residential spaces to form an interconnected spatial network. As operations have unfolded, additional artist studios and independent art spaces have taken root in the community, further enriching the structure of this cultural network. Through a small-scale, distributed spatial structure and a “light-touch” intervention strategy, the project unlocks the potential for public life within the neighborhood, gradually cultivating an open-ended community art ecosystem capable of self-generation and continuous evolution.
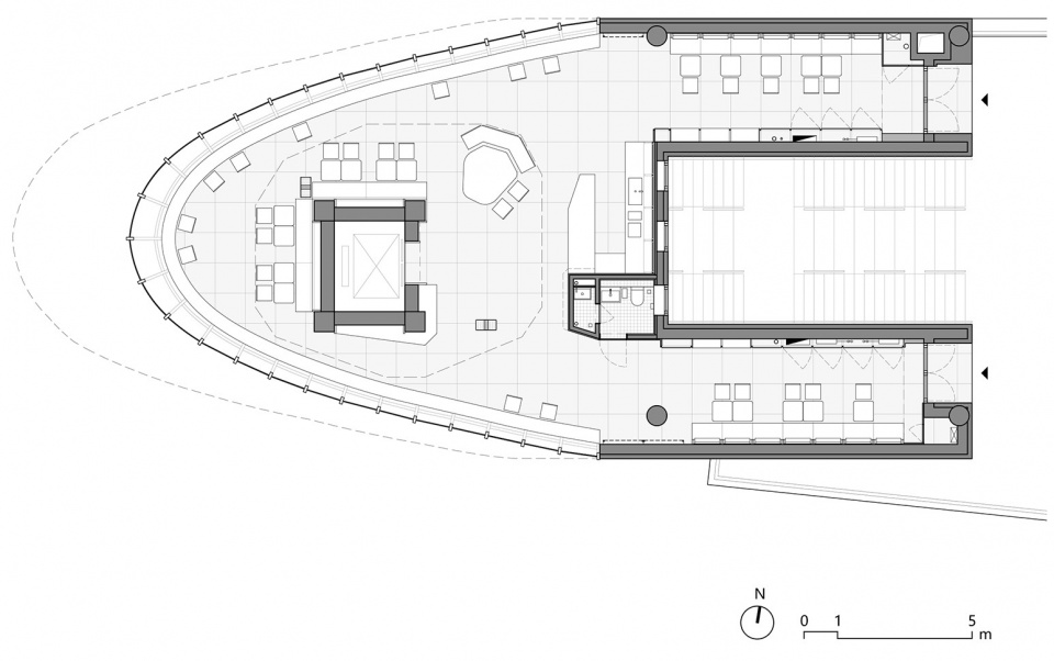
▼嘉都艺术中心平面图, Jiadu Art Center Plan

▼社区咖啡沙龙平面图,Community Cafe Plan

▼艺术家工作室平面图,Art Studio Plan


项目信息
project name:
Regenerating the Existing: A Community Art Ecosystem in Practice
client: Jiadu
project type: Adaptive Reuse / Urban Regeneration/ Community Cultural Infrastructure
design firm: MINOR lab
website: minorlab.info
contact email: info@minorlabarchitects.com
design team: LIU Chen (design principal), ZHAO Dan (project manager / construction supervisor), JIN Weixi
photography: MINOR lab
design area: 533㎡(Art Center 256㎡, community café: 185㎡, Artist Studios 92㎡)
main materials: hot-rolled steel, precast terrazzo tiles, strawboard, birch plywood, OSB, galvanized steel pipe, fiber cement board, self-leveling cement, ceramic tiles, paint
project location: Yanjiao, Hebei Province, China
project duration: 2024.05-2025.09
Art Center + Coffee Salon: Design Phase: 2025.03 – 2025.05; Construction Phase: 2025.06 – 2025.09
Artist Studios: Design Phase: 2024.05 – 2024.06; Construction Phase: 2024.07 – 2024.08














