Coach银座旗舰店,东京 / CURIOSITY
CURIOSITY为位于东京标志性银座地区的COACH银座旗舰店打造了立面与室内空间设计。
CURIOSITY has designed the façade and interior of the COACH Ginza Flagship, unveiled in Tokyo’s iconic Ginza district.
▼旗舰店外观,flagship store facade

该项目标志着Coach品牌发展的新篇章,通过对同一场地上一处既有门店的创新性改造而实现。通过对外部与内部的整体重塑,这座旗舰店建立起全新的建筑形象,在回应品牌持续演进愿景的同时,也进一步巩固了其在全球顶级零售目的地中的存在感。
The project marks a new chapter for the Coach brand, realized through the innovative transformation of an existing store on the same site. By reimagining both exterior and interior, the flagship establishes a renewed architectural identity that reflects Coach’s evolving vision while reinforcing its presence in one of the world’s most prestigious retail destinations.
▼旗舰店外观,flagship store facade

店铺设计以突出Coach全新的标志性“C”字徽为核心。外立面采用大胆的图形化表达,将品牌符号转译为建筑语言,在银座城市景观中强化其视觉存在。立面覆以具有肌理的金属材质,微妙呼应了Coach标志性皮革的触感特质。转角处通过戏剧性的玻璃切口引入内部视线,使悬浮的品牌标识成为视觉焦点,从街道层面即吸引目光。
The store is designed to highlight Coach’s new iconic “C” emblem. The exterior adopts a bold graphic expression, translating the brand symbol into an architectural language that reinforces its presence within the Ginza cityscape. The façade is clad in textured metal, subtly recalling the tactile quality of Coach’s signature leather. At the corner, a dramatic glass cut-out offers a glimpse into the interior, revealing the floating brand icon as a central focal point that captures attention from the street.
▼以全新的标志性“C”字徽为核心,
highlight Coach’s new iconic “C” emblem

室内空间融入了品牌发源地纽约的精神气质。建筑元素的垂直节奏呼应城市的现代主义特征,映射其标志性的天际线与高密度城市形态。顾客步入店内,便沉浸于Coach的品牌世界之中,被其经典手袋所环绕。
The interior is infused with the spirit of New York City, the birthplace of the Coach brand. The vertical rhythm of architectural elements recalls the city’s modernist character, echoing its iconic skyline and urban density. Upon entering the store, visitors are immediately immersed in the world of Coach, surrounded by the brand’s iconic bags.
▼室内空间,the interior space

背景中,原始质感的黑色金属百叶形成强烈的垂直构图,营造出大胆而具有工业气息的空间基调,传递出纽约的能量与当代态度。透过金属百叶的过滤视线,空间的层层递进若隐若现,激发访客的好奇心与期待感。这种“遮蔽与显露”的互动构建出一种探索体验,增强空间的戏剧性,引导人们不断深入。
In the background, raw black metal louvers form a strong vertical composition, creating a bold, industrial backdrop that captures the energy and contemporary attitude of New York. Filtered views through the metal louvers reveal glimpses of the space beyond, stimulating visitors’ curiosity and anticipation. This play of concealment and revelation builds a sense of discovery, heightening excitement and drawing visitors deeper into the shopping experience.
▼原始质感的黑色金属百叶,raw black metal louvers

▼营造出大胆而具有工业气息的空间基调,creating a bold, industrial backdrop

设计借鉴纽约天际线的垂直线条,并通过镜面反射营造多角度变化的视觉体验,呼应城市动态而不断变化的景观。同时,金属的冷峻现代感与橡木的自然温润形成对比,进一步强化空间氛围。用于展示品牌经典手袋的销售区域,将木材与素混凝土结合,营造出独特的工业气质。定制家具选用带有明显结疤纹理的橡木打造,唤起曼哈顿工坊般的手作气息。呼应Coach皮具上的缝线细节,天花照明以流动的线性方式组织空间,体现出对品牌工艺与传统的深度尊重。
Evoking the vertical lines of the New York skyline, the design employs mirror reflections to generate shifting perspectives from every angle, echoing the city’s dynamic and everchanging urban landscape. This atmosphere is further enhanced by the contrast between the raw modernity of metal and the natural warmth of oak wood. The sales area dedicated to the brand’s signature bags combines wood and plain concrete to create a distinctive industrial atmosphere. The original furniture, deliberately crafted in oak with visible knots, evokes the character of a Manhattan workshop. Echoing the stitching found on Coach’s leather bags, the ceiling lighting introduces a sense of flow through the space, expressing a deep respect for the brand’s craftsmanship and heritage.
▼通过镜面反射营造多角度变化的视觉体验,
employs mirror reflections to generate shifting perspectives from every angle

▼通过镜面反射营造多角度变化的视觉体验,
employs mirror reflections to generate shifting perspectives from every angle

二层被构想为一系列沉浸式空间,根据不同产品类别呈现各具特色的氛围,主要用于成衣展示及工坊体验。
The second floor is conceived as a sequence of immersive spaces, each offering a distinct atmosphere tailored to its product category, dedicated to ready-to-wear and a workshop space.
▼二层沉浸式空间,the upper level immersive spaces

男装区域置于一个具有纪念性尺度的“茧状”陈列结构之中。这种包裹性的形态营造出亲密且相对隔离的环境,使顾客得以暂时脱离主流动线,以更专注、沉静的方式进行选择。
Men’s items are presented within a monumental, cocoon-like shelving structure. This enveloping form creates an intimate, almost secluded environment, allowing customers to step back from the main flow and experience a more focused, contemplative approach to selection.
▼“茧状”陈列结构,cocoon-like shelving structure

空间的核心由“无限之墙”(Infinity Wall)定义,该装置用于展示鞋履。其环形陈列单元为每一双鞋提供独立框景,突出其设计、精度与工艺细节。
The centerpiece of the room is defined by the Infinity Wall, a feature dedicated to footwear. Its circular display elements frame each pair, drawing focused attention to the design, precision, and craftsmanship of the shoes.
▼“无限之墙”,the Infinity Wall

▼“无限之墙”,the Infinity Wall

灵感源自品牌在曼哈顿的起源,“工艺吧台”(Craftsmanship Bar)提供了一个开放而亲切的交流与共创空间。在椭圆形操作台前,顾客可以与店员直接互动,设计并打造专属的个性化产品。
Inspired by the brand’s origins in Manhattan, the Craftsmanship Bar offers a welcoming space for exchange and collaboration. At an oval counter, customers engage directly with staff to design and create unique, personalized pieces.
▼工艺吧台,the Craftsmanship Bar


▼开放而亲切的交流与共创空间,a welcoming space for exchange and collaboration

▼开放而亲切的交流与共创空间,
a welcoming space for exchange and collaboration

COACH银座旗舰店如同一座充满活力的城市灯塔,将品牌形象向城市释放。它捕捉并融合了纽约精神与东京能量的交汇点,在传统的厚重感与跨越世代的情感共鸣之间,实现了微妙而有力的平衡。
The COACH Ginza Flagship acts as a vibrant urban beacon, broadcasting the brand’s presence to the city. It captures the dynamic intersection of New York’s spirit and Tokyo’s energy, seamlessly balancing the gravitas of tradition with an emotional resonance that connects across generations.
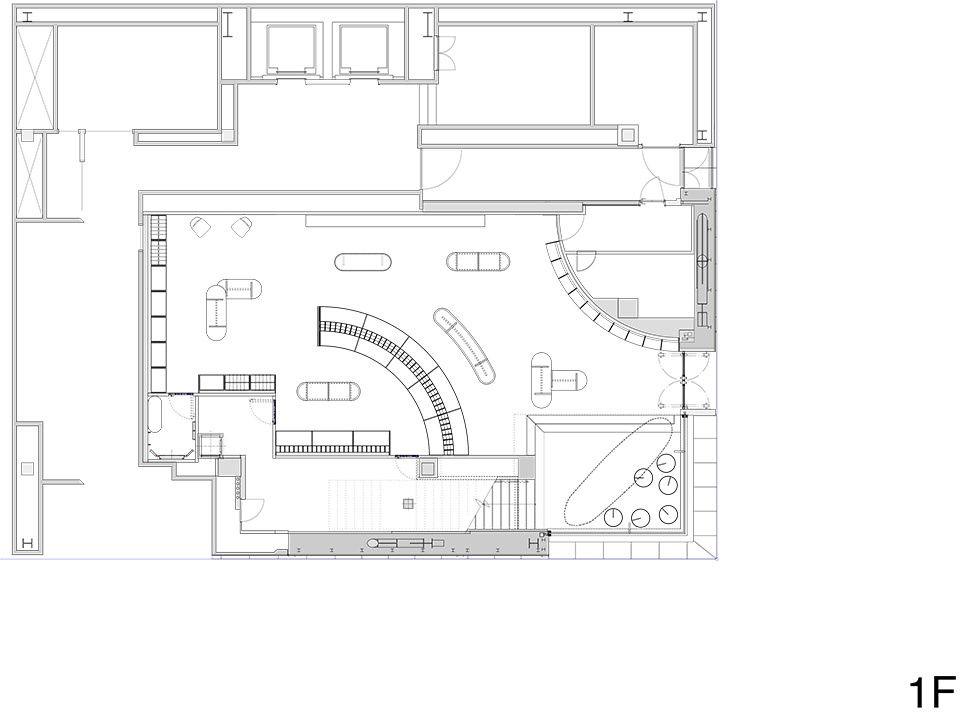
▼一层平面,ground floor plan

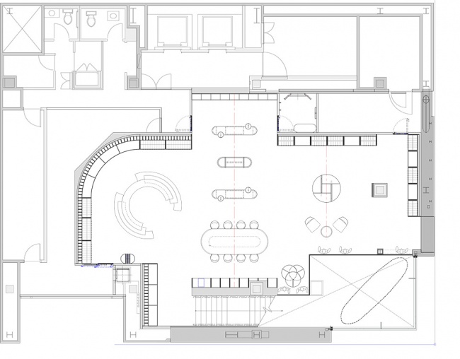
▼二层平面,first floor plan

PHOTO : SATOSHI SHIGETA














