伦敦街187号住宅楼,墨西哥 / CCA|Bernardo Quinzaños
项目位于Colonia Juárez的伦敦街,建筑将集合住宅与首层商业空间相结合。方案通过两个体量的组织方式最大化利用场地,这两个体量由一个中央庭院和一个后庭院串联,确保自然采光与交叉通风。
▼模型,Model

Located on Londres Street in Colonia Juárez, the building combines collective housing with ground-floor retail. The proposal makes the most of the site through an organization of two volumes articulated by a central courtyard and a rear courtyard, which ensure natural light and cross ventilation.
▼街区中的住宅楼,Building in the neighborhood

▼建筑外观,Building exterior view



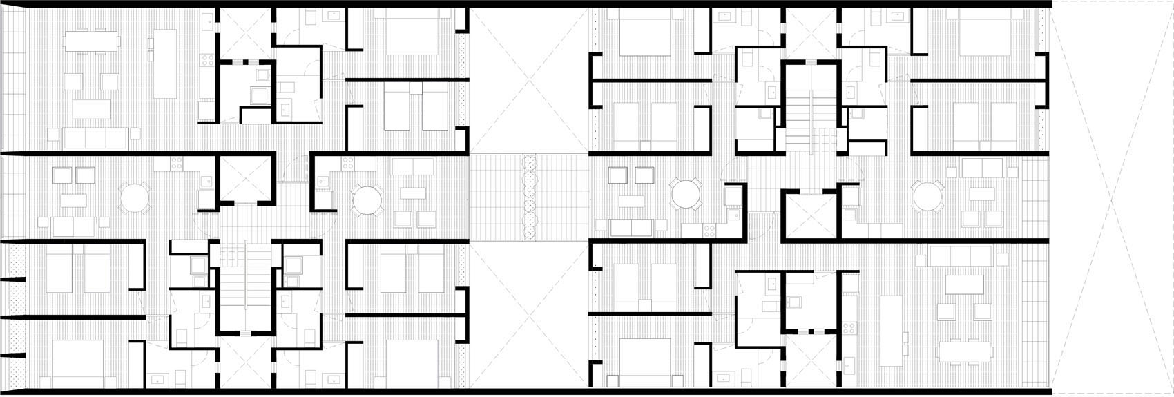
设计任务要求通过两居室与三居室单元最大化地块使用效率。为此,一个体量面向街道,另一个则布置于场地内部,两者通过两个垂直交通核心相连接。户型被组织为一种相互嵌套的平面系统,从而避免两个体量之间的直接对视,在保障居住私密性的同时不影响空间的宜居性。因此,每个单元至少朝向一个内部庭院或外部环境开窗。
▼轴测图,Axonometric drawing

▼户型组合示意,Typology arrangement diagram

The brief called for maximizing the use of the lot through two- and three-bedroom units. To achieve this, one volume faces the street while the other is set toward the interior, both connected by two vertical circulation cores. The typologies were organized as a system of interlocking floor plans that avoids direct views between the two volumes, preserving privacy without compromising livability. As a result, each unit opens onto at least one view toward the interior courtyards or the exterior.
▼庭院,Courtyard


▼庭院,Courtyard



这种内部逻辑在主立面上以垂直节奏得以表达,通过窗洞与种植槽的交替排列,与人行道旁的蓝花楹树形成对话。
This internal logic is expressed on the main façade through a vertical rhythm that alternates windows and planters, in dialogue with the jacaranda tree along the sidewalk.
▼仰视立面,Looking up the façade

▼立面近景,Façade close view


项目功能包含首层商业、多功能空间、健身房、错层停车空间、储藏室,以及预留太阳能系统的私属屋顶露台。机电设备集中布置于便于到达的服务庭院中,以便于运营与维护。主立面采用掺入红色颜料的清水混凝土建造。结构体系由轻质楼板与承重竖向核心筒构成;在内部,立面采用同色调的灰泥饰面处理,强化了外部界面与庭院空间之间的材料连续性。
The program includes ground-floor retail, a multipurpose room, gym, split-level parking, storage rooms, and private rooftop terraces prepared for solar energy systems. Technical installations are concentrated in accessible service courtyards to facilitate operation and maintenance. The main façade was built in exposed concrete pigmented in a reddish tone. The structure is resolved through lightweight slabs and load-bearing vertical cores; toward the interior, the façades are finished in stucco of the same tone, reinforcing material continuity between the exterior surfaces and the courtyards.
▼庭院仰视,Courtyard view looking up

▼首层平面图,Ground floor plan


▼二层平面图,Second floor plan


▼标准层平面图,Typical floor plan


▼五层平面图,Fifth floor plan


▼屋顶平面图,Roof plan


▼剖面图,Section

▼立面图,Elevations




Name: Londres 187
Use: Residential building
Area: 2,902 m²
Location: Mexico City, Mexico
Status: Built
Year: 2025
Office: CCA | Bernardo Quinzaños
Architect: Bernardo Quinzaños
Team: Santiago Vélez, Begoña Manzano, Andrés Suárez, Cristian Nieves, Samuel Duarte, León Chavez, Sofia Castillo, Eli Ambris, Javier Castillo, Diana Monroy
Photographer: Arturo Arrieta
Model Photography: CCA | Bernardo Quinzaños














