红岭中学石厦校区改扩建,深圳 / 土木石建筑
2018年,深圳市福田区“8+1”新校园行动计划正式启动。在高密度的城市环境下,尝试探索中小学校园的新类型,为以往效率至上的传统校园模式注入新的活力与想象。
In 2018, the “8+1 New Campus ” was launched in Shenzhen, exploring new models for primary and secondary schools within high‑density urban environment.
红岭中学石厦校区坐落于深圳福田的石厦片区,始建于2004年。这里是深圳大型社区的所有地,城中村与高层住宅小区交织共存,社区氛围浓郁。校园连同周围的一系列基础设施,组成街区内的公共服务网络。二十年间,随着周边中低密度的城中村转变为高密度的住宅区,红岭石厦校园的拓展空间日趋紧张。为了应对持续增长的学位需求,学校在原有场地内实施改扩建:拆除东侧体育馆及运动场地,并在原址新建教学与运动空间,实现功能补足与提升。改造后,学校规模从24班扩至36班,地上建筑面积由15000平方米增至43000平方米,空间容量提升近三倍。这一高密度挑战下,设计不仅要创造出高效便捷的功能布局,更应通过融入街道、呼应气候、联结新旧等多重对话,塑造出独具特色的校园场所。
Hongling School Shixia Campus, founded in 2004, is located in the Shixia neighborhood of Futian. Over two decades, as the area shifted from low‑rise urban villages to high‑density housing, the school’s expansion space diminished. To accommodate rising enrollment, the campus was remodeled in‑place: replacing the east‑side gymnasium and sports ground with new teaching and athletic spaces. The expansion increased capacity from 24 to 36 classes and nearly tripled the floor area from 15,000 to 43,000 m². Within this tight site, the design delivers an efficient layout while engaging the street, climate, and existing structures to create a distinctive campus environment.
▼被高层住区包围的校园,Campus surrounded by high-rise Buildings

▼校园鸟瞰,Birdview

在“8+1”新校园行动计划第一季的九所学校里,红岭石厦是唯一一所被实施的改扩建项目。我们在保证校园西侧教学楼正常使用的前提下,完成了整个校园的更新与扩建。这也极大地提升了设计与施工的复杂性与挑战性。它的设计经验,也为后来燎原之火的深圳南山“百校焕新”行动埋下了伏笔。
As the only intervention project among the nine schools in the first phase of the “8+1 New Campus ”, Hongling Shixia was completed while the west remaining building operated, significantly raising design and construction complexity. Its experience helped lay the groundwork for “100 Campus Renewal Plan” in Shenzhen Nanshan.
▼改造前后-鸟瞰,Before & after – Birds view

与街道共谋Engaging with the Street
在一个理想的城市里,街区代表了我们彼此共享日常场所的总和。学校、公园、街道、广场、车站、便利店……这些空间构建起属于公众的“街道生活共同体”。我们的设计,不仅希望为校内学生和社区居民提供更丰富的活动空间,也希望校园可以与城市相互借力,让人们看见街道生活的更多可能性。
In an ideal city, a neighborhood is a network of shared everyday spaces. Schools, parks, streets, and shops together create a public “street-life community.” Our design enriches activity space for students and residents while strengthening the campus-city connection—revealing new potential for urban life.
▼灯火通明的运动场照亮了整个街道,The bright sports field illuminated the street

改造前,校园操场东侧紧贴道路,栅栏围墙将学校与街道截然分离,呈现出冷漠的城市界面。唯有转角处的邮政报刊亭,隐约透露出此地作为公共空间的潜质。
Before renovation, a fence rigidly separated the school’s eastern playground from the street. Only a corner newsstand hinted at the site’s public possibility.
▼改造前后-东侧街景,Before & after – East street view

▼改造前后-东侧外立面,Before & after – East elevation

在红岭石厦校区的改造中,设计将操场抬升至7.2米的空中,其下方则植入一系列公共功能空间,包括700人报告厅、半室内篮球馆、羽毛球场、空中跑道等体育设施,以分时共享的方式向社区居民开放。
The transformation elevated the playground 7.2 meters above ground. Below it, public facilities were inserted—including a 700-seat auditorium, a semi-indoor gym, badminton courts, and an elevated track—all available for community use through time-sharing.
▼与街道仅有半层高差的环形跑道,A circular track with a half-story hight from the street

操场抬升后,上部空间依然紧贴用地边界布置,下部则“以退为进”,向内退让3米,形成倾斜的沿街立面,有效缓解了体量对街道的压迫感。原本仅3米的人行道被扩宽至6米——深圳许多道路因历史规划所限,未设置自行车道,导致人车混行、时常拥挤。拓宽后的人行道化解了街道的日常交通矛盾,营造出更友好的步行空间。边缘设置的花池与长椅,为过往行人与放学学生提供短暂休憩的场所,形成一条线性的“街道公园”。倾斜的外立面,在一定程度上起到遮阳避雨的作用,与街道旁的小叶榕共同形成“拱廊”般的半室外灰空间。校园 、街道和城市之间的边界变得柔和,行道树也真正成为校园和街道共生的有机组成部分。
▼立体运动场细部,Layering sports-field Detail

Above, the structure follows the site boundary; below, it steps back 3 meters, creating a sloping facade that eases its street presence. The sidewalk was widened from 3 to 6 meters, relieving the pedestrian-bicycle congestion common in Shenzhen. Planters and benches form a linear “street park,” while the overhang and street trees create a sheltered, arcade-like space.
▼校园边界-线型街道公园,Campus boundary – linear street park

▼校园边界-拱廊型的半室外空间,Campus boundary – arcadelike-outdoor space

城市生活也是学生学习体验的一部分。通透的立面,让在空中跑道运动的学生,能近距离观察街道的日常,体验一种生动的、关于社会生活的“非正式课程”。学生矫健的身影与欢笑声,也不时地从运动场弥漫到街道,吸引路人驻足观看。半层高差的跑道设计,连同独特而治愈的声音景观,让这种互动保持一种微妙而舒适的距离。
Urban life becomes part of learning. The transparent facade lets students observe street activity from the track—an informal social education—while their movement and laughter engage the street.
▼以退为进的校园边界,A sloping facade that eases its street presence

街道十字路口本应是公共活动的自然聚集处,改造前却被封闭的围墙和空旷的操场阻隔,使校园东北角沦为街头的“飞地”。改造后,半透明的运动场体量成为路口的重要存在,校园转而成为街角的“守望者”。每天下午四五点,这里更成为斜对面小学家长等候、交谈的社交场所。傍晚时分,灯光通明的场馆与篮球的击打声、呐喊声,照亮了整个街道。
▼改造前后-东南角街景,Before & after – South-east street view

▼东南街角轴侧,South-east corner

Once an isolated corner, the northeast intersection is now activated by the translucent sports volume—a campus that watches and gathers. By late afternoon, it becomes a social hub for waiting parents; in the evening, light and sound animate the block.
▼十字街头的守望者 日景,Day-view of the campus that watches and gathers

▼十字街头的守望者 夜景,Night-view of the campus that watches and gathers

我们在场地东南侧退让出空间,与原有报刊亭围合出一处小型市民广场。平日夜晚或节假日,周边居民可经广场沿一座人工“山丘”迂回而上,进入抬升的操场。山丘表面覆以爬藤植物,随时间渐次生长,与街道榕树连成一片绿意。市民也可经由广场进入报告厅前厅。这一空间有着如同山丘洞穴般的形态,既是报告厅的等候区,也是未来多功能的校园美术馆和社区美术馆。
▼改造前后-东北角街景,Before & after – North-east street view

▼东南街角报告厅和美术馆剖轴侧,Lecture hall & museum section

▼东南街角美术空间剖面,Museum details

A small plaza at the southeast corner, framed with the existing newsstand, allows access via a planted “hill” to the elevated playground after hours. The adjoining lobby—a cave-like space—serves as both auditorium foyer and a potential campus-community gallery.
▼退让街道的小山丘,The small hill that yields to the street

▼街道上的之字型楼梯直达空中操场,The street staircase leads to the rooftop playground

▼小山丘下的共享美术馆,Art Museum at the Foot of a Small Hill

南方操场A Playground Adapted to the Southern Climate in China
在中国南方,荫凉是建筑不可或缺的考量。如今越来越多的校园过度依赖空调,却忽略了自然气候的物理潜能。在高密度建设条件下,层叠设置的立体运动场不仅提供更多的运动场地,也创造出舒适、开放的阴影空间,同时建立校园与社区街道的联结,为重新定义南方高密度校园提供了新的可能。
▼改造前后-运动场,Before & after -Sports field

In southern China, shade is essential. Rather than relying on air conditioning, this design works with the natural climate. On a dense site, layered sports facilities provide more space while creating shaded areas that connect the school to its neighborhood—offering a new approach to high‑density campus design.
▼空中操场全景,Birdview of the rooftop playground

▼独特观景体验的空中操场,Playground with unique landscape

▼抬升至第三层的空中操场,Elevated playground on the third floor

毗邻街道的运动场,不再设置密不透风的封闭外墙,仅以金属防护网与铝格栅遮阳板构成半透明的气候界面。通透的立面引导微风自由穿行,过滤光线,形成一座无需空调的半室内运动场。
The street‑side field is enclosed with metal mesh and aluminum sunshade panels. This open facade allows breezes to pass through and softens the sunlight, forming a semi‑outdoor sports hall that needs no air conditioning.
▼从教学楼的架空庭院进入环形跑道,Enter the circular track from the teaching courtyard

▼阴影下的庭院是运动场的延伸,Shaded courtyard as extension of the sports field

二层的风雨操场通风、遮阳、挡雨,真正实现365天都可以奔跑的需求。在环形跑道上奔跑时,可以感受到风的流动,看见街道上郁郁葱葱的树冠。教学楼之间围合出的荫凉庭院,与风雨操场无缝衔接,共同成为酷暑季节最受欢迎的活动空间与非标准化运动场所。学生在不同天气下拥有灵活的空间选择,尤其适应夏季漫长,炎热多雨的深圳。
Above, a covered running track is sheltered yet airy, usable in all weather. Students here can feel the wind and view the tree‑lined street. Shaded courtyards connect seamlessly to this area, creating a flexible, all‑season network for hot, rainy climate in Shenzhen.
▼下沉庭院既是活动场地也是交通要道,The sunken courtyard serves as both an activity area and a pathway

▼可进入篮球场的下沉庭院,A sunken courtyard leads to the basketball court

环形跑道下方是无柱的开放式篮球场。下沉的地势略低下东侧街道,利于城市自然风穿越球场与庭院,形成舒适的穿堂风。虽然标高地下2.3米,引入的风和自然光却让这里完全没有地下空间常见的封闭感。这一开阔的空间,也因此成为雨季和酷暑时全校集会的理想场地。铺设真草的主操场被抬升至7.2米的空中,不仅为校运会、开学典礼、校园音乐会等大型活动提供了专场。开阔的视野,环绕的深圳天际线,也为师生带来了独特的城市景观体验。
▼立体运动场轴侧,Layering sports-field

▼立体运动场剖轴侧,Layering sports-field Section

Beneath the track, a sunken, column‑free basketball court sits slightly below street level, inviting natural airflow. Even 2.3 meters below ground, it feels open and bright—a comfortable space for assemblies during rain or extreme heat. The main natural‑turf field is raised 7.2 meters, serving as a venue for events while framing views of Shenzhen’s skyline—an elevated urban experience for students.
▼通透的半室内运动场,Transparent semi-indoor sports field

▼树冠前的环形跑道,Circular track in front of the tree canopy

▼环形跑道,Circular track 01


▼能举行大型活动的下沉篮球场,Large sunken basketball court

▼下沉的篮球场,Sunken basketball court

▼与社区共享的开放式篮球场,Basketball court shared with the community

新旧嫁接的校园A Campus of Grafted Old and New
在存量改造的时代背景下,如何协调新旧校园之间的关系,成为一个无法回避的课题。我们尝试营造一个新旧共生的“嫁接”校园。
In an era of urban renewal, integrating old and new campus structures has become essential. Here, we aimed to create a “grafted” campus where heritage and modernity coexist.
▼新旧衔接的校园,A campus connecting new and old

普通教室仍安排在原有教学楼内,四栋新建教学楼与旧楼有机衔接,形成一条在新与旧之间漫游的路径。新建筑向东延续原有的行列式布局,但通过细微的扭转、延伸或转折,予以变化,仿佛从旧结构中自然生长而出,它们与新增的连廊一起,围合出数个尺度相近却氛围各异的庭院。
▼新旧之间的楼梯轴侧,Stairs between old and new

General classrooms remain in the original teaching building, while four new academic blocks extend organically from the old structure, forming a continuous path that meanders between past and present. The new buildings follow the original east‑facing linear layout but introduce subtle shifts—twists, extensions, and turns—as if growing naturally from the existing fabric. Together with added connecting corridors, they enclose a series of courtyards similar in scale yet distinct in atmosphere.
▼保留的大榕树成为新旧校园核心的记忆载体,Preserved tree as the core of memories

▼以榕树为中心形成一系列空间的路径和节点,Spatial paths and nodes around the tree 01

▼榕树下的图书馆室内,Library under the tree

行政楼平行于校园入口的外部道路布置,在靠近校园入口处向南转折,与旧教学楼共同界定出入口广场。广场中央屹立着一棵二十年树龄的大榕树——作为校园记忆的象征,它被完整保留下来,并以之为核心,衍生出一系列新的路径与节点,使这里成为承载校园记忆的场所。
▼改造前后-入口广场,Before & after -Entrance courtyard

▼入口广场轴侧,Entrance courtyard

The administration building runs parallel to the external road at the campus entrance, then turns south to define an arrival plaza with the old teaching block. At its center stands a twenty‑year‑old banyan tree—a preserved symbol of campus memory. New pathways and nodes radiate from this focal point, making the plaza a living repository of the school’s history.
▼环绕榕树的入口广场,Entrance plaza surrounded by a preserved tree

▼新旧交织的校园入口,Campus entrance

▼新旧嫁接的校园,Grafted campus

在新旧交接处,一组新置入的白色室外楼梯,在不同高度上将新旧教学楼相互连通。新建筑三楼的走廊也被适当扩宽,并与空中操场衔接,让学生能够高效抵达各处。新旧建筑之间通过室外走廊相连。这些兼具交通与社交功能的廊道,以及多处放大的“盒子”空间,成为学生日常驻足、交流的场所。
At the junction between old and new, a set of white outdoor stairs links the buildings across different levels. The third‑floor corridor of the new wing is widened and connected to the elevated playground, ensuring efficient circulation for students. Outdoor corridors stitch the old and new structures together. These passages—both routes and social spaces—along with several enlarged “box” volumes, become everyday spots where students naturally meet.
▼以榕树为中心形成一系列空间的路径和节点,Spatial paths and nodes around the tree 02

▼新旧校园之间的漫游路径,A wandering stair between old and new

▼新旧校园之间的交流空间,Social space

变与不变Change and Continuity
石厦校园已投入使用两年有余。随着四季更迭,建筑与设计者的痕迹悄然退隐,使用中我们也一直保持观察。在这个南方的校园里,街道的小叶榕悄然探入,空间的潜力在使用者手中被不断发掘,变化的印记无处不在。
Hongling School Shixia Campus has now been in use for over two years. With the passing seasons, the traces of architecture and designer have quietly receded. In this southern campus, street-side trees extend gently inward, and the potential of space keeps being unlocked by its users. Change is felt everywhere.
▼实体模型,Physical Model


然而不变的,是人与场所那份持续生长的关系。这里已成为师生们日常学习的根基,也是与社区分时共享的公共中心。令人欣慰的是,建筑师努力营造的空间品质,并没有因设计的“完成”和使用的“介入”而削弱,反而在时间中愈发鲜活生动。
What remains constant is the ever-growing relationship between people and place. The campus has become both a daily foundation for teaching and learning, and a shared community hub open to the neighborhood in scheduled hours. It is gratifying to see that the spatial quality carefully shaped by the architects has not faded with the “completion” of design or the “intervention” of use—instead, it grows more vivid with time.
▼总平面示意,Master plan

▼首层平面,Ground floor plan

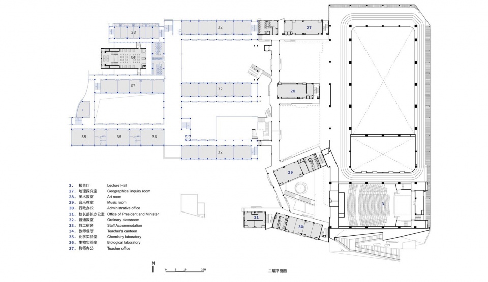
▼二层平面图,First floor plan

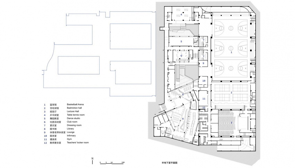
▼地下层平面,Underground floor plan

▼三层平面,Second fllor plan

▼剖面,Section


项目信息
设计单位 / 土木石建筑设计事务所
主持建筑师 / 杨期力,邓文华,白岩
设计团队
王栋,樊李烨,李放,周涛涛,李鹏飞,王祖梁,马丽娜,王健,曾秋华,骆力,李雨倩
业主单位 / 深圳市福田区教育局, 深圳市福田区红岭中学(红岭教育集团)
代建单位 / 深圳市万科发展有限公司 ( 深圳市万科城市建设管理有限公司 )
施工图设计 / 北京中外建建筑设计有限公司深圳分公司
室内设计 / 土木石建筑设计事务所 + 深圳市九度空间室内设计有限公司
景观设计 / 土木石建筑设计事务所 + 深圳园策顾问设计有限公司
幕墙设计 / 深圳市朋格幕墙设计咨询有限公司
标识设计 / 深圳市本质环境标识有限公司
基 地 面 积 / 22 041 平方米
总建筑面积 / 42 177 平方米(新旧校区)
原有建筑面积 / 15 693 平方米(拆除前)
拆除建筑面积 / 1516 平方米
新增建筑面积 / 28 000 平方米
建筑结构:混凝土框架结构(教学楼及餐厅)、钢结构(体育馆及报告厅)
摄影 / 张超
学术及媒体 / 林楚杰
Project Information
Design Firm / TUMUSHI Architects
Lead Architects / Yang Qili, Deng Wenhua, Bai Yan
Design Team / Wang Dong, Fan Liye, Li Fang, Zhou Taotao, Li Pengfei, Wang Zuliang, Ma Lina, Wang Jian, Zeng Qiuhua, Luo Li, Li Yuqian
Client / Futian District Education Bureau, Shenzhen; Hongling Middle School (Hongling Education Group), Shenzhen
Construction Agent / Shenzhen Vanke Development Co., Ltd.
Construction Documents Design / Beijing Zhongwaijian Architectural Design Co., Ltd.
Shenzhen Branch Interior Design / TUMUSHI Architects+ Shenzhen Jiudu Space Interior Design Co., Ltd.
Landscape Design / TUMUSHI Architects + Shenzhen YuanCe Advisory Design Co., Ltd.
Curtain Wall Design / Shenzhen Pengge Curtain Wall Design & Consulting Co., Ltd.
Signage Design / Shenzhen Essence Environmental Signage Co., Ltd.
Site Area / 22,041 square meters
Total Floor Area / 42,177 square meters (existing + new)
Original Floor Area / 15,693 square meters (before demolition)
Demolished Floor Area / 1,516 square meters
Newly Added Floor Area / 28,000 square meters
Structure / Reinforced concrete frame (teaching buildings & cafeteria) + Steel structure (gymnasium & auditorium)
Photography / Zhang Chao Academic & Media Coordination / Lin Chujie














