稻城县亚丁村保护恢复规划,四川 / 中国建筑西南设计研究院有限公司
亚丁——朝向神山的向阳之地Yading – The Sunny Land Facing the Sacred Mountains
稻城亚丁位于“蓝色星球的最后一片净土”香格里拉境内。这里是西方著名探险小说《消失的地平线》描述的蓝月山谷的原型地。作为亚丁景区内唯一的自然村落,亚丁村坐落于海拔4000米的高山平坝之上,亚丁意思是“向阳之地”。这里曾经因与世隔绝而保留着藏文化的原真。近年来这里渐为人知,外来游客与日俱增,因缺少系统的保护规划,村落风貌遭到破坏,藏式民居被快速建造的低端民宿取代,加之基础设施薄弱,业态单一,已经严重滞后于景区发展。
Daocheng Yading lies within Shangri-La, known as “the last pure land on the blue planet.” It is the prototype of the Blue Moon Valley described in the famous Western adventure novel Lost Horizon. As the only natural village within the Yading Scenic Area, Yading Village sits on a high-altitude flat dam at 4,000 meters above sea level. “Yading” means “the sunny land.” Once isolated from the world, it preserved the authenticity of Tibetan culture. In recent years, as it has become increasingly known and visitor numbers have grown daily, the lack of systematic protection planning has led to the destruction of the village’s aesthetic. Traditional Tibetan houses have been replaced by rapidly built, low-end homestays. Coupled with weak infrastructure and a single type of business format, development has seriously lagged behind the scenic area’s growth.
▼亚丁风光,Scenery of Yading

▼亚丁村——向阳之地,Yading Village – The Land Facing the Sun

亚丁村的保护与更新工作始于2022年底,设计从实地调研走访开始,收集原始资料,了解原住民需求,针对生态环境、文旅业态,建筑风貌、基础设施四个方面,制定了保护修复与更新策略。由政府牵头,集合文旅、住建、农业、生态等多方专家成立工作组,汇同村民和商户代表,形成全过程多方共同参与的工作模式。2023年3月现场施工启动,包括穿越村庄的公路改道、护坡生态修复,水渠环境整治,既有建筑改造、地下管网与屋面光伏等内容。设计与施工方配合,充分听取村民意见,制定“微创式”施工方案。随着建设的持续推进,被雪山环抱的亚丁村,以新的形象呈现在世人面前。
▼亚丁村旧照,Old Photo of Yading Village

The protection and renewal work for Yading Village began at the end of 2022. The design process started with field surveys and visits to collect original data and understand the needs of the indigenous people. Strategies for protection, restoration, and renewal were formulated focusing on four aspects: ecological environment, cultural tourism formats, architectural style, and infrastructure. Led by the government, a working group was formed comprising experts from culture and tourism, housing and construction, agriculture, and ecology, working together with representatives of villagers and merchants to create a model of full-process multi-party participation. On-site construction commenced in March 2023, including rerouting the highway through the village, slope ecological restoration, water channel environmental improvement, renovation of existing buildings, underground pipeline networks, and rooftop photovoltaics. Cooperating closely, the design and construction teams fully listened to villagers’ opinions and developed a “minimally invasive” construction plan. As construction continued, Yading Village, embraced by snow-capped mountains, presented itself to the world with a new image.
▼亚丁村保护更新后,After the Protection and Renewal of Yading Village

海拔最高的香巴拉博物馆Shambala Museum: The Highest Altitude Museum
稻城亚丁以雪山草甸自然景观闻名,作为景区的核心村落,除了自发的民宿和消防、医疗服务点,缺乏更多的内容。为了弥补景区人文展示的短板,增强游客吸引力,政府决定修建一座收藏和展示香巴拉藏文化的小型博物馆。
▼博物馆形态推演,Museum Form Evolution

Daocheng Yading is renowned for its natural landscapes of snow mountains and meadows. As the core village of the scenic area, apart from spontaneous homestays and fire/medical service points, it lacked substantial content. To compensate for the shortfall in humanistic display within the scenic area and enhance attraction for tourists, the government decided to build a small museum to collect and exhibit Shambala Tibetan culture.
▼博物馆1,Museum 1

设计工作从策划与选地开始。亚丁村坐落于峡谷边上的缓坡台地上,面朝仙乃日、夏洛多吉两座神山——分别是藏传佛教中观音和金刚菩萨的化身。博物馆的位置首先要考虑与神山的关系。在现有青稞田和民宅之外,设计团队发现在村落南侧留有一小块空地,紧邻峡谷,面朝神山,视野非常理想。但这块空地地势较低,与村庄有10米高差,中间还隔着一条景区公路。这样特殊的条件限制启发了博物馆的流线与剖面设计。跨过景区公路的人行桥将人流由村内直接引入博物馆三层的观景平台,这里又称为“亚丁阳台”。阳台边缘下沉的通长台阶方便人们坐下来直面雪山,避免了护栏对于视线的遮挡。人们在屋顶打卡拍照,举办小型演出等活动,屋顶成为村落新的活力场所,也是进入博物馆前最佳的空间序篇。
▼亚丁香巴拉文化博物馆及村庄剖面图,Section Drawing of the Yading Shangri-La Culture Museum and the Village

The design work began with planning and site selection. Yading Village is located on a gentle slope terrace beside a canyon, facing two sacred mountains: Xiannairi and Xianuoduoji, which are incarnations of Avalokiteshvara and Vajrapani in Tibetan Buddhism, respectively. The museum’s location first needed to consider its relationship with these sacred mountains. Outside the existing barley fields and folk houses, the design team discovered a small vacant lot on the south side of the village, adjacent to the canyon and facing the sacred mountains, offering an ideal view. However, this plot was at a lower elevation, with a 10-meter height difference from the village, separated by a scenic highway. These special conditional constraints inspired the museum’s circulation and sectional design. A pedestrian bridge crossing the scenic highway directs foot traffic directly from the village to the observation deck on the third floor of the museum, known as the “Yading Balcony.” Sunken steps along the edge of the balcony allow people to sit and face the snow mountains directly, avoiding railings that would block the view. People take photos on the roof and hold small performances; the roof has become a new vibrant space for the village and the perfect spatial prelude before entering the museum.
▼博物馆雪景,Museum Snow Scene


博物馆功能包括展览与书店,面积约3000平米,竖向共三层,建筑剖面是一个出挑的倒锥形态,用最小的占地上创造出最大的观景平台,向环境打开。人流动线也是自上而下,从“亚丁阳台”进入三层门厅与展厅,再下至二层展厅与书店参观,建筑的底层与陡坡堡坎结合在一起,作为设备机房和下部基础。参观结束后人们从二层出口离开,再沿着架设于峡谷陡坡上的观山步道继续游览。博物馆动线与村落步行游线串接在一起。自上而下的动线也充分考虑到游客在4000米海拔上的身体反应,避免向上爬楼是更为人性化的选择。博物馆室内还加装了弥散式供氧系统,进一步提升游客舒适度。
▼香巴拉文化博物馆三层平面图,Third-Floor Plan of the Shangri-La Culture Museum

▼香巴拉文化博物馆二层平面图,Second-Floor Plan of the Shangri-La Culture Museum

The museum functions include exhibitions and a bookstore, covering an area of approximately 3,000 square meters across three vertical floors. The building’s section is an inverted cone shape cantilevered out, creating the largest possible observation platform with minimal footprint, opening up to the environment. The human circulation flows from top to bottom: entering the third-floor lobby and exhibition hall from the “Yading Balcony,” then descending to the second-floor exhibition hall and bookstore. The building’s ground floor combines with the steep slope retaining wall, serving as equipment rooms and lower foundations. After the visit, people exit from the second floor and continue touring along the mountain-viewing walkway erected on the steep canyon slope. The museum’s circulation connects seamlessly with the village walking tour route. This top-to-bottom flow also fully considers tourists’ physical reactions at 4,000 meters altitude, making the avoidance of climbing stairs a more humane choice. The museum interior is also equipped with a diffuse oxygen supply system to further enhance visitor comfort.
▼博物馆2,Museum 2

博物馆的形态经过多个方案的比较,最后选择了顺应地形的弧线体量,以更好地融入高山峡谷的自然环境;并与亚丁村民居的矩形体量相区别,突显建筑的文化身份,表达藏文化中香巴拉(即香格里拉)梦想之地的浪漫想象。银白色的屋顶象征着山巅的终年积雪,由鱼鳞状的披叠金属板拼接而成。阳光在板面的反射,让人想起藏地寺庙的鎏金金顶,闪耀的屋顶成为高原的地标。
▼香巴拉文化博物馆北立面图,North Elevation of the Shangri-La Culture Museum

After comparing multiple schemes for the museum’s form, the final choice was a curved volume conforming to the terrain to better integrate into the natural environment of the high mountains and canyons. This distinguishes it from the rectangular volumes of Yading Village residences, highlighting the building’s cultural identity and expressing the romantic imagination of Shambala (i.e., Shangri-La) in Tibetan culture. The silver-white roof symbolizes the year-round snow on the mountain peaks, constructed from overlapping fish-scale-shaped metal panels. The reflection of sunlight on the panels recalls the gilded roofs of Tibetan temples, making the shining roof a landmark on the plateau.
▼博物馆3,Museum 3

博物馆外墙就地取材,村里改造拆除的石块和木板被利用起来,以砌筑和钉挂的方式重新上墙,留住了物质的记忆,也留住了手工的痕迹。高原缺乏技术工人,墙体的施工不追求精准光滑,参差凹凸的石块与木板包容了施工的误差,形成阳光下生动的肌理,与高原粗犷原始的气质相吻合。
The museum’s exterior walls use locally sourced materials; stones and wooden boards removed during village renovations were reused, re-installed via masonry and nailing, preserving material memories and manual traces. With a shortage of skilled workers on the plateau, the wall construction does not pursue precision or smoothness. The uneven stones and wooden boards accommodate construction errors, forming a vivid texture under the sunlight that aligns with the rugged and primitive temperament of the plateau.
▼博物馆4,Museum 4

▼博物馆5,Museum 5

有别于传统封闭模式,博物馆设计将雪山壮美的景观串联在参观流线中,建筑融入环境,模糊了内外空间的界限。从碎石板铺装的三层观景平台,步入博物馆门厅,一面连续的弧线玻璃墙将雪山全景纳入视野。为了实现最大的通透性,玻璃去掉了龙骨,上部设计了悬挂支撑的黑色钢件用于抵抗高原强风。与幕墙的轻巧形成反差,石砌外墙延续到室内,构成空间的基调。暗色的木装修反衬出户外阳光的明媚,营造出私密温暖的庇护感。顺着曲线楼梯下到二层的文创书店,这里有多种语言版本的描写香巴拉藏文化的书籍,靠窗的座位一览雪山与峡谷,点上一杯咖啡静坐,文字与美景的交融带给游客难忘的阅读体验。
Unlike traditional closed models, the museum design integrates the magnificent snow mountain landscape into the visiting circulation. The building merges with the environment, blurring the boundaries between interior and exterior spaces. Stepping from the gravel-paved third-floor observation platform into the museum lobby, a continuous curved glass wall brings the panoramic snow mountain view into sight. To achieve maximum transparency, the glass omits keels; instead, black steel hanging supports are designed at the top to resist strong plateau winds. Contrasting with the lightness of the curtain wall, the stone masonry exterior extends indoors, constituting the spatial tone. Dark wood finishes contrast with the bright outdoor sunlight, creating a sense of private, warm shelter. Descending the curved staircase to the cultural creative bookstore on the second floor, visitors find books describing Shambala Tibetan culture in various languages. Seats by the window offer a full view of the snow mountains and canyon; ordering a cup of coffee to sit quietly,the blend of text and scenery offers tourists an unforgettable reading experience.
▼博物馆公共大厅,Museum Public Lobby

▼通透的玻璃幕墙,Transparent Glass Curtain Wall


▼雪山与书店,Snow-Capped Mountains and the Bookstore

▼博物馆公共大厅,Museum Public Lobby

▼博物馆展厅,Museum Exhibition Hall

蓝月山谷餐厅Blue Moon Valley Restaurant
亚丁村南侧是陡峭的山谷,也是离雪山最近的地方,沿着山谷边缘设计了一条观山栈道,起点是博物馆,终点是一座游客餐厅。餐厅名字取自于小说《消失的地平线》中描述的隐匿在喜马拉雅山脉深处的蓝月山谷。
South of Yading Village lies a steep valley, the closest point to the snow mountains. A mountain-viewing plank road was designed along the valley edge, starting at the museum and ending at a tourist restaurant. The restaurant is named after the Blue Moon Valley described in the novel Lost Horizon, hidden deep within the Himalayas.
▼蓝月山谷1,Blue Moon Valley 1

▼木结构柱构造,Wood Structure Column Detail

▼叠合梁结构图,Composite Beam Structural Diagram

▼蓝月山谷2,Blue Moon Valley 2

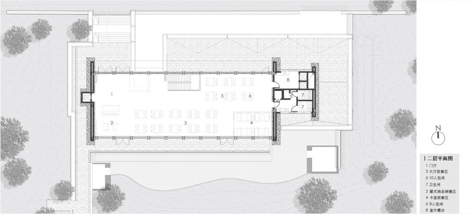
▼蓝月山谷餐厅一层平面图,Blue Moon Valley Restaurant First Floor Plan

▼蓝月山谷餐厅二层平面图,Blue Moon Valley Restaurant Second Floor Plan

来到稻城亚丁的人都说“眼睛在天堂,身体在地狱”,餐厅提供的美食,是对游客身体最好的抚慰。建筑用地稍低于景区道路,因而采用了吊层式设计。上下层分别采用了两种结构体系,下部为混凝土结构,安排后勤房间,用以垫高地势,外墙用石块砌筑,封闭厚重。上部采用胶合木结构,色彩温暖,就餐区以落地玻璃墙围合,最大程度地纳入高原阳光和雪山景色,风景即是第一道佳肴。
People who come to Daocheng Yading often say, “Eyes in heaven, body in hell.” The food provided by the restaurant is the best solace for tourists’ bodies. The building site is slightly lower than the scenic road, thus adopting a split-level design. The upper and lower levels utilize two different structural systems: the lower level is a concrete structure arranging back-of-house rooms to elevate the terrain, with stone-masonry exterior walls that are closed and heavy. The upper level uses a glued laminated timber (glulam) structure with warm colors; the dining area is enclosed by floor-to-ceiling glass walls to maximize the intake of plateau sunlight and snow mountain scenery—the landscape itself is the first delicacy.
▼蓝月山谷 3,Blue Moon Valley 3

为了减少12米单跨的木梁截面,特别设计了一种层叠梁架,用小截面的胶合木方纵横叠压,形成一个空间结构体系,光线弥漫在木方的间隙,进一步减弱了结构的视觉重量。屋盖的出檐以木方逐层出挑,与藏式传统门窗的梁头做法异曲同工,以构造回应藏地文脉。
To reduce the cross-section of the 12-meter single-span wooden beams, a special layered beam frame was designed. Small-cross-section glulam squares are stacked horizontally and vertically to form a spatial structural system. Light permeates through the gaps between the wooden squares, further reducing the visual weight of the structure. The eaves of the roof project layer by layer using wooden squares, echoing the traditional beam-head practices of Tibetan doors and windows, responding to Tibetan cultural context through construction details.
▼蓝月山谷4,Blue Moon Valley 4

▼蓝月山谷5,Blue Moon Valley 5

村落的有机更新Organic Renewal of the Village
在近20年来的旅游发展中,亚丁村的尺度与风貌遭到破坏,以恢复地方传统为目标,我们对亚丁村现有建筑进行分区评估:村内62栋建筑分为4类,其中保护19栋、一般修复25栋、重点整改11栋、危房拆除7栋。保护与一般修复适用于传统藏房,仅对局部构件进行更新替换;重点整改则针对租赁利益驱使下建筑体量过大,成品门窗与砌块的外观粗陋的状况,以恢复稻城地区“黑门黑窗+石砌外墙”的黑藏房传统。设计团队选取了一栋民宅进行试点,拆除了危房结构进行原址复建,在保留原住民居住空间的情况下,增加了12间客房对外运营,以平衡建设资金,为村民自建提供示范引导。
During nearly 20 years of tourism development, the scale and style of Yading Village were damaged. Aiming to restore local traditions, we conducted a zoning assessment of existing buildings in Yading Village: the 62 buildings within the village were categorized into four types—19 for protection, 25 for general restoration, 11 for key rectification, and 7 dilapidated buildings for demolition. Protection and general restoration apply to traditional Tibetan houses, involving only the replacement of local components. Key rectification targets buildings with excessive volume driven by rental interests and crude appearances featuring finished doors/windows and blocks, aiming to restore the traditional “black doors and windows + stone masonry exterior walls” of the black Tibetan houses in the Daocheng region. The design team selected a folk house as a pilot, demolishing the dilapidated structure for reconstruction on the original site. While retaining living space for the original residents, 12 guest rooms were added for external operation to balance construction funds, providing a demonstration and guide for villagers’ self-construction.
▼保护修复及运营落位图,Protection, Restoration, and Operational Layout Map

▼试点民宅改造后,Pilot Residential House After Renovation

通过政府出资,改善基础设施与环境整治,将村落中心闲置的空地改造为亚丁坝子,作为公共活动的中心,周边引入唐卡画廊、音乐餐吧、非遗手作、青稞酒坊等具有地方特色的业态,进一步带动村民与外来商家的投资意愿。后续高端民宿“松赞”、“般若”、“千秋雪”等品牌相继入驻,改变了以往低端的民宿业态,实现政府、村民、商家三方共建的可持续模式。
Through government funding to improve infrastructure and environmental remediation, the idle vacant land in the village center was transformed into the “Yading Bazi” as a center for public activities. Surrounding this, local characteristic businesses such as Thangka galleries, music bars, intangible cultural heritage handicrafts, and highland barley wine workshops were introduced, further driving investment willingness among villagers and outside merchants. Subsequently, high-end homestay brands like “Songtsam,” “Prajna,” and “Qianqiuxue” moved in, changing the previous low-end homestay format and realizing a sustainable model of co-construction by the government, villagers, and merchants.
▼民宿客房露台,Homestay Guest Room Terrace

▼民宿客房室内,Homestay Guest Room Interior

▼民宿公共空间,Homestay Public Space

除了经济发展的考量,规划设计充分尊重和保护亚丁村半农半牧的生产结构,延续祈福、织布、劈柴、煨桑、转经、锅庄等生活场景。曾经无序生长的亚丁村,重新恢复为美丽的藏乡,成为香格里拉旅游大环线上新的人文目的地。
Beyond economic considerations, the planning and design fully respect and protect Yading Village’s semi-agricultural and semi-pastoral production structure, continuing life scenes such as prayer, weaving, chopping wood, burning incense (Weisang), circumambulating prayer wheels, and performing Guozhuang dance. The once disorderly growing Yading Village has been restored to a beautiful Tibetan township, becoming a new humanistic destination on the grand Shangri-La tourism loop.
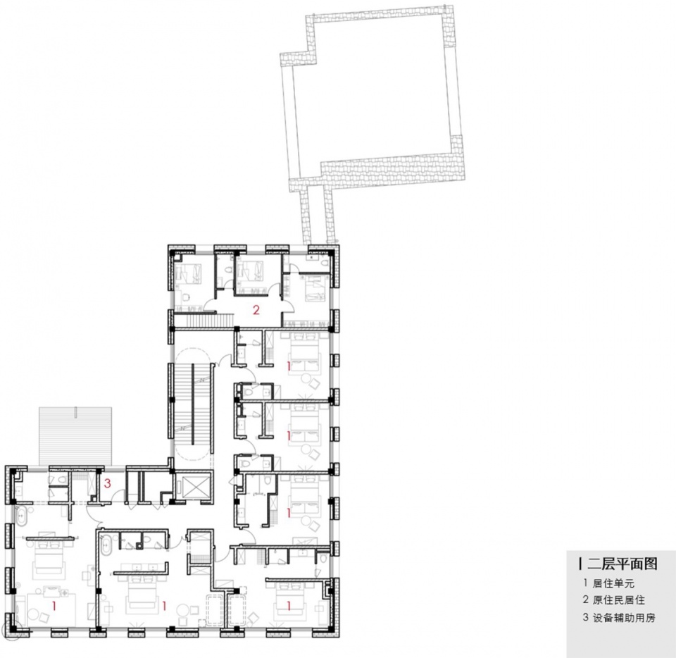
▼试点民宅改造后一层平面图,First-Floor Plan of Pilot Residential House After Renovation

▼试点民宅改造后二层平面图,Second-Floor Plan of Pilot Residential House After Renovation

Project name: Daocheng County Yading Village Protection and Restoration Plan
Project type:Protection and Restoration Planning for Famous Cultural Villages
Design: China Southwest Architectural Design and Research Institute Co., Ltd.
Website: https://xnjz.cscec.com/
Design year:November 2022 – March 2023
Completion Year:2024
Leader designer & Team:
Chief Designer: Liu Yi
Deputy Chief Designers: Ma Jun, Feng Ting
Architecture Team: Liang Qinghua, Wu Cailing, Liu Jincai, Huang Xuanxuan, Zhang Zhixiong, Zhang Jingyi, Jiang Chaowang, Zhang Yue
Structure Team: Long Weiguo, Liao Li’an, Zhou Haozhang, Tao Lei, Chen Yuanlong, Zhang Yi, Li Yisong, Xu Yudong
Plumbing & Drainage Team: Jiang Haibo, Guo Libao, Yang Shizhong, Chen Xiaochao, Pu Xiaoqin, Wang Tiezhu, Han Qingchang
HVAC Team: Xiong Xiaojun, Guo Ping, Zhao Yang, Du Gao, Zhao Xinyi
Electrical Team: Liu Wei, Ding Xindong, Jiang Long, Zhang Longqian, Tan Chao
Intelligence & Lighting Team: Zhang Xiaogang, Luan Xiaohe, Yin Xia
Landscape Team: Chen Hongyu, Chen Jun, Wu Qinzhu, Cui Shengju, Cheng Yixin, Pan Yuxiang, Yang Yang, Li Xinwei, Huang Zhenhua, Wang Guanqi
Building Technology Team: Dou Mei, Ge Shengle
Planning Team: Zou Ying, Kong Chuijing, Cui Fangdi, Qin Wenzhi, Li Jiabo
Municipal Engineering Team: Zhao Liuwei, Li Yan, Lv Xiaoliang, Lu Zhou
Interior Design Team: Zhang Can, Zhang Li, Li Wenting, Zhou Xiaohui, Wang Liangfen, Tang Jun, Liu Wenjing, Yang Yan, Tang Jia, Wei Aixu Maoya, Fan Jinli
Project location:Yading Village, Daocheng County, Garze Prefecture
Gross built area: Approx. 10,000㎡(including new construction and renovation)
Photo credit: Arch-Exist Photography、CSWADI、Heavenbirds Vision Photography、Yin Qinghua、Kuang Hongwei
Partner:Sichuan Chuangshida Architectural Decoration Design Co., Ltd.
Clients:Daocheng County Asset Investment and Financing Group Co., Ltd.














