象山鹤浦天主教堂,杭州 / 中国美术学院风景建筑设计研究总院有限公司
本案在宁波市象山县鹤浦镇,抵达的路途本身构成一场精神序曲:高铁穿行、大巴辗转、轮渡渡海,多重交通方式的叠加,让物理位移裹挟着朝圣般的心理仪式感。
This project is situated in Hepu Town, Xiangshan County, Ningbo City. The journey to reach it unfolds as a spiritual prelude in itself: the crisscross of high-speed railways, the twists and turns of coach rides, and the voyage across the sea. The combination of these multiple modes of transportation infuses physical movement with a psychological ritual akin to a pilgrimage.
▼项目概览,overview of the project


这片滨海乡村因早期开埠传教的历史积淀、沿海渔业生产的风险语境、宗族宗亲的社会结构,以及改革开放后侨乡经济与精神需求的双重驱动,形成了教堂密布的独特聚落肌理,成为中国沿海乡土宗教空间演化的典型样本。
▼轮渡码头,ferry terminal

Rooted in historical legacies of early port opening and missionary work, the risky context of coastal fishery production, the social structure of clan kinship, and the dual impetus of overseas Chinese township economy and spiritual needs after the reform and opening-up, this coastal rural area has formed a unique settlement texture dotted with churches, emerging as a typical sample of the evolution of rural religious spaces along China’s coasts.
▼乡村鸟瞰,aerial view of the village

场地位于海边田野之中,旷野开阔、群山环伺,自然地貌赋予场地原生的静谧性与精神性。设计以“田野之帆,心灵之舟”为核心理念,以现代主义建筑语言完成对传统宗教形制的抽象转译,摒弃复古符号的表层复刻,以功能理性、材料本真、空间叙事、场所共生为底层逻辑,构建兼具在地性与当代性的现代神圣空间,践行现代主义教堂 “从装饰的神圣到建构的神圣” 的核心建筑学命题。
▼功能流线,functional circulation

The site lies in the fields by the sea, with an expansive wilderness surrounded by rolling mountains. The natural landform endows the site with an inherent tranquility and spirituality. With the core concept of Sails Over the Fields, Vessels of the Soul, the design realizes an abstract translation of traditional religious forms through modernist architectural language. Abandoning the superficial reproduction of retro symbols, it takes functional rationality, authentic materiality, spatial narrative, and place symbiosis as its underlying logic to construct a modern sacred space that embodies both local characteristics and contemporaneity, practicing the core architectural proposition of modernist churches: from the sacredness of ornament to the sacredness of construction.
▼教堂外观,exterior of the church

▼教堂外观细部,facade detail of the church

仪式感的系统性塑造,是设计回应 “朝圣式抵达” 的核心策略,亦是现代主义 “空间叙事引导精神体验” 的具象实践。区别于传统教堂以立面符号直接彰显神性的路径,本案以渐进式路径序列完成从尘世到神圣的心理过渡,重构现代宗教建筑的仪式逻辑。
▼路径空间示意图,Schematic diagram of the path space

The systematic creation of a sense of ritual is the core strategy for the design to respond to the pilgrimage-like arrival, as well as a concrete practice of the modernist tenet that spatial narrative guides spiritual experience. Unlike traditional churches that directly manifest the divine through facade symbols, this project achieves a psychological transition from the secular world to the sacred through a progressive spatial sequence, reconstructing the ritual logic of modern religious architecture.
▼狭长、幽暗的压缩性过渡空间,
a narrow, dim, compressed transitional space

来访者沿田间小路步入场地,首先以钟楼作为精神序章,随即进入狭长、幽暗的压缩性过渡空间,通过尺度收束与光线弱化完成心绪沉淀;伴随地面逐级抬升,光线渐次明亮,空间尺度悄然转换,经转折抵达主教堂入口,高大拱圈与铁门形成视觉高潮,预示神圣空间的开启。
Visitors enter the site along country paths, with the bell tower serving as the spiritual prologue, then step into a narrow, dim, compressed transitional space where their minds settle through the contraction of scale and the softening of light. As the ground rises step by step, the light gradually brightens and the spatial scale shifts subtly. After a turn, they reach the entrance of the main church, where the towering arch and iron gate create a visual climax, heralding the opening of the sacred space.
▼预示神圣空间的开启,heralding the opening of the sacred space

主厅内部以严谨轴线串联进门、通道、圣坛、讲台等仪式功能,以线性秩序强化精神导向。通过空间的收放、光影的明暗、尺度的递进,完成世俗语境向神圣场域的心理转换,印证现代主义 “空间即精神容器” 的核心主张。
The interior of the main hall connects ritual functions such as the entrance, passage, sanctuary, and pulpit through a rigorous axis, strengthening the spiritual orientation with linear order. Through the expansion and contraction of space, the contrast of light and shadow, and the progression of scale, it accomplishes a psychological transformation from the secular context to the sacred domain, confirming the core modernist assertion that space is a vessel of the spirit.
▼主厅空间,the main hall

内部空间设计,是对哥特式建筑精神的现代主义抽象转译,突出其垂直向上的精神动势与天光叙事的本质内核。主厅采用无柱纯净空间体系,以极简线条实现向上收分的空间形态,最大化消解结构干扰,凸显空间的纯粹性与升腾感,以建构逻辑还原哥特建筑 “垂直飞升” 的神性表达。光线成为空间的核心叙事媒介,主面的玻璃幕墙、顶部彩色玻璃天窗和高侧窗形成多层次采光系统,自然光穿透玻璃洒落地面,让整个空间成为 “光的容器”,以光影的流动与变幻塑造神圣氛围,延续朗香教堂 “光即神性”、光之教堂 “光影建构精神” 的现代主义脉络。圣坛后方整面玻璃悬挂的巨型彩色十字架,巧妙融入主体结构,以悬浮的光之符号成为视觉与精神核心;侧墙点缀的彩色玻璃窗,在日光下形成跳跃光斑,与主十字架形成呼应,以极简的视觉符号完成宗教精神的转译。
▼施工过程,the construction progress


The interior space design is a modernist abstract translation of the spirit of Gothic architecture, highlighting its essential core of upward vertical spiritual momentum and skylight narrative. The main hall adopts a column-free pure space system, realizing an upward tapering spatial form with minimalist lines, minimizing structural interference to emphasize the purity and sense of ascension of the space. It restores the divine expression of vertical ascension in Gothic architecture through construction logic. Light serves as the core narrative medium of the space. The glass curtain wall on the main facade, the colored glass skylights on the top, and the clerestory windows form a multi-layered lighting system. Natural light filters through the glass and falls on the ground, turning the entire space into a vessel of light. The flowing and changing light and shadow shape a sacred atmosphere, continuing the modernist vein of Ronchamp Chapel’s light as the divine and Church of the Light’s light and shadow constructing the spirit. A giant colored cross hanging on the full glass wall behind the sanctuary is ingeniously integrated into the main structure, emerging as a suspended symbol of light and the visual and spiritual core. The colored glass windows dotted on the side walls cast dancing light spots in the sunlight, echoing the main cross and completing the translation of religious spirit with minimalist visual symbols.
▼顶部彩色玻璃天窗,the colored glass skylights on the top

建筑形态以现代建构语言回应场地与文化双重属性,摒弃传统宗教建筑的固化形制,将哥特式的垂直动势抽象为昂扬舒展的白色风帆形态,以倾斜交错的动态体量,形成与远山沉稳轮廓的哲学性张力对话。白色纯净材质强化建筑在田野与山海间的标志性,同时回归现代主义 “材料本真” 原则,以简洁材质凸显空间与形态的本质美感。
The architectural form responds to the dual attributes of the site and culture through modern construction language, abandoning the rigid forms of traditional religious architecture. It abstracts the vertical momentum of Gothic style into the shape of soaring, stretching white sails, and the dynamic volumes with inclined and interlaced forms create a philosophical tension with the calm outline of the distant mountains. The pure white material enhances the iconicity of the building amidst the fields, mountains and sea, while reverting to the modernist principle of authentic materiality, highlighting the inherent beauty of space and form with simple materials.
▼昂扬舒展的白色风帆形态,the shape of soaring, stretching white sails


室外讲台作为室内仪式功能的外向延伸,联动辅助用房首层公共空间、户外草坪与原生乔木,构建多元化、开放式的聚会场景,打破传统教堂 “内向封闭” 的空间属性,践行现代主义教堂 “从内向祈祷到外向包容” 的转型理念,让宗教空间融入乡村公共生活,实现精神功能与社会功能的统一。
The outdoor pulpit, as an outward extension of the indoor ritual functions, links the first-floor public space of the auxiliary building, the outdoor lawn and the native trees, constructing a diverse and open gathering scene. It breaks the introverted and enclosed spatial attribute of traditional churches, practicing the transformative concept of modernist churches: from introverted prayer to extroverted inclusion. It integrates the religious space into rural public life, realizing the unity of spiritual and social functions.
▼室外讲台,the outdoor pulpit


从场地精神到空间叙事,从形制转译到建构逻辑,本案以现代主义建筑理论为内核,将滨海乡村的在地语境、宗教空间的精神需求与当代建筑的建构理性深度融合。纯净的色彩材质、纯粹的结构体系、变幻的光影叙事与山海田野的自然基底共同作用,构建出引人沉思的现代精神场所。
From the spirit of the site to spatial narrative, from the translation of forms to construction logic, this project takes modernist architectural theory as its core, deeply integrating the local context of the coastal countryside, the spiritual needs of religious space and the construction rationality of contemporary architecture. The pure color and materiality, the minimalist structural system, the changing light and shadow narrative, and the natural background of mountains, sea and fields interact synergistically to construct a contemplative modern spiritual place.
▼教堂夜景,night view of the church


设计证明,当代乡村宗教建筑无需复刻历史范式,而是可以通过现代主义的建筑学本体语言,让神圣性回归空间感知与心灵共鸣,引导来访者完成一场从身体到内心的精神朝圣,为现代主义教堂在乡土语境下的实践,提供了极具价值的样本。
The design proves that contemporary rural religious architecture does not need to reproduce historical paradigms. Instead, through the ontological language of modernist architecture, it can restore sacredness to spatial perception and spiritual resonance, guiding visitors to complete a spiritual pilgrimage from the physical to the inner self. It thus provides a highly valuable sample for the practice of modernist churches in rural contexts.
▼教堂夜景,night view of the church

▼教堂夜景鸟瞰,aerial view of the church at night


▼施工过程,construction progress


▼场地区位,site location

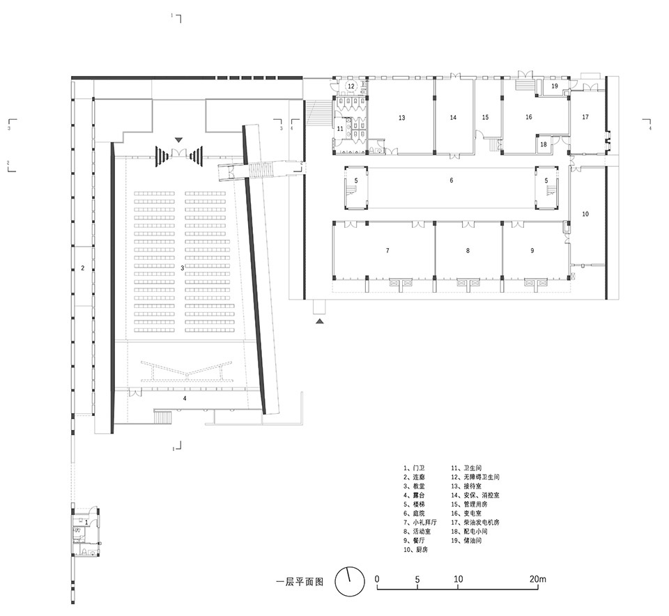
▼一层平面,ground floor plan

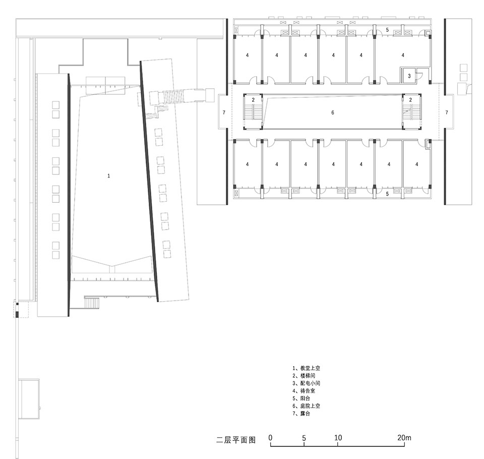
▼二层平面,first floor plan

▼主楼立面图,the main building elevation



▼主楼剖面图,the main building section



Project name: “Sails Over the Fields, Vessels of the Soul” Xiangshan Hepu Catholic Church– The Construction of a Coastal Rural Church through the Translation of Modernism
Project type:Architectural
Design:The Design Institute of Landscape & Architecture China Academy of Art Co.,Ltd.
Website http://www.caaladi.com/index.html
Contact e-mail: 152454080@qq.com
Design year:April 2020
Completion Year:June2024
Architectural design:Zhang Xinran, Wang Jianjian, Liu Hang, Xie Jing, Li Qingxuan, Jia Yihan
Structural Design:Li Lei, Xuan Shenghua, Pan Yiqian, Gu Shengjie
Equipment Design:Liu Yan Yuan, Cai Fengxiang, Zhu Yue
Landscape design:Zhang Xinran, Wang Jianjian, Xie Jing
Curtain Wall Design:Liu Dequan,Zhu Jianwei
Lighting Design:Fang Xiaoling
Project location:Hepu Town, Xiangshan, Ningbo, Zhejiang
Gross built area: 2248.54 m²
Photo credit: Li Wei
Clients:Ningbo Catholic Patriotic Association














