氢途科技杭州总部,浙江 / 森上建筑
项目背景-新城区工厂 Project Background – Factory in Fuchun Bay New City
浙江氢途科技有限公司位于目标打造“浙江光谷·富春芯城”的杭州富春湾新城,氢途科技是一家专注于氢燃料电池研发等相关工程应用开发服务的新能源科技公司,于前几年计划迁入富春湾新城,并在富春湾互通的门户位置建造新一阶段的总部厂区。
Zhejiang HydroT Tech Co., Ltd. is a new energy company specializing in the R&D of hydrogen fuel cells and related engineering application services. Situated in the Hangzhou Fuchun Bay New City—a district poised to become the “Zhejiang Optics Valley · Fuchun Chip City”, the company has constructed its new headquarters complex at the gateway near the Fuchun Bay Interchange.
▼鸟瞰全景,aerial view

富春湾新城建设兼顾生态、人文、产业集群的建设和发展。该区域工厂与园区的建设需突破原本传统的厂区模式,并与当下新城的社区形象和周边环境相契合,打造兼顾人本关怀,改善办公人员的工作体验并提升思维创造力,关注高效生产与可持续发展的创新生态园区。
The development of Fuchun Bay New City balances ecology, culture, and industrial clustering. Consequently, the factory and campus design must transcend traditional industrial paradigms. Instead, it aims to harmonize with the emerging community image and surroundings, creating an innovative eco-park that prioritizes human-centric care, enhances employee well-being and creativity, and focuses on efficient production and sustainable development.
▼黄昏城市街景,street view at dusk

建筑形态-工厂的公共边界 Architectural Form: The Factory’s Public Boundary
项目用地的北侧及东侧与富春江相望,该地块设计依托着《富春山居图》的文化底蕴,遵循工业建筑空间生产效率,寻求创造开放生态的工厂环境与富有科技创造力的办公场所。建筑形体由展厅接待区、加工生产车间、食堂休闲区、办公综合楼、研发测试中心、多功能模块组成,各个功能体的边界衔接区域形成了门廊、露台、通高花园、屋顶平台等多功能复合空间。
▼空间生成图解,diagram

The site is bordered on the north and east by the Fuchun River. Its design draws inspiration from the cultural heritage of the Dwelling in the Fuchun Mountains, adhering to the spatial efficiency of industrial architecture while seeking to create an open, ecological factory environment coupled with a workplace that fosters technological innovation. The architectural massing comprises a showroom and reception area, manufacturing workshops, a cafeteria and leisure zone, an office complex, an R&D testing center, and other multi-functional modules. The interfaces between these functional zones generate multifunctional composite spaces, including arcades, terraces, double-height gardens, and rooftop platforms.
▼主楼外观,main building exterior view


▼建筑立面,building facade

▼外观近景,exterior close view

▼立面近景,facade close view

▼外观细部,exterior detail



▼入口,entrance

员工休闲区及食堂位于生产车间与办公综合区之间,是两大功能区块间的一道缓冲带,在此打造的通高花园区与屋顶露台是楼中令人松弛的户外休闲场所与交互空间。这个通过有机造型打造的富春湾沿线上具有识别性的天际线观景台,使得在职人员在完成精密的工作之余,可借富春江之景,放松身心,亲近自然。
Positioned as a buffer zone between the workshops and the office complex, the leisure zone and cafeteria for staff feature a double-height garden and rooftop terrace. These serve as relaxing outdoor retreats and social interaction hubs. Characterized by organic forms, this distinctive skyline observatory along the Fuchun Bay waterfront allows personnel to decompress and connect with nature, gazing at the river after completing precision tasks.
▼大厅与展厅,lobby and showroom


▼办公区,office space


▼会议室,meeting room


▼休闲观景露台,viewing terrace

城市界面-富春湾的科技符号 Urban Interface: A Technological Symbol for Fuchun Bay
氢途科技作为以生产性空间为主体的园区,如何表达企业形象并兼顾城市界面与环境融合是设计关注的重点。尽管位于工业地块,但隔街相望的即是居民区与幼儿园等生活配套设施,新城与新科技应具备一个更为时代与律动感的城市界面,为富春湾的街区创造一个不受传统工业厂房干扰的城市沿街形象。
▼模型,model

As a production-oriented campus, a key design focus for HydroT Tech is expressing corporate identity while ensuring seamless integration with the urban interface and environment. Although located in an industrial zone, the site faces residential areas and kindergartens across the street. Therefore, the new city and new technology demand a contemporary, rhythmic urban interface that creates a streetscape free from the visual intrusion of traditional industrial sheds.
▼鸟瞰夜景,aerial night view

▼街区的科技符号,technology symbol of the block

建筑的立面造型结合了高新技术的科技感并对LOGO元素进行了转译,以“T”为原型,通过横向与纵向的斜切造型应用于裙房与办公楼的立面设计中。低层立面上错动韵律的开窗削弱了厂房呆板的体量,高层的幕墙斜向杆件造型富有视觉动态,成为了具有企业识别性的科技符号,也为富春湾的新城营造出具备科技时代感的街区氛围。
The facade design synthesizes the high-tech aesthetic with a translation of the corporate logo. Using the letter “T” as a prototype, diagonal cutting patterns are applied horizontally and vertically across the podium and office tower facades. The rhythmic, staggered windows on the low-rise section mitigate the monolithic bulk typical of factories, while the mullions of the curtain wall on the high-rise tower create visual dynamism. Together, these elements form a distinctive technological symbol with strong corporate identity, cultivating a futuristic, tech-savvy atmosphere for the Fuchun Bay New City.
▼夜景外观概览,exterior night view

▼夜晚外观近景,exterior close view at night


▼场地区位,Site location

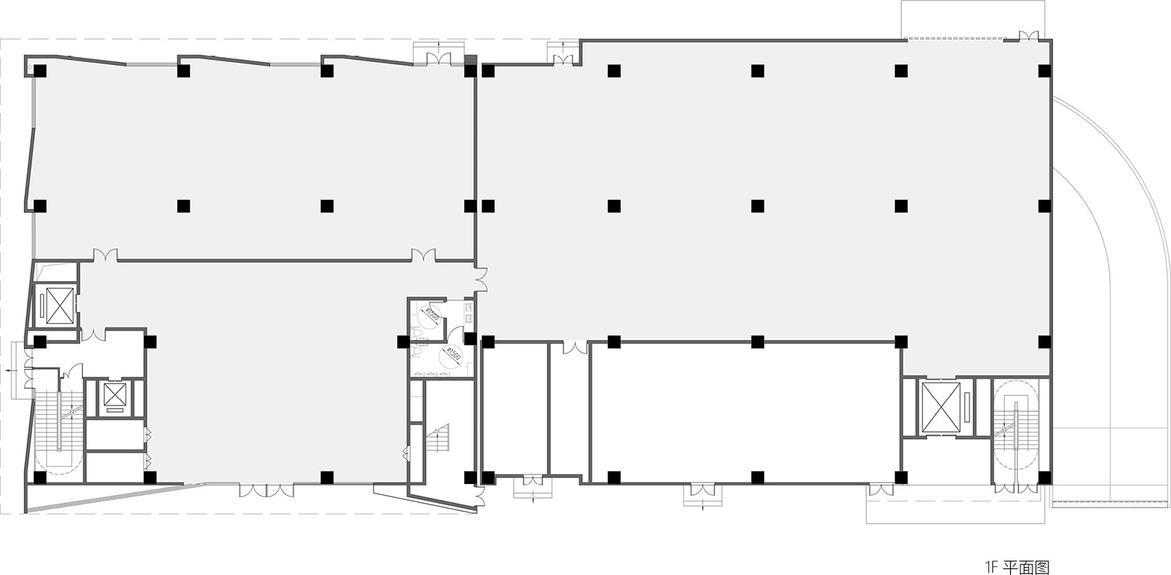
▼一层平面图,1F floor plan

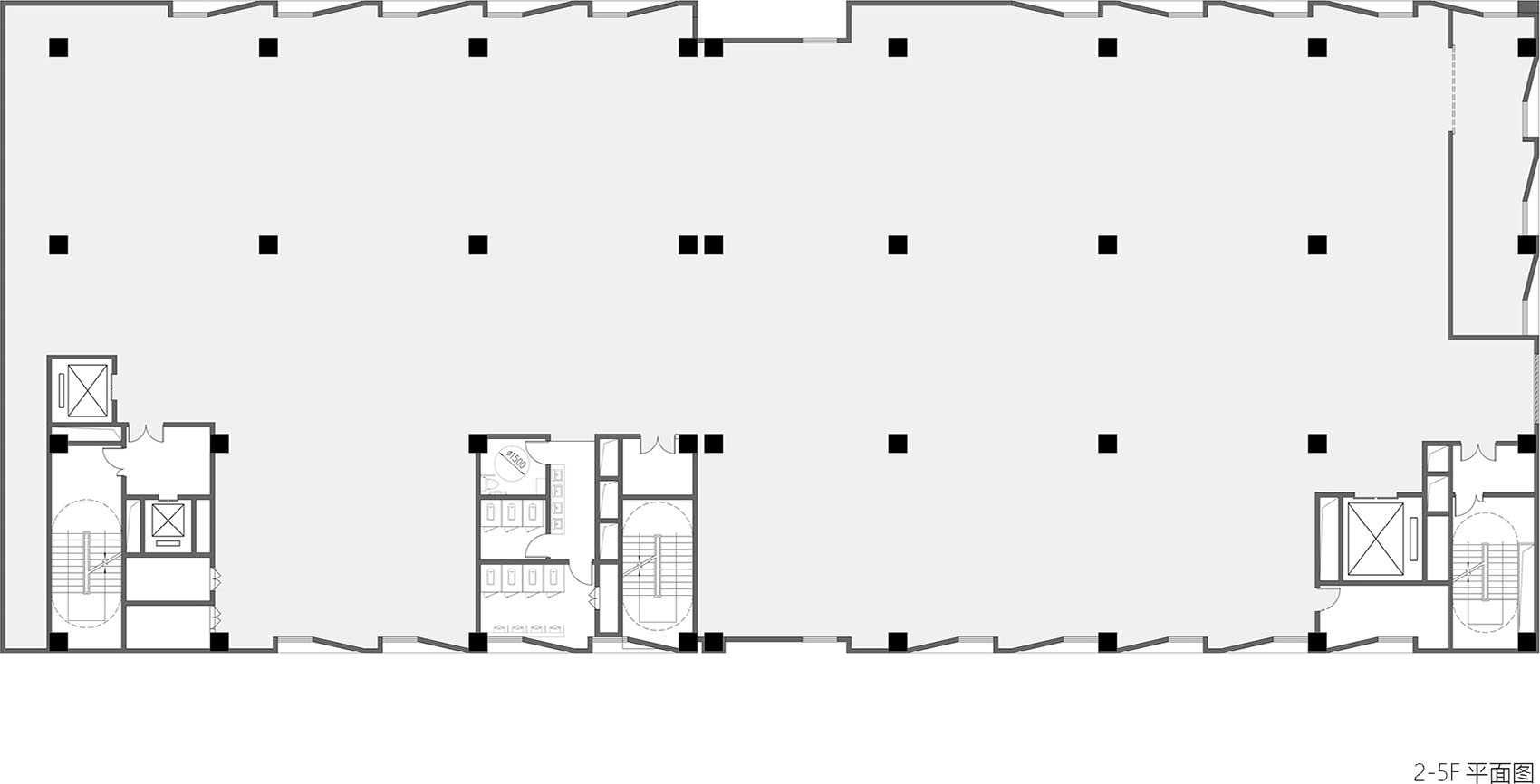
▼二至五层平面图,2-5F floor plan

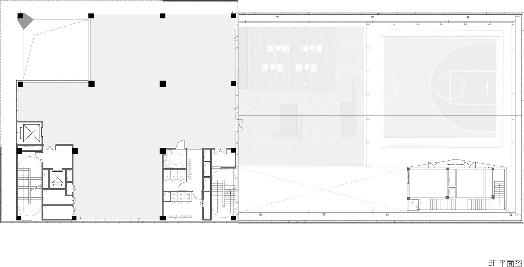
▼六层平面图,6F floor plan

▼办公层平面图,Office floor plan

▼立面图,elevations

Project type: HydroT Tech Hangzhou Headquarters
Design: Sens Architects
Project type: Architectural design
Website: www.sens-arch.com
Contact e-mail: senshang@qq.com
Design year: 2023.07
Completion Year: 2025.12
Main design team: Zhang Juntian,Sun Hongfei,Gu Zixin
Interior design team:Lan He Architectural Decoration Design Co., Ltd
Construction drawing design Institute:Zhejiang Industry Design&Research Institute Co.,Ltd.
Project location:Zhejiang ,Hangzhou
Gross built area: 16000㎡
Photo credit: Liu Guowei&Fang Liming
Clients:Zhejiang HydroT Tech Co., Ltd.
Materials: aluminium panel,stone,Glass curtain wall














