Cycle&Cycle石窑工坊,浙江绍兴 / 弹性工作室
项目位于中国浙江绍兴富盛村。建筑最初建于20世纪70年代,作为当时为尼克松访华配套建设的乡村礼堂,承载着一段特殊的历史背景。2022年Cycle&Cycle取得该建筑的使用权,并在原有的建筑结构基础上进行了大规模的拆除与翻新,完成了建筑和景观初步的更新后,项目也受整体的环境变化而搁置。直至2025年初,品牌方决定将其转化为一座乡村石窑工坊,项目才又重新启动,并委托弹性工作室对整个室内空间进行整体规划。
The project is located in Fusheng Village, Shaoxing, Zhejiang, China. Originally built in the 1970s as a rural auditorium in support of Nixon’s visit to China, the building carries a distinctive historical legacy. In 2022, Cycle&Cycle acquired the right to use the building and carried out extensive demolition and renovation based on the original structure. After an initial phase of architectural and landscape upgrades, the project was put on hold due to broader changes in the context. It was not until early 2025 that the client decided to transform it into a rural stone-oven bakery, at which point the project was revived and Tens Atelier was commissioned to lead the interior design.
▼鸟瞰建筑, Aerial View

建筑本身条件优越,建于山坡之上,整体呈西高东低的地势关系,东面视野开阔,直面村庄和田野并且远眺山景。西侧和北侧则被竹林环绕,空间相对内向。项目本身也处于乡村之中,基于这一背景,我们并未将空间转向城市化的精致表达,而是尝试以更为克制和质朴的方式介入,通过材料与工艺回应乡村的自然环境。
▼场地原状, Original site condition


The site itself is exceptionally well situated, perched on a hillside with a topography that slopes downward from west to east. To the east, the view opens up onto the village and fields, with distant mountains visible on the horizon. The western and northern sides are embraced by bamboo groves, creating a more intimate, inward-facing space. Given this rural context, we have chosen to avoid an urban, refined aesthetic, instead intervening in a restrained and unpretentious manner—using materials and craftsmanship to engage with the natural rural environment.
▼建筑外观, Exterior View

▼入口, Entrance

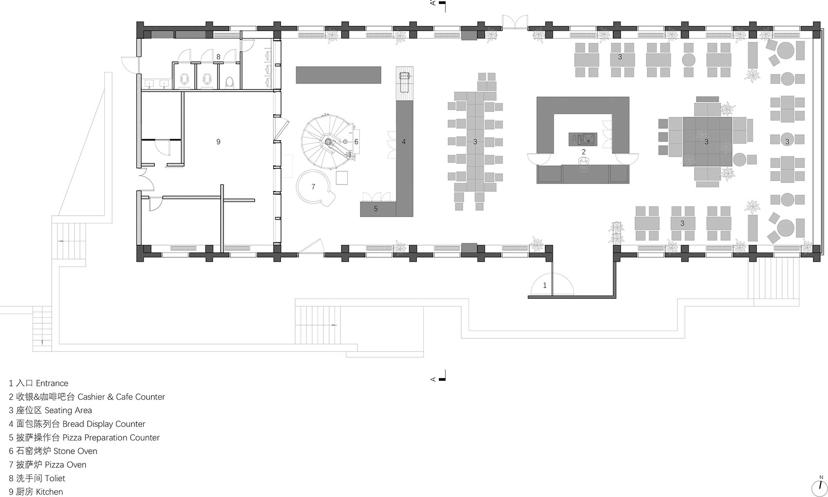
建筑室内为单一大开间结构,内部没有任何墙体和隔断,并不具备餐饮空间所需的基本功能。品牌方的初心,是让面包回归乡村本源,打造一座真正具有世界级水准的石窑面包之所。将对于面包的虔诚信仰,安放于这座充满仪式感的礼堂建筑之中。石窑烤炉就成为了不可或缺的设备,设备本体已预先订购,尺寸为直径2.7米、高2.2米。这个尺寸的烤炉如果放在城市之中的确可以形成原本该有的张力,但是当这一尺度被置入到我们这个空间后,反而显得过于迷你,难以形成预期中的空间张力。
The interior is a single, open-plan space with no internal walls or partitions, lacking the basic functionality required for a dining establishment. The Client’s original vision was to return bread to its rural roots and create a stone-oven bakery of truly world-class standard. This reverence for bread is embodied within this ceremonial hall-like structure. The stone-fired oven has therefore become an indispensable piece of equipment—the unit itself had already been ordered, measuring 2.7 meters in diameter and 2.2 meters in height. While an oven of this size would certainly command the intended visual impact in an urban setting, it appeared disproportionately small when placed within this space, failing to generate the anticipated spatial tension.
▼室内空间概览, Interior overview



基于这一判断,我们对石窑的尺度进行了重新设计。与其让空间容纳一个设备,不如让设备成为空间本身的一部分。所以我们将烤炉的高度提升至6米,使其垂直延伸至天花底部,将其转换为空间的核心装置,成为空间中除了室外景色之外的绝对核心焦点。
Based on this assessment, we redesigned the scale of the stone oven. Rather than having the space accommodate a piece of equipment, we chose to make the equipment an integral part of the space itself. We raised the oven to a height of six meters, extending it vertically to the ceiling, transforming it into the centerpiece of the space and establishing it as the absolute focal point—second only to the views outside.
▼石窑烤炉, Stone oven

室内的空间布局上,同样顺应了场地的朝向关系,西侧面向竹林,视野被遮挡,空间相对封闭,因此被整合为后厨及卫生间等辅助功能区,并通过“内建筑”的方式形成一个相对完整的内部结构。东侧则为通高的玻璃幕墙,正对开阔的自然景观,具备良好的采光与视野条件,因此被设置为主要的就餐区域,使室内活动最大程度地与外部环境建立联系。整体空间还是保持开放与连续,让石窑与大面积玻璃幕墙成为空间两侧的核心“景观”。
The interior layout likewise responds to the orientation of the site. The west side faces a bamboo grove, where the view is obstructed and the space feels more enclosed; this area is therefore designated for auxiliary functions such as the kitchen and restrooms, forming a relatively self-contained internal structure through an “architecture within architecture” approach. The east side features floor-to-ceiling glass curtain walls that open onto expansive natural scenery, offering abundant natural light and unobstructed views—making it the ideal location for the main dining area, where indoor activities can establish a close connection with the external environment. The overall space remains open and continuous, with the stone oven and the expansive glass curtain walls serving as the core “landscapes” on either side.
▼收银与咖啡吧台, Cashier and Coffee counter


▼收银与咖啡吧台近景, Cashier and Coffee counter close view

由于项目的施工团队也来自当地乡村,很多工艺环节均由传统手工艺完成,基于这一现实条件也反向影响了设计策略,设计在控制表达的同时,如何确保建造简单、工艺可达,从而保证项目能够顺利落地,是一件很重要的事情。
As the project’s construction team also comes from the local village, much of the craftsmanship is carried out using traditional techniques. Given this reality, the design strategy has been shaped accordingly—while keeping the design expression restrained, it is essential to ensure that the construction remains straightforward and the craftsmanship achievable, to ensure the project’s successful completion.
▼面包吧台, Bakery counter

在材料策略上,最初设想通过回收村中旧家具与废弃木材,并结合当地丰富的竹材资源进行在地化建造,但在实际执行中发现成本与实施难度均超出预期。最终还是采用了更为务实的方式:以标准化材料为基础,通过现场加工和组装。东侧就餐区,我们原本计划采购成品的木托架,以营造一种轻松、自由的氛围。然而在实际调研与样品比对过程中,我们发现现有成品木托架质量均难以满足项目需要。最终我们选择以常规海洋板为基础,由当地木工现场加工与组装,模拟木托架的结构形式。
In terms of material strategy, the initial plan was to incorporate recycled furniture and discarded wood from the village, along with the region’s abundant bamboo resources, to achieve a localized approach to construction. However, during implementation, both the costs and the difficulty of execution proved to be higher than expected. Ultimately, we adopted a more pragmatic approach: using standardized materials as a base, with on-site processing and assembly. For the dining area on the east side, we had originally planned to purchase ready-made wooden pallets to create a relaxed, informal atmosphere. Yet during field research and sample comparisons, we found that the quality of the available ready-made pallets fell short of the project’s needs. In the end, we chose to use standard marine plywood, which was cut and assembled on-site by local carpenters to recreate the structural form of wooden pallets.
▼灵活座位区, Flexible seating area

▼灵活座位区近景, Flexible seating area close view


空间中的部分家具与装置也是基于木托架模块衍生而来,并结合软木瑜伽砖设计成可移动座凳,使其在满足使用的同时具备重复利用的可能性。项目完成后,这些构件也被再次用于品牌在其他场景中的搭建,延续了材料的生命周期。
Some of the furniture and installations in the space are also derived from the timber bracket modules; combined with cork yoga blocks, they have been designed as movable seating, ensuring both functionality and reusability. After the project was completed, these components were reused in the brand’s installations in other settings, extending the lifecycle of the materials.
▼绿植座位区概览, Seating area with plants overview

▼窗边的绿植座位区, Seating area with plants by the window

▼绿植座位区一角, A corner of seating area with plants


我们认为,设计的价值不在于刻意制造“新奇”,而是希望在有限的介入中保留场地原有的气质。让空间回归自然本质,弱化设计痕迹,使建筑与乡村环境形成对话关系。
We believe the value of design lies not in deliberately creating something “novel,” but in preserving the inherent character of the site through minimal intervention. By returning the space to its natural essence and downplaying overt design gestures, we aim to foster a dialogue between the building and its rural context.
▼落地玻璃旁长桌, Long table along the floor-to-ceiling windows

我们希望如今的石窑面包工坊,不仅仅是一个餐厅,而是延续了原有礼堂的公共属性,成为连接人、食物与环境的场所,在当代语境中延续乡村生活的另一种可能。
We hope that today’s Stone Oven Bakery is more than just a restaurant—it continues the public spirit of the original auditorium, becoming a place that connects people, food, and the environment, and offering another possibility for rural life in a contemporary context.
▼一窗一景, A view through every window



▼空间细节, Details




▼总平图,Site Plan

▼平面图,Layout

▼剖面图,Section

Project Name: Cycle&Cycle Stone-oven Bakery Restaurant
Project Type: F&B
Location: Shaoxing, China
Area: 420㎡
Interior Design: Tens Atelier
Design Lead:Tan Chen, YUI
Design Team:Guo Ankey, Jiao Huimin
Architectural Design: Fan Architectural Firm (FANAF)
Completion Time: July 2025
Photography: half.half.
Website: www.tensatelier.cn
Contact Email: tensatelier@foxmail.com
Materials: marine plywood, elm boards, yoga blocks, brushed stainless steel, limestone, self-leveling cement














