崎寻茶所,福建厦门 / DEVOLUTION退化建筑
在厦门退化村,在面朝开阔的海湾,崎寻的新店设计延续了闽南村落院落的自在感,空间以开放、通达为底色,让海的气息自然穿堂而过。
In DvLN Village, Xiamen, facing the open bay, the new store design of Taymeet continues the sense of ease found in southern Fujian’s village courtyards. The space is defined by openness and connectivity, allowing the breath of the sea to flow naturally through the hall.
▼入口界面,entrance facade

▼建筑外立面,building facade


▼庭院景观,courtyard view

建筑材料依旧选用福建当地的老木材与和闽南在地骨料为基地的混凝土块,那些被时间摩挲过的纹理与温度,让空间有了可触碰的痕迹。我们将茶梗、茶叶二次利用,制成茶渣板材,铺作桌面与座椅,茶香便不再只存于杯中,而是介入每一次使用的日常。这里没有繁复的茶道仪式,也没有刻意的距离感。它更像一个随时可以推门而入的歇脚处,延续“分茶寻游”的初衷,只提供一杯好茶与一段自在的停留。
The building materials still feature locally sourced old timber from Fujian and concrete blocks made with aggregate from southern Fujian. The textures and warmth worn smooth by time give the space a tangible sense of memory. We reuse tea stems and leaves to make tea-residue panels, which are used for tabletops and seating. Thus, the fragrance of tea no longer resides only in the cup but becomes part of every daily interaction. There is no elaborate tea ceremony here, nor any deliberate sense of distance. It feels more like a resting place where you can simply push the door open and step in at any time. Carrying on the spirit of sharing tea and wandering freely, it offers nothing more than a good cup of tea and a moment of unhurried respite.
▼室内概览,interior overview


▼陈列与座位区,display and seating area

▼吧台与座位区一角,a corner of bar counter and seating area


▼座位区近景,seating area close view

▼家具细部,furniture detail


通透的落地窗将海景带入室内,每一个角落都有属于自己的视野——大桥、货轮、远山,随着时辰变换,成为茶桌之外另一道流动的风景。我们希望每一位来到这里的人,都能感受到独属于这里。
The floor-to-ceiling windows bring the seascape into the interior. Every corner has its own view—the bridge, cargo ships, distant mountains—changing with the hours, becoming a flowing landscape beyond the tea table. We hope that everyone who comes
▼窗景视角,view from window

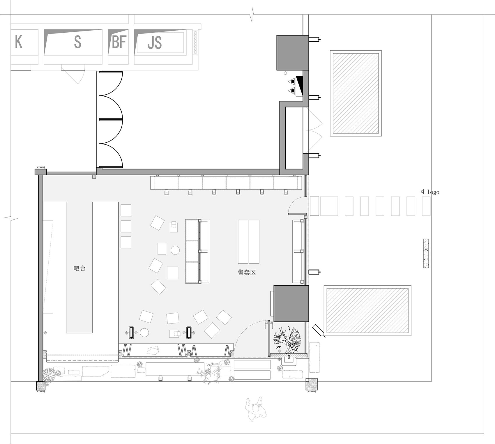
▼平面图,floor plan

项目信息
Project information
Project name: Taymeet at DvLN VILLAGE
Design: DEVOLUTION退化建筑
Completion Year: 2026
Project location: XIAMEN,FUJIAN, China
Leader designer: Tang Jiansong, Wang Qi
Design team: Wang Na, Wang Jingkai
Gross built area: 60 ㎡
Photo credit: Elias
Materials: granite














