深圳市云端学校 / 普罗建筑
1.回到现实,造一座“不抗拒城市”的学校Back to reality: building a school in a ‘non-resistant city’
近几年,深圳的“高密度学校实践”集体运动,“上天入地”利用有限的空间资源,为学生争取最大的教育自由,成为对当代空间社会问题的一次有效的“实践反思”。虽然高密度学校本来就是高密度城市的附属品,它不可避免地带来人性之间的争夺和紧张,但是从另一方面,社会文化仍然将学校看做一种“精神高地”,将“教育”看做是隔离现实的“理想乌托邦”。“学校”从社会认知上,机构组织模式上,某种程度成为了一种“反现实”,“反人性”的固化“理念”,这极大地限制了学生们探索世界的积极欲望,使“学习”本身不断成为一种“景观化”的观念,而不是一种深刻来源于现实的自驱力。
在云端学校设计之初,我们认识到,“高密度”问题只是其表面现象,抛开各种华而不实的教育空间设计理念,建筑学问题的核心在于如何重新回到“学校是社会现实产物”这一基本底层逻辑上,这才是探索未来学校模式与形态的出发点。
“造一座不抗拒城市的学校”,其实就是不抗拒现实,不抗拒人性,不抗拒问题,不抗拒过程的一种心态。一方面意识到城市与学校自身的不完美,同时尽量创造学校与城市之间的融合与连接,让巨大的学校建筑与组织主体溶解于周边社区的公共场域中。
In recent years, Shenzhen’s collective movement known as the ‘high-density school initiative’—which has made the most of limited spatial resources, ‘reaching for the skies and delving into the earth’ to secure the greatest possible educational freedom for pupils—has emerged as an effective ‘practical reflection’ on contemporary spatial and social issues. Although high-density schools are, by their very nature, an adjunct to high-density cities—inevitably giving rise to competition and tension between individuals—society and culture continue to regard schools as a ‘spiritual high ground’ and ‘education’ as an ‘ideal utopia’ isolated from reality. From the perspective of social perception and institutional organisation, the ‘school’ has, to a certain extent, become a rigid ‘ideology’ that is ‘anti-realistic’ and ‘anti-human’, which severely restricts students’ active desire to explore the world. Consequently, ‘learning’ itself has increasingly become a ‘scenic’ concept rather than a self-driven force deeply rooted in reality.
From the very inception of the Cloud School design, we recognised that the issue of ‘high density’ was merely a surface phenomenon. Setting aside various flashy yet impractical educational spatial design concepts, the core of the architectural challenge lies in returning to the fundamental underlying logic that ‘the school is a product of social reality’; this is the true starting point for exploring the models and forms of the school of the future.
▼高密度城市中的立体学校鸟瞰,Aerial View of a Multi-Story School in a High-Density City

▼夜幕下的融入城市的学校,A school blending into the cityscape under the night sky

▼城市自然融合的立体教育栖息地,A Multi-dimensional Educational Habitat Seamlessly Integrated into the City

▼将当下城市景观融入学校内部的多层教育场景,Integrating the contemporary urban landscape into the school’s multi-layered educational environments

所以,我们认为,未来的“学校”应该不再仅仅是“传授知识”或“组织管理”的“机构”,学校成为了社区中如同“公园”,“图书馆”,“车站”,“街道”等具有社区公共性的“栖息地”。在这样的“教育栖息地”中,孩子们不再被物理和制度的高墙所“保护”,而是在与现实世界的“沟通”中不断思考与探索。
▼竞赛方案阶段模型,Competition Proposal Stage Model

We therefore believe that the ‘school’ of the future should no longer be merely an ‘institution’ for ‘imparting knowledge’ or ‘organisational management’; instead, it should become a ‘habitat’ within the community, much like a ‘park’, ‘library’, ‘station’ or ‘street’, possessing a sense of communal public space. Within such an ‘educational habitat’, children are no longer ‘protected’ by physical and institutional walls, but rather engage in constant reflection and exploration through ‘interaction’ with the real world.
▼打开城市视野,光线,与空气的通廊,Opening Up the City’s View: A Corridor of Light and Air

▼“超叠栖地”成为城市发展的“新景观,“Superimposed-Habitats” Emerge as a “New Landscape” in Urban Development”

深圳云端学校是一个54班预计超过2000学生的九年制公立学校,其接近2.0的容积率与周边多阶段复杂的城市演化环境,使其不只是一所典型的“超级学校”,而且是一所自身高密度,社区极复杂,功能强复合,教学超创新的深圳高密度“超级学校”。我们认为,以云端学校为例,“超级学校”的这些“束缚”,恰恰可能利用“高密度”这一现实作为一种揭开问题的“钥匙”。将其密度,环境,功能,文化这些需求分步化解,最后像鲁班锁一样咬合成一个新的整体,形成属于云端学校自身的社会形式架构”。就是以“地域化”的策略解法,形成了一个新的普遍性的“超级学校”问题的“答案”。这个回答的“过程”与“结果”,使我们的建筑学工作不仅作为品味文化的形式,更是作为一种回应当下社会文化的具体实践动作。
Shenzhen Welkin School is a nine-year public school with 54 classes and an expected enrollment of over 2,000 students. With a floor area ratio of nearly 2.0 and situated within a complex, multi-stage urban environment, it is not merely a typical “super school,” but rather a high-density “super school” in Shenzhen characterized by its own high density, an extremely complex community, highly integrated functions, and ultra-innovative teaching methods. We believe that, taking Welkin School as an example, the “constraints” of “super schools” can actually be addressed by leveraging the reality of “high density” as a “key” to unlocking these challenges. By gradually resolving the demands of density, environment, function, and culture, and finally interlocking them like a Lu Ban lock to form a new whole, we create a social structural framework unique to Welkin School. This “localized” strategic approach provides a new, universal “answer” to the “super school” problem. The “process” and “result” of this response ensure that our architectural work serves not only as a form of cultural expression but also as a concrete, practical response to contemporary social and cultural realities.
▼悬浮于城市中的 “云端学校”,“Welkin School” Floating Above the City

2.“大”学校如何成为“小”聚落How can a ‘large’ school become a ‘small’ communities?
深圳市云端学校作为深圳市重点的教育创新示范学校,选址位于龙岗区坂田街道侨联西住宅区旁一块东西向场地。场地西侧为城中村,北侧为新建高层住宅区,南侧为工业厂房,东侧临城市主要干道,眺望龙华山坂田社区的城市发展一直处于快速而混杂的更新状态中。学校现状位置周边对于城中村的逐渐拆迁形成了周边“小”,“中”,“大”不同的城市建筑尺度的混杂状态。学校本身作为一个高容积率,大尺度的城市公共建筑,如果再增加对社区街道的压迫感,将进一步加剧城市社区尺度之间的割裂。如何既塑造学校文化形式上的“识别性”,又能通过“碎化”体量空间从而弥合“小”与“大”的周边城市尺度,使学校并不再次成为一种地块内的“城市填空”,而是一种网络化与线性化的“社区尺度纽带”,成为设计最核心的出发点。
▼云端学校区位图,the site location in longgang city

▼学校平面布局与周围城市尺度的对话,The Dialogue Between the School’s Site Plan and the Surrounding Urban Context

As a key educational innovation demonstration school in Shenzhen, Shenzhen Welkin School is situated on an east-west oriented site adjacent to the Qiaolian West Residential Area in Bantian Subdistrict, Longgang District. To the west lies an urban village, to the north a newly constructed high-rise residential area, to the south industrial buildings, and to the east a major urban thoroughfare. Overlooking Longhua Mountain, the urban development of the Bantian community has been undergoing rapid and complex renewal. The gradual demolition of the surrounding urban villages has created a mixed landscape of “small,” “medium,” and “large” urban building scales in the area. As a high-density, large-scale urban public building, the school risks exacerbating the disconnect between urban community scales if it further intensifies the sense of oppression on the neighborhood streets. The central design premise is to shape the school’s cultural identity while simultaneously “fragmenting” its spatial volume to bridge the gap between the “small” and “large” urban scales of the surrounding area. This approach ensures the school does not merely serve as another “urban infill” within the site, but rather functions as a networked and linear “community-scale connector.”
▼学校利用操场的缓冲与城中村进行对话,The school uses the schoolyard as a buffer to engage with the urban village

城中村老社区人群,新开发住宅的外来定居人群,周边工业区工作人员,都会因为新学校的建立产生更深的交流与联系。学校的新建筑形象一方面带来社区文化性的一种激活,但是另一方面,学校也需要消解自身的封闭性,中心性,以及独立性。这使得新的社区结构不是对拆迁后的场地进行一个新的“填补”,反而应该变成链接周边城市空间的“纽带”。
▼学校布局生成分析动画 Analysis of School masterplan

Residents of older neighborhoods in urban villages, newcomers settling in newly developed residential areas, and workers from nearby industrial zones will all develop deeper connections and interactions as a result of the new school’s establishment. While the school’s new architectural presence revitalizes the community’s cultural fabric, it must also overcome its own sense of isolation, centrality, and independence. This ensures that the new community structure does not merely “fill in” the space left after demolition, but rather serves as a “link” connecting the surrounding urban spaces.
▼学校链接城市肌理,形成新的城市公共文化景观,The school connects with the urban fabric, creating a new public cultural landscape in the city

第一步,通过首尾连接的三条“线性教学廊”,将整个学校变成一个互相关联的整体,而不是三堵封闭的“大墙体”。第二步,将线性廊通过更小尺度的平面错动,变成更小单元的“像素化锯齿”,从而创造出9个不同尺度的“内院”,进一步形成更人性尺度的体验。第三步,通过立体层叠错动,形成连续阶梯形层台,将六层教学楼连续跌落消解,与周边城市高度融合。通过这三个层面的“尺度”操作,学校与周边城市发生了底层逻辑的关系建构,将巨大的新学校形成一种“城市肌理”本身的构造,变成一种社区的“文化景观”。同时,针对在地的具体逻辑构建,并不存在先天的类型或符号的直接借用,却最终形成了新的属于这块社区自己的当代的“城市形式语言”,其形式化的新凝聚力将促进周边社区共同价值的再次凝聚。
Step 1: By connecting three “linear teaching corridors” end-to-end, the entire school is transformed into an interconnected whole, rather than three isolated “massive walls.” Step 2: Through small-scale plan shifts, the linear corridors are transformed into “pixelated jagged edges” composed of smaller units, thereby creating nine “inner courtyards” of varying scales and fostering a more human-scale experience. Step three: Through three-dimensional layering and offsetting, a series of continuous stepped terraces is formed, allowing the six-story academic building to cascade down seamlessly and blend harmoniously with the surrounding urban landscape. Through the manipulation of “scale” across these three levels, the school establishes a fundamental relationship with the surrounding city, integrating the massive new school into the very fabric of the urban texture and transforming it into a “cultural landscape” of the community. At the same time, the construction of this site-specific logic does not rely on the direct borrowing of pre-existing typologies or symbols; instead, it ultimately gives rise to a new, contemporary “urban formal language” unique to this community. The new cohesion derived from this formalization will foster a renewed sense of shared values among the surrounding neighborhoods.
▼城市连续性的公共景观,Public Landscapes for Urban Continuity

3.把社区“吸纳”进来的学校Schools that have been ‘integrated’ into the community
通过打开东西向的视野,西部的城中村景观与东部的山体绿色廊被引入到学校内部。这使学校不再是一个封闭的“内部”,而成为城市共生的有机部分。学生从每个教室出来都能感受到“身处于真实的城市社会中”,一种“集体”与“个人”关系的不断触碰与思考,一种个体自由意志的解放,而不再是仅仅被单一教育组织所“设计”的“理想校园生活”。
By opening up the east-west view, the landscape of the urban villages to the west and the green mountain corridor to the east are brought into the school grounds. This transforms the school from a closed “interior” into an organic part of the urban ecosystem. When students step out of each classroom, they feel as though they are “part of a real urban society”—a constant engagement with and reflection on the relationship between the “collective” and the “individual,” and a liberation of individual free will—rather than merely an “ideal campus life” “designed” by a single educational institution.
▼在学校内部共享城市视野,Sharing a City Vision Within the School

▼学校内部空间模仿并融入周边自然生长的城市肌理,The school’s interior spaces mimic and integrate with the naturally evolving urban fabric of the surrounding area

▼开放的视野时刻引导着孩子们望向更广阔的外部真实世界,An open view constantly guides children to look out at the wider, real world outside

▼城市中的“天空操场”,“Sky Playgrounds” in the City

▼学校未完工时拍摄的落日城市,The setting sun city captured when the school was still under construction @张之杨

4. 为孩子课间活动多争取“5分钟”Let’s try to secure an extra ‘five minutes’ for children’s break-time activities
密度如何带来集约,而不是仅仅集中?效率与场所哪个才是底层逻辑?这些问题往往是学校面临的核心矛盾。我们认为,享有平等的时间权利才是最大的善待。如何解决学生“课间十分钟”的活动问题,往往是高密度的学校是否能成为一个“栖息地”式的场所最重要的底层问题。我们在学校教学区中设立了一套层叠空间系统。每条教学走廊尽端都能抵达屋顶花园平台。一方面使每个孩子在半分钟内可达开阔的活动场地,才能利用宝贵的下课时间建立更多轻松的社交体验。另一方面,每一层平层可达的活动平台避免了设置集中式的活动平台所导致的资源争抢,霸凌,以及楼梯上的奔跑与危险。多个散落的活动空间创造了“栖息地”中“小团体”的组织与建立,有效消解了学校集中式权力的压迫感。
▼每一层拥有独立的活动平台,缓解密度压力,Each floor features a separate activity area, alleviating overcrowding

How can density foster integration rather than mere concentration? Which is the underlying principle: efficiency or place? These questions often represent the core dilemmas facing schools. We believe that ensuring equal access to time is the greatest form of care. How to address students’ activities during “ten-minute breaks” is often the most fundamental issue determining whether a high-density school can become a “habitat”-like space. We have established a system of stacked spaces within the school’s academic zone. Every teaching corridor leads to a rooftop garden platform at its end. On one hand, this ensures that every child can reach an open activity area within thirty seconds, allowing them to use their precious break time to build more relaxed social experiences. On the other hand, the activity platforms accessible from each floor level avoid the resource competition, bullying, and the dangers of running on staircases that result from centralized activity platforms. Multiple scattered activity spaces foster the formation of “small groups” within the “habitat,” effectively alleviating the oppressive feeling of centralized authority in the school.
▼“层叠部落”屋顶景观活动体系,“Layered Tribes” Roof Landscape Activity System

将这些层叠平台进行错动,形成两层通高的单廊教室系统。一方面打开了公共空间的城市视野,另一方面形成了多层之间的无差别交流场域。通过水平和立体的错动,整个学校空间像真实城市生长一样,形成了各种“不规则”的自然街道穿插体验,进一步碎化了学校的超尺度,使“栖息地”社区好似多个“聚落”的汇集与碰撞,与周边城市空间肌理融合。
▼“层叠部落”双向错动研究模型 research of “Nested Tribes”

By offsetting these stacked platforms, a double-height, single-corridor classroom system is created. On the one hand, this opens up urban views from the public spaces; on the other, it establishes seamless interaction zones across multiple levels. Through horizontal and vertical offsets, the entire school space grows like a real city, creating a variety of “irregular” natural street-like experiences that further fragment the school’s oversized scale. This makes the “Habitat” community resemble a convergence and collision of multiple “settlements,” blending seamlessly with the surrounding urban fabric.
▼错动减少了对城市的压迫,其实用性形成学校空间的标志性,The staggered design reduces the sense of oppression in the urban environment, and its practicality defines the character of the school’s space

▼通过错动降低视觉上的层数,减少密度压,Reduce visual complexity and alleviate a sense of density through off-axis composition

▼错动走廊打开的视野空间,The shifting corridor opens up the visual space

▼通高走廊形成开敞的自然视野,The high-ceilinged corridor creates an open, natural view

▼一座融入城市的学校,A School Integrated into the City

▼四通八达没有尽端的学校,A School with Endless Connections

▼连续跌落的建筑在操场形成地面上两三层楼的低密度校园感受,The stepped-back buildings create a low-density campus atmosphere on the playground, with structures rising two or three stories above ground level

▼生活区的城市峡谷,Urban Canyons in Residential Areas

▼峡谷中不断错落的空间犹如真实的南方街巷,The staggered spaces within the canyon resemble real southern alleyways

▼通过水平垂直错动平台使不同层之间形成交流,Creating communication channels between different levels through horizontal and vertical shifting platforms

5.无时无刻不在“交互”的学校A school where interaction is a constant feature
根据云端学校自身功能要求以及龙岗区学校的通用配套规范,对于学生文体活动,生活休闲设施的要求很高。如何将这些公共功能从“配套”变成整个高密度学校社区构建的核心“介质”,使“教学”溶解于这些公共交流场域中,是在学校组织高效的基础上实现“生活性”的重要措施。西侧的立体艺体中心与东侧的立体生活中心在学校两端形成同时与外部城市和学校内部互动的公共场域介质。这些介质与主教学单元深度链接与融合,成为“栖息地”的公共基础设施。
▼不同的公共基础设施融入在立体的穿梭交互系统中,形成同时与学校内外的交互,Various public infrastructure elements are integrated into a multi-level, interconnected system, fostering interaction both within and outside the school

Based on the functional requirements of the Welkin School itself and the general supporting facility standards for schools in Longgang District, there are high demands for facilities supporting students’ cultural, sports, and recreational activities, as well as daily life and leisure. How to transform these public functions from mere “supporting facilities” into the core “medium” for constructing the entire high-density school community—and how to integrate “teaching” into these public interaction spaces—is a crucial measure for achieving a “lifestyle-oriented” environment while maintaining the school’s organizational efficiency. The multi-level Arts and Sports Center on the west side and the multi-level Lifestyle Center on the east side form public mediating spaces at both ends of the campus that interact simultaneously with both the external city and the school’s internal environment. These mediating spaces are deeply linked and integrated with the main teaching units, serving as the public infrastructure of the “habitat.”
▼立体叠加的城市街道与学校生活场景,Layered urban streetscapes and school life scenes

a.“穿梭”体育港 a. “Shuttle” Sports Hub
在空中操场下,室内篮球馆,羽球馆,活动中心,报告厅,图书馆,艺体中心等功能围被“吊在空中的”环形的廊道所串联,形成了一个超多元的立体“运动街区”。通过与外部城市社区和内部绿谷院落的层层渗透,将城市与校园内部形成有深度的沟通。空中游廊在校园与城市的边界上不断“扰动”,将学生不断从校园内部的氛围中带入外部真实的城市街道,从而模糊学校物理上封闭的边界。其串联围合起的弧形小剧场,阶梯羽毛球场,“风扇”气候调节墙等丰富的局部空间让多层面的场景联动起来。
▼穿梭体育港剖面图,天窗与气候调节墙对架空空间气候的调节示意,Cross-section of the Sports Hub, illustrating how the skylights and climate-control walls regulate the climate in the elevated space

▼城市交互港环廊串联所有栖息场景,The Urban Interaction Hub’s circular corridor connects all living spaces

Beneath the elevated playground, functional spaces such as the indoor basketball court, badminton hall, activity center, auditorium, library, and arts and sports center are interconnected by a circular corridor “suspended in the air,” forming a highly diverse, three-dimensional “sports district.” Through layered integration with the surrounding urban community and the internal Green Valley courtyard, a profound connection is established between the city and the campus. The aerial promenade continuously “disturbs” the boundary between the campus and the city, constantly drawing students from the campus atmosphere into the real urban streets outside, thereby blurring the school’s physically enclosed boundaries. The rich local spaces it connects—such as the arc-shaped small theater, tiered badminton courts, and “fan-shaped” climate-regulating walls—create a dynamic interplay of multi-layered scenes.
▼多层廊道形成室内外空间的交互,Multi-level corridors create an interplay between indoor and outdoor spaces

▼中央绿谷与风雨操场的自然贯通,The Natural Connection Between the Central Green Valley and the All-Weather Sports Field

▼将学校内外的场景,自然同时吸纳并汇聚,Seamlessly integrating scenes from both inside and outside the school

▼文体中心的自然“碰撞”与交汇,The Natural “Clash” and Convergence of Culture and Sports

▼巨大的半室内风雨操场通过高效的结构与运动设施构建自由透明民主的活动空间,A vast semi-enclosed all-weather sports field creates a free, open, and democratic space through efficient structural design and athletic facilities

▼环形的空中“交互廊道”不断穿越不同活动空间之间可开启的“气候调节墙”,A circular aerial “interaction corridor” continuously passes through openable “climate-control walls” connecting different activity spaces

▼在廊道上同时观察城市街道与体育场景,Observing both city streets and sports scenes from the corridor

▼不同层级的空间激发着不同的情绪与成长场景,Spaces at different levels evoke different emotions and foster different growth scenarios

▼将街道的绿色,光线,空气引入体育馆内部,Bringing the street’s greenery, light, and air into the gymnasium

▼条形的羽毛球场所形成单项的强烈场景叠加

▼既分隔,又连结的活动空间,The linear shape of the badminton court creates a striking visual composition

▼“气候调节墙”,环廊,体育场,城市多场景的叠加,“Climate-Regulating Wall,” Colonnade, Stadium, and the Overlay of Urban Scenarios

▼穿梭到主入口街道上的弧形环廊形成家长与学生的交流区,The curved colonnade that runs along the street leading to the main entrance serves as a gathering area for parents and students

▼打破学校内外的界限,形成弧形小剧场,Breaking down the boundaries between inside and outside the school to create a curved small theater

b.“书山”-走廊式的图书馆 b. “Book Mountain” – a corridor-style library
整个校园呼应周边城市社区的体量,从西到东层层升高,其外部的活动空间伴随着充足的视野阶梯状展开。同时,在建筑的内部,在城市的界面上,我们将传统的“图书馆”拉长,变成了一个水平向和垂直向均贯通的“交互长廊”。这就将过去利用率不高的独立图书馆功能变成一个链接空中体育场和地面的“公共交流空间”,从而弱化其刻意的功能性,而变成不断变化的非正式休闲“交通空间”。让交流,阅读,休憩成为一种自然发生的“生活方式”,而不是固定的功能化流程。
▼“书山”图书馆的各种“非正式”交流空间 The Various “Informal” Social Spaces at the “Book Mountain” Library

▼内部不断跌落的“走廊式”图书馆模型,An “Corridor-Style” Library Model with a Continuously Descending Interior

The entire campus echoes the scale of the surrounding urban community, rising in tiers from west to east, with its external activity spaces unfolding in a stepped configuration that offers ample views. Meanwhile, within the building and at the urban interface, we have elongated the traditional “library” into an “interactive promenade” that connects both horizontally and vertically. This transforms the previously underutilized standalone library function into a “public exchange space” linking the elevated sports stadium and the ground level, thereby downplaying its deliberate functionality and turning it into an ever-changing, informal, leisurely “transitional space.” It allows for interaction, reading, and relaxation to become a naturally occurring “lifestyle” rather than a fixed, functional process.
▼外部和内部都不断连续跌落,与城市对话 Continuous Descents, Both Externally and Internally: A Dialogue with the City

▼不断跌落的学校入口,形成尺度的亲近,避免高密度对街道的压迫,The school entrance, which slopes downward, creates a sense of intimacy and prevents high-density structures from overwhelming the street

▼不同高度叠加的空间场景,Spatial scenes layered at different heights

▼自然跌落的“地景”,“Landscape” of Natural Falling

▼走廊式的“非正式”交流区,Corridor-style “informal” gathering area

C.“超叠盒子“-包裹身体的视听剧场 C. “Nested Boxes”—An Audiovisual Theater Enveloping the Body
在“书山”延申的尽端,在空中操场下方,是学校的“演艺厅”,我们称之为“超叠盒子”。通过整体木纹肌理材料的包裹,使盒子内部具有极强的沉浸感。两层看台分别连接教学区不同层高,使学生可以从教学走廊,体育馆内等不同空间自然步入。层叠状的天花学校本身的设计概念的艺术“雕塑“,同时将注意力完全引导向舞台空间。
▼由“书山”继续向下延申到双层剧场,Extending downward from the “Mountain of Books” to the two-story theater

At the far end of the “mountain of books,” beneath the aerial playground, lies the school’s “performance hall,” which we call the “Stacked Box.” Enveloped in materials featuring an overall wood-grain texture, the interior of the box offers a deeply immersive experience. The two tiers of seating connect to different levels of the academic zone, allowing students to enter naturally from various spaces such as the teaching corridors and the gymnasium. The tiered ceiling serves as an artistic “sculpture” that embodies the school’s design concept while directing attention entirely toward the stage space.
▼层叠剧场,Nested Theater

▼层叠剧场,Stacked Theater

D.“阶梯食堂“-教师与学生共享的立体生活社区 D. “The Staircase Cafeteria”—A multi-level living community shared by faculty and students
在学校东部端头是学校的“生活区“,包括教师宿舍,教师休闲区,教师食堂,学生食堂等功能。通过在紧凑的用地中将这些功能融入在”社区花园“中,使老师与学生在此可以平等地共享与交流,而不再是教学模式下的身份对立,是空间的出发点。通过整合“阶梯生活花园”与食堂,形成一个三层的立体结构。最下层为学生食堂,中层为教师食堂,顶层为共享生活花园。在用餐中,学生与教师各自独立,又共享一个空间。
▼阶梯食堂模型,Model of a Tiered Cafeteria

Located at the eastern end of the campus is the school’s “living area,” which includes faculty housing, a faculty lounge, a faculty cafeteria, and a student cafeteria. The design concept centers on integrating these functions into a “community garden” within the compact site, enabling teachers and students to interact and share the space on equal footing—moving beyond the hierarchical dynamics of the traditional teaching model. By combining the “terraced living garden” with the cafeterias, a three-story vertical structure is created. The lowest level houses the student cafeteria, the middle level the faculty cafeteria, and the top level the shared living garden. During mealtimes, students and faculty dine separately yet share the same space.
▼阶梯生活花园,stair living garden

▼阶梯花园下,与教师食堂上下层联通的高年级学生食堂,The upper-grade student cafeteria connected to the teachers’ cafeteria via a staircase

▼食堂下沉庭院,Sunken Courtyard by the Cafeteria

▼低年级食堂采光天井,Daylighting atrium of the lower grade cafeteria

▼多处引入光线的食堂,Skylight in the Lower-Grade Cafeteria

6. 自然之谷-城市自然地理的延续
前面说到,通过学校自身布局与城市肌理的紧密关系,云端学校在极其紧凑狭长的用地条件下,集约了建筑用地,在学校中心争取了一条东西向贯通的“自然绿谷“,从而一方面打开了学校内部向城市的封闭的视野,一方面将周边自然,光线,风,植物,引入了校园内部。这不仅从文化上延续了城市空间肌理,从生态角度,也同时解决了学校内部针对深圳南方湿热气候的系统性问题。
▼贯通学校的自然之谷图解,Illustrated Guide to Nature Valley at Guantong School

As mentioned earlier, by leveraging the close relationship between the school’s layout and the urban fabric,Welkin School has maximized the use of its extremely compact and narrow site. It has carved out an east-west “natural green valley” at the school’s center, thereby opening up the previously closed-off views from the school toward the city while simultaneously bringing the surrounding nature—including light, breeze, and vegetation—into the campus. This not only culturally extends the urban spatial fabric but also, from an ecological perspective, addresses systemic challenges within the school related to Shenzhen’s hot and humid southern climate.
▼自然之谷,Valley of Nature

▼与绿色山景的自然联结,A Natural Connection with the Lush Mountain Landscape

▼多层次的绿色景观设计,Multi-layered Green Landscape Design

绿谷方向顺应龙岗区主导风向,其“漏斗”的形状在学校内部创造了一条“风压廊道”。通过这条主风道,带动了建筑外廊多条次级风道的运作,使学校任何一个角落在任何时段都有徐徐凉风吹过。层叠平台通高的高度变化进一步增强了这种通风的效果。经过学校建成后的现场实测,可感知身体始终保持在凉爽及干燥的状态下,这大大降低了学校夏季对于空调能源的依赖,使“栖息地”的生活始终保持在舒适的状态。
▼由中央绿谷形成的主导风廊通风降温设计 Ventilation and Cooling Design Utilizing the Dominant Wind Corridor Formed by the Central Green Valley

The Green Valley design aligns with the prevailing wind direction in Longgang District, and its “funnel” shape creates a “wind pressure corridor” within the school. This primary airflow channel drives the operation of multiple secondary airflow channels along the building’s exterior corridors, ensuring that a gentle breeze flows through every corner of the school at all times. The varying heights of the stacked terraces further enhance this ventilation effect. On-site measurements taken after the school’s completion confirm that occupants remain cool and dry at all times, significantly reducing the school’s reliance on air conditioning during the summer and ensuring that life within this “habitat” remains consistently comfortable.
▼未完工的云端学校远眺银湖山郊野公园,The unfinished cloud school overlooks the Silver Lake Mountain Country Park

▼通畅的中央绿谷风廊,The Unobstructed Central Green Valley Wind Corridor

▼夜幕下的城市绿谷,Urban Green Valley Under the Night Sky

▼绿谷旁的一层架空活动场所 A single-story elevated recreational space next to the Green Valley

7.社会化建造-材料,施工,适应性 7. Socialized Construction—Materials, Construction, Adaptability
“社会化建造”一直是我们事务所工程上坚持的建造策略。从结构,材料,节点,机电设备逻辑等角度,我们始终钟情于项目现实社会背景的限制与机会。云端学校作为政府全资的公立学校之一,其预算等级均维持于公共建筑中等偏下的水平。如何在时间周期,施工水平,造价制约的环境中,实现学校空间的最高均衡品质,是项目设计当中重要的管控策略。
首先是吊顶与外墙的权衡。通过对多个公立学校的走访,我们发现吊顶对学校空间品质影响极大。学生头顶裸露的管线成为建筑系统的不稳定因素。所以我们采取了“弱外墙”,“强吊顶“的策略。降低外墙的材料等级,仅使用仿砖白色质感涂料保证外墙的形体完整性,从而保证了学校走廊通体吊顶的预算实现,最终呈现了高品质的空间效果。
考虑到到学校运营中对高频检修(如灯具、管线维护)的硬性需求,以及材料重量对学生安全的隐患,我们最终使用集成化的椭圆形穿孔铝板这一轻质、耐用且易于拆卸安装的材料,形成了全包裹式吊顶效果,避免了传统格栅式吊顶的商业化风格。
▼层叠错动空间的典型剖面构造分析 Analysis of the typical cross-sectional structure of a staggered, interlocking space

“Socialized construction” has always been the core strategy our firm adheres to in our projects. From the perspectives of structure, materials, details, and MEP systems, we remain committed to addressing both the constraints and opportunities presented by the project’s real-world social context. As a government-funded public school, Cloud School operates within a budget range that falls in the lower-middle tier for public buildings. Achieving the highest possible balanced quality in the school’s spaces while navigating constraints related to timeline, construction standards, and cost was a key management strategy throughout the design process.
First is the trade-off between the ceiling and the exterior walls. Through visits to multiple public schools, we discovered that ceilings have a significant impact on the quality of school spaces. Exposed piping above students’ heads creates instability in the building systems. Therefore, we adopted a “weak exterior walls, strong ceilings” strategy. By downgrading the material grade of the exterior walls and using only white textured paint with a brick-like finish to ensure the integrity of the building’s form, we secured the budget for full-height ceilings in the school corridors, ultimately achieving a high-quality spatial effect.
Considering the mandatory requirement for frequent maintenance (such as lighting and piping upkeep) during school operations, as well as the safety risks posed by heavy materials to students, we ultimately selected integrated elliptical perforated aluminum panels—a lightweight, durable, and easily removable material—to create a fully enclosed ceiling effect, thereby avoiding the commercial aesthetic of traditional grid-style ceilings.
▼仿砖纹的质感涂料,Textured paint with a brick-like finish

▼条形穿孔板集成吊顶系统设计,Design of a Slotted Perforated Panel Integrated Ceiling System

教室的分体式空调外机也是学校建筑立面必须处理的硬性问题。通过建筑错层廊道的设计,使每层空调外机布置于同层走廊异侧,下层走廊上层。这样的好处是在实现外走廊的基础上不会出现空调吹人的烦恼。同时,隔层出现的空调外机不会成为影响立面的主要元素,这种系统化的布局设计使外立面感觉不到空调外机的影响。教室门窗系统我们采取一体式设计,预留大面积内凹黄色金属漆墙面作为每个教室的公告区。教师与孩子们可以将各种告示,作品磁吸在墙面,作为班级交流的界面。
The outdoor units of the split-system air conditioners in the classrooms also present a critical issue that must be addressed on the school’s building facade. Through the design of staggered-level corridors, the outdoor units on each floor are positioned on opposite sides of the corridor—on the lower level’s corridor and the upper level’s corridor. The advantage of this approach is that it allows for the creation of an external corridor without the inconvenience of air conditioning blowing directly on people. At the same time, the outdoor units located on the intermediate levels do not become dominant elements affecting the facade; this systematic layout ensures that the facade remains visually unimpeded by the outdoor units. For the classroom door and window systems, we have adopted an integrated design, reserving large recessed areas of yellow-painted metal walls to serve as notice boards for each classroom. Teachers and students can attach various notices and artwork to these walls using magnetic strips, creating a space for class communication.
▼教室一体化落地门窗系统与空调立面系统, Integrated Floor-to-Ceiling Door and Window System and HVAC Façade System

▼科学教室内部云端线上教育系统,Science Classroom Cloud-Based Online Education System

▼简洁大气富有层次与细节的立面系统,A clean, elegant facade system rich in texture and detail

▼多种金属反射,穿孔板材质营造的文化科技感氛围,Reflections from various metals and the perforated panel material create a cultural and technological atmosphere

8.“超叠栖地”的“共营”-公共建筑“内容”的诞生 8. “Co-creation” in “Superimposed-Habitats”: The Emergence of “Content” in Public Architecture
一所“学校”到底是如何诞生的?从云端学校这个案例来看,如何将高密度校园通过与周边城市发展的现状进行深度关联来将城市性变成校园的一部分,是一个挑战。同时,多种校园活动的公共性与“教学单元”的制度性之间的关系是否能被解读为“社区性生活内容”,而非教育指标的硬性匹配,也是复杂的超级学校自身携带的问题。
我们选择将这样两个问题合二为一综合考虑。通过对校园活动功能建立城市性的方式,来达到“社区性”的合理发展,从而使校园既是普遍教育规则的延伸,同时又是地方社会文化的个性产物。在现存的公立教育责任体系的共识下,我们力图通过空间的组织架构创新与多方社会资源形成更多“显性”或“隐形”的关联,在封闭的场地中利用不同元素的“关系”去创造一种“松动”和“陌生”,从而传达一种更加松弛的“新教育生活内容”的共识。
How exactly does a “school” come into being? Taking the Welkin School as a case study, the challenge lies in how to integrate a high-density campus into the surrounding urban landscape by establishing deep connections with the city’s current development, thereby making urban characteristics an integral part of the campus. At the same time, whether the public nature of diverse campus activities and the institutional framework of “teaching units” can be interpreted as “community life” rather than a rigid alignment with educational metrics is a complex issue inherent to the super-school itself.
We have chosen to integrate these two issues into a unified consideration. By establishing urbanity through the functional aspects of campus activities, we aim to achieve the rational development of “community life,” thereby ensuring that the campus serves as both an extension of universal educational norms and a unique product of local social culture. Within the existing consensus of the public education system, we strive to establish more “explicit” or “implicit” connections through innovative spatial organization and the integration of diverse social resources. By leveraging the “relationships” between different elements within a closed site, we aim to create a sense of “looseness” and “strangeness,” thereby fostering a consensus around a more relaxed “new educational lifestyle.”
打开视野,空间平权,增强交流,链接城市,这些设计的核心观念从初始竞赛方案到最终完整落地,是一个多方共同协作的结果。通过关联教育建筑中内存的不同“体制”“系统”“空间”“场所”等框架,将“学校”这一当代被识别为散落化的功能聚合物的场所,重新形成新的整体共识,是设计的出发点。但同时,学校是教育政策制定者,教育方,学生,家长,周边社区居民所形成的价值共同体。让学校成为一个具有共识的“公民成长”平台,成为社会多角度观念的协调器,是整个公共建筑项目“营造”的核心价值。
▼既理想化,又市井化的教育栖息地,An Educational Haven That Is Both Idealistic and Down-to-Earth

在整个“共营”的过程中,对于城市性的尊重,对于未来学校内容与形式之间关系的讨论,对于地域化建造背景适应性的优化,这些课题成为校方,工务署,设计方,施工方必须共同面对的过程。令人欣喜的是,工务署,校方,施工方对设计价值充分坚持,在整个营造过程中不断形成共识,最终完成了这座公共建筑的精神内核。
云端学校项目对我们自身的启示是:“学校”设计并不应该成为一种高度成熟化的产品。学校作为一个生活方式场所的模式潜力往往还没有被深入挖掘,就被组织模式所固化。一所不抗拒城市的学校,就是就应该呈现出城市与社区的真实,让教育成为真实的生活。
Broadening horizons, promoting spatial equity, enhancing communication, and connecting cities—these core design concepts, from the initial competition proposal to the final implementation, are the result of collaboration among multiple stakeholders. The design’s starting point was to re-establish a new, shared consensus around the “school”—a space currently perceived as a fragmented collection of functions—by linking the various frameworks of “systems,” “spaces,” and “places” inherent in educational architecture. At the same time, however, the school constitutes a community of shared values formed by educational policymakers, educators, students, parents, and residents of the surrounding neighborhood. Making the school a platform for “civic growth” based on shared consensus, and a coordinator of diverse societal perspectives, is the core value of the entire public building project’s “creation.”
Throughout the entire “co-creation” process, respecting the urban context, discussing the relationship between the content and form of future schools, and optimizing adaptability to the local construction environment have become challenges that the school administration, the Public Works Department, the design team, and the construction team must collectively address. These shared understandings ultimately form the spiritual core of urban public architecture.
The Cloud School project offers us this insight: “school” design should not become a highly standardized product. The potential of the school as a model for a way of life is often not fully explored before it becomes rigidified by organizational structures. A school that does not shy away from the city should reflect the true nature of the city and the community, allowing education to become a part of real life.
▼众多垂直摩天楼中的“水平摩天楼”,A “Horizontal Skyscraper” Among Many Vertical Skyscrapers

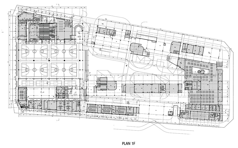
▼一层平面,ground floor plan

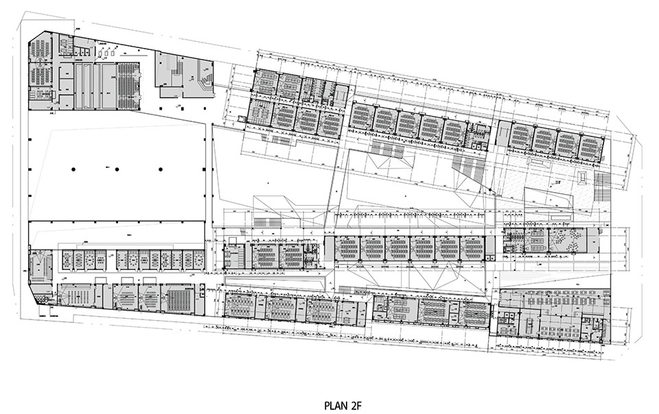
▼二层平面,first floor plan

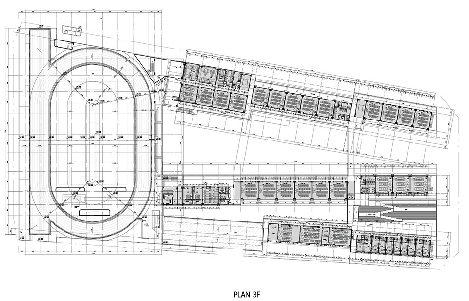
▼三层平面,third floor plan

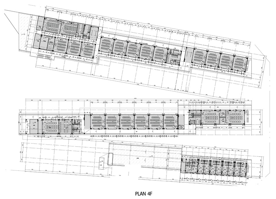
▼四层平面,fourth floor plan

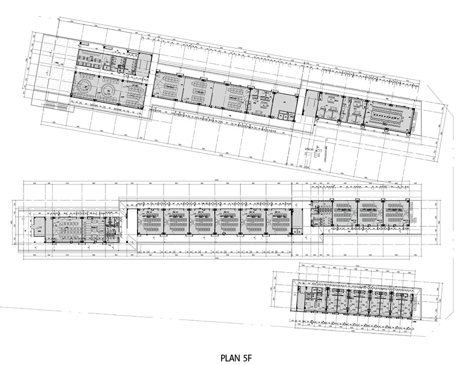
▼五层平面,fifth floor plan

▼剖面图,section


项目信息
设计单位 :普罗建筑设计事务所 officePROJECT-普罗忆象建筑设计(北京)有限公司
主持建筑师 :常可,李汶翰
设计团队:姜宏辉,赵建伟,蔡天,邹汶蓉,邹洁茹,陈纪元,冯超越,周舒宁,刘珺睿,刘宝霖
驻场建筑师:刘珺睿
业主单位 :深圳市云端学校,深圳市龙岗区教育局
建设单位:深圳市龙岗区建筑工务署
室内方案设计:普罗建筑设计事务所
景观方案设计:普罗建筑设计事务所+郭逸原 杨隆 禹治凡 赖姬婷
标识方案设计 :深圳技术大学创意设计学院参数化设计实验室
施工图设计团队:源筑工程设计有限公司
施工图建筑专业:孙红林、马跃、杨毅、钟适雅、周景昌、陈建丰、何梓鹏、夏卓彬
施工图结构专业:何竞锋、陈双、刘建明、李炜、黄伟彬
施工图给排水专业:顾宏、漆昕
施工图电气专业:张钢钢、徐国良、黎嘉文
施工图弱电智能化专业:李超华、黄清弘
施工图暖通专业:周燕萍、朱小鹏、付莹莹
施工图室内专业:陈伟勇、赵丹、冯激文、徐晓霞
施工图景观专业:刘平、凌汶文、周丽彩
施工图幕墙专业:李永福、李家焕
施工图标识专业:龙志强
绿建及海绵专业:江阳
全过程咨询公司:华东建筑设计研究院,深圳市合创建设工程顾问有限公司
基 地 面 积 : 25664.86平方米
总建筑面积 : 58242.30平方米
建筑结构:混凝土框架结构
摄影 :孔锦权,直角建筑摄影,张超
Project Information
Design Firm / officePROJECT
Lead Architects / Chang Ke, Li Wenhan
Design Team: Jiang Honghui, Zhao Jianwei, Cai Tian, Zou Wenrong, Feng Chaoyue, Zhou Shuning, Liu Junrui
Site Architect: Liu Junrui
Client: Shenzhen Yunduan School , Shenzhen Longgang District Education Bureau
Contractor: Shenzhen Longgang District Construction Bureau
Interior Design: officePROJECT
Landscape Concept Design: officePROJECT + Guo Yiyuan, Yang Long, Yu Zhifan, Lai Jiting
Signage Concept Design / Parametric Design Laboratory, School of Creative Design, Shenzhen University of Technology
Construction Drawing Design Team: Yuan Zhu Engineering Design Co., Ltd.
Architectural Construction Drawings: Sun Honglin, Ma Yue, Yang Yi, Zhong Shiya, Zhou Jingchang, Chen Jianfeng, He Zipeng, Xia Zhuobin
Structural Construction Drawings: He Jingfeng, Chen Shuang, Liu Jianming, Li Wei, Huang Weibin
Plumbing and Drainage Construction Drawings: Gu Hong, Qi Xin
Construction Drawing Electrical Engineering: Zhang Ganggang, Xu Guoliang, Li Jiawen
Construction Drawing Low-Voltage & Smart Systems: Li Chaohua, Huang Qinghong
Construction Drawing HVAC: Zhou Yanping, Zhu Xiaopeng, Fu Yingying
Construction Drawing Interior Design: Chen Weiyong, Zhao Dan, Feng Jiwen, Xu Xiaoxia
Construction Drawing Landscape Architecture: Liu Ping, Ling Wenwen, Zhou Licai
Construction Drawings – Curtain Wall: Li Yongfu, Li Jiahuan
Construction Drawings – Signage: Long Zhiqiang
Green Building and Sponge City: Jiang Yang
Full-process consultancy firms: East China Architectural Design & Research Institute, Shenzhen Hechuang Construction Engineering Consultants Co., Ltd.
Site Area / 25,664.86 square meters
Total Floor Area / 58,242.30 square meters
Building Structure: Concrete Frame Structure
Photography / Kong Jinquan, Right Angle Architectural Photography
Video Production / Right Angle Architectural Photography














