河南信息科技学院图书馆,鹤壁 / 同济四时方院
文脉锚点:双轴焦点上的古今空间呼应Cultural Context Anchor: Echo of Ancient and
Modern Spaces at the Intersection of Dual Axes
河南信息科技学院是鹤壁市首所本科院校,也是鹤壁主城区向东南拓展的核心起点。图书馆就坐落于校园南北礼仪轴与东西景观轴的十字交汇焦点,承担着锚定校园空间秩序、传承本地文脉的双重设计命题。
As the first undergraduate university in Hebi City, Henan Institute of Information Technology serves as the core starting point for the southeast expansion of Hebi’s main urban area. The library is located at the cross intersection of the campus’s north-south ceremonial axis and east-west landscape axis, undertaking the dual design mission of anchoring the campus spatial order and inheriting local cultural context.
▼项目整体鸟瞰,Overall aerial view of the project

▼西南侧黄昏鸟瞰,Dusk aerial view from southwest

校园两条轴线气质截然不同:南北向礼仪轴是校园的仪式性主轴,以弧形、圆形为核心几何元素呈现出理性、严谨的秩序感;东西向景观轴串联云梦湖与双湖景区绿化带,绿地水系蜿蜒舒展,是自由灵动的自然生态脉络。
The two axes of the campus have distinctly different characters. The north-south ceremonial axis, the ritual main axis of the campus, presents a rational and rigorous sense of order with arcs and circles as its core geometric elements. The east-west landscape axis, which connects Yunmeng Lake and the green belt of the Shuanghu Scenic Area with winding green spaces and water systems, is a free and flexible natural ecological vein.
▼图书馆西侧景观带局部,Partial view of the landscape belt on the west side of the library

▼图书馆南侧礼仪广场,Ceremonial plaza on the south side of the library

面对校园中轴,设计率先思考如何破题:校园中轴从来不是仅供观赏的仪式线,而是兼具象征性、使用性、体验感三重功能的空间核心。而设计的解法,是以四片圆弧的统一几何语言,衔接两条校园轴线,既呼应了南北礼仪轴的圆弧几何秩序,又以柔和的弧形边界消解建筑的生硬感,自然融入东西景观轴的自然氛围,让建筑成为双轴的融合枢纽。
When addressing the campus central axis, the design’s primary inquiry was how to crack the core design proposition : the campus central axis has never been merely a ceremonial line for viewing, but a spatial core integrating symbolism, functionality and experiential sense. The design solution adopts a unified geometric language of four arcs to connect the two campus axes. It not only echoes the arc geometric order of the north-south ceremonial axis, but also uses soft curved boundaries to eliminate the rigid sense of the building, allowing it to naturally integrate into the natural atmosphere of the east-west landscape axis. In this way, the building becomes a fusion hub of the dual axes.
▼校园轴线焦点,Focal point of campus axis

▼设计生成,Design generation

同时,这一设计思路可以巧妙的回应鹤壁本地的文脉原型。鹤壁古称朝歌,是华夏文明重要发祥地之一,其下辖浚县古城内的文治阁已有400余年历史。这座方形高台建筑四面起拱,十字券洞连通古城四条主街,既是古城的交通枢纽,也是当地“以文为治、文教兴邦”的文化象征。
Meanwhile, this design concept subtly responds to the local cultural context prototype of Hebi. Hebi, known as Zhaoge in ancient times, is one of the important birthplaces of Chinese civilization. The Wenzhi Pavilion in the ancient city of Junxian, under its jurisdiction, has a history of more than 400 years. This square high-platform building with arches on four sides and cross-cave tunnels connecting the four main streets of the ancient city is not only the transportation hub of the ancient city, but also a local cultural symbol of “governing with culture and rejuvenating the country through culture and education”.
▼浚县古城肌理,Texture of Xunxian ancient town

▼河南信息科技学院肌理,Texture of Henan Institute of Information Technology

设计提取文治阁 “十字拱顶、四街交汇” 的核心空间原型,在建筑底部打造十字贯通的拱券空间,让校园南北、东西两条轴线直接贯穿建筑主体,既延续了校园的空间脉络,也让图书馆从单一的阅览建筑,成为整个校园公共空间的核心锚点,与文治阁形成了跨越四百年的空间呼应。
The design extracts the core spatial prototype of Wenzhi Pavilion — “cross vault and intersection of four streets”, and creates a cross-through arch space at the bottom of the building, allowing the north-south and east-west axes of the campus to directly run through the main building. This not only continues the spatial context of the campus, but also transforms the library from a single reading building into the core anchor of the entire campus public space, forming a spatial echo with Wenzhi Pavilion across 400 years.
▼浚县古城文治阁,Wenzhi Pavilion in Xunxian ancient town

▼河南信息科技学院图书馆,Library of Henan Institute of Information Technology

空间叙事:三重立体公共空间营造Spatial Narrative: Creation of a Three-Tier
Three-Dimensional Public Space
基于双轴融合的设计逻辑与地域空间原型,图书馆打造了“底层校园广场——中部静谧阅览区——顶层天空合院”的三级立体空间体系,形成从开放到静谧再到升华的完整空间叙事,全面适配校园多元使用需求。
Based on the design logic of dual-axis integration and the regional spatial prototype, the library has created a three-tier three-dimensional spatial system of “Ground-Floor Campus Square – Middle Quiet Reading Area – Top-Level Sky Courtyard”, forming a complete spatial narrative from openness to tranquility and then to sublimation, which fully adapts to the diverse use needs of the campus.
▼建筑模型,Architectural model

▼建筑空间剖面模型,Architectural spatial section model

图书馆将文治阁“拱下通行”的功能原型转化为底部两组对称布置的大跨度拱形结构中。其中,南北向拱券跨度46.2m,东西向28.2m,拱顶净高 6.4m,空间拱券彻底打破了建筑的实体边界,从四个方向将校园路径引入建筑内部,让原本封闭的建筑基座真正融入日常校园生活,也让校园双轴的空间连续性得以完整保留。
The design transforms the functional prototype of “passage under the arch” of Wenzhi Pavilion into two sets of symmetrically arranged long-span arch structures at the bottom of the building. Among them, the north-south arch has a span of 46.2m, the east-west arch 28.2m, and the clear height of the arch crown is 6.4m. The spatial arch completely breaks the physical boundary of the building, introduces campus paths into the interior from four directions, allows the originally closed building plinth to truly integrate into daily campus life, and fully preserves the spatial continuity of the campus dual axes.
▼中庭中的活动,Activities in the atrium


▼中庭中的活动,Activities in the atrium


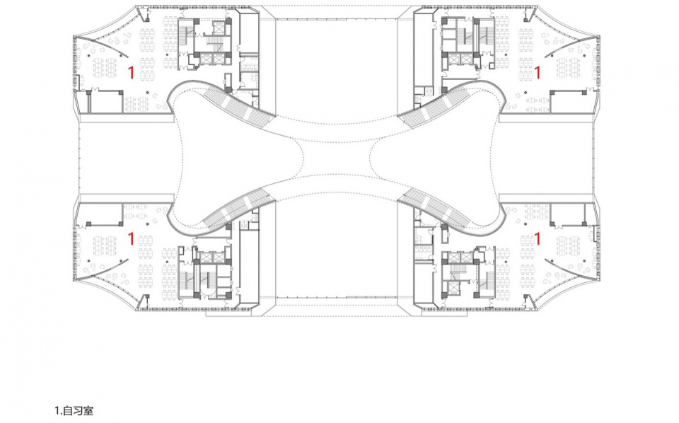
4-6层为核心阅览区,空间氛围转向内敛、安静。设计将交通核布置在建筑四角,把核心空间完整留给阅览功能,同时围绕中庭打造漫游路径,兼顾通行效率与空间体验。
Floors 4 to 6 are the core reading areas, with the spatial atmosphere turning introverted and quiet. The design arranges the traffic cores at the four corners of the building, reserving the core space entirely for reading functions. Meanwhile, a roaming path is created around the atrium, balancing traffic efficiency and spatial experience.
▼垂直交通分析,Vertical circulation analysis

▼中庭路径分析,Atrium path analysis

创新采用的“上挂下撑” 钢结构体系,实现了建筑中部少柱的开敞阅览空间,无遮挡的视野让师生既能沉浸式阅读,也可远眺太行山与城市风光,在阅读与观景之间获得身心平衡。
The innovative “suspended upper and supported lower” steel structure system realizes an open reading space with few columns in the middle of the building. The unobstructed view allows teachers and students to not only read immersively, but also overlook the Taihang Mountains and urban scenery, achieving a balance between reading and viewing for physical and mental relaxation.
▼通高自习室,Double-height self-study room

顶层的天空合院,是空间序列的收尾与升华。设计以向上柔和卷起的屋面,呼应中国传统庑殿顶的形制神韵,又消去传统屋顶的封闭核心,打造出向天空完全敞开的合院。
The top-level sky courtyard is the conclusion and sublimation of the spatial sequence. The design uses an upward and gently rolled roof to echo the charm of the traditional Chinese hip roof, while eliminating the closed core of the traditional roof to create a courtyard completely open to the sky.
▼“天空合院”,“Sky courtyard”

▼“上卷”的屋面,“Rolled-up” roof

合院采用工字钢斜撑结构体系,沿弧形屋面边缘均匀布置,实现最大9.3m的深远出檐,檐下空间以现代钢构还原传统木构的营造逻辑,通过构件的层级表达与材质肌理对比,复刻了传统檐下空间亲人的尺度感与温暖的氛围感。
The courtyard adopts an I-beam inclined bracing structure system, which is evenly arranged along the edge of the curved roof to achieve a deep overhang of up to 9.3m. The eave space restores the construction logic of traditional wooden structures with modern steel structures, and replicates the human scale and warm atmosphere of traditional eave space through the hierarchical expression of components and the contrast of material texture.
▼屋顶合院,Rooftop courtyard


▼合院的檐下空间,Eaves space of the courtyard


规矩方圆:经典构图比例里的传统营造智慧Rules and Compasses, Square and Circle: Traditional
Construction Wisdom in Classical Composition Proportions
在轴线融合的空间落地基础上,图书馆以中国传统“规矩方圆”的构图法则为核心逻辑,通过平面、立面、剖面的构图比例精准控制,让统一的数理秩序贯穿建筑全维度,跳出了符号复刻的局限,实现了传统营造智慧的当代转译。
On the basis of the spatial implementation of axis integration, the library takes the traditional Chinese composition principle of “rules and compasses, square and circle” as the core logic. Through the precise control of the composition proportions of the plan, elevation and section, it runs a unified mathematical order through the whole dimension of the building, breaks through the limitation of symbol replication, and realizes the contemporary translation of traditional construction wisdom.
▼图书馆立体展开数理分析,Mathematical analysis of library three-dimensional expansion

在平面构图上,设计以半径 46.2m、26.5m的两组圆形为基础,投射矩形建筑基底,划分出“中心——半弧形——角部”三类空间,回应文治阁“四方归中”的空间内核。
In terms of plane composition, the design is based on two sets of circles with radii of 46.2m and 26.5m, projects the rectangular building base, and divides three types of space: “center – semi-arc – corner”, responding to the spatial core of Wenzhi Pavilion that “all directions return to the center”.
▼图书馆平面数理分析,Mathematical analysis of library plan

“方圆”数理逻辑并未止步于平面,而是贯穿了建筑的全维度空间,实现了平、立、剖的同构对应。从底层十字拱券,到中部阅览区弧墙,再到顶层上卷的屋面,均遵循同一套几何比例,让三级空间体系形成统一的数理秩序。
The “square and circle” mathematical logic is not limited to the plane, but runs through the full-dimensional space of the building, realizing the isomorphic correspondence of plan, elevation and section. From the cross arch at the bottom, to the curved wall of the middle reading area, and then to the rolled-up roof at the top, all follow the same set of geometric proportions, allowing the three-tier spatial system to form a unified mathematical order.
▼图书馆南北立面数理分析,Mathematical analysis of north-south elevation of library

传统礼序从平面构图转化为可感知的立体空间体验,既保留了东方空间的精神内核,也适应着现代校园开放、平等、共享的核心需求。
The traditional ritual order is transformed from plane composition into perceptible three-dimensional spatial experience, which not only retains the spiritual core of Oriental space, but also adapts to the core needs of openness, equality and sharing of modern campuses.
▼空间层级剖透视,Spatial hierarchy sectional perspective

技术赋能:建构合一实现功能与空间共生Technology Empowerment: Integration of Architecture
and Structure to Achieve Symbiosis of Function and Space
项目始终秉持建筑与结构一体化设计原则,结构直接表达建筑本真,技术服务于双轴融合的设计理念与图书馆的空间功能需求。
The project has always adhered to the integrated design principle of architecture and structure. The structure directly expresses the authenticity of the building, and the technology serves the design concept of dual-axis integration and the spatial functional requirements of the library.
▼2023年7月~12月施工现场,Construction site in July 2023 ~ December 2023


▼自习室完成效果&中庭完成效果,Completed self-study room & Completed atrium

▼东南侧局部2023年7月施工现场&图书馆西南侧局部,Part of the southeast side in the construction site in July 2023 & Part of the southwest side of the library

为了实现46.2m的最大跨度,结构设计师最终选用“上挂下撑”创新钢结构体。首先利用拱脚巨大的交通核作为竖向支撑,在7、8层办公区设置两层通高的大跨度桁架,将下方相邻的两层阅览区吊挂在桁架上。
To achieve the maximum span of 46.2m, the structural designers finally selected the innovative “suspended upper and supported lower” steel structure system. First, the huge traffic core at the arch springing is used as vertical support, and a two-story high long-span truss is set in the office area on the 7th and 8th floors, suspending the adjacent two-story reading area below on the truss.
▼“上挂下撑”结构体系,“Hanging above and supporting below” structural system


此举将首层拱脚推力减少至常规方案的10% 。同时,使得拱顶楼层(4层)可形成大跨度开敞无柱空间,视野绝佳。5-6层阅览区采用吊杆降低了截面尺寸,使得空间宽敞而轻盈。
This measure reduces the thrust of the arch springing at the ground floor to 10% of that of conventional designs. At the same time, it enables the arch crown floor (4th floor) to form a long-span open column-free space with excellent views. The reading areas on the 5th and 6th floors use suspenders to reduce the section size, making the space spacious and light.
▼2023年7月施工现场,Construction site in July 2023

结语Conclusion
图书馆的设计,一定程度跳出了传统建筑形式复刻的局限,以本地文脉为根,以双轴融合为核心解法,以传统营造智慧为内核,平衡了文化传承与现代校园的使用需求。它突破校园中轴线的仪式性,让轴线上的图书馆成为开放、实用、有温度的校园公共核心,也为当代校园建筑的文化传承提供了可参考的实践样本。
To a certain extent, the design of the library breaks free from the limitations of the formal replication of traditional architecture. Rooted in the local cultural context, with dual-axis integration as its core solution and traditional construction wisdom as its inner core, it balances the needs of cultural inheritance and the use requirements of modern campuses. It breaks through the ceremonial nature of the campus central axis, making the library on the axis an open, practical and warm public core of the campus, and also provides a referable practical sample for the cultural inheritance of contemporary campus architecture.
▼图书馆南侧局部远眺,Distant view of the south side of the library

▼图书馆东侧人视,View from the east side of the library at eye level

▼图书馆总体鸟瞰,Overall aerial view of the library

▼总平面图,Master Plan

▼二层平面图,Second Floor Plan

▼三层平面图,Third Floor Plan

▼五层平面图,Fifth Floor Plan

▼七层平面图,Seventh Floor Plan

▼1-1剖面图,Section 1-1

▼2-2剖面图,Section 2-2

▼墙身大样,Wall Detail

Project name: Henan Institute of Information Technology Library
Project type:Educational Architecture
Design:Tongji Architectural Design (Group) Co., Ltd. Sishi Fangyuan Studio
Website: http://www.tjad.cn
Contact e-mail:1577316263@qq.com
Design year:2022-2023
Completion Year:2024
Leader designer & Team:
• Project Directors: Jiang Limin, Zhang Jia
• Architecture: Gui Yaoguo, Gao Fuyuan, Wang Yan, Sun Tianyuan, Xu Shuang, Su Yiming
• Structure: Zhu Liang, Yin Weizhong, Cheng Rui, Liu Bing, Dong Peiwei
• Electrical Engineering: Gu Yuhui, Luo Yan, Wu Huan
• HVAC: Qin Zhuohuan, Yu Xiaoming
• Water Supply and Drainage: Xu Zhongjun, Tang Yuyan, Yuan Fang
• Landscape: He Qiang, Lin Jiuchao, Liu Yuanyuan, Li Lijuan, Zhou Yaohui
• Interior Design: Qian Qisheng, Su Xuan, Fang Mengchen, Wang Mengya
• Curtain Wall: Wang Lei,Xia Guogang,Huang Jie,Xu Junfang
• Lighting Design: Wu Weicong, Liu Shuo, Tang Zhen
Project location:Qishuiguan Road, Qibin District, Hebi City, Henan Province, China
Gross built area: ㎡
Gross Floor Area: 50473.80 ㎡
Above-Ground Floor Area: 44666.60 ㎡
Underground Floor Area: 5807.20 ㎡
Photo credit: Yin Ming, Sishi Fangyuan Studio














