湖州学院 / gad杰地设计
01
项目愿景:城市需求与使命
Project Vision: Urban Demand and Mission
项目源于湖州西塞山北麓,旨在打造一所全新的全日制高等学府——湖州学院。
The project is located at the northern foot of Xisai Mountain in Huzhou, aiming to create a new full-time institution of higher learning—Huzhou University.
▼湖州学院基地现状航拍,Aerial view of Huzhou University

▼湖州城市与校园区位鸟瞰,Aerial view of Huzhou city and campus

Ⅰ/校城互动:人文活力的注入与城市能级的提升,振兴高铁新城 Campus-City Interaction: Injecting Humanistic Vitality, Enhancing Urban Capacity, and Revitalizing the High-Speed Rail New Town
学校的建立将与原高铁新城的科创基础形成互动,共同打造西塞科学谷的产业闭环,并成为向新城注入年轻活力与持续人气的关键触媒。
The establishment of the university will interact with the existing technological foundation of the High-Speed Rail New Town, jointly forming an industrial闭环 for the Xisai Science Valley, and serving as a key catalyst for injecting youthful energy and sustained popularity into the new town.
▼崖壁为屏,矿坑为院,The cliff serves as a screen and the mine pit as a courtyard

Ⅱ/校野互动:自然山形的修复与东方韵境的再现,复兴西塞山环境 Campus-Wilderness Interaction: Restoring Natural Mountain Forms and Recreating Eastern Charm, Revitalizing the Xisai Mountain Environment
湖州素有“东城西野”的独特格局,而基地正处在城市与自然的交汇地带,保留着过去粗放式矿产开发所遗留的矿坑、崖壁等“自然伤痕”。本项目承担着用空间营造实现变废为宝、生态修复的深层立意,超越传统校园景观造“后花园”的浅层利用方式,而是通过合理规划结构、轻介入、重安全、复生态,将生态劣势转化为场所特征,让自然山水资源为校园科技氛围助力,重塑东方气韵,使校园成为连接城市与自然的诗意媒介。
Huzhou has long possessed a unique pattern of “eastern city, western wilderness,” and the site lies precisely at the intersection of city and nature, preserving “natural scars” such as quarries and cliffs from past extensive mining. This project undertakes the profound mission of transforming waste into treasure through spatial design and ecological restoration. It transcends the superficial use of campus landscapes as merely “back gardens,” instead employing rational planning structures, light intervention, safety prioritization, and ecological restoration to turn ecological disadvantages into site characteristics. It allows natural landscape resources to support the campus’s technological atmosphere, reshapes Eastern charm, and makes the campus a poetic medium connecting city and nature.
▼校村互动界面:新校区主入口北向视廊,The interactive interface between the school and the village: the northward view corridor of the main entrance of the new campus

Ⅲ/校村互动:推动学校生活与村庄生活充分链接,改善乡村人群结构 Campus-Village Interaction: Promoting Deep Integration of Campus Life and Village Life, Improving Rural Demographic Structure
通过功能互补与资源共享,激活乡村产业活动,为区域发展注入持续活力,使校园承担起乡村振兴“强心剂”的关键作用。
Through functional complementarity and resource sharing, the project activates rural industrial activities, injects sustained vitality into regional development, and positions the campus as a key driver of rural revitalization.
▼湖州学院西轴 · 对望职院 跨校际公共景观轴,Intercollegiate Public Landscape Axis

Ⅳ/校校互动:资源智慧的共享与湖学精神的当代诠释,节约投资、共享互动 Campus-Campus Interaction: Sharing Resources and Wisdom, Interpreting Huzhou Academic Spirit, Saving Investment, and Promoting Shared Interaction
为实现资源的集约化与效益最大化,项目倡导“校校互动”模式,推动大型设施如文化交流中心、体育馆等的多校共用,不仅节约投资、促进共享互动,更将“湖学”思想中“经世致用”的精神融入空间营造,使校园规划与建筑形制成为这一哲学理念的当代载体,构建出开放包容、促进学术交流与文化传承的共同体。
To achieve resource intensification and maximum efficiency, the project advocates a “campus-campus interaction” model, promoting the shared use of large facilities such as cultural exchange centers and gymnasiums. This not only saves investment and facilitates shared interaction but also integrates the “Huzhou School” thought of “practical application for the benefit of the world” into the spatial design. The campus planning and architectural forms become contemporary carriers of this philosophy, constructing an open, inclusive community that fosters academic exchange and cultural heritage.
▼湖州学院校园,Huzhou university campus

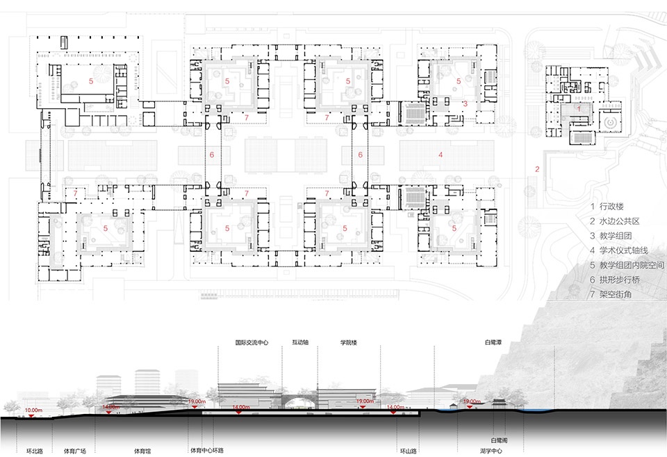
02规划结构:三轴、三组团、三策略 Planning Structure:Three Axes, Three Clusters, Three Strategies
Ⅰ/规划功能落位:三条主轴,分别主导“仪式、效率、共享”的三大功能组团 Planning Functional Layout: Three Main Axes, Respectively Dominating the Three Functional Clusters of “Ceremony, Efficiency, and Sharing”
规划延续湖州传统“府城图”的布局精髓及“大开大合、留山理水”的东方营城智慧,构建“外紧内松、三轴汇聚”的组团式结构。
▼三轴三组团:水彩手绘鸟瞰全景,sketch of three axes and three clusters

The planning continues the essence of Huzhou’s traditional “prefectural city map” layout and the Eastern wisdom of “bold openings and closings, preserving mountains and managing water,” constructing a clustered structure of “tight outside, loose inside, converging in three axes.”
▼湖州学院新校区东轴-“仪式”组团透视,Perspective of the “Ritual” Group in the East Axis of the New Campus of Huzhou University

东轴-“仪式”组团:东侧主轴承接城市脉络,将东大门、文科教学组团、体育馆等功能节点整合为连续的空间序列,以严谨的秩序塑造出强烈的仪式感。
East Axis – “Ceremony” Cluster: The eastern main axis connects to the urban context, integrating the east gate, humanities teaching cluster, gymnasium, and other functional nodes into a continuous spatial sequence, creating a strong sense of ceremony through rigorous order.
▼湖州学院新校区北轴-“效率”组团鸟瞰,Panoramic View of the “Efficiency” Group in the North Axis of the New Campus of Huzhou University

北轴-“效率”组团:北侧实训功能轴将理科实训中心沿北侧城市干道集中布置,便于对外交流、链接产业,实现产教融合。
North Axis – “Efficiency” Cluster: The northern training axis concentrates science training centers along the northern urban arterial road, facilitating external exchanges and industry links, achieving industry-education integration.
▼湖州学院新校区西轴-“共享”组团鸟瞰,
Panoramic View of the “Efficiency” Group in the West Axis of the New Campus of Huzhou University

西轴-“共享”组团:西侧学术仪式轴线,串联起国际交流、体育运动与理科实验三大核心功能区,塑造出服务于多校的中央共享资源带;西北与东南侧的生活宿舍区采用围合院落,与相邻的樊漾湖村、严家坟村实现生活资源互动,促成校园与乡村生活的融汇共生。
West Axis – “Sharing” Cluster: The western academic ceremony axis links the three core functional areas of international exchange, sports, and science laboratories, shaping a central shared resource belt serving multiple universities. The residential clusters in the northwest and southeast adopt enclosed courtyards, interacting with the neighboring Fanyangcun and Yanjiafen villages for lifestyle resource sharing, fostering an integrated campus-village life.
▼湖州学院新校区三轴交汇核心区 · 一池三山格局鸟瞰,The core area of the three-axis intersection in the new campus of Huzhou University

三轴汇聚-“一轴一筑”:三轴分别锚定三大公建(图书馆、师生活动中心、行政楼),并通过建筑退让形成虚轴,围合出核心园林与递进空间,同时实现了“以虚御实”的规划意图。
Three Axes Converging – “One Axis, One Building”: The three axes anchor three major public buildings (library, student activity center, administration building). By setting back buildings to form virtual axes, the design encloses a core garden and progressive spaces, achieving the planning intention of “the virtual commanding the real.”
▼轴线消解与山水重构:一池三山格局下的非对称视廊营造,The Creation of Asymmetric Viewscapes in the Pattern of One Pond and Three Mountains

Ⅱ/具体策略:轻介入、重安全、复生态 Specific Strategies: Light Intervention, Safety Prioritization, Ecological Restoration
轻介入:轴线尽端的核心公共建筑避轴退让,形成非对称的视觉通廊。建筑组团环山布局,以体块错动和退台系统与山势呼应,呈现出建筑与山体共生的轻盈姿态。
Light Intervention: Core public buildings at the ends of the axes are set back, forming asymmetrical visual corridors. Building clusters are arranged around the mountains, with staggered volumes and terrace systems echoing the mountain terrain, presenting a light posture of building-mountain symbiosis.
▼与山势同构的建筑肌理,Architectural texture that conforms to the shape of the mountain terrain

重安全:基于对场地地质与地貌的主动适应,规划秉承“顺势营建”的安全观,建筑布局优先避让原始崖壁等不稳定区域,分散建筑体量,减少对山体的切削与荷载,有效降低对山体的干预痕迹。
Safety Prioritization: Based on proactive adaptation to the site’s geology and topography, the planning adheres to a safety concept of “building in harmony with the terrain.” Building layouts prioritize avoiding unstable areas such as original cliffs, dispersing building volumes to reduce cutting and loading on the mountains, effectively minimizing intervention traces.
▼“一池三山” 景观核心,”The One Pool and Three Mountains” landscape core

复生态:规划以保留崖壁、林木等自然痕迹为基底,将“自然伤痕”转化为独特设计载体。中央公建组团借山理水,形成“一池三山”的景观核心,塑造出建筑屈从于自然、与山水对话的整体格局。
Ecological Restoration: The planning takes preserved natural traces such as cliffs and forests as the foundation, transforming “natural scars” into unique design carriers. The central public building cluster borrows from the mountains and manages water, forming a landscape core of “one pond and three mountains,” shaping an overall pattern where architecture yields to nature and dialogues with mountains and water.
▼借山理水,borrows from the mountains and manages water

Ⅲ/空间营造与尺度控制 Spatial Design and Scale Control
模数统一、人性尺度:采用30-50米边长的方格作为基本模块,形成统一的建设单元,协同控制建筑体量与空间尺度,兼顾学府庄重气韵与人性化舒适体验。
Unified Module, Human Scale: Using a 30–50 meter side length grid as the basic module, forming unified construction units, coordinating building volume and spatial scale, balancing the solemnity of an academic institution with a humanized comfortable experience.
▼校村互动界面:北入口外直通村落,School-Village Interaction Interface: Direct access to the village from the north entrance

灵活组合、多样统一:依据功能与空间需求,对标准模块进行灵活的多样化组合,适应不同使用需求,最终营造出脉络清晰且丰富的校园空间体系。
Flexible Combination, Unified Diversity: Based on functional and spatial needs, standard modules are flexibly combined in diverse ways to adapt to different usage requirements, ultimately creating a clear and richly varied campus spatial system.
▼教学组团内院空间,Teaching group internal courtyard space

03
立面设计:唐风宋韵的现代转译
Facade Design:Modern Rendition of Tang Style and Song Charm
核心理念:“以古人之规矩,开自己之生面”。超越表象模仿,转译传统书院的空间逻辑与文化气韵,并借助现代技术,塑造根植于文化、契合当代需求的建筑范本。
▼类型学转译:唐宋建筑语汇的立面形式重构,Typological Translation: Reconstruction of the Facade Forms of Architectural Vocabulary in Tang and Song Periods


Core Concept: “Using ancient rules to create a new contemporary expression.” Transcending superficial imitation, the design translates the spatial logic and cultural aura of traditional academies, utilizing modern technology to shape architectural models rooted in culture and meeting contemporary needs.
▼台桥一体:连桥介入下的图书馆空间重构,Integrated Bridge Approach: Reconfiguration of Library Space under the Influence of the Bridge

形制转译:采用类型学方法,对“台上起楼”、“重檐叠檐”等经典范式进行抽象与逻辑同构,提炼出核心语汇并运用多元组合手法,演绎出统一而丰富的现代形制。
▼差异化体量:形式语言的多样性表达,Differential scale: The diverse expression of formal language

Formal Morphology Translation: Adopting a typological approach, this design abstracts and establishes logical isomorphism for classical architectural paradigms such as “terraced tower construction” and “multi-layered overlapping eaves”. It refines core architectural vocabulary and adopts diversified combination techniques to interpret a unified yet diverse modern formal language.
▼台基承檐·水院映景:马克思主义学院的立面建构,Base Supporting Eaves · Water Courtyard Reflecting Scenery: The Facade Construction of the Marxist Institute

单体差异化表达: Differentiated Design of Individual Buildings
公共建筑:以层叠台基、出挑飞檐与外露结构,塑造磅礴气势与力量感。
Public Buildings: Layered terraced plinths, overhanging flying eaves and exposed structures are adopted to create a magnificent momentum and a strong sense of structural power.
▼台基之上,飞檐之下,拱廊之间:教学组团的唐宋形制与仪式感营造,The Tang and Song architectural styles and ritualistic atmosphere creation of the teaching complex

▼台基之上,飞檐之下,拱廊之间:教学组团的唐宋形制与仪式感营造,
The Tang and Song architectural styles and ritualistic atmosphere creation of the teaching complex

教学建筑:通过院落布局、拱廊与坡屋顶,再现理性秩序与学术仪式感。
Teaching Buildings: Courtyard layouts, arcades and pitched roofs recreate rational spatial order and the ceremonial ambiance of academic spaces.
▼院落层跌·拱廊成序·坡顶叠映:实验组团的形制表达,Courtyard level decline, arcade sequence, roof top reflection: The form expression of the experimental group

实验实训:顺应地形,借退台、叠院等手法与自然对话,再现东方层叠意境。
Experimental & Training Buildings: Blending with the terrain, the design adopts set-back terraces and cascading courtyards to engage with nature, embodying the oriental artistic conception of layered landscapes.
▼因台成势,错落而居:宿舍组团的场地融合, the buildings are scattered and arranged in a disorderly manner


学生宿舍:台基融合与穿插,形成错落有致的建筑体量,营造出层次丰富的居住空间与交往场所。
Student Dormitories:Integrated and interwoven plinth volumes form well-arranged building masses, creating multi-layered living spaces and interactive social areas.
▼仪式与标识:校园入口大门(上)与钟楼(下)的精神叙事,The Spiritual Narratives of the Campus Entrance Gate (Top) and the Bell Tower (Bottom)


大门及钟楼:高耸台基与舒展大屋盖构成标志性形象,塑造校园入口的庄重仪式感与精神标识。
Main Gate & Bell Tower: Tall elevated plinths and stretched large roof structures form an iconic landmark, delivering a solemn ceremonial sense and spiritual symbol for the campus entrance.
▼真实建构:劈裂石等本土材料的顺势筑造与环境共生,Construction of Local Materials Such as Split Stones and Their Coexistence with the Environment

建构及材料:追求结构与材料的真实表达,秉持朴素建造观,以现代技艺实现传统韵味与当代精神的融合。选用劈裂石等本土材料,使其顺山势而筑,与自然山体肌理交融共生。
Tectonics & Materials: The design pursues authentic expression of structures and materials, upholding a minimalist construction philosophy. Modern craftsmanship integrates traditional charm with contemporary spirit. Local materials such as split stone are applied, allowing the buildings to follow the mountain terrain and blend harmoniously with the natural mountain texture.
▼混凝土挑檐的结构外显, The structural appearance of the concrete eaves

04
技术创新:结构真实性与建构逻辑的统一
Technological Innovation: Unity of Structural Authenticity and Tectonic Logic
核心理念:秉持“结构即美学”,从结构逻辑层面进行本质转译,实现技术理性与艺术表达的深度融合。
Core Concept: Adhering to the philosophy of “Structure as Aesthetics”, the design conducts essential morphological translation based on structural logic, realizing in-depth integration of technological rationality and artistic expression.
▼混凝土挑檐的结构外显, The structural appearance of the concrete eaves

结构挑檐:在三大公建中运用顶层挑梁并外露混凝土挑檐,以未经修饰的斜面与金属收边,直接展现结构构件与真实建造。
Structural Overhanging Eaves: Top floor cantilever beams and exposed concrete eaves are applied in three major public buildings. Unadorned inclined surfaces and metal edging directly present structural components and authentic construction details.
▼混凝土挑檐的结构外显, The structural appearance of the concrete eaves

挑檐拉索:通过钢拉杆层层悬挂挑檐,巧妙将传统“吊杆”智慧转化为现代结构语汇,使受力构件成为立面的诗意表达。
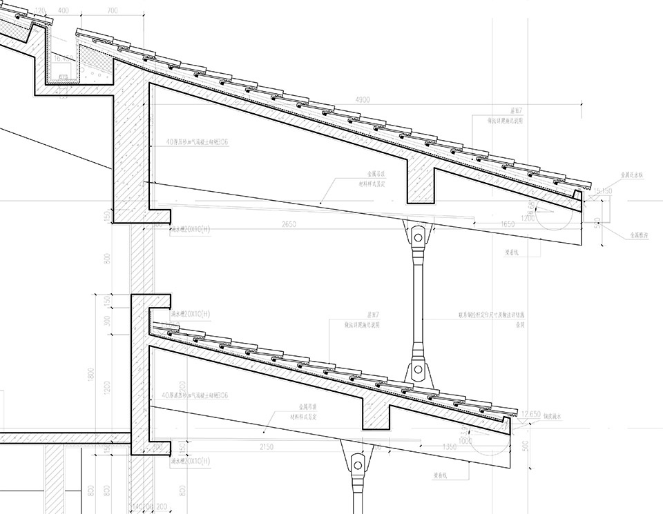
▼师生活动中心剖面图:挑檐拉索, Eave Cables & Tie Rods

Eave Cables & Tie Rods: Steel tie rods suspend the layered eaves, ingeniously transforming the traditional wisdom of wooden suspension rods into modern structural vocabulary, turning load-bearing components into poetic facade expressions.
▼将传统“吊杆”智慧转化为现代结构语汇,transforming the traditional wisdom of wooden suspension rods into modern structural vocabulary

桁架架空:利用三角形桁架斜撑体系,既创造“无柱”的开放公共空间以适应现代功能,又暗合传统架空气韵,实现受力与功能、意境的一体化。
▼图书馆三角形桁架斜撑体系, Library triangular truss diagonal support system

Truss Elevated Structure: The triangular truss diagonal bracing system creates column-free open public spaces to meet modern functional demands. It also inherits the classical charm of traditional elevated architecture, unifying structural mechanics, functional layout and spatial artistic conception.
▼因台成势,错落而居:宿舍组团的场地融合,
the buildings are scattered and arranged in a disorderly manner

05
结语:东方意蕴的当代复兴
Conclusion: Contemporary Revival of Oriental Charm
湖州学院不仅是一座功能完备的现代化校园,更是一次对传统书院精神与山水营城理念的当代诠释。建筑以类型学转译、结构真实性和空间意境营造为核心策略,在崖谷之间构建了一处“矿坑书院”,实现了“唐风宋韵”的现代建构与地域文脉的延续。依托设计总包的整体统筹与一体化设计,确保室内、景观与建筑设计意图高度统一;以全过程精细化管理和过程跟踪为支撑,推动设计理念精准落地。其设计实践为传统建筑语言的当代化提供了可鉴之路,亦为高等学府的空间文化内涵注入了新的生命力。
Huzhou University is not only a fully functional modern campus, but also a contemporary interpretation of traditional academy spirit and landscape-oriented urban design philosophy. Centered on typological translation, structural authenticity and spatial artistic conception, the architecture builds a “Quarry Academy” between cliffs and valleys, achieving modern reconstruction of Tang-dynasty grandeur and Song-dynasty elegance, as well as the inheritance of regional cultural context. Supported by the overall coordination and integrated design of the general design contractor, the design ensures high consistency of architectural, interior and landscape design intentions. Full-process refined management and continuous on-site supervision enable accurate implementation of design concepts. This design practice provides a referenceable path for the modernization of traditional architectural language, and injects new vitality into the spatial and cultural connotation of higher education campuses.
▼总平面图, site plan

▼三大公共建筑及核心景观区(“一池三山”)一层平面图,
The first-floor floor plan of the three public buildings and the core landscape area (“One Pool and Three Mountains”)

▼实训楼组团一层平面图, First floor floor plan of the training building complex

▼西轴教学组团一层平面图和场地剖面图,
The first floor plan and site section drawing of the west axis teaching complex

▼食堂宿舍一层平面图, First floor floor plan of the cafeteria and dormitory

Project Information
Project Name: New Campus Construction of Huzhou University
Location: Huzhou, Zhejiang Province
Detailed Address: North Miaofengshan Road, Wuxing District, Huzhou
Building Type: Educational Architecture
Completion Year: 2025
Land Area: 608,900 ㎡
Total Floor Area: 336,000 ㎡
Plot Ratio: 0.554
Client: Huzhou University
Design Institute: gad
Architectural Design Team
Zhang Wei, Wu Xuan, Xie Lei, Wu Kesuo, Lü Chaohao, Sun Jun, Zhang Zhuohan, Yu Yang, Yang Ben, Chen Yuzhou, Tang Yangyang, Li Jiajia, Yu Yuan, Zhang Lei, Guo Xinxin, Li Wenxiang, Ye Rui, Hu Yifan, Jin Cheng, Lin Guankun, Feng Xitao, Zhang Xueqin, Zhai Ying, Jiang Dong, Deng Hongbo, Pan Xu, Luo Fang, Chi Chen, Gao Yang, Chen Taipeng, Zhu Shaojie, Wang Xiaolong, Ma Sijia, Chen Yuguang, Wang Xin
Technical Design Team
Structure: Yao Kaiming, Qi Xiangming, Shi Lei, Wang Qun, Xu Shijie, Huang Yongchun, Yang Guanglei, Long Gan, Zhu Qi, Lu Zhegang, Han Guang, Li Yuxuan, Yang Fan, Yun Yuntao, Hao Xin
M&E Engineering: Qian Zijun, Wang Yang, Ji Mingxing
Water Supply, Drainage, Heating & HVAC: Lu Baiqing, Ren Feiyu, Zhang Bin, Yao Guocai, Yu Yutao, Hong Lijing, Shen Xiaowei, Huang Qi, Cui Junfang, Nie Qiulong, Zhang Zhenhuan, He Hailong, Zhong Tianli, Fu Xuhui, Yang Shengli, Qin Hong, Mu Weihao, Liu Chuanpu, Liu Rong, Xing Gaoxing, Zhou Xingyue, Chen Gang, Li Dongjin, Sui Yuanyuan, Li Jian, Yu Miao
Curtain Wall: Xia Fenghui, Liu Qianlong, Chen Changqing, Wang Xiuwei, Li Yuenong, Hu Jiayuan, Zou Qiaoshan
Lighting Design: Liang Yunhai, Li Hongping
BIM Design: Su Lingtao, Sun Pengfei, Wang Zhenqi
Intelligent System: Wang Lei, Qian Jun, Yang Guanghao, Cao Jun, Wang Yingnan
Planning Design
Pang Xunjie, Tu Chao, Huang Jing
Landscape Design
Guo Yu, Huang Xing, Zhou Run, Xia Ming, Lu Zhenqiu, Li Zhiyan, Yi Yi, Hong Shengzhe, Wu Xianfeng, Jia Youwei, Wang Dingding, Dai Mengjie
Design Management
Li Tao, Wu Donghui
Interior Design
Naijian Design, Dingshang Design, Yasha Design Institute
Signage Design
Jicheng Culture
Photography
Yao Li














