船长之家,葡萄牙 / Miguel Marcelino
船长之家是一处位于里斯本贝阿托区的文化场所,聚焦音乐、美食、艺术与批判性思考。原有建筑为一座朴素的19世纪晚期建筑,如今通过加建一圈裸露混凝土冠部,将其特殊的功能属性转化为一种建筑性的表达。
▼爆炸轴测图,Exploded axonometric diagram

Casa Capitão is a cultural venue located in Beato, Lisbon, focusing on music, gastronomy, art, and critical thinking. The pre-existing building, with its modest late-19th-century architecture, is now characterized by a new exposed concrete crown, translating its special program into architectural exception.
▼项目鸟瞰,Aerial view of the project

▼街角外观,Corner exterior view

从街道上无法看到通往建筑内部的入口。人们必须沿着一条侧向通道前行,方可发现位于后部的隐藏露台,这一空间作为新的枢纽节点,将城市重新连接至其所在综合体的内部。
From the street there is no visible entrance to the building’s interior. One must walk along a side passage to discover a hidden terrace at the back, which acts as a new pivotal space reconnecting the city with the interior of the complex in which it is located.
▼入口侧立面,Side facade with concealed entrance

▼露台公共空间,Terrace public space

▼露台与外部楼梯,Terrace and outdoor stair

公共空间包括被简单称为“底层”的音乐厅、名为“一层”的酒吧餐厅、与之相连的庭院、位于“阁楼”的更为私密的房间,甚至连卫生间都具有各自鲜明的色彩识别,如同一座巴洛克建筑。建筑并不存在一个主入口,而是构建了一条由通道、楼梯与庭院组成的路径,所有流线始终在室外空间中展开。
▼模型,Physical model



The public spaces — a concert hall simply dubbed the ‘ground floor’, a bar-restaurant called the ‘first floor’, the courtyard onto which it opens, a more intimate room in the ‘attic’, or even the restrooms — all possess a distinct chromatic identity, as in a Baroque building. There is no main entrance; rather, a path of passages, stairs and courtyards is constructed, with circulation always taking place in the open air.
▼演出空间,Performance space


▼餐吧空间,Bar and restaurant space

▼衣帽间,Cloakroom

▼卫生间空间,Restroom interior


▼楼梯空间,Stair space

▼总平面图,Location plan

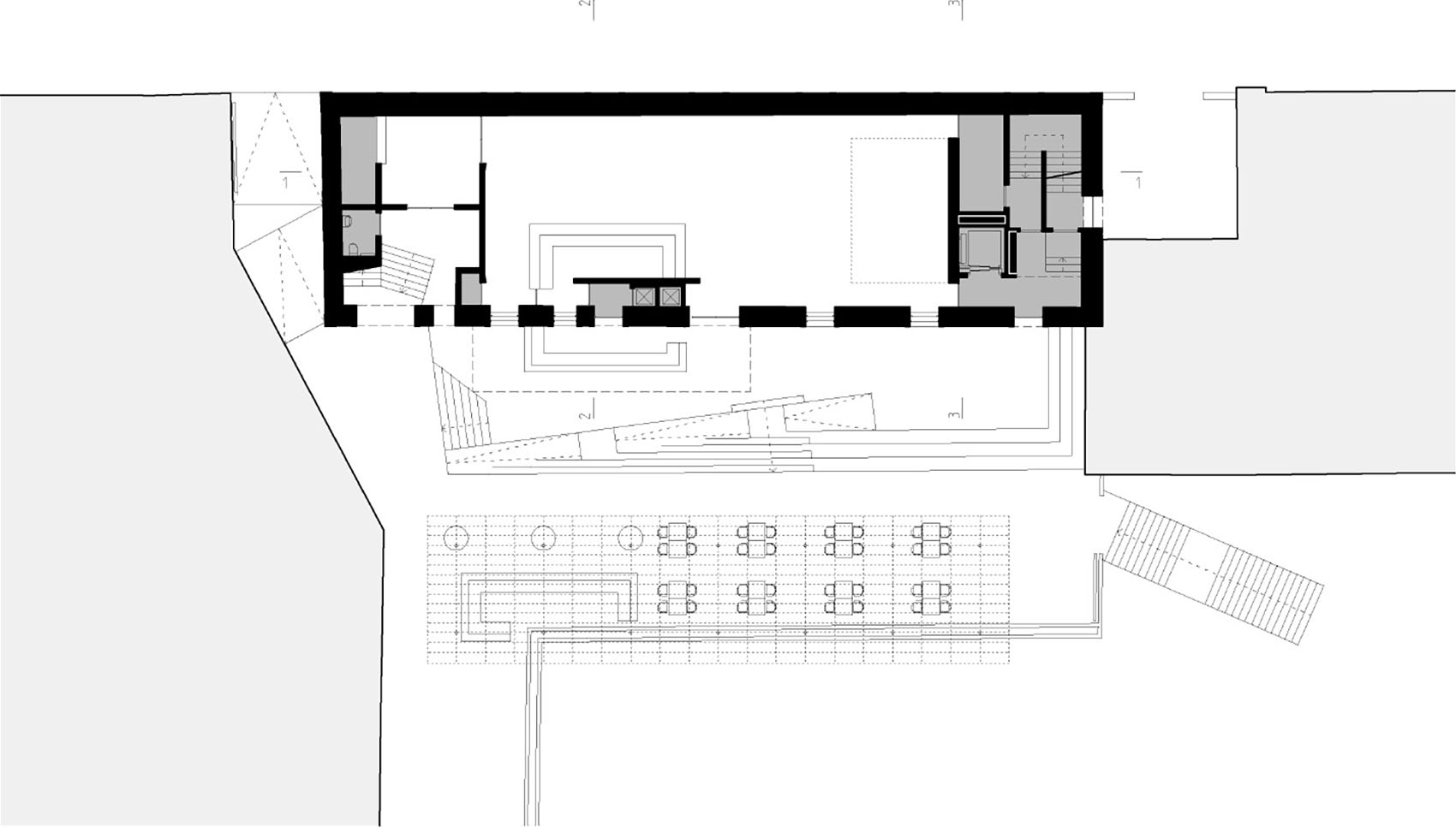
▼一层平面图,Floor plan level 0

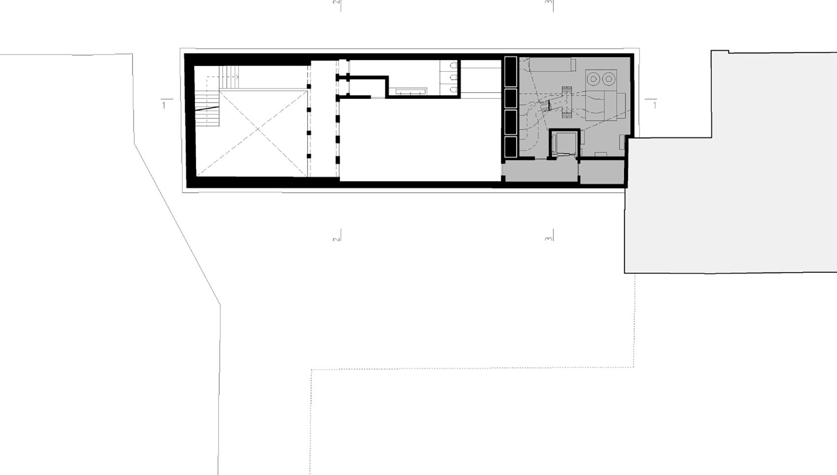
▼二层平面图,Floor plan level 1

▼三层平面图,Floor plan level 2

▼剖面图,Section















