%阿拉比卡咖啡在 M WOODS 艺术社区,北京/室内

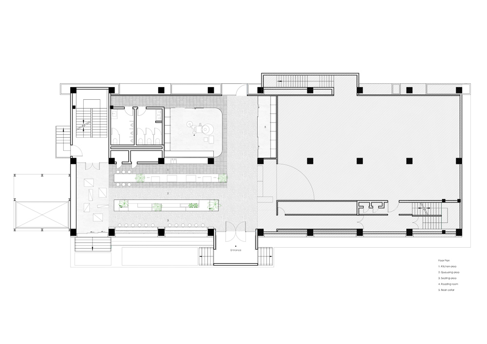
这个 %Arabica 项目位于北京 M WOODS 艺术社区的底层,是龙浮寺地区振兴计划的重要组成部分。
Sitting at the ground floor of M WOODS Art Community in Beijing, this %Arabica project is a significant component of the revitalization plan of the Longfusi Area.

设计灵感来自隐藏在北京繁华都市中的宁静胡同和M WOODS的艺术氛围。在北京这样的现代大都市中,大量的元素影响着城市本身和人们的日常生活,但很难看出人与自然环境之间的直接关系。我们希望通过空间设计将人与自然和文化联系起来。
The design was inspired by the tranquil Hutong hidden in the midst of the bustling city of Beijing and the artistic atmosphere of M WOODS. In modern metropolis like Beijing, a large amount of elements affect cities themselves and people’s daily lives, but it’s hard to see direct relationship between human and natural environment. We hope to relate human beings with nature and culture through spatial design.

透明的玻璃立面将咖啡店融入当地街景的环境中,同时将街景和城市景观引入店内。如此一来,绿化和光影都成为了商店的内在元素。吧台位于商店的中心。绿色植物散布在分散在中心区域周围的座位区,使室内更加自然和充满活力。设计延续品牌一贯的极简主义美学,选用浅灰色水洗石和素色水泥作为基调。通过色调突出,绿色植物成为空间的主角,最终强调了我们的设计主题。
The transparent glass facade integrates the coffee shop into the environment of local streetscape, and meanwhile it draws both streetscape and cityscape into the shop. In this way, the greenery as well as the light and shadows have become intrinsic elements of the store. The bar counter is located at the center of the store. The greenery interspersed in the seating areas which scatter around the center zone, making the interior more natural and vibrant. The design continues the consistent minimalism aesthetic of the brand by choosing pale grey washed stone and plain cement as its basic tone. Highlighted by the tone, the greenery becomes a protagonist in the space and ultimately emphasizes our design motif. The dialogue with nature in this way is our attempt to blur the boundary between the interior and the exterior and to reveal a fusion between human and nature.



















