The Red,北京/室内
该节目源于传统的东方园林,我们用独特的文化背景来表达日本手工艺品中流淌的微妙情感,让人们静静地思考每一件艺术作品背后的故事,延续现代生活中工匠的精神。
The program derives from the traditional Oriental garden, We use a exclusive culture background to express the delicate feelings flowing in the Japanese handicraft, let people think quietly about the story behind every artistic work, last the spirit of craftsmen in our Modern Life.

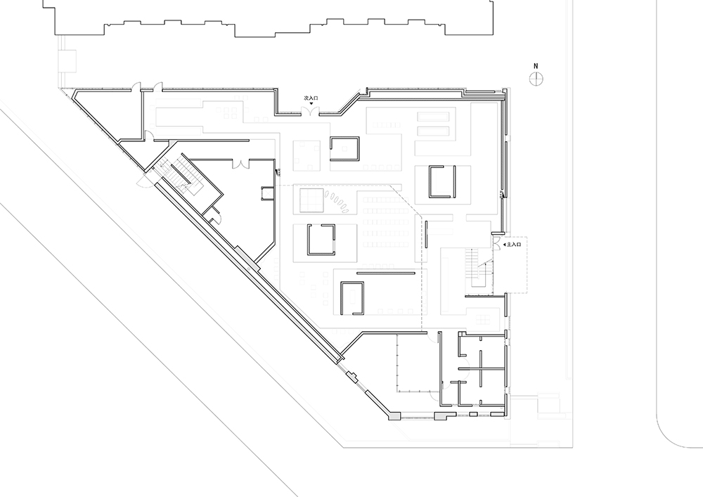
设计结合了原有的场地条件,使得一个没有任何其他材料的纯白色空间消除了所有干扰。然后,我们将木材通道连接到所有场地,就像连接每个活动平台的景观走廊一样。它让人们体验到在不同场景中行走的乐趣。
Design incorporates with original site condition makes a pure white space without any other material removes all the interference. Then we bring the timber passage in connecting all the site like landscape corridor uniting every activity platform. It makes people experience the fun of walking through different scene.

同时,我们用白色的沙子填满空旷的土地,就像日本的干燥景观一样,旨在营造一种静谧的氛围,让人们可以停留在有限的空间里,享受无限的时间。
Meanwhile, we fill the empty ground with white sand, like the Japanese dry landscape, aimed at building a silence atmosphere, people can stay in the limited space and enjoy the infinity time.

在展览布局上,我们采取开放与封闭相结合的方式,使流线有序。立方体房屋的立面上有不同的窗户,这给了人们不同的互动。
In the exhibition layout, We take the way of mix using open and close, make the streamline orderly. There are different windows on the elevation of the cube house, which gives people different interaction.

我们用薄钢板制作免费的展台,底部有发光的固定展台,使所有元素都变轻,相比之下,它展现了深厚的手工历史。
We use thin steel plate to make the free booth, and the fixed booth with luminous on the bottom, make all the elements light, by contrast, it presents the thick history of the handicraft.

总的来说,我们用现代抽象的方式再现了传统空间,致敬了传统手工艺的精神。我们希望这种精神能在快速的城市现代化进程中继续下去。
On the whole, We use a modern abstract way to reproduce the traditional space pay tribute to the spirit of the traditional handicraft. We hope the spirit can still continue during the fast city modernization.



































