普陀山正山门客运中心,浙江/建筑
我们生活在一个国际化和全球化的时代,我们所使用的产品,甚至我们的思维被抽离了所有地域语言和本土文化元素,世界变得虚拟化和扁平化。
In the era of internationalization and globalization, products we use and even our thoughts have been separated from local languages and cultures. The world is increasingly becoming “virtual” and “flat”.
▼场地与周边环境,Site and surrounding environment
对建筑而言国际化提供了先进的建造方式和优选的建筑材料,但同时也带来了个体身份的焦虑和自我的迷失。我们认为唯有在国际化的现代建筑中重新注入原本已被抽离的地域和文化元素,让场所精神重新焕发出光彩,将国际化与本土化有机结合,平衡相处,才是建筑设计多元化的未来。
For architecture, globalization has brought advanced construction approaches and optimal materials, but at the same time caused anxiety and loss of identity. We think that modern architecture needs to reincorporate local context and cultural elements, reactivate the spirit of the site and balance internationalization and localization, so as to realize diversified architectural designs in the future.
▼顶视图,Aerial view
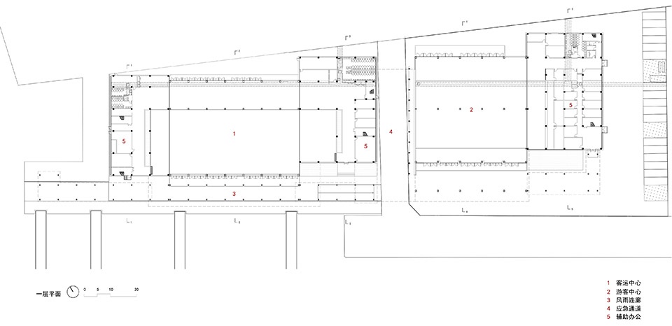
普陀山正山门客运中心位于浙江省舟山市普陀山岛,是普陀山风景名胜区唯一的对外公共交通港口。项目集成了码头区域、入山售票、广场集散、出山候船等功能。每年有超过1200万人次由此进出,原有的码头客运站难以承载日益增涨的游客流量。
The project is located on Mount Putuo Island, Zhoushan, Zhejiang Province. As the sole public port of the Putuo Mountain Scenic Area, it integrates dock area, ticket office, tourist distribution square, ship waiting area and other functional sections. The scenic area receives more than 12 million visitors each year, but the former passenger transportation center was too cramped to accommodate the increasing number of tourists.
▼码头旧照,Old pier
▼建筑形体生成过程,Architectural form generation process
▼自码头到白华山的视觉体系,Sight line from the pier to Baihua Mountain
出于对场所特殊历史价值与环境价值的考虑,设计保留原基地东进西出的主体格局,延续码头的运作方式与习惯。向海上扩展搭建平台作为新客运站的基础,将原客运站场地规划为新的站前广场,扩大室内外空间的同时还解决了新客运站建设期间码头正常运行的问题。
Given the historical and ecological value of the site, we maintained the original layout where the entrance and the exit were respectively set on east and west sides, in order to continue the operation mode of the pier. Besides, we built an extended platform towards the sea as the foundation of the new passenger transportation center. Meanwhile, the area occupied by the original passenger center was transformed into a front square, which not only extended the indoor and outdoor spaces but also guaranteed normal operation of the wharf during the construction period.
▼客运中心与广场整体鸟瞰,Aerial view of passenger transportation center and square
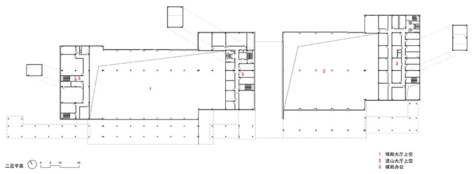
设计打破常规交通建筑大体量与标志性的特点,由南而北,由海面长廊到重檐缓缓上升的坡顶直至北侧的远山,建立一个舒缓的视觉体系。由东而西,建筑化整为零,将进山大厅、出山大厅和其他辅助空间错动排列,两翼后退,观景视线尽少被遮挡。建筑由此变得轻松而谦虚,令码头成为登岛敬佛的通过性空间和虔诚的起点。
The architectural design breaks with the large volume and iconic image of conventional transportation facilities. From south to north, the sight line is gradually lifted from the long corridor above the sea to the gentle pitched roof and finally reaches distant mountains. In east-west direction, all architectural volumes are integrated into a whole. The entrance hall, exit hall and other auxiliary spaces are parallel with each other but are given different depths, and the two wings are set back to minimize the obstruction of sight line. Through organizing the spatial pattern in such manner, we created a loose yet low-profile architectural gesture, and turned the pier into a transitional space as well as starting point for Buddhist worship on the island.
▼古码头与新码头,Old and new piers
用模件化的错动单元结合传统建筑语汇,消减建筑体量。模件体系创造了中国建筑体系的五个层次,即“斗拱、开间、建筑、院落和城市”。而当斗拱这一建筑体系中的最小模件失去功用时,开间便成为现代建筑语汇下的最小模件。
Modular units are combined with traditional architectural languages, to reduce the overall volume and produce the “five layers” of traditional Chinese architectural system: bracket, bay, courtyard, building and city. As bracket loses its function for modern architecture, bay has become the smallest module.
▼自广场看客运中心,View of passenger transportation center from the square
项目单向大跨度结构体系又恰好支撑了开间作为最小模件的构想,现代建筑与本土传统在此不谋而合。有了开间这一模件,造型的基本母题便已确立,只要根据功能的安排统筹不同的开间,单个乃至多个开间的集合形成大小不同的空间,柱网、屋顶和开间相对应,开间的下个层次——“建筑”应运而生。
The large span of the structural system in east-west direction perfectly supports the idea of taking bay as the smallest module, which enables the integration of the modern architecture and local traditions. Bay modules lay the foundation of the architectural form. Different bays are coordinated based on functions, with single bays or combinations of several bays shaping various spaces with distinct scales. Column grids and roofs correspond to bays, together forming the “building”.
▼起伏的建筑屋面,Undulating rooftops
模件可以有不同的语义传达。对于建筑模件而言,拼贴的设计方法可以从形式上,也可以从语义上让一个作品丰富起来。拼贴可以是不同材质、不同色彩、不同尺度的并置,设计师要的是敏锐的感觉去让它们再次达到平衡。而开间这一模件相互之间的错动、围合,创造出了具有传统意味的庭院空间(即开间的下个层次——“院落”),大小不同的庭院空间将自然景观引入建筑。
Building modules can be expressed by different languages and ways. The method of collage can enrich both the form and meaning of the building structure. It enables the juxtaposition of different materials, colors and scales, and what we had to do was to achieve balance among those elements based on sensibility. Through subtly adjusting the relative positions among bays and enclosing them, “courtyards” were formed. With different sizes, those courtyards bring natural landscape into the building.
▼游客中心主入口,Main entrance of tourist center
▼建筑局部,Partial view of the building
现代建筑带来了国际化,却也极具侵入感。而地域主义和本土化不应视其为敌,只有展开双臂去迎接它,在这种纯粹性与场所地域文化的关联性之间建立一种平衡,建筑才会变得自然和有意义,而也唯有这种“平衡建筑”才能真正引起人们的共鸣。
Modern architecture is international yet “invasive”. However, it shall also embrace regionalism and localization. Only in this way, can a balanced relationship between purity and the site’s cultural context be established, and can the building become natural and significant. More importantly, only such kind of “balanced architecture” can truly resonate with people.
▼游客中心室内大厅,Hall of the tourist center
▼夜景,night view



































