汉纳曼兄弟集团总部扩建,德国/gmp
由gmp·冯·格康,玛格及合伙人建筑师事务所担纲设计的汉堡港口新城的汉纳曼兄弟集团总部扩建工程于日前完工。2013年gmp在项目设计奖赛中获奖,一年后,办公楼扩建正式动工,扩建后建筑在形式和美学上与周边环境融为一体。
The expansion project of hannaman Brothers Group headquarters in Hamburg Port new town, designed by GMP von Gekang, marg and partner architects, was completed a few days ago. In 2013, GMP won the prize in the project design competition. One year later, the expansion of the office building was officially started. After the expansion, the building was integrated with the surrounding environment in form and aesthetics.
▼建筑外观,西侧建筑的外观与历史保护建筑一致,Building appearance: the appearance of buildings on the west side is consistent with that of historic buildings

设计通过一栋新建建筑将位于马格德堡港和上海大道的两栋保留仓储建筑整合为一组由三座显著的体块 构成的整体——其分别见证了19、20和21世纪三个时代,并且面貌上达成和谐的共鸣,新建建筑所在地块面积1286平方米。新建建筑包括一个位于首层的展示空间,之上坐落8层办公空间,以及2层的地下停车库,整栋大楼按照“港口城可持续性建设”金级标准建造。
Through a new building, the two reserved storage buildings located in Magdeburg port and Shanghai Avenue are integrated into a group of three significant blocks - which have witnessed the three eras of the 19th, 20th and 21st centuries respectively, and have achieved a harmonious resonance in appearance. The plot where the new building is located covers an area of 1286 square meters. The new building includes a display space on the first floor, 8 floors of office space on it, and 2 floors of underground parking garage. The whole building is built according to the gold standard of "sustainable construction of port city".
▼总平面图,General layout

位于韩国大街5号的建筑体临水而立。北侧的建筑如同城墙般围合了水道和堤岸,高度达到42米。汉纳曼兄弟集团与汉堡航海历史有着悠久渊源:汉纳曼兄弟集团在1879年正是在此地建立,最初经营船舶装备。 扩建建筑继承了仓储城内建筑厚重传统的体量感,同时又兼顾现代港口城对其中建筑的灵活性和匹配性的要求。
The building located at No. 5, Korea street stands facing the water. The buildings on the north side enclose the waterway and embankment like a city wall, reaching a height of 42 meters. Hannaman Brothers Group has a long history of navigation with Hamburg: hannaman Brothers Group was established here in 1879 and initially operated ship equipment. The expanded building inherits the traditional sense of volume of the buildings in the warehouse City, while taking into account the flexibility and matching requirements of the modern port city.
▼从街道上看建筑,巨大的玻璃幕墙体现出现代建筑的轻盈,Looking at the building from the street, the huge glass curtain wall reflects the lightness of modern architecture

建筑紧邻“汉纳曼仓库”,通过极富地域特色的砖石外立面和玻璃连接,垂直方向与楼层通高的立面窗带回应了周边建筑的历史风貌。特别是临近航海博物馆的西侧建筑,在形态和审美趣味上都与街区内保留建筑不出其外。老式仓库建筑的窗扇通过现代的较大尺度玻璃窗带得到崭新的诠释。退进层的形体变化与错落的空间构成了两座大尺度的屋面平台,其在高度上与相邻建的屋檐之间产生联系,建筑体量变化张力十足。
The building is close to the "hannaman warehouse". Through the connection of brick facade and glass with regional characteristics, the facade window belt that is vertical to the floor height responds to the historical features of the surrounding buildings. In particular, the buildings on the west side near the navigation museum are no different from the reserved buildings in the block in terms of shape and aesthetic taste. The window sashes of the old warehouse buildings are newly annotated through the modern large-scale glass window strips. The shape change of the retreating floor and the scattered space form two large-scale roof platforms, which are connected with the eaves of adjacent buildings in height, and the building volume changes with great tension.
▼建筑入口,首层内设有展示空间,立面既有老式建筑的厚重,又有现代建筑的轻盈,At the entrance of the building, there is a display space on the first floor. The facade has both the heaviness of old buildings and the lightness of modern buildings


▼砖石立面细部,极富地域特色,Brick and stone facade details, full of regional characteristics

▼夜景,现代的建筑风格与历史建筑融合在一起,Night view, modern architectural style and historical buildings are integrated together

新建建筑通过一座玻璃连结体与“汉纳曼仓库”相通,但其仍不失为一座可独立使用的建筑。
The new building is connected to the "hannaman warehouse" through a glass connector, but it is still an independent building.
▼剖面图,新建筑与仓库通过玻璃连结体相通,Section, the new building is connected with the warehouse through the glass connector
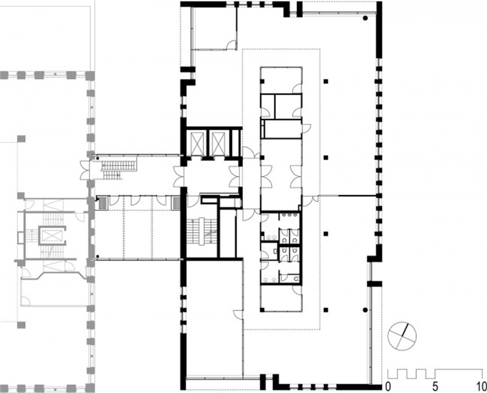
建筑内部交通通过一座中央核心筒实现。办公空间围绕内部的中央区域分布,中央区域内设有公共空间和附属空间。
The internal traffic of the building is realized through a central core tube. The office space is distributed around the internal central area, which is equipped with public space and ancillary space.
▼标准层平面图,Standard floor plan

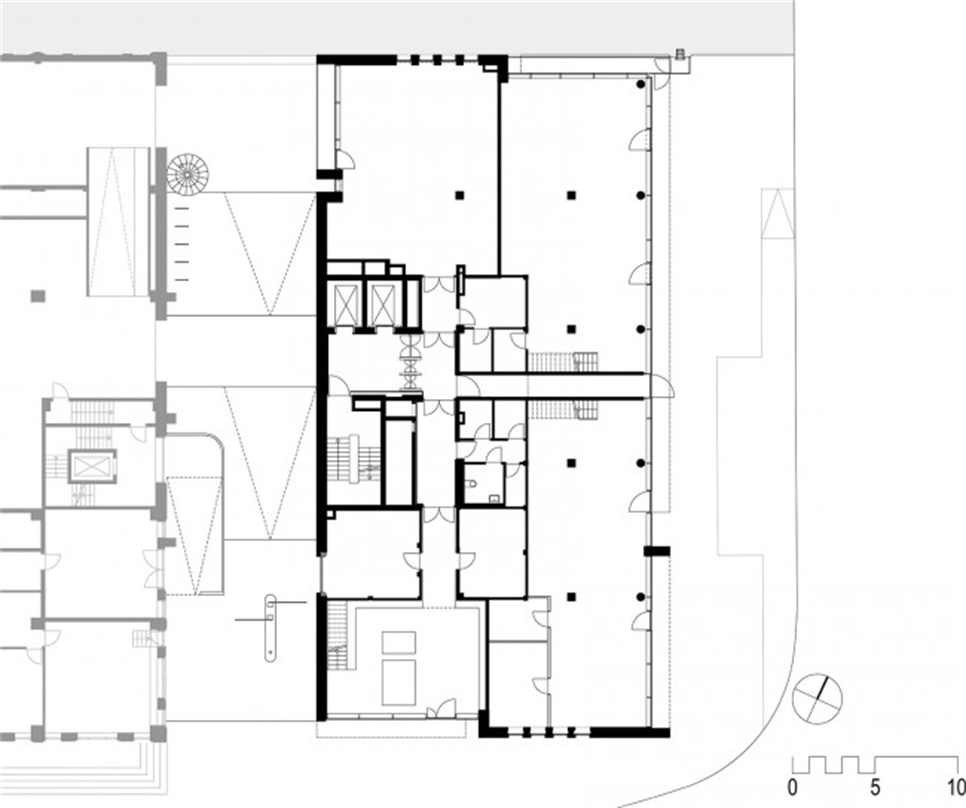
通透的首层之上员工入口旁设有汉纳曼兄弟集团博物馆和商铺。
Beside the staff entrance above the transparent ground floor, there are hannaman Brothers Group Museum and shops.
▼一层平面图,First floor plan

上层空间的平面设计保证了最大的灵活性,可整体规划为大空间办公室或分隔成较小的办公单位。
The graphic design of the upper space ensures maximum flexibility. It can be planned as a large space office or separated into smaller office units.
▼开放空间,Open space

▼可分割成较小办公单位的灵活办公空间,Flexible office space that can be divided into smaller office units
















