丽江光隐设计师酒店,云南/建筑
酒店位于中国云南省的丽江古城,由于其独特而古老的木质结构而受到保护,但是在此之前曾被进行过改造,原有的建筑布局和空间形态发生过改变。设计的目标之一是尽可能地恢复原有四合五天井的空间布局,项目接手时原本“五天井”的建筑格局已被加建只剩下两个天井。
The hotel is located in the ancient city of Lijiang in Yunnan Province, China. It is protected because of its unique and ancient wooden structure, but it has been transformed before, and the original architectural layout and spatial form have been changed. One of the objectives of the design is to restore the spatial layout of the original four in five patio as much as possible. When the project was taken over, the original architectural pattern of "five patio" had been added, leaving only two patios.
▼酒店围绕天井布置,大堂开敞明亮。
Arrange the plan around the central courtyard, creating an open and bright lobby.

同时所有的木质结构以及大堂和餐厅仅存原有的木质屏风门被保留。建筑其他的立面也被要求是木屏风,所以对木屏风的设计进行了再创造,屏风的几何图案提炼于纳西族的民族传统,日间优雅地将阳光与阴影投射于室内,夜间则反向将柔和的室内光线透射于室外。虽然在新的设计中屏风是单层的,但是通过推拉单层的屏风门相互移动重合,形成了一种更加现代与动态的立体关系,对传统的三层立体雕花进行了新的诠释。
At the same time, all wooden structures and only the original wooden screen doors in the lobby and restaurant are preserved. The other facade of the building is also required to be a wooden screen, so the design of the wooden screen is re created. The geometric pattern of the screen is refined from the national tradition of Naxi nationality. It gracefully casts the sun and shadow indoors during the day, and transmits the soft indoor light to the outside at night. Although the screen is single-layer in the new design, by pushing and pulling the single-layer screen doors to move and coincide with each other, a more modern and dynamic three-dimensional relationship is formed, which makes a new interpretation of the traditional three-layer three-dimensional carving.
▼保留木结构,立面木屏风上的图案来自于当地民族传统。
Remain the wooden structure. The patterns on the wood screens are inspired by the local tradition.


▼餐厅,光线透过木屏风上的图案形成独特效果。
Restaurant with unique shadow effect created by light through the wood screens.

建筑外立面的颜色是偏深色的,以尽量与丽江的古民居相接近,而室内的木头保持木的本色以给使用者温暖的感觉。除了木以外,室内还用到了其他天然材料,例如大理石和泥土。有些房间的墙面设计有木框图案以呼应外立面的设计。
The color of the exterior facade of the building is dark to try to be close to the ancient folk houses in Lijiang, while the indoor wood maintains the natural color of wood to give users a warm feeling. In addition to wood, other natural materials are used indoors, such as marble and clay. The walls of some rooms are designed with wooden frame patterns to echo the design of the facade.
▼客房,采用颜色温暖的木材,墙面图案和木屏风相呼应。
Warm colored wooden structures are used in the guest rooms with wall decorations corresponding to the patterns of the wooden screens.


设计的另一挑战是在被要求的房间数量,现代生活的舒适性,古老的木结构与限定的空间之间取得良好的平衡。其结果是所有十一间客房的空间布局是完全不同的,使得每一间都有独特的使用体验。有些房间的浴缸拥有别致的景观,有些房间在传统的屋檐下有面水的室外休闲座,有些房间带有独立后院,竹林环绕……
Another design challenge is to strike a good balance between the number of rooms required, the comfort of modern life, the ancient wooden structure and the limited space. As a result, the spatial layout of all eleven rooms is completely different, making each room have a unique use experience. Some rooms have unique bathtubs, some rooms have outdoor leisure seats with water under the traditional eaves, and some rooms have independent backyards surrounded by bamboo forests
▼不同的客房平衡结构,光影和景观,形成不同特点。
Guest rooms with different features are created by balancing the structure, light and scenery.




▼木屏风在房间中留下斑驳的光影。
The wooden screens create impressive light and shadow effects in the rooms.


对于公共区域的设计,由于大多数的房间都位于酒店的前区,从而设计了被水景环绕的中央流线以将屋檐之下的走道空间解放出来成为每间客房的室外座位区,作为室内与室外之间的过渡,同时为客房提供更多的私密性。室外地面使用了一种丽江当地的单一颜色的浅色石材,以提醒人们不远处的雪山,地面石材与水面同时作用将明媚的阳光反射进入一楼的客房内。
For the design of public areas, since most of the rooms are located in the front area of the hotel, the central streamline surrounded by waterscape is designed to liberate the walkway space under the eaves and become the outdoor seating area of each guest room as the transition between indoor and outdoor, and provide more privacy for the guest room at the same time. A light colored stone with a single color in Lijiang is used on the outdoor ground to remind people of the snow mountain not far away. The ground stone acts simultaneously with the water surface to reflect the bright sunshine into the guest room on the first floor.
▼前区中庭,采用浅色石材,为客房和大厅提供充足的采光。
Light colored stone material is used in the courtyard in the front part of the hotel, bringing sufficient sunshine into the interior spaces.


▼夜晚,灯光透过木屏风,形成独特的光影效果。
During night, light goes through the wooden screens with patterns, providing impressive shadow effects.



在酒店的后区,受保护的树木被保留下来,新增的植物以及景观设计意在融入的同时有所区别以强化被保留的树木。
In the back of the hotel, the protected trees are preserved, and the new plants and landscape design are intended to integrate and distinguish to strengthen the preserved trees.
▼酒店后区,树木被保留,植被丰茂。
In the back part of the hotel, trees are remained with additional vegetation.

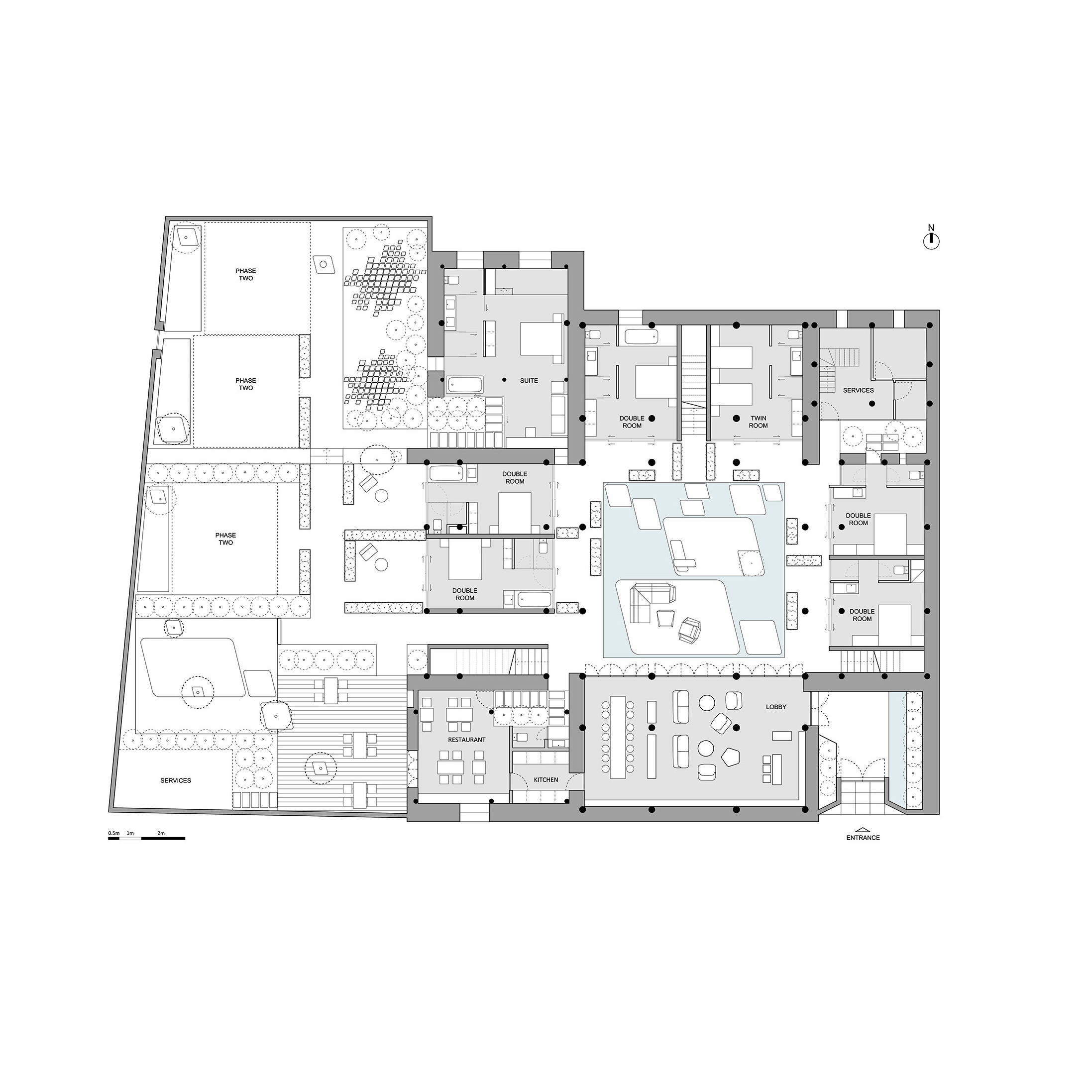
▼一层平面图,first floor plan

▼二层平面图,second floor plan

项目名称:丽江光隐设计师酒店
设计团队:Fabio Paulo,Henrique Narciso,周灰灰
设计公司:NTYPE 一质
项目地址:中国丽江
项目规模:基地面积:938m² | 建筑面积:703m²
建筑师:Joao Lemos,杨洋
项目年份:2017年
摄影师:Joao Lemos
摄影版权:NTYPE一质
Project Name: Lijiang Guangyin Designer Hotel
Design team: Fabio Paulo, Henrique Narciso, Zhou Huihui
Design company: NTYPE Yizhi
Project address: Lijiang, China
Project scale: Base area: 938m ² | Building area: 703m ²
Architects: Joao Lemos, Yang Yang
Project Year: 2017
Photographer: Joao Lemos
Photography copyright: NTYPE Yizhi














