山谷餐厅与“悠哉悠哉屋”,成都/建筑
“你可以忘记全世界,我不想忘记你。”——《忘不了餐厅》
“You can forget about the whole world, I don’t want to forget you.” —— Forget Me Not Cafe
▼《忘不了农场》项目概览,overview of Forget me, not farm
“我们的设计主旨是营造一个放松、舒适、亲近自然的建筑及室内环境,同时成为人与自然互动的媒介,帮助患有认知障碍的老人们以独特的视角感受和体验农场的环境和氛围。”
“The main thrust of our design is to create an architectural and interior environment that is relaxed, comfortable and close to nature, while serving as a medium for human-nature interaction and helping seniors with cognitive impairments to feel and experience the farm’s environment and atmosphere from a unique perspective.”
“我们认为这次项目不仅仅是为阿尔茨海默病患者创造一个舒适且可以展现节目效果的空间,而是抱着更多的社会责任感来进行此次的设计。希望他们在一些零零散散的记忆碎片中找到家的感觉,重拾人生,也希望通过节目和此次的设计让更多的人来关注我们身边的弱势群体。”
“We see this project as more than just creating a comfortable space for Alzheimer’s patients which can showcase the effects of the program, but we approached this design with a sense of social responsibility. We hope they can find a sense of home in some scattered fragments of memory and regain their lives, we also hope that through this TV program and design, more people will pay attention to the vulnerable groups around us.”
▼项目俯瞰,aerial view of the projects
本次项目位于成都都江堰市,节目出品方和制作方选择了一个非常原生态的自然环境,场地具有单纯、质朴的初印象。该项目分为整体功能规划、餐厅改造设计和悠哉悠哉屋(家族大客厅)新建三个部分。区别于以往的设计项目,本项目要同时考虑节目录制和后期运营的不同需求。
The project is located in Dujiangyan, and the program producer chose a very pristine natural environment, gives the site a simple and rustic initial impression. The project is divided into three parts: overall functional planning, restaurant renovation and the new construction of the Leisure House (family drawing-room). Unlike previous design projects, this project takes into account the different needs of both the recording period and the latter operation period.
▼山谷里的餐厅,restaurant in the valley
整个设计过程中节目组参与度较高,因此我们和《忘不了农场》节目组通进行了非常频繁的探讨,包括最初的设计理念,呈现方式到最后的每种材料的选择,这样保证了项目的设计和落地实施都非常高效。场地生态环境非常好,高大且自由生长的树木、大片的草坪、充满意境的荷花池塘等。我们的改造策略是把老建筑处理的尽可能的简单,去掉多余的装饰与符号,从实用功能出发。
The program team was highly involved in the whole design process, so we had very frequent discussions with the Forget me, not farm program team, including the initial design concept, presentation to the final selection of each material, which ensured that the design and implementation of the project were very efficient. The ecological environment of the site is very nice, with tall and free growing trees, large lawn, poetic lotus pond……Therefore, our renovation strategy is to renovate the old building as simple as possible, by removing the superfluous decorations and symbols, in order to start from the practical function.
▼夜景,night view
▼入口立面,the entrance facade
山谷餐厅 | Valley Restaurant
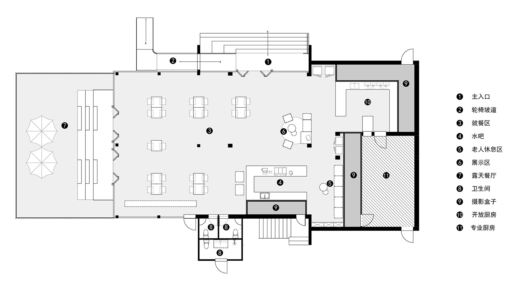
餐厅原建筑为两个独立的个体,设计风格不统一,入口隐蔽。面对目前患有认知障碍的患者大多脱离社会,封闭自我的现状,我们希望打破原建筑带给人们封闭的感受。打造一个开敞、明亮、温暖、适老化的空间。
The original building of the restaurant is two separate entities with inconsistent design style and hidden entrance. Facing the current situation that most of the patients suffering from cognitive impairment are detached from the society and closed themselves. We hope to break the closed feeling of the original building and create an open, bright, warm and age-friendly space.
▼餐厅远景,view in distance
设计时将两个原建筑间的隔墙打通,建筑间用玻璃连廊连接,增加玻璃阳光房和露台台阶,使餐厅层成为一个完整、通透、开放的空间。为了增强室内采光,大面积使用透明的玻璃幕墙和玻璃折叠门。
The design opens up the partition wall between the two original buildings, and the buildings are connected by glass corridors, adding glass sunroom and terrace steps to make the restaurant level a complete, permeable and open space. In order to enhance interior lighting, large areas of transparent glass curtain walls and glass folding doors are used.
▼俯瞰阳光房,aerial view of the sunroom dining area
▼餐厅入口,entrance of the restaurant
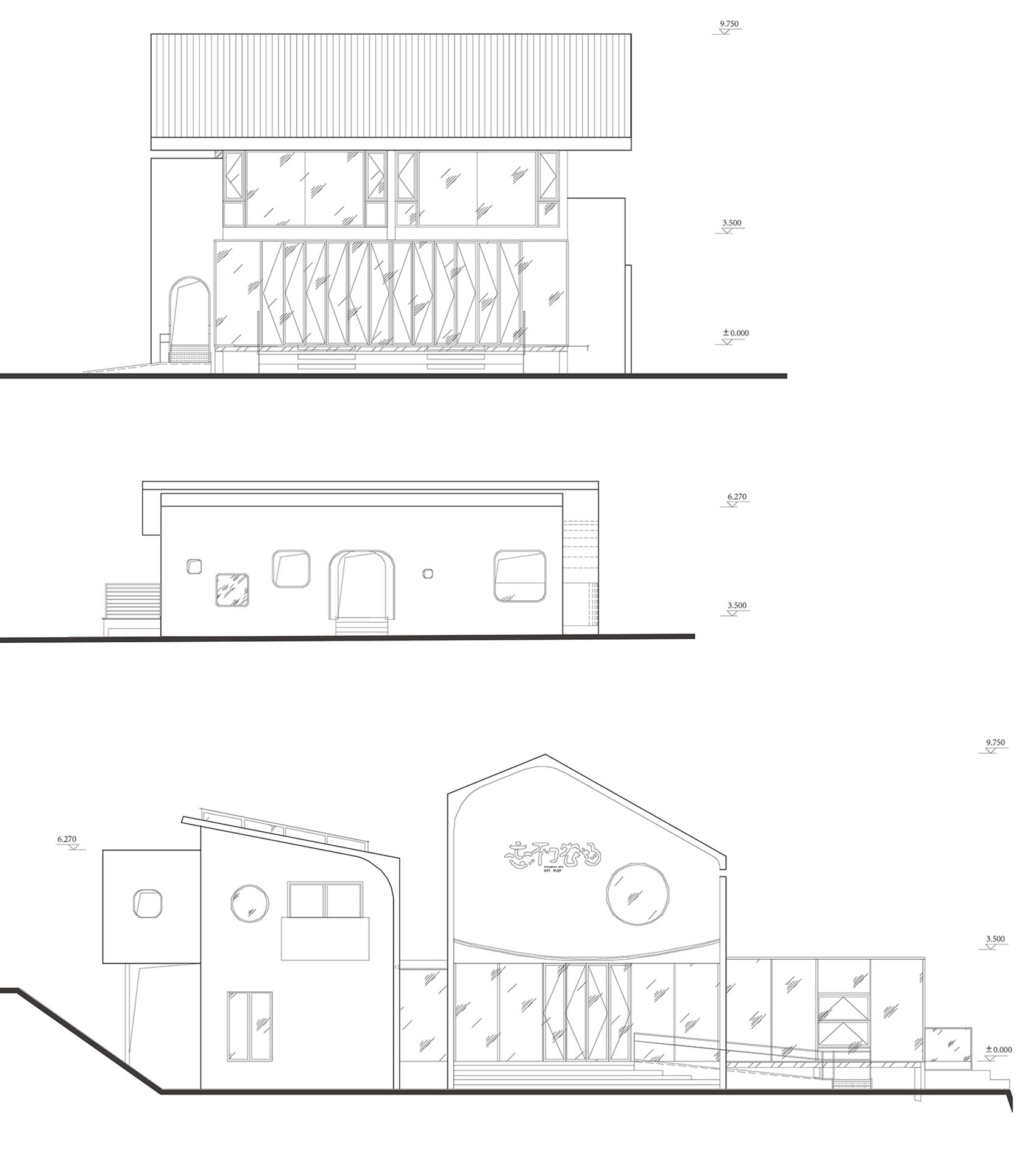
主入口增加台阶与轮椅坡道,使用防滑材料,增加安全性的同时使老年人进出更加方便。入口上方的曲面屋檐像在微笑着迎接人们的到来。建筑外立面延续原建筑挑檐元素,拆除入口处的遮挡,拐角处进行圆角处理。
Steps and wheelchair ramps were added to the main entrance, using non-slip materials to increase safety and make access easier for the elderly. The curved eaves above the entrance look like they are smiling and welcoming people. The facade of the building continues the overhanging eaves elements of the original building, removes the shading at the entrance, and rounds the corners.
▼外立面延续挑檐元素,retaining the overhanging eaves elements
▼外立面细部,building facade details
暖白色的建筑表皮与温暖的木色充满整个空间,圆形的窗点缀其间,建筑变成了一个自由童趣而温暖的“家”,为老人和就餐的顾客留下温暖的回忆。
The warm white skin of the building and the warm wood color fill the whole space, and the round windows are dotted in between, turning the building into a free and childlike “home”, leaving warm memories for the elderly and the customers.
▼暖白色的建筑表皮,warm white building skin
为了尽可能的减少对自然环境的破坏,设计团队只将场地周边遮挡了主入口通行的的树木花移植到了旁边,其他植物并未因建筑的改造受到影响。餐厅一层为公共区域,其中就餐区域包含了室内就餐区、阳光房就餐区和露台就餐区三部分。不同区域随着自然光照和四季景色的变化带来不同的就餐体验。设计团队希望患有认知障碍的老人可以走进社会,乐观开朗的生活。所以在设计时增加了更多的适老化设计,如台阶坡道的扶手、防滑材料的选择、插座在适宜的高度以避免老人过度弯腰和蹲起、设置老人休息区等。
In order to minimize damage to the natural environment, the design team only transplanted the trees and flowers around the site that blocked access to the main entrance to the side, while other plants were not affected by the building renovation. The restaurant level is public area, in which the dining area contains three parts: indoor dining area, sunroom dining area and terrace dining area. Different areas bring different dining experience with the change of natural lighting and seasonal scenery. The design team hopes that the elderly with cognitive impairment can enter the society and live an optimistic and cheerful life. Therefore, more aging-friendly designs were added to the design, such as handrails on the ramp of steps, the choice of non-slip materials, sockets at the appropriate height to avoid the elderly from bending and squatting excessively, as well as the setting of resting areas for the elderly.
▼阳光房内的厨房与水吧,kitchen & water bar
▼餐厅内部陈设,interior furnishings of the restaurant
▼餐厅落地窗,floor to ceiling doors in the dining space
二楼为嘉宾居住的房间,原有的开放式厨房和水吧台被保留了下来,活动衣柜与屏风用来分割空间,增加空间的私密性。
On the second floor are the rooms where the guests live, the original open kitchen and water bar are retained, the movable closet and screen are used to divide the space and increase the privacy of the space.
▼嘉宾客房,guest room
设计之初本想把落地窗改成门,这样当夜晚来临,嘉宾们可以站在玻璃房中看星星,但这个设想因为种种原因没有实现。外立面的圆窗在从室内向外看时起到了一定的框景作用,可以从二楼看到远处丛林的景色,整个空间温馨舒适。
At the beginning of the design, it was intended that the floor-to-ceiling windows would be turned into doors so that when night came, guests could stand in the glass room and look at the stars, but this idea did not materialize for various reasons. The round windows on the facade play a role in framing the view when looking out from the interior, allowing a view of the distant jungle from the second floor, making the whole space warm and comfortable.
▼室内陈设与绿植,interior furnishings and greenery
“悠哉游哉屋” | “Leisure House”
《忘不了农场》除对外营业的餐厅外还需新建一个供明星嘉宾、老人闲暇时间放松、休闲、活动的场所,一个融合多种活动可能性的空间——忘不了家族的大客厅。在项目初期,通过与节目制作方忘不了农场节目组对场地环境反复考察及沟通后,确定忘不了家族大客厅的选址,既要与餐厅具有某种联系,同时要兼顾场地环境不被破坏。因此餐厅正对面的树林成为首选,在空间上与餐厅遥相呼应,位于树林之中,通透隐藏于自然。
In addition to the restaurant, the farm also needed a new place for the celebrity guests and the elderly to relax, unwind, and engage in leisure time activities, which is the drawing-room of Forget me, not farm. In the early stage of the project, after repeated inspections of the site and communication with the program producer, the location of the Forget me, not farm drawing-room was determined to have some kind of connection with the restaurant and at the same time, the environment of the site should not be destroyed. Therefore, the woods directly opposite the restaurant became the first choice, spatially echoing the restaurant, located in the middle of the woods and hidden in nature.
▼森林里的“悠哉悠哉屋” ,“Leisure House” in the forest
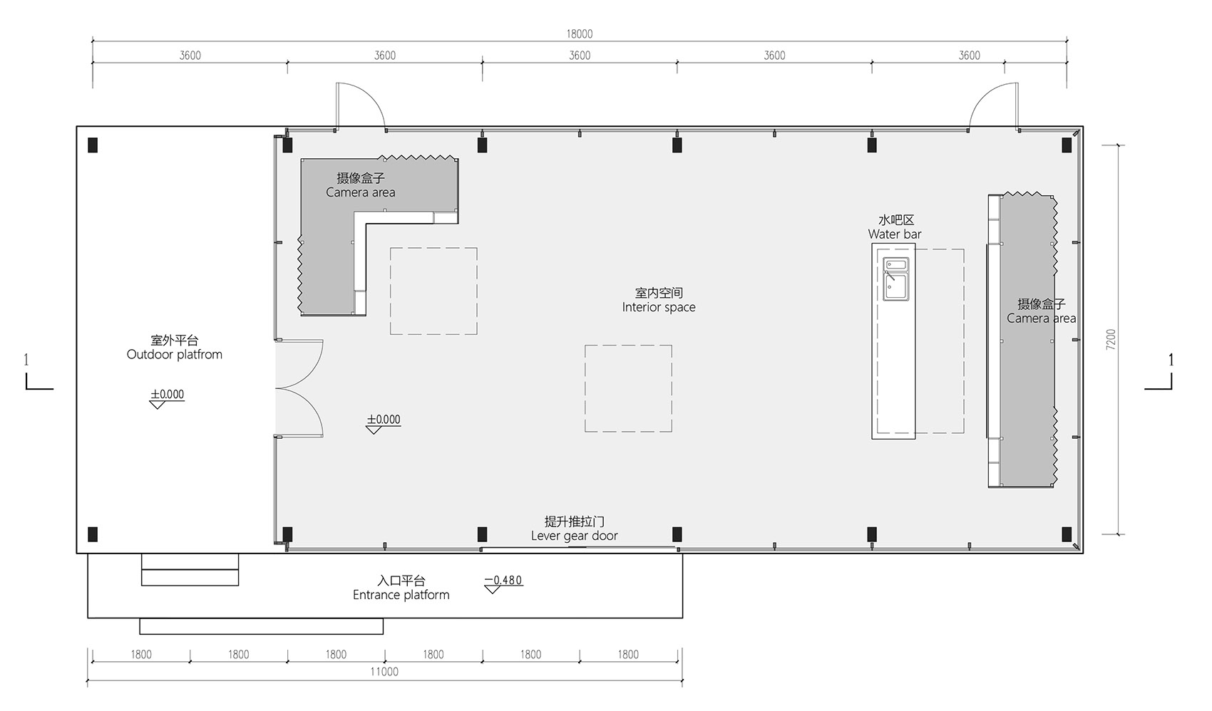
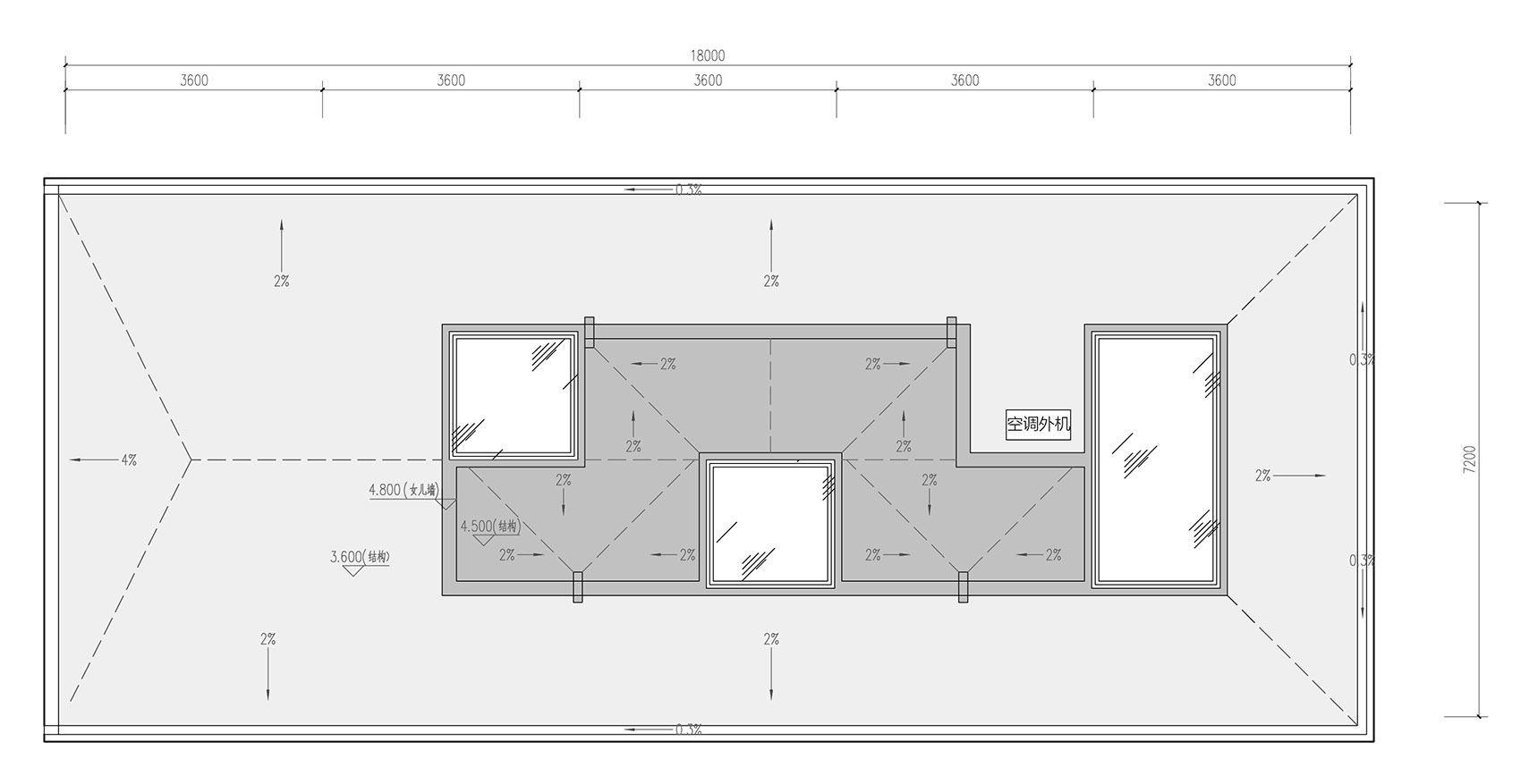
忘不了家族大客厅的设计灵感来源于“森林里的玻璃盒子”。我们希望人类在亲近自然的同时不破坏自然,它可以最大程度嵌入周围环境,但又不给周边环境带来负担。建筑屋顶设计了三个向上突出的天窗,不仅可以引自然光射入室内,增加室内的亮度,同时在突起的屋顶结构中暗藏空调设备,让室内顶部形成一个完整、干净的平面,使建筑更加简洁通透。
The design of the Forget me, not farm drawing-room is inspired by “a glass box in the forest”. We want human beings get close to nature without destroying it, it can be embedded in the surrounding environment to the maximum extent, but without burdening the surrounding environment. Three skylights protruding upward from the roof of the building are designed not only to draw natural light into the interior and increase the brightness of the building, but also to conceal air conditioning equipment in the protruding roof structure, so that the top of the interior forms a complete and clean plane, making the building more simple and permeable.
▼“森林里的大客厅”建造过程动图 ,gif. of building“the drawing-room in the forest”
▼大客厅结构分析图,structural analysis diagram
▼《忘不了农场》之森林里的大客厅,“The drawing-room in the forest”of Forget me, not farm
为了减小对地形的破坏,更好的隐于周围环境,建筑采用钢结构架空的形式,四周用通透的隐框玻璃幕墙围合在钢架最外侧,同时包裹一部分顶部结构,从而最大程度的消隐建筑钢架结构,使建筑更轻盈更通透。从餐厅望去,大客厅仿佛与树林融为一体,消隐于森林之中。
In order to minimize the damage to the terrain and to better hide from the surrounding environment, the building adopts the form of steel structure overhead, surrounded by a transparent hidden frame glass curtain wall on the outermost side of the steel frame, while wrapping a part of the top structure, so as to maximize the invisibility of the building steel frame structure, making the building lighter and more permeable. The view from the restaurant is as if the drawing-room is integrated with the woods, disappearing into the forest.
▼“悠哉悠哉屋”与树木交织在一起 ,“Leisure House”intertwined with trees
大客厅入口平台与室内地面有两步台阶的高差。每逢雨天,艺人们可以与老人们坐在门口听着雨打树叶的自然音律,俯瞰着餐厅,聊一聊 《忘不了农场》的趣事。建筑一侧是半室外的平台,推门出去,像是走进森林之中,被树木包围着,沐浴着透过树叶的阳光碎片,各处感官都沉浸于自然之中。
There is a two-step height difference between the entrance platform of the drawing-room and the indoor floor. On rainy days, the entertainers can sit at the entrance with the seniors and listen to the natural sound of the rain hitting the leaves of the trees, overlooking the restaurant and chatting about the interesting stories of the Forget me, not farm. On one side of the building is a semi-outdoor terrace, when you push the door out, it is like walking into a forest, surrounded by trees, bathed in fragments of sunlight through the leaves, with all senses immersed in nature.
▼半室外的平台,a semi-outdoor terrace
节目组提出室内需要一个开放的水吧区域,以便老人和明星嘉宾在家族活动时使用。室内的水吧区域在天窗的正下方,阳光沿窗洞洒下,树影随着时间的推移散落在水吧台的各个角落。同时,室内设备均隐藏在水吧台下,并使用智能无线开关,解决了在开敞无墙的空间无法穿线的问题,室内空间更加整洁开阔。
The program team suggested the need for an indoor water bar area for seniors and celebrity guests to use during family events. The indoor space water bar area is directly below the skylight, the sunlight spills along the window, and the shadows of the trees are scattered in all corners of the water bar as time goes by. At the same time, the indoor equipment is hidden under the water bar, and intelligent wireless switches are used to solve the problem of not being able to wire in the open space without walls, making the indoor space more neat and open.
▼午后的阳光洒进大客厅,afternoon sunlight pours into the drawing-room
功能方面,《忘不了农场》节目组提出了明确的需求,室内空间要满足多种场景的使用,因此室内并没有设计过多的固定家具,仅两侧设有装饰格架作为摄影盒子使用(之后运营会拆除),这给明星嘉宾和老人在空间使用上留下了更多可能性。我们与节目组的反复沟通最终确定室内吊顶为条形凹槽设计采取与建筑秩序相统一排布的方式,以便更好的隐藏拍摄布灯,室内外建筑效果更加整体通透。
In terms of functionality, the program team put forward clear needs, the indoor space to meet the use of a variety of scenes, so the interior is not designed with too much fixed furniture, only the two sides with decorative lattice frame as a photography box (after the operation will be removed), which leaves more possibilities for celebrity guests and the elderly in the use of space. After repeatedly communicating with the program team, and finally determined that the indoor ceiling for the bar cove design to take a unified arrangement with the building order, in order to better hide the filming lights, making indoor and outdoor architectural effects more integral and permeability.
▼室内陈设,interior furnishings
“This is the end of the journey, but we will keep our direction and continue the research, hoping to make further progress in the future, and keep overcoming difficulties and solving problems until the day that mankind completely conquers Alzheimer’s disease. We believe that the day will come when all people will be able to keep the important people and memories in their memory.”
▼“悠哉悠哉屋”与森林夜景,night view of the “Leisure House” and forest
▼伴随着温馨灯光的“悠哉悠哉屋”,“Leisure House” with cozy lights
▼餐厅结构分析图,structural analysis diagram of the restaurant
▼餐厅轴测图,axonometric of the restaurant
▼餐厅一层平面图,1st Floor plan of the restaurant
▼餐厅二层平面图,2nd Floor plan of the restaurant
▼餐厅立面图,elevation of the restaurant
▼大客厅平面图,floor plan of Leisure House
▼大客厅屋顶平面图,roof plan of Leisure House
▼大客厅立面图,elevation of Leisure House
▼大客厅剖透视,section of Leisure House





















































