姥姥家改造项目,北京/建筑
设计师基本保留了原有农舍建筑及院落围合的外观肌理和空间关系,使其可以顺利融入村庄脉络,保留乡村记忆,但根据周边环境做出了适当的调整。一些已经破损漏雨的屋顶进行了下架重修的处理,但材料和工艺上还是延续了当地传统的石板瓦顶,一处已经坍塌的房舍顺势改为了室外就餐凉亭,丰富了院落间的层次。
We saved the texture and spacial relationship between the original farm house building and the surrounding courtyards, so that they comingle with the arteries and veins of the village, preserving the countryside memory, but also making adaptations as needed to the surrounding environment.Broken roofs were taken off and repaired using traditional stone slab, a material and workmanship that marks the continuation of local tradition; a previously collapsed cottage was rebuild, and now conveniently serves an exterior dinning pavilion, enriching the layers between courtyards.
▼农舍改造的时尚院落,renovation of a farm house
▼建筑改造延续了当地传统的石板瓦顶,a material and workmanship that marks the continuation of local tradition
南侧的山坡同建筑自然围合成了一个小的开放空间,设计师把这里设计成了一个私密的休憩平台,原有的山石被保留在了平台中央成为了视觉焦点。原有的封闭陈旧的建筑立面被通透的玻璃幕墙所替代。原有的结构柱梁被暴露在室内成为自然的装饰,同时也被新建的外维护结构保护不受风雨侵袭。针对传统建筑坡瓦顶出檐小的问题,新加出的钢结构雨篷形成的檐下空间和从室内伸出的木平台使得室内的活动可以自然延展到室外。
Southside of the mountain along with the architecture were naturally enclosed together into a small open space. Here we designed a private resting platform, with the original mountain stone preserved in the middle of the platform as a focal point. The old worn out architecture façade was replaced with a breathable translucent glass curtain wall. The original structural beam columns now expose to the interior, becoming a source natural decoration, at the same time being protected by the new build structure from rains and winds. To tackle the issue that traditional slope roof have short eaves design, additional new steel eaves structure with rain tent were build, along with wood platform extending out from the dinning room, allowing indoor activates to extend to the courtyard.
▼南侧山坡同建筑自然围合成私密的休憩平台
south side of the mountain along with the architecture were naturally enclosed together into a small open space
▼新加的钢结构雨篷将室内活动自然延展到室外
additional new steel eaves structure with rain tent were build to allow indoor activates extending to the courtyard
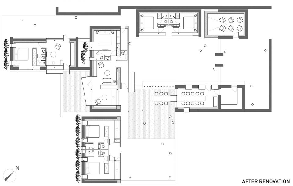
入口处结合原有耳房改建成的独立厨房和私人影院,既方便了农民管家的实际运营,又丰富了这样一个大群组院落的功能设置。院内的公共空间例如餐厅和客厅被安排在了院落的中间位置,相互之间既分又合。室内就餐区直接通联到了室外凉亭,而透过客厅又可以看到自然的山石景观。为了保证主要居住空间的私密性,同时也为了避免将最美的山景开门即见,设计师在正房面向入口院落一侧加盖了外廊,上方的玻璃顶让斑驳树影和灿烂阳光洒进室内,半透明的U型玻璃墙将苍翠的山景藏于其后,它所包裹的空间里渗出的光影又象灯笼一样照亮了院落。原有的建筑中布置了六间卧室,依照实际情况形态各有不同,有的自带起居室,有的淋浴间可以直面山景。
Original entry-way and its adjacent recess area was rebuilt into an independent kitchen, and separately, a private theatre. While allowing for essential housekeeping in day-to-day operation, the restructure enhanced the functions available for the many courtyards. Space of shared functions such as dining area and living room were arranged in the middle of the courtyard, separated but also interconnected. Interior dining area connects directly with the exterior pavilion; while scenery of natural hill stones could be seen through the living room.To ensure the privacy of the main living area, at the same time to save the best mountain view for the last, we added an exterior corridor outside the main living room facing the entry way. Glass roof on top of this corridor allows for sunshine and dotted tree shadows spraying into the room, semi-transparent U-shaped glass wall tries to conceal the verdant mountain view; peaceful light seeping through the corridor lights up the courtyard like a lantern.The original floorplan includes 6 bedrooms, with layout uniquely different, some have independent living rooms, some have shower rooms with direct mountain view.
▼入口庭院打造丰富群组院落氛围,the entry courtyard create a abundant courtyard atmosphere
▼公共空间与室外景观既分割又相互连通,space of shared functions are separated but also interconnected
▼餐厅由室内延续到室外,the dining room continues into the courtyard
家具尽量采取现代简约风格的产品,强调设计的当代性及舒适度。自然轻松的调性可以很好的融入到农村的大环境中,同时避免过于厚重或是符号化强烈的家具对窗外的景色形成干扰。设计师的设计原则是尽量就地取材,节约成本的同时也自然的体现出当地文化。
Our furniture product tends to be modern and simple, emphasizing design’s modernity and comfort level. Natural and relaxed tone could suit well into the countryside; avoid furniture being too strong or too symbolic, which might be disruptive to the scenery outside the window. Our design principle here is to take materials locally as much as possible, saving cost while at the same time demonstrating local culture in a good way.
▼现代简约的风格既强调舒适性又与农村氛围相融合
furniture product tends to be modern and simple and could suit well into the countryside
▼家装元素就地取材,U型玻璃增加建筑通透感
taking materials locally as much as possible and the U shape glass reflects the natural environment 
与以往传统的单一建筑项目不同,设计师试图探寻一种崭新的商业模型来解决当前中国农村普遍存在的社会问题。传统的村落年久失修,大量空置农舍破败不堪,基础设施落后。村中的青壮年大多进入城市打工谋生,留下村中大量老年及儿童无人照料。由于这些村落大多地域偏远,农产品不便运出,进一步加剧了当地的贫困。而另一方面,城市人又受生活压力和空气污染等因素所困,希望周末能到郊区放松身心,但苦于找不到有品质保障的落脚点。设计师的模型是在村子里面找到被空置的房屋,通过设计,用最快的的时间和最低的成本达到一定的居住品质,之后培训当地的农民做客房服务,并由专门的团队根据当地的农作物开发出餐饮菜单,最后利用互联网平台进行销售。销售的75%归当地农民,25%覆盖我们这个服务平台的成本。设计师在一年的时间里已经完成了将近四十个院落的改造,成本基本控制在了60美元/平方英尺(涵盖了从场地清理,建筑改造,室内硬装,家具陈设,灯具,机电,上下水等所有费用),改造时间大概不到两个月。利用当地材料和劳动力极大的降低了后期的运营成本,而将收入的大部分分给当地农民又使得商业模型变得稳定,同时吸引了越来越多的农民愿意将手中不用的房屋提供给设计师进行合作。已经开放经营的院落销售情况火爆,农民管家的收入远远超过了他们进入城市打工的收入。这使得很多本村的青壮年劳动力开始返回村子加入设计团队,从而间接的解决了很多社会问题。
Different from many individual design projects seen in the past, we are exploring a brand-new business model to resolve the social issues commonly found in China today. Traditional villages are outdated, worn out, large number of vacant farm houses are in unlivable conditions, infrastructure fell way behind. Most young adults move to the city for work, leaving behind large number of seniors and unattended young children. As most of these villages tend to be far from cities, local farm products are difficult to transport out, exacerbating the poverty issue. But on the other hand, city residents increasingly wish to spend the weekend in the countryside to relax, to rid of air pollution and work pressure, but quality stays in the countryside are not easy to find. Our business model is to look for vacated houses in the countryside villages, convert these places into design quality living space under a short time span and with good cost management, while training local farmers to provide warm host services, our food specialists would develop dining menus based on local agricultural products available, and finally, internet platform is used for marketing and sales. 75% sales revenue belongs to local farmer, 25% covers our platform’s operating cost. We have completed renovation for almost 40 courtyards in the past year, controlling cost under 60 USD per square feet (all expenses inclusive); our renovation job complete in less than 2 months on average. Using local materials and labors lowered operating cost in the latter phase, and sharing most of the distributions to the local farmers makes the model stable income in nature, while attracting more farmers willing to provide vacant houses and to work together with us. Our operating units now become very popular, and our former farmer turned house keepers now earn much more than their peers that work long hours in the city. This has caused quite some number of young people returning to the village to join us, indirectly contributed to resolving a long standing social issue.
▼房屋改造前,before renovation
▼房屋改造后,after renovation






























