成都太古里MTM门店,成都/室内
MDO所为香港护肤品牌MTM设计的全新理疗spa是一个由一座轻微弯曲的楼梯引入的隐秘宝地。
More Design Office’s new treatment spa for Hong Kong based mtm Skincare is a hidden gem accessed via a gently curving feature stair.





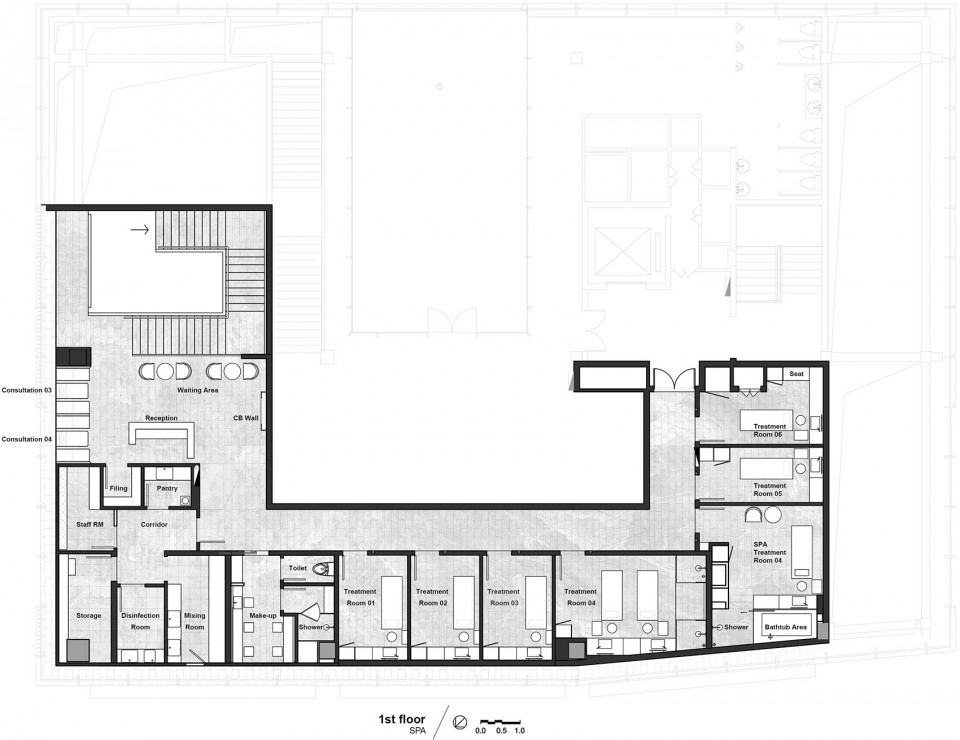
一层 First Floor
这座坐落在成都太古里,占地400平方米的SPA有着两个主要功能。首层为零售空间,顾客可以通过MTM的咨询专家进行皮肤测试,并且得到定制护肤产品的推荐。二层为宽敞的理疗区域,顾客可以在这里进行面部理疗和按摩。作为MTM品牌在中国的形象代表,MDO对这座新门店的概念设计强调了该品牌以科学研究和私人订制为核心的服务观念。基于品牌的日本起源,门店全新的视觉风格多采用中性色,并运用具有精致细节的天然石材和木材,突出了门店的空间感和边界感。零售和理疗这两个服务功能在竖直方向分开。主题楼梯成为一个边界,和一个规划开放/私密,快/慢,疗养/spa空间的过渡区域。顾客沿着楼梯向上时,天花依次折叠,隐藏的上射灯照亮了墙面,营造出一个温暖舒适的氛围。
Situated in Chengdu’s Taikoo Li, the 400sqm spa has 2 main functions, a retail-orientated ground floor where customers can have their skin analysied by mtm’s consultants who can recommend custom-made skin products. On the 2nd floor is expansive treatment area where the clients can receive facial treatments and massage. As part of mtm’s China presence MDO developed a new store for the concept which highlights the scientific and bespoke nature to mtm’s service. Referring to the brand’s Japanese origins, the new palette is neutral in colour, with natural materials of stone and timber carefully detailed, and focus on space and boundaries. The two functions of retail and treatment are separated vertically. The feature stair becomes the boundary and transition space organizing public/private, fast/slow, clinical/spa. As guests climb the stair the ceiling folds over and the walls are lit by hidden uplights creating a warm and comforting environment.

二层 Second Floor
第二层的空间单纯地被地灯照亮,这些地灯轻轻掠过墙面的底部,为顾客创造出一种禅意的体验,带领他们远离城市的喧嚣和繁忙。
The second floor spaces are lit with just floor washers which graze the lower walls to create a Zen like experience, taking the visitors far away from the hustle and bustle of the city.


顾客在特别设计的隔间中可以会见咨询师并进行皮肤测试。这个过程处于开放空间中,但顾客的隐私也可以通过一系列的日式屏风(Koshi,格子)得到保护。
The guests meet with the consultants in specially design booths where their skin can be analyzed. The process is open, but privacy is achieved by a series of layers which draw reference from the Japanese screen (Koshi,格子).


项目名称:成都太古里MTM门店
文章分类:室内设计-综合商业
设计公司:木君建筑设计
项目地址:中国四川省成都市
项目规模:约350m²
Project Name: Chengdu Taikoo Li MTM Store
Article classification: Interior Design - Comprehensive Business
Design company: Mujun Architectural Design
Project address: Chengdu, Sichuan Province, China
Project scale: approximately 350m²














