源城区越王小学,广东 / 建筑
源城区越王小学是我们在河源中标的十所中小学之一。十所学校有改建、扩建、新建;有小学、中学、一贯制学校、特殊教育学校;用地条件有平直、有曲折、有高密度、有低密度、有平地、有坡地。每一所学校都有自身独特的条件和特点。能够在同一座城市,完成如此多类型的中小学设计,这本身就是一件十分有意义和值得研究的事。
Yuewang Primary School in Yuancheng District is one of the ten primary and secondary schools that we won the bid in Heyuan City. The ten schools include middle schools, high schools, primary schools and special education institutions, which need reconstruction, expansion and construction at different levels. The lands and density are vary too. Some are flat and heavily dense while others are uneven and sparse. In all, every school has its own characteristics and unique condition. It is a meaningful research itself for us being able to know and design these various schools.
▼项目鸟瞰,aerial view of the project
挑战 | Challenges
本项目位于城市新区的中心区域,周围住宅商业区环抱,用地被压缩在了两条城市道路的交叉位置,靠近交叉口还要让出车辆转弯的视线通道。2万多的用地面积需要布置4万多的功能面积和室外运动场地。在城市高密度用地条件下,如何协调各功能,满足规范日照和间距要求,同时为学生创造富有特色的活动空间,成为设计的最大挑战。
This particular project locates in the center of city new district, fully surrounded by residential and commercial area. The land use is limited between the cross area of two municipal roads, where enough space and vision are required for vehicles to pass and turn. Outdoor sports and exercise area as well as usable indoor area account for total 40,000m² need to be built Within its 20,000 m². Under the background of high density land use, the biggest challenge lies in creating practical space for students while also making the best use of sunlight and keeping a reasonable distance.
▼项目概览,overall of the project
▼从操场看校园全景,viewing the project from the playground
▼由道路看学校办公楼,viewing the office building from the road
设想 | Ideas
小学校园是孩子启蒙平台,也是他们健康快乐成长的场所。小学生学习的不仅仅是课堂上老师传授的知识。同学之间的游戏交流、相互学习更是他们成长的重要组成部分,有时甚至比课堂更加重要。为学生们提供一个游戏交谈、共同成长的场所十分重要。小学生是最活泼好动的,应尽可能多地为他们提供室外活动交流的空间。
As a venue for young kids start learning, elementary schools are crucial and vital in children’s physical and mental development. Young pupils need space and safe environment to interact, play and grow. We also dedicate to creating enough outdoor space besides practical indoor rooms.
▼两个“魔方”,Two magic cubes floating on the platform
▼风雨操场,the playground
▼风雨操场立面, the facade by the playground
▼遮阳板立面细部,Detail of visor facade
实践 | Practice
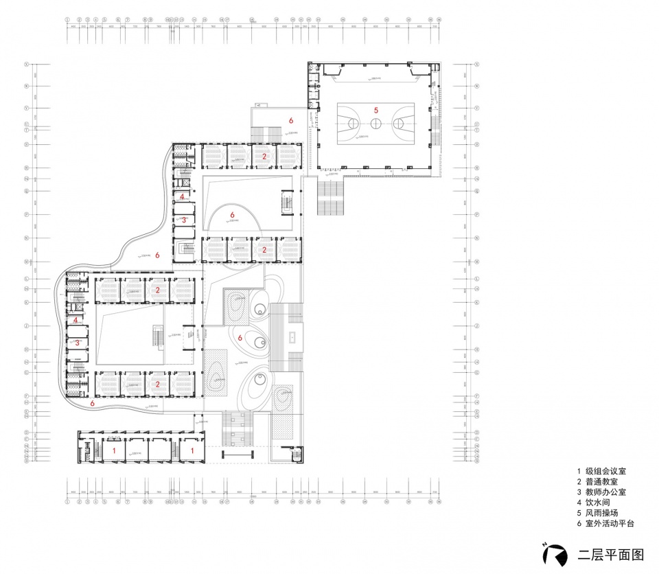
我们把二层屋面作为一个连续的活动平台进行设计,为学校提供了一个近2000平方米的绿化活动平台。一个平缓宽阔的台阶连接了平台与运动场,既使室外场地成为整体连续的活动场所,也是校运动会时理想的看台。在二层平台上我们设计了三个斜圆锥采光窗,一方面解决了下部活动走廊的自然采光问题,另一方面在平台上形成了三个有趣“小山”。围绕着“小山”,孩子们可以创造出属于自己的游戏和区域。整个学校的设计十分紧凑,小中见大,通过建筑的架空、悬挑、围合,形成了丰富的空间层次。
Second floor roof was used as a continuous activity platform in our design, which provide a nearly 2,000 m² green belt area for various activities. A mild wide step connects the platform and the playground, making outdoor area all connected and complete. It is also an ideal grandstand during annual sport events. On the second platform, three biased cone shaped skylight windows were designed, which not only provides natural sunlight to the corridor under but also forms three interesting mountain shaped area. Students can create playing ideas around it. The whole design is fully connected and compact. Different levels and various space were realized through architecture designing.
▼二层活动平台,Activity platform on the second floor
▼天窗成为游戏的区域,The skylight becomes the game’s area
建筑汲取当地传统客家围屋的特点,与现代建筑设计手法相结合,教学楼如悬浮在平台上的两个“魔方”,有趣的开窗与阳光形成丰富变化的光影效果。部分可以旋转角度遮阳板,可根据季节变换和室内需要调节阳光入射量,达到绿色节能的效果。一年的不同季节,一天的不同时刻建筑立面都在变化着。
The whole design combined the characteristics of local hakka round house and modern architecture. The main teaching building looks like two magic cubes floating on the platform. Skylight windows and sunlight form unique light and shadow effect. The rotatable shades can be changed based on seasons and needs, meeting the requirement of energy saving and environmental conservation. The facade also has different effects due to the change of time as well as the change of seasons all through the year.
▼教学楼围合的内院,The inner courtyard enclosed by the teaching building
▼平台下的小庭院,The small courtyard under the platform
▼小庭院,The small courtyard
▼架空区和各层连廊,Different levels and various space
▼教室与楼梯细部,details of the project
▼联系平台的楼梯,the staircase
▼立面夜景,night view of the facade
▼庭院夜景,night view of the courtyard





































