海峡旅游服务中心,厦门 / 建筑
项目概况 | PROJECT BRIEF
海峡旅游服务中心项目是厦门市政府主导的在厦门市五通设立的对台重要交流平台,得到国家旅游局的大力支持,将作为国家旅游博览会的永久会址。海峡旅游服务中心是对台(金门)海空联运的重要节点,是厦门对外窗口和主要港口门户之一。
The project of cross-strait tourism service center is an important platform for communication with Taiwan established in Wutong, Xiamen, under the leadership of Xiamen municipal government. It is strongly supported by the national tourism administration and will be the permanent site of the national tourism expo.The straits tourism service center is an important node of sea and air transportation to Taiwan (Kinmen), and is one of the external Windows and main ports of Xiamen.
▼项目鸟瞰,aerial view of the project
海峡旅游服务中心有效整合码头、旅游会展、旅游博览、旅游服务以及多式联运,形成综合性、功能齐全的旅游目的地及两岸旅游业界交流平台,极大提高该区域的游客及商务接待能力,满足两岸交流的多样化、高品质的服务需求,为两岸交流提供更好的基础保障。同时它是一个集餐饮购物、度假酒店、客运码头、综合办公、旅游会展、影视艺术、市民休闲、亲子娱乐、马拉松赛事活动等一体的海岛东岸城市旅游综合体,为两岸的市民开启新的文化旅游体验。
Strait tourism service center effectively integrate wharf, tourism exhibition, exhibition of tourism, tourist services and multi-modal transport, the formation of a comprehensive, fully functional tourist destinations and the tourism industry on both sides of the Taiwan straits started communication platform, greatly enhance the tourists and business reception capacity of the region, to meet the diversification of cross-strait exchanges and high quality of service requirements, providing a better basis for cross-straits exchanges.At the same time, it is a city tourism complex on the east coast of the island integrating catering and shopping, resort hotel, ferry terminal, comprehensive office, tourism exhibition, film and television art, citizen leisure, parent-child entertainment, marathon events, etc., opening a new cultural tourism experience for citizens on both sides of the island.
▼远景鸟瞰,distanced aerial view of the project
方案在被道路分隔的地块内构思,整体建筑形态从三维造型的特点上接近于巨大尺度的雕塑,场地的特征通过建筑得以淋漓尽致地体现,雕塑般的建筑重塑了海岸线的激情与澎湃。建筑不仅向观者提供丰富的三维造型,而且还提供与场地特征有关的空间体验。建筑整体呈现出的多维度倾斜与变化姿态为城市干道和海岸线提供了丰富的空间形态轮廓。
The plan is conceived in the plot separated by the road. The overall architectural form is similar to the sculpture of huge scale in terms of the three-dimensional modeling features. The site features can be vividly reflected through the building, and the sculptural building reshaped the passion and surging of the coastline.The building not only provides the viewer with a rich three-dimensional shape, but also provides a spatial experience related to the characteristics of the site.The overall multi-dimensional tilt and changing posture of the building provide a rich spatial contour for the urban trunk road and coastline.
▼建筑如同巨大的雕塑,buildings like large-scaled sculptures
项目背景 | SITE AND CONTEXT ANALYSIS
海峡旅游服务中心选址地五通历史上是通往宝岛台湾的咽喉。数百年间,五通渡口成为厦门与金门、台湾通航的重要渡口之一。海峡旅游服务中心正处于海峡西岸的交通枢纽的中心位置。本设计的建设场地面临的最直接挑战是如何在一个有限而分隔的地块内,将几个功能相关而又相互独立的建筑,协调成为一个有机的城市综合体。设计者从用地的独特地理位置上找到灵感。选址地五通与台湾的关系既分割又紧密相连,借用这个深远的含义,方案采用了“适当分离”与“紧密联系”的两个概念重塑区块的空间秩序。将建筑分为两个组团,退让出带状的内部空间,但各个建筑又有意识地按功能特征聚拢布局;如此一来,均质的地块通过建筑的有机聚散,形成极具动感的整体效果。而各建筑似分而连,在构成上保持了高度的统一,如同一脉相承的有机整体,相互依存、和谐共生。
The strait tourism service center is located on the five links, historically the throat leading to the treasure island of Taiwan.For hundreds of years, Wutong ferry has become one of the most important ferry routes between Xiamen, Kinmen and Taiwan.The straits tourism service center is located at the center of the transportation hub on the west bank of the straits.The most immediate challenge for the design site is how to coordinate several functionally related and independent buildings into an organic urban complex within a limited and separated plot.The designer finds inspiration in the unique location of the site.The relationship between Wutong and Taiwan is both separated and closely connected. Based on this profound meaning, the plan adopts the concepts of “proper separation” and “close connection” to reshape the spatial order of the block.The building is divided into two groups to give way to the inner space of the strip, but each building is consciously arranged according to its functional features.In this way, the homogeneous land mass through the organic accumulation and dispersion of the building, forming a very dynamic overall effect.The buildings are closely connected as if they were separated, maintaining a high degree of unity in composition, like an organic whole of one line, interdependent and harmonious.
产生的带状空间打造成峡湾广场,有效加强了区内各种以海峡旅游为主题的城市功能的联系,积聚人气与活力,促发了各个功能区块之间更为紧密的联系,使得各个子项最大程度地形成资源共享。
The generated strip space is formed into a fjord square, which effectively strengthens the connection between various functions of the city in the area with channel tourism as the theme, accumulates popularity and vitality, promotes the closer connection between each functional block, and maximizes the resource sharing among each sub-item.
▼设计分析,design analysis
▼建筑界面与形态,architectural form and intersection analysis
设计理念 | DESIGN CONCEPT
一衣带水共潮生,海峡文化脉相承 | “The cultures of the two sides of the Taiwan straits are in one line and lie in the gulf between them”
本设计面临的最直接挑战是如何在一个有限而分隔的地块内,将几个功能相关而又相互独立的建筑,协调成为一个有机的城市综合体。设计者从用地的独特地理位置上找到灵感。选址地五通与台湾的关系可谓是一衣带水,借用这个深远的含义,方案采用了“适当分离”与“紧密联系”的两个概念重塑区块的空间秩序。将建筑分为两个组团,退让出带状的内部空间,但各个建筑又有意识地按功能特征聚拢布局;如此一来,均质的地块通过建筑的有机聚散,形成极具动感的整体效果。而各建筑似分而连,在构成上保持了高度的统一,如同一脉相承的有机整体,相互依存、和谐共生。
The most immediate challenge for the design is how to coordinate several functionally related but independent buildings into an organic urban complex within a limited and separated plot.The designer finds inspiration in the unique location of the site.The relationship between Wutong and Taiwan is like a close and continuous brother. With this profound meaning, the plan adopts the concepts of “proper separation” and “close connection” to reshape the spatial order of the block.The building is divided into two groups to give way to the inner space of the strip, but each building is consciously arranged according to its functional features.In this way, the homogeneous land mass through the organic accumulation and dispersion of the building, forming a very dynamic overall effect.The buildings are closely connected as if they were separated, maintaining a high degree of unity in composition, like an organic whole of one line, interdependent and harmonious.
产生的带状空间打造成峡湾广场,有效加强了区内各种以海峡旅游为主题的城市功能的联系,积聚人气与活力,促发了各个功能区块之间更为紧密的联系,使得各个子项最大程度地形成资源共享,产生更为活跃与正面的效应。
The resulting strip space is formed into a fjord square, which effectively strengthens the connection between various functions of the city in the area with channel tourism as the theme, accumulates popularity and vitality, and promotes the closer connection between each functional block, so that each sub-block can maximize the sharing of resources and produce more active and positive effects
▼设计理念与空间生成,design concept and space generation
风翻白浪花千片,雁点青天字一行 | “The building complex is solidified turning white waves”
各个单体必须考虑整体的形象再进行统一的设计,才能使整个项目具有序列性、连续性与可识别性。由于地处海岸线,结合厦门的独特气质,设计者采用一种更加轻盈、更加浪漫的建筑风格,以区别于笔直的岸线与沉重的呆板。建筑如同浪撞击海岸溅起的一片片白色浪花,在空中突然凝固。无论人们从海上来或是从陆上来,柔软起伏的直纹曲面屋顶、浪漫交织的倾斜平行墙面,都为之带来一种独特的建筑艺术视觉冲击力。
Each unit must consider the overall image and then carry out a unified design, so that the whole project has the sequence, continuity and identification.Due to its location on the coastline and Xiamen’s unique temperament, the designers adopted a lighter and more romantic architectural style to distinguish it from the straight coastline and the heavy rigidity.The building was like a piece of white spray that hit the shore and froze in the air.Whether people come from the sea or from the land, the soft undulating straight curved roof and the romantic interwoven sloping parallel walls bring a unique visual impact of architectural art.
▼项目概览,曲线形的建筑显得更加轻盈,overall view of the project, buildings in curved shapes creating a feeling of lightness
▼绿色丰富的多层立体设计,three-dimensional design with layers of green space
建筑形态从三维造型的特点上接近于巨大尺度的雕塑,重塑了海岸线的激情与澎湃,也为城市干道创造了不断变幻的空间效果。从以上构思出发,我们确立以下的建筑设计目标,并以此作为整个项目的核心理念。
1)创新之湾:极具特色的滨海建筑群体,为陆海来宾提供特别的空间体验。
2)活力之湾:服务设施齐全方便,交通联系顺畅舒适,塑造全天候的活力新区。
3)低碳之湾:坚持走低能耗、低污染、低排放的绿色建筑发展道路。摒弃大面积运用玻璃幕墙,而采
用整体化金属百叶,折叠出变化无穷的立面,百叶内层可设置大量开启的窗户,达到最大程度的自然采光通风效果。
The architectural form is similar to the sculpture of huge scale from the characteristics of three-dimensional modeling, which reshapes the passion and surging of the coastline and creates the constantly changing spatial effect for the urban arterial road. From the above ideas, we set the following architectural design objectives as the core concept of the whole project:
1) innovation bay: The distinctive group of coastal buildings provides a special space experience for guests from the land and sea.
2) the bay of vitality: Complete and convenient service facilities, smooth and comfortable transportation links, shaping an all-weather dynamic new district.
3) low-carbon bay: Adhere to the low energy consumption, low pollution, low emissions of green building development path.Large area of glass curtain wall is abandoned, and integrated metal louver is adopted to fold out the endless changing facade. A large number of open Windows can be set in the louver inner layer to achieve the maximum natural lighting and ventilation effect.
▼客运码头仿佛海边的浪花,the ferry terminal is like a piece of white spray that hit the shore
设计细部 | DESCRIPTION OF PROJECT DETAILS
该设计巧妙地借用建设用地背后的深远文化意义来解决地块本身缺陷造成的问题。“咫尺相隔又紧密相连”彰显着厦门与台湾的关系,也诠释了这个建筑群体的设计内涵。“适当分离”来回应场地限制条件。“紧密相连”来统一建筑整体形象。建筑与场地景观设计一气呵成,三维旋转体量像是由拍岸的浪花在空中瞬间定格形成。本方案的景观设计有力地强化了规划设计理念,并对建筑风格形成烘托。峡湾广场的设计强调线性的设计手法,以简洁流畅的线条,突出旅游、移动、速度这一概念,加强了整体的动感。在夜景的处理上,从层层百叶透出的细密亮光,正如同一排排细密的浪花,无需外加的过多灯饰,建筑本身就在含蓄地表达自身的闪光价值。
The design cleverly borrows the profound cultural significance behind the construction land to solve the problems caused by the defects of the land itself.”Closely separated but closely connected” shows the relationship between xiamen and Taiwan, and also interprets the design connotation of this architectural group.”Appropriate separation” in response to site constraints.”Closely connected” to unify the overall image of the building.The architecture and landscape design of the site are completed in one go. The three-dimensional rotating volume seems to be formed by the waves on the shore freezing in the air.The landscape design of this scheme strongly strengthens the concept of planning and design, and forms a foil to the architectural style.The design of the fjord plaza emphasizes the linear design approach, with simple and smooth lines, highlighting the concept of tourism, movement and speed, and enhancing the overall dynamic feeling.In the processing of night scene, the fine light from layer upon layer of louvers is just like the rows of fine waves. Without extra lighting, the building itself implicitly expresses its flashing value.
▼夜景,百叶中透出细密亮光,night view, fine light leaking from layers of louvers
项目意义 | SIGNIFICANCE OF THE PROJECT
首先项目本身意义重大,它是厦门市政府主导的在厦门市五通设立的对台湾重要交流平台,得到国家旅游局的大力支持,将作为国家旅游博览会的永久会址。是海峡两岸文化交流及推介海峡旅游服务产品的重要基地。再者,项目的设计理念的继承了先人的智慧,并将其巧妙运用到解决现实问题中,是对传统文化的创新型运用。
First of all, the project itself is of great significance. It is an important exchange platform for Taiwan set up in wutong, xiamen, under the leadership of the xiamen municipal government. It is strongly supported by the national tourism administration and will be the permanent site of the national tourism expo.It is an important base for cross-straits cultural exchange and promotion of cross-straits tourism service products. Moreover, the design concept of the project inherits the wisdom of the ancestors and skillfully applies it to solve practical problems, which is an innovative application of traditional culture.
▼项目地标双子塔,twin tower, the landmark of the project
▼富有动感的建筑表皮,dynamic facade of the building
项目创新 | PROJECT INNOVATION
项目的设计理念的深层次的解读了场地的地理含义、精神含义,提炼出传统文化精髓并将其巧妙运用到解决现实问题中,是对传统文化的创新型运用。在设计实践上,海峡旅游服务中心方案,采用整体化的设计,通过极具雕塑感的建筑造型和流畅、婉转的空间形态,完美地阐述了“海峡”和“旅游”两个主题,并以其强有力的滨海视觉景象,抒写了闽南独特的人文精神特质,成为厦门新的城市形象代表,迎接各方的来客。
The design concept of the project deeply interprets the geographical and spiritual meaning of the site, extracts the essence of traditional culture and skillfully applies it to solve practical problems, which is an innovative application of traditional culture.On the design practice, the channel tourist service center, adopt integrated design, through the construction modelling of sculpture and smooth, its spatial form, perfectly describes the “channel” and “travel” theme, and with its powerful coastline visual scene, the southern Fujian Province express the unique humanities spirit, as a new city image on behalf of Xiamen, welcome the visitors from all parties.
▼客运码头,流畅而富有雕塑感的建筑造型,ferry terminal in smooth and sculptural architectural form
可持续发展设计 | SUSTAINABILITY OF ARCHITECTURAL DESIGN
基于构思,项目确立“低碳值湾”的建筑设计目标,并以此作为整个项目的核心理念。设计坚持走低能耗、低污染、低排放的绿色建筑发展道路。摒弃大面积运用玻璃幕墙,而采用整体化金属百叶,折叠出变化无穷的立面,百叶内层可设置大量开启的窗户,达到最大程度的自然采光通风效果。
Based on the conception, the project establishes the architectural design goal of “low carbon value bay” and takes it as the core concept of the whole project.The design sticks to the development path of green building with low energy consumption, low pollution and low emission.Large area of glass curtain wall is abandoned, and integrated metal louver is adopted to fold out the endless changing facade. A large number of open Windows can be set in the louver inner layer to achieve the maximum natural lighting and ventilation effect.
▼流线型的建筑表面覆盖百叶,curved buildings covered by louvers
▼屋顶与外墙形成连续统一的界面,roof and wall integrated into a continuous surface
功能分区 | LAYOUT OF ZONING FUNCTIONS
项目在和后期的建设中与当地政府的不断讨论协商,进行了功能布局的调整,将原方案的旅游集散中心由原来的B02地块调整到A03地块,并集中设置了下沉广场,以满足多种人流分层疏散的目的。
During the continuous discussion and consultation with the local government in the later construction of the project, the functional layout was adjusted, the tourism distribution center of the original plan was adjusted from the original B02 plot to the A03 plot, and a sunken square was set up to meet the purpose of stratified evacuation of multiple people.
▼项目地块分析,blocks of the project
B-02用地的五通旅游客运站三期码头是厦门对金门的重要小三通码头之一。建筑功能包含有候船楼、国家口岸监管场所、免税商场等配套功能。采用立体的方式设计交通流线,有效的区分和引导出入境旅客流线,同时合理的组织购物、餐饮、行李运输的流线,使之既连通,又相互独立。
The B-02 site of Wutong tourist terminal phase III is one of the important small three-way terminals from Xiamen to Taiwan.The building’s functions include the waiting building, the national port supervision site, the duty-free shopping mall and other supporting functions.The three-dimensional design of traffic flow lines can effectively distinguish and guide the flow lines of inbound and outbound passengers, and reasonably organize the flow lines of shopping, catering and luggage transportation, so that they are connected and independent from each other.
▼客运三期码头,tourist terminal phase III
▼码头内部空间,interior of the ferry terminal
A-02用地的旅游博览中心作为海峡旅游服务中心的重要组成部分,定位为围绕两岸旅游文化的旅游文化博览建筑综合体,打造宣传民俗文化、茶文化、酒文化等的主题区域。
As an important part of the tourism service center of the straits, the tourism expo center in the land of A-02 is positioned as A building complex of the cross-strait tourism and culture expo, creating A theme area to publicize folk culture, tea culture, wine culture and so on.
A-03用地为旅游会展中心及旅游集散客运、调度中心。会展中心为国家旅游博览会的永久会址,中小型专业性会展项目举办场地,提供功能齐全的中小型展览馆。方案调整后设置了下沉广场,半地下室设置有旅游集散中心、客运站、调度中心及其配套用房。建筑北面留出约30000平方米广场,平时作为共用停车及集散场地,赛时作为国际马拉松赛起跑广场。会展造型以两个相互交织的曲线形体,在态势上形成富有张力的雕塑效果。
A-03 is used for the tourism exhibition center, the tourism distribution and transportation center and the dispatching center.The convention and exhibition center is the permanent site of the national tourism expo, and the venue for medium and small-sized professional exhibition projects.After the scheme is adjusted, a sunken square is set up, and the half-basement is equipped with a tourism distribution center, a passenger station, a dispatch center and its supporting rooms.About 30,000 square meters are set aside in the north of the building, which is usually used as a common parking and distribution site, and is used as the starting square for international marathon.Exhibition modeling with two intertwined curve shape, in the situation to form a rich tension of the sculpture effect.
▼旅游会展中心,与立体交通相结合,tourist conference exhibition center, combining with the three dimensional transportation system
▼会展中心近景,closer view to the conference exhibition center
B-03用地为五星级酒店,定位为海峡两岸、世界各地旅客提供高档次、全海景住宿、餐饮、娱乐、休闲等服务,并拥有厦门本岛唯一的私家沙滩,可供豪华游艇停靠的五星级酒店。
B-03 is a five-star hotel with panorama sea view, which aims to provide high-end service including accommodation, catering, entertainment, leisure for tourists from both sides of the Taiwan Strait and all over the world. It also has the only private beach in Xiamen and a five-star hotel for luxury yachts.
▼酒店外观,external view of the hotel
▼酒店与海滩,hotel and the beach
▼从下沉广场看向酒店,view to the hotel from the sunken plaza
项目配套 | PROJECT SERVICE
五通旅游客运站三期码头设有候船楼、国家口岸监管场所、免税商场等配套功能。旅游博览中心是两岸旅游文化的旅游文化博览建筑综合体,设有民俗文化、茶文化、酒文化等的主题区域。可提供520个机动车位,涵盖480套公寓。旅游会展中心定为国家旅游博览会的永久会址,也提供给中小型专业性会展项目作为举办场地,并提供功能齐全的中小型展览馆。旅游会展中心北面留出约30000平方米广场,平时作为共用停车及集散场地,赛时作为国际马拉松赛起跑广场。佰翔五星级酒店,为海峡两岸、世界各地旅客提供高档次、全海景住宿、餐饮、娱乐、休闲等服务,设有厦门本岛唯一的私家沙滩,可供豪华游艇停靠。可提供426机动车位、592间客房。
Wutong tourist terminal phase iii wharf is equipped with waiting building, national port supervision site, duty-free shopping mall and other supporting functions. The tourism expo center is a building complex of cross-strait tourism culture, with the theme areas of folk culture, tea culture and wine culture.It can provide 520 vehicle Spaces covering 480 apartments. The tourism and exhibition center is designated as the permanent site of the national tourism expo, and also provides small and medium-sized professional exhibition projects as the venue, and provides a fully functional small and medium-sized exhibition hall.About 30,000 square meters are set aside in the north of the tourism and convention center, which is used as a common parking and distribution site in normal times, and as the starting square for international marathon. Baixiang five-star hotel, for the two sides of the straits, all over the world tourists to provide high-grade, full seascape accommodation, dining, entertainment, leisure and other services, with Xiamen island’s only private beach, can be used for luxury yachts.It can provide 426 motor vehicles and 592 guest rooms.
▼酒店大堂,hotel lobby
▼餐厅,restaurant
▼健身房,gym
▼游泳池,pool
▼客房,guest room
▼总平面图,site plan
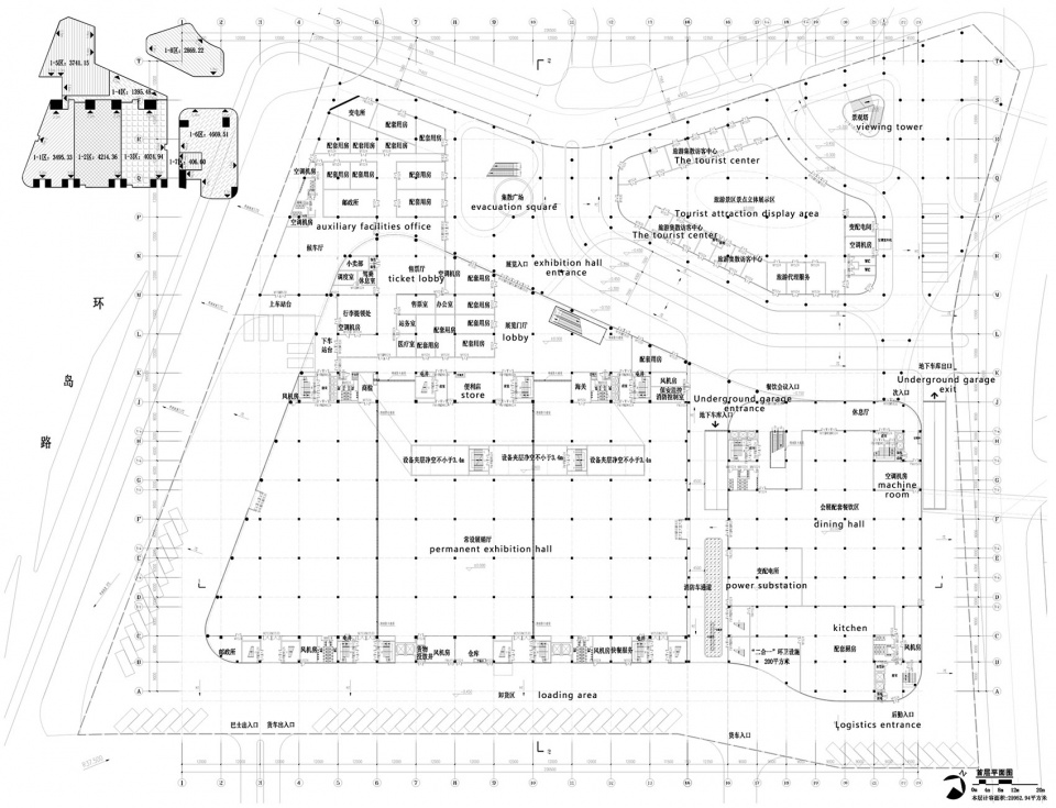
▼会展中心一层平面图,first floor plan of the conference exhibition center
▼博览中心一层平面图,first floor plan of the tourism expo center
▼博览中心标准层平面图,typical floor plan of the tourist expo center
▼酒店一层平面图,first floor plan of the hotel
▼酒店标准层平面图,typical floor plan of the hotel
▼会展中心立面图,elevations of the conference exhibition center
▼博览中心立面图,elevations of the tourist expo center
▼会展中心剖面图,sections of the conference exhibition center
▼博览中心剖面图,section of the tourist expo center


























































