岳阳民用机场航站楼,湖南 / 建筑
航站楼创新性地采用PTFE拉膜结构体系创造出具有独一无二的现代航空港造型,钢结构梭柱与白色拉膜的组合将岳阳的传统景点——潇湘八景之一:“远浦归帆”的意境以现代的方式重新演绎,体现浓郁的现代气息的同时又延续了传统地域文化。
The terminal building is innovative in the use of PTFE film structure system to create a unique modern air port modeling, steel structure shuttle and white film combination re-interpret Yueyang’s traditional attractions one of the eight scenes of Xiaoxiang: “Far port’s returning sail” artistic conception in a modern way, reflecting a strong modern atmosphere at the same time continue the traditional regional culture.
▼陆侧鸟瞰图,aerial view from the departure side
▼空侧鸟瞰图,aerial view from the landing side
▼钢结构梭柱与白色拉膜相结合,a combination of steel structure shuttle and white film
航站楼折型拉膜屋顶向前延伸所形成的建筑入口灰空间,灰空间上方——每组折型拉膜屋顶之间用马鞍弧形的拉膜空间覆盖,于航站楼主立面形成波浪起伏的造型。出港旅客乘公共汽车或小汽车来到宽敞的入口灰空间,一侧为波浪屋檐下水平延伸的站前广场,另一侧为透过V型钢柱和透明玻璃幕墙所见的更为宏伟的航站楼室内大厅,顿时豁然开朗。
The terminal folding film roof extends forward to the form the building entrance ash space, above the gray space between each group of folding film roof is covered with saddle arc film, forming a wave undulating shape in the terminal main façade. Outbound passengers take a bus or car to the spacious entrance grey space, one side is station Square, the other side is more magnificent terminal indoor Hall through the V-steel column and transparent glass curtain wall, suddenly open.
▼主立面形成波浪起伏的造型,the wave undulating shape of the main façade
▼马鞍状的弧形结构在车道上方形成荫蔽空间,the saddle-like structure provides a series sheltered space above the lanes
▼车道边透视图,perspective along the road
▼檐下空间细部,detailed view
室内空间同样充满戏剧化,设计将折型拉膜完全真实的展现出来,形成跌宕起伏的天花界面,每组拉膜之间为梭形的玻璃天窗,为大厅洒满自然光,空间在流动,光影在变化。生机盎然的内部空间,带给旅客美好的乘机体验。膜材的透光特性也大幅降低人工照明的消耗,回应绿色、环保的理念。
Indoor space is also full of drama, the design completely really shows folded film, forming ups and downs ceiling interface, between each group of pull film, there the shuttle glass skylight, providing the hall with natural light, space is in the flow, light and shadow is in the change. Vibrant interior space brings passengers a beautiful flight experience. The transmittance of membrane material also greatly reduces the consumption of artificial lighting, responding to the concept of green and environmental protection.
▼每组拉膜之间为梭形的玻璃天窗,the skylights are installed between each two film structures
单元模块的构型具有弹性扩展的特质,符合未来航站楼扩建的要求,实现岳阳机场的可持续性发展。
The configuration of the unit module has the characteristics of elastic expansion, in line with the requirements of future terminal expansion, to achieve the sustainable development of Yueyang Airport.
▼局部施工过程图,construction phase
▼未来扩建效果图,rendering of the future extension
▼总平面图,site plan
▼首层平面图,ground floor plan
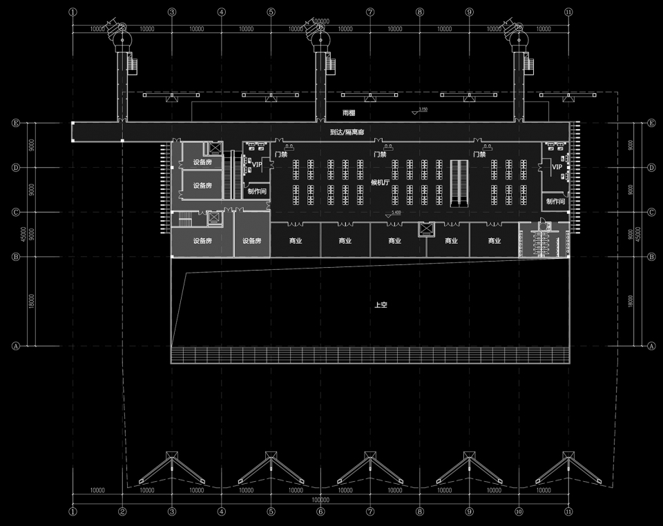
▼二层平面图,first floor plan
▼剖面图,sections
▼设计手稿,design sketch
































