天津科技大学体育馆,天津 / 建筑
天津科技大学体育馆,是在第十三届全运会的号召下建设于高校中的全新场馆。项目位于天津科技大学泰达校区西南,距全运村约58公里,主要由主馆、副馆和风雨操场三个功能单元组成。其中,主馆体育馆定位为甲级馆,具备举办国际单项室内体育赛事和全国综合体育赛事的条件,并同时服务于学校及周边社区,满足训练、教学、集会、文艺演出等各种功能。
The Gymnasium in Tianjin University of Science and Technology is a new gym built in the university under the call of the 13th National Games. Located in the southwest of Tianjin University of Science and Technology, about 58 kilometers from the National Games Athletes Village, the project consists of three functional units: the main gymnasium, the secondary gymnasium and the stormproof playground. Among them, the main gymnasium is positioned as a grade A one, with the conditions to hold international single indoor and national comprehensive sports events, and also serves the school and surrounding communities to meet various functions such as training, teaching, assembly, and theatrical performances.
▼鸟瞰图,aerial view
项目的设计明确了全运会的赛时使用与高校赛后使用并举的目标,使设计既符合全运会比赛的专业性、高标准,又满足高校长期使用的多功能、轻维护需求。
The design of the project clarifies the goals to guarantee the use of National Games and the daily use of the university after the Game, so that the design meets the professional and high standards of the National Games, and meets the multi-functional and easy-to-maintain needs of the university for long-term use.
▼总平面分析图,general plan analysis
设计巧妙地在用地中心多向轴线的交汇处引入圆形开敞空间,成功处理好场地中多个方向的空间和景观轴线关系,灵活地将建筑形式、使用功能以及校园景观地融为一体,给刚硬的体育馆带来一丝圆润柔美的动感气息,使总平布局在理性和谐的前提下不失有机。
The design subtly introduces a circular open space at the intersection of the multi-axis of the center of the site, successfully handles the relationship between the space and the landscape axis in multiple directions in the site, and flexibly integrates the architectural form, the function of use and the landscape of campus. It brings a sleek and dynamic atmosphere to the rigid gymnasium, so that the general layout is organic under the premise of its rationality and harmony.
▼设计在场地轴线交汇处引入圆形开敞空间
the design subtly introduces a circular open space at the intersection of the multi-axis of the center of the site
可开展多种户外活动的圆形露天剧场,外周是连接了主馆、副馆、风雨操场的三层休闲环廊。有活动时,环廊可成为剧场的一圈楼座,并提供水吧、健身、阅读、交往等休闲功能,成为共享服务中心,极大地扩展了体育馆的功能内涵。
The amphitheatre offers a venue for a variety of outdoor activities, with a three-storey leisure round corridor that connects the main gymnasium, the secondary gymnasium, and the stormproof playground connect to it. When there are activities, the corridor can become an extended part of the theater, and become a shared service center, providing leisure functions such as water bar, bodybuilding ,reading, and communication, which greatly enriches the functional connotation of the gymnasium.
▼休闲环廊东北角,the northeast side of Leisure Round Corridor
▼风雨操场东北角,the northeast perspective of the Stormproof Playground
▼主馆东南角,the southeast corner of Main Gymnasium
▼主馆西侧滑板公园,the Skate Park in the west corner of Main Gymnasium
▼主馆西北角,the northwest corner of the Main Gymnasium
体育馆的各场馆单元围绕此圆形开敞空间扇形展开,并顺应校园路网和边界,生成简洁而理性实用的方形体量,构成内圆外方的总体布局形式。
The units of the gymnasium are fan-shaped around this circular open space, and follows the road and boundary of the campus to generate a simple, rational and practical cube , which constitutes the general layout form with a circle inside and squares outside.
▼露天剧场,the outdoor Amphitheatre
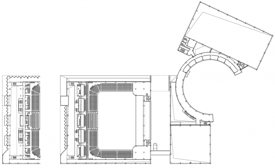
体育场馆在功能模式上具有针对学校具体使用的相应设计策略。主馆采用了三边固定看台加活动坐席、第四边全活动坐席的非对称设计。第四边活动坐席下布置了电动升降舞台,可以在看台、舞台、主席台、训练场地之间转换。观众席的布置形式使体育馆既可满足各种正规比赛的场地要求,也转变为举办各种集会、文艺汇演的大型礼堂,可满足全校一届学生在此举办典礼。主馆共有坐席4980个,其中活动坐席占比达37%,使布置具有充分的灵活性。同时,其比赛附属用房也采用通用可变的弹性设计,在赛后都可转换成学生活动用房,大大地提高了赛后的场馆使用率。
The gymnasium has a corresponding design strategy for the specific use of the school in the functional mode. The main gymnasium adopts an asymmetric design with fixed seats and active seats of three sides and all active seats of the fourth side. An electric lifting stage is arranged under the seats of the fourth side, which can be converted among the stands, the stage, the rostrum and the training ground. The arrangement of the audience seats not only enables the gymnasium to meet the requirements of various formal competitions but also can be transformed into a large auditorium for various gatherings and cultural performances, which can accommodate all students in one grade to attend the ceremony. The main gymnasium has 4,980 seats in total, of which 37% are active seats, making the arrangement of the seats fully flexible. At the same time, the affiliated rooms of competition also adopt a universal and flexible design, which can greatly improve the utilization rate of the venues by converting into activity rooms for students after the competitions.
▼首层平面图,ground floor plan
▼主馆西侧,the west corner of Main Gymnasium
▼主馆正立面,exterior view of Main Gymnasium
▼主馆入口,main entrance
副馆位于主馆与风雨操场中间,与主馆运动员区直接联系,它在赛时与主馆组成完整的甲级馆功能,在平时则和风雨操场、休闲环廊组成学生体育活动中心,灵活转换平时和赛时使用模式。
The secondary gymnasium is located between the main gymnasium and the stormproof playground ,which is directly connected with the athletes’ area of the main gymnasium. It forms a complete grade A gymnasium function with the main gymnasium during the Games, while forms a student sports and activity center with the stormproof playground and the leisure round corridor in normal time, which means the gymnasium could be flexibly switched between competition mode and normal mode.
▼主馆和副馆东南立面,the southeast elevation of Main Gymnasium and Secondary Gymnasium
天津科技大学体育馆简洁方正的造型传达了高校教育希冀的求真淳朴、含蓄典雅风格。立面采用了陶土板干挂,预制清水混凝土百叶板,以及风琴状的玻璃幕墙,形成富有韵律感的垂直线条,产生丰富的光影变化。在化解体育馆庞大体量的同时,经济、耐久、易洁的材料契合了高校高强度、轻维护的使用要求。
The simple and square shape of the Tianjin University of Science and Technology conveys the simple and elegant concept that college education aspires to express. The facade is composed of a series of terracotta panels, concrete louvers, and organ-shaped reflection glass curtainwalls, creating rhythmic vertical lines and rich variations with light and shadow. While dissolving the huge volume of the stadium, the economic, durable and easy-to-clean materials meet the requirements of high-intensity and easy-maintenance of the university.
▼立面采用了陶土板干挂,预制清水混凝土百叶板,以及风琴状的玻璃幕墙
the facade is composed of a series of terracotta panels, concrete louvers, and organ-shaped reflection glass curtainwalls
▼立面细部,detailed view
经过第十三届全运会艺术体操和蹦床项目比赛场地的检验,以及学校近几年的使用,天津科技大学体育馆总体上获得了各方好评,已然成为了天津科大充满活力的校园生活中心。
After the test of being the venues of the rhythmic gymnastics and trampoline project in the 13th National Games, as well as the school’s use in recent years, the Tianjin University of Science and Technology Gymnasium has won praises from all parties, and has become the vibrant campus center of the school.
▼主馆内部,Main Gymnasium interior
▼风雨操场内部,Stormproof Playground interior
▼副馆内部,Secondary Gymnasium interior
▼总平面图,masterplan
▼首层平面图,plan level 1
▼二层平面图,plan level 2
▼三层平面图,plan level 3
▼剖面图,section







































