土楼改造,福建 / 建筑
背景 | Context
在一千多年前的中国南方,激烈好斗的客家文化催生了大型内向式土制建筑(土楼)的出现。日渐扩增的大家族修建了厚土墙来达到集体防御的目的,并利用建筑中庭,为农耕活动提供了一个共享的开放空间。在传统的土楼中,每一户独立家庭的房间竖向分布,每个房间都可以通向共用的走廊和阳台。因此,土楼中的大量个体空间和集体空间之间建立了一种独特的联系。随着时间的推移,越来越多的土楼点缀在连绵的景观之中,它们之间的新关系也由此建立。尽管土楼已经成为农村集体居住的一种传统形式,但人们开始在土楼中引入不同的空间功能:譬如用以进行宗教活动,或是作为市集及学校。它们体现了一种“原始都市”的状态——集体空间不仅为私人所用,甚至也为公共机构提供场所。
Over a 1000 years ago, large introverted earthen buildings (tulous) of the Hakka culture emerged in southern China in a fiercely combative culture. Extended families built thick earthen walls for collective defence, while maintaining a shared open space for farming activities in the centre. Each family in the traditional tulou live in a vertical section of rooms, accessed through a shared corridor and balcony. Thus, the building establishes a specific relationship between a number of individual spaces and a collective space. Over time, as more and more tulous dotted across the landscape, new relationships started to form between them. Although the tulou has emerged as a traditional form of collective housing in the rural, people began introduce different functions: religious activities, marketplaces or schools. They embody a proto-urban condition where the collective spaces were not only used privately but as public institutions.
▼项目概览,overview
如今,土楼常常于密集且杂乱的构筑物之间被发现。居民们想要建造私人住宅的强烈意愿使得土楼外部、土楼与土楼之间的空间被遍布中国大地、大同小异的混凝土和砖结构房屋所填满。从某种程度上来说,土楼展现了在传统农村中零星出现的城市建筑,到新城市背景下的旧有农村建筑的矛盾性转变。尽管保存了仅剩的中间庭院作为开放空间,土楼仍无法全部满足当代的居住需求。许多土楼正在经历个体化改造或是被逐渐废弃。然而,并非所有人都否定了土楼的概念。由于居住在土楼里的最大局限是无法满足居民适应或者扩建单独的房屋的需求,人们采取了非常极端的方式来扩建他们的传统住宅。例如从土楼的墙外直接插入现代房屋,或是从截面方向上以各自的风格和样式重建土楼。但这些改造都保留着原有的集体居住足迹。
Today, tulous can be found surrounded by a dense clutter of structures. The spaces outside and in-between the tulous are filled with concrete and brick houses that can be found across China, fueled by the desire of the residents to build individual houses. In a way, the tulou describes a paradoxical transformation from an urban building in the rural, to a rural building in a newly surrounding urban context. As the tulous do not correspond with contemporary desires of dwelling, despite preserving the only available open space behind their protective walls, many of them are experiencing individual transformations or are being abandoned. However, not all have dismissed the tulou’s notion. Since the greatest limitation to living in a tulou is the inability to adapt or expand the individual house, residents have found radical ways to expand their house. Such as directly plugging in a modern house from the outside of the tulou wall, or rebuilding the tulou section by section each with individual style and layout, but retaining the collective footprint.
▼项目鸟瞰,aerial view
设计策略 | Design strategies
为了适应个人与集体,农村与城市之间不断变化的关系,城村架构提出一系列可能的干预措施,通过项目上,结构上和空间上的转变,在当下的人地关系中,寻找集体生活的新理由。我们的目的是赋予土楼新生命,使其再次成为集体生活的新中心。为了将用于集体居住的旧房屋转变成创造集体体验的新居所,我们针对不同的土楼设计了不同的原型;墙体,地面,楼梯,拐角,塔,屋顶,入口,桥梁,窗户。为适应房屋的不同部分,每个原型分别在形状,比例,开口,密度和高度方面挑战土楼的概念。目前已建成的其中两种策略是:位于墙体外部的插件和位于庭院内部的塔。
Responding to the changing relationship between individual/collective and rural/urban, Rural Urban Framework proposes a series of possible interventions that radically rethink the tulou through programmatic, structural and spatial transformations towards a new commons – finding new reasons for living together. The aim is to give a new life to the tulou, making it once again centre for a new form of collectivity. To transform the old house for collective living into a new house for collective experience, we designed different prototypes in relation to different tulous; the Wall, the Ground, the Stairs, the Corner, the Tower, the Roof, the Entrance, the Bridge, the Window. Each prototype refers to a specific part of a house and challenges the idea of the tulou experimenting in shape, proportions, openings, density and height. Two of these strategies have currently been built: the Plug-in on the outside and the Tower on the inner courtyard of the tulou.
▼针对不同的土楼设计了不同的原型;墙体,地面,楼梯,拐角,塔,屋顶,入口,桥梁,窗户
different prototypes in relation to different tulous; the Wall, the Ground, the Stairs, the Corner, the Tower, the Roof, the Entrance, the Bridge, the Window
▼墙体外部的插件设计概念动图,the Plug-in on the outside design concept gif
插件 | Plug-in
当地政府已经将这个土楼改建为一个儿童学校,并且对其进行了一些个体层面的改造,例如加入了新建的厕所。 我们的这个原型将现有的一扇小窗转变为一个新的入口空间,从而将一个新的公共图书馆引入了这所土楼学校。 横向漏斗形的楼梯插在扩建后的窗口中,从而引导人们在阴凉处坐下,阅读和休息,同时它还可以作为露天剧场,方便人们在外部的庭院活动。“插件Plug-In”重新审视了以小型开口为传统特征的厚防御用墙,通过翻转土楼内外关系,将土楼面向新的外部环境敞开。
The Plug-in rethinks the thick defensive wall traditionally characterized by small openings by turning the tulou inside out, opening it to the new surroundings. This tulou has been renovated by the local government into a children’s school, and individual transformations have already taken place, such as the plug-in of toilets. This prototype transforms a small window into a new entrance, introducing a public library to the existing school. The funnel staircase plugs into the enlarged opening, inviting people to sit, read and rest in the shade, while also serving as an open amphitheatre for activities in the exterior courtyard.
▼插件概览,the Plug-in overview
▼将现有的一扇小窗转变为一个新的入口空间,transforms a small window into a new entrance
▼鸟瞰题,aerial view
▼横向漏斗形的楼梯插在扩建后的窗口中,从而引导人们在阴凉处坐下,阅读和休息
the funnel staircase plugs into the enlarged opening, inviting people to sit, read and rest in the shade
▼同时它还可以作为露天剧场,方便人们在外部的庭院活动,also serving as an open amphitheatre for activities in the exterior courtyard
“插件Plug-In”是由两个全木结构的主要构件和五层结构部件组成的,它们依据特定的空间层次共同构造而成。固定的外框架由传统的圆柱和接点构成。它形成了一个可供漏斗形的楼梯悬挂其上的脚手架。 楼梯则由一系列更轻的木结构组成。从外部可以看到薄的垂直和水平构件,而包裹楼梯的铺面板则放在内部。这样便形成了一个可以从内部形成框景效果的盒状空间,同时也能在人们走出新的阅览室时,将视线引向光线来处。
The Plug-in is entirely built of timber, comprising two main parts and five layers of structure that work together according to a specific hierarchy. An anchored outer frame is built with traditional circular columns and joints. It forms a scaffolding from which the funnel staircase hangs. This is comprised of a much lighter set of timber structure. Thin vertical and horizontal elements are revealed on the outside whilst the decking that encases the stairway are placed on the inside. This results in an enclosed box that frames the view of the landscape while sitting inside it or guides the eye towards the light while going out of the new reading room.
▼插件模型,the Plug-In model
▼插件结构示意图,the Plug-In structure diagram
▼固定的外框架由传统的圆柱和接点构成,an anchored outer frame is built with traditional circular columns and joints
▼将一个新的公共图书馆引入了这所土楼学校,introducing a public library to the existing school
▼楼梯则由一系列更轻的木结构组成,the staircase is comprised of a much lighter set of timber structure
▼堆放书籍的台阶,the staircase as reading place
▼由阶梯进入土楼内部,from the stair to the building
塔 | Tower
“塔”的设计通过将传统的集体庭院空间抬升,并以通天式的螺旋楼梯连接原有楼层,对土楼的公共空间进行了重新思考。新的公共功能由此被引入。变化的台阶节奏引导人们在楼梯上坐下,阅读,甚至喝茶。一座桥与土楼的上层外廊相连,由此形成了一个公共阅读室,而塔顶则成为观赏风景的地方。
The Tower rethinks the public space of the tulou by raising up the traditional collective courtyard and connecting each floor through a spiral stairway to the sky. New public programmes are introduced along the way. The changing rhythm of the steps encourage people to sit, read, or even drink tea inside the tower. The bridges connect to the upper corridor of the tulou which becomes a public reading room, whilst the top of the Tower becomes a place to contemplate the view.
▼鸟瞰图,aerial view
▼塔概览,the Tower overview
▼将传统的集体庭院空间抬升,并以通天式的螺旋楼梯连接原有楼层
raising up the traditional collective courtyard and connecting each floor through a spiral stairway to the sky
▼变化的台阶节奏引导人们在楼梯上坐下,阅读,甚至喝茶
the changing rhythm of the steps encourage people to sit, read, or even drink tea inside the tower
▼一座桥与土楼的上层外廊相连,由此形成了一个公共阅读室
the bridges connect to the upper corridor of the tulou which becomes a public reading room
▼最后一级台阶与内部屋顶的屋檐维持同一水平高度,从而形成了一个可以供人们端坐在受遮蔽的庭院内观赏土楼外地平线风景的平台
the last step meets at the same height of the interior roof eave, forming a platform that offers a view of the horizon whilst still being inside the sheltered courtyard of the tulou
▼塔的入口,the base of the tower
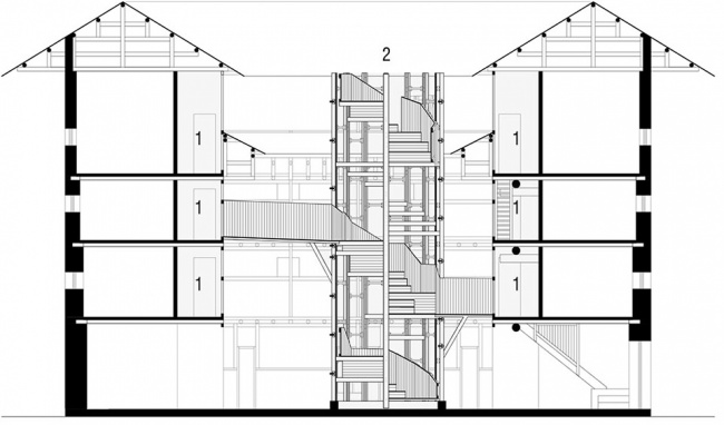
拥有500年历史的土楼外廊结构的重要性则体现在这座新的高12米的木塔上。新旧结构之间的连续木栏杆由环绕着一根中央立柱的螺旋楼梯连接起来,每层土楼则由一系列桥梁与楼面相连。与“插件Plug-In”一样,该结构也同时面向外部空间。 铺面板沿着台阶放置在栏杆的内部,而最后一级台阶与内部屋顶的屋檐维持同一水平高度,从而形成了一个可以供人们端坐在土楼宁静且受遮蔽的庭院内观赏土楼外地平线风景的平台。
The materiality of the 500 year old tulou corridor structure is reflected in the new 12 meter high timber Tower. A continuous timber railing between old and new is connected by the spiral staircase that wraps around the central column. Each floor is connected by a series of bridges. As with the Plug-in, the structure is exposed to the outside. The decking is placed on the inside of the railing along the steps. The last step meets at the same height of the interior roof eave , forming a platform that offers a view of the horizon whilst still being inside the calm and sheltered courtyard of the tulou.
▼塔模型,the tower model
▼每层土楼由一系列桥梁与楼面相连,each floor is connected by a series of bridges
▼新旧结构之间的连续木栏杆由环绕着一根中央立柱的螺旋楼梯连接起来
a continuous timber railing between old and new is connected by the spiral staircase that wraps around the central column
▼由塔通向土楼的桥梁,the bridge that connects the tower with the Tulou
共同建造 | Building together
作为赛马会-香港大学城村设计项目的一部分,城村架构对插件和塔的方案进行设计,并邀请学生和木匠在中国福建的蓝田村合作进行了建造。来自香港大学和香港知专设计学院的学生们,与木匠一起学习传统木工艺,并和当地村民探讨土楼面对城市化时所面临的挑战。“集体”的新形式不仅通过有形的土楼改造体现,也同时在不同人群和机构交换不同类型知识的共同努力中展现出来。
The Plug-in and Tower strategies, designed by Rural Urban Framework, were built in Lantian Village (Fujian, China) by students in collaboration with carpenters as part of the Jockey Club HKU Rural Urban Design Project. Students from The University of Hong Kong and The Hong Kong Design Institute engaged with both carpenters and local residents to learn about both traditional timber craftsmanship and the challenges that villagers and their tulous face when confronted with urbanization. New forms of collectivity are not only expressed by the physical adaptations of the tulou, but reveal themselves in the collaborative effort of different people and institutions exchanging diverse forms of knowledge.
▼传统木工艺的引用,traditional timber craftsmanship
▼建筑细部,details
▼建造过程,during the construction
▼插件总平面图,Plugin site plan
▼插件平面图,Plugin floor plan
▼插件剖面图,Plugin section
▼塔总平面图,Tulou site plan
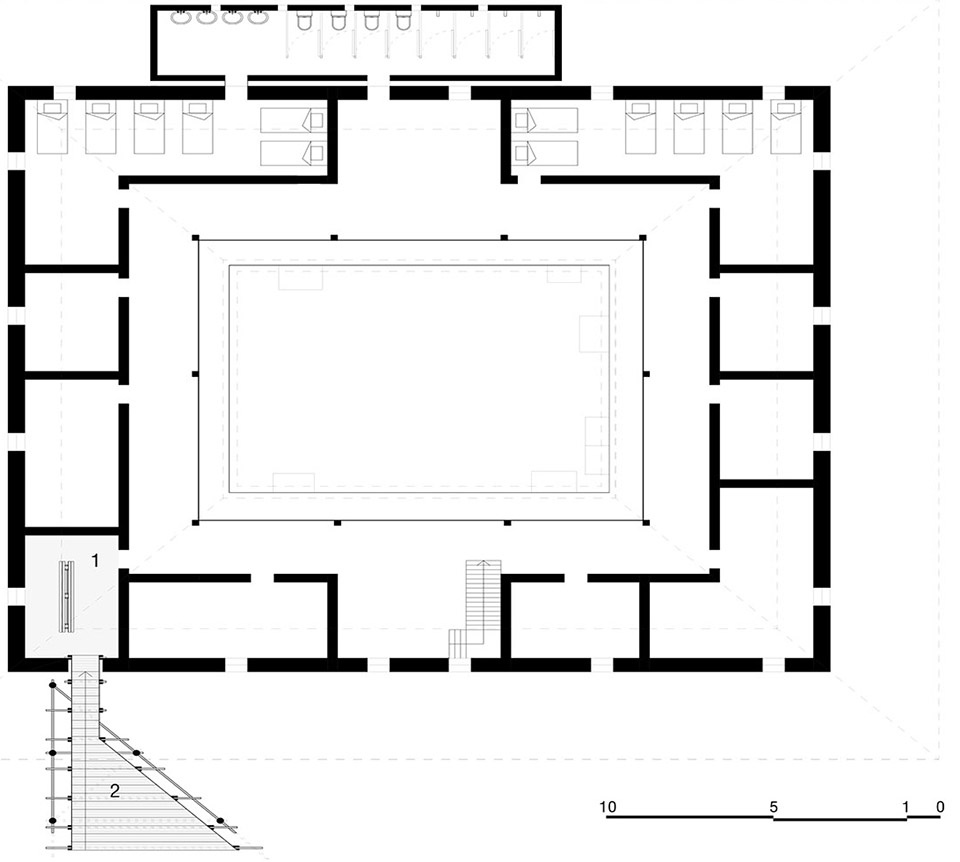
▼塔平面图,Tower floor plan
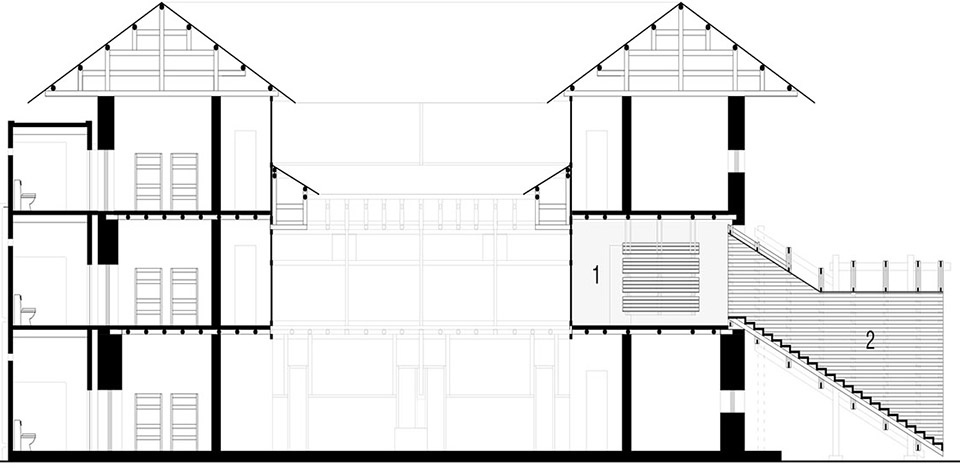
▼塔剖面图,Tower section





















































