重庆垫江巴谷宿集建筑设计,重庆/建筑
场地:海拔800米的自然村,可望见县城
Site: A natural village of 800 meters above sea level, with a view of the county town
2019年,受当地政府的邀请,第一次来垫江。垫江县位于重庆主城区东北方向,距离约120公里。项目场地位于垫江县桂阳街道十路村的一个自然村民组——雷家湾,这里属于明月山脉,海拔约800米,夏季凉爽,是避暑的好去处。场地西面背山较高,两侧有小山环抱,东南方向是一个豁口,可以看到8公里外的县城,可谓地形优越。更难得的是,场地中有一片马蹄形的稻田,原村民的生产、生活就围绕这片稻田展开,半亩地、一头牛,日出而作、日落而息……
In 2019, the architect came to Dianjiang County for the first time at the invitation of the local government. Dianjiang County is located in the northeast of Chongqing, about 120 km away. The project site is located at Leijiawan, a natural villager group in Shilu Village, Guiyang Street, Dianjiang County. It belongs to the Moon Mountain Range, with an altitude of about 800 meters, a cool and comfortable summer resort. In the west of the site, the back mountain is high, surrounded by hills on both sides. And there is a gap in the southeast where man can see the county town 8 kilometers away, a superior terrain. What’s more, there is a horseshoe-shaped paddy field in the site. The production and life of the original villagers revolve around this paddy field with half an acre of land and a cow, working at sunrise and resting at sunset.
▼鸟瞰,Bird’s-eye view
除了具有恬淡的乡村文化景观外,场地周边还有历史古迹,其中最具名气的是巴蜀古道,相传这里才是为杨贵妃运送荔枝的路径,因此也称之为“荔枝古道”。现在拾阶而上,还可以看到当年的界碑和历代文人墨客留下的摩崖石刻。
In addition to the tranquil rural cultural landscape, there are also historical sites around the field. The most famous one is the Ba Shu Ancient Road. It is said that this is the way to transport litchi from south China to the royal capital city of Chang’an over thousands of miles for Lady Yang Yuhuan, the most beloved concubine of the Emperor Xuan Zong in Tang Dynasty. So, it is also called the Litchi Ancient Road. Nowadays, you can still see the boundary stele of that time and the cliff stone carvings left by the literati through the years.
▼巴谷宿集全景,Panorama of Dianjiang Bagu·Suji
布局:保留稻田,建筑围绕稻田布置
Layout: To arrange the buildings around the reserved paddy field
新建筑的功能是民宿,而且是多个民宿品牌的集合。根据运营方的要求,一期建筑将包含两个民宿品牌,他们拥有独立的区域,服务不同的人群。两个民宿共用一系列公共空间,包括:书吧、室外游泳池和餐厅等。
在了解了上位规划后,建筑师发现稻田在未来的规划中是村庄发展用地,因此即使在该区域建设也不会涉及占用耕地的问题。但问题是,这样的处理是否是最好的选择?从建设难度的角度,在稻田区域建造肯定更为有利,但这样做既破坏了农业景观,又让项目失魅。最终,建筑师、建设方和运营方都认为应该保留稻田,将其作为未来民宿的核心。
The function of the new buildings is B & B, and a collection of several B & B brands. According to the requirements of the operator, the first phase of the architecture will include two B & B brands, which have independent areas and serve different groups of people. The two B & B houses share a series of public spaces, including a book bar, an outdoor swimming pool and a restaurant.
After understanding the upper planning, the architect found that the paddy field is the village development land in the future planning. So, even implementing the construction in this area, it will not occupy the arable land. But the question is, is this the best choice? From the point of view of the difficulty of construction, it is certainly more advantageous to build in the paddy field area. But doing so not only destroys the agricultural landscape, but also makes the project lose its charm. In the end, the architect, the contractor and the operator all agreed that the paddy field should be retained as the core of future B & B.
▼功能布局,Function layout
建筑围绕稻田布置,形成空间上的犄角之势和视觉上的互看。这类似于中国园林里建筑之间的“看与被看”关系。稻田的角色如同园林中的水面,它既是观看的主体,也可为人在空间中的活动提供主题。民宿投入使用后,运营方围绕稻田开展的一系列活动,如收割季、稻田瑜伽等也印证了这点。
The buildings are arranged around the paddy field, forming the momentum of hemming horns in the space and mutual viewing in the vision. This is similar to the relationship between “seeing and being seen” in traditional Chinese gardens. The role of the paddy field is like the water surface in the garden which is not only the main body of watching, but also provides a theme for people’s activities in space. Since the B & B was put into use, a series of activities have been carried out by the operator around the paddy field that confirmed this point., such as harvest season, paddy yoga and so on.
▼保留稻田,建筑围绕稻田布置,Buildings are arranged around the preserved paddy field
客房和接待区被安置在西侧和南侧的山脚下,在具备良好视野的前提下,尽量不占用田地。场地中原有道路向西挪动,从新建筑和其背后的山林之间通过,使新建筑与稻田之间不受交通的打扰,同时也便于后期运营中的封闭管理。书吧和室外大泳池布置在一起,它们位于稻田北侧,背后有树林作为依托。餐厅位于场地东侧,它是唯一一栋修建在稻田中的建筑,但采用了地埋方式,被隐藏在稻田中间。在场地核心区外围东南角的山林中,还建造有一座瞭望塔,它既可以用于登高观景,也兼做森林防火之用。
The guest rooms and reception area are located at the foot of the mountain on the west and south sides, and try not to occupy the land on the premise of having a good view. The original road in the site was moved westward, passing between the new building and the mountain forest behind it, so that the traffic between the new building and the paddy field is not disturbed, which is also convenient for the closed management in the later operation. The book bar and the outdoor swimming pool are arranged together, located on the north side of the paddy field, with the forest behind as the backing. The restaurant is located in the east of the site. It is the only building built in the paddy field, yet buried in the middle of the paddy field. In the southeast corner of the core area of the site, a watchtower is also built, which can be used not only for climbing and sightseeing, but also for forest fire prevention.
▼交通流线组织 & 景观视线,Organization of traffic flows & Landscape views
▼飞茑集民宿,建筑与老树、稻田和谐共处,StrayBirds B&B, buildings co-exist with old trees and paddy field in harmony
▼元白民宿与餐厅,Yuanbai B & B and restaurant
▼掺望塔, Viewing tower
客房:因形就势,平静实用
Guest rooms: Adjusted to local conditions, calm and practical
因为运营的要求,需要设计足够数量的客房(共25间);但为了不破坏环境,建筑被限制在有限的范围内建设,这就给建筑设计带来了难题:如何在有限的场地内创造尽可能多,且舒适的客房,同时建筑形体还不能过高。
Because of the requirements of operation, a sufficient number of guest rooms (totally 25 rooms) need to be designed But in order not to damage the environment, the building is limited to a range of construction, which brings a problem to the architectural design: how to create as many comfortable guest rooms as possible in the limited site while the architectural shape should not be too high at the same time.
▼民宿背靠山林布置,面向稻田,B&B arranged backing onto mountain forest and facing paddy field
客房分为两个区域,分别对应两个不同的民宿品牌——飞茑集和元白。飞茑集位于场地原宅基地(原建筑因质量问题被拆除)位置上,面向稻田和山的豁口,具有最好的观景面。客房共三层,12间,入口层和二层采用背廊式布局,保证了客房都面向稻田。
Guest rooms are divided into two areas, corresponding to two different B & B brands, StrayBirds and Yuanbai. StrayBirds is located in the site of the original house base (the original building was demolished due to quality problems), facing the gap of paddy field and mountain, with the best view. There are 12 guest rooms on three floors: The entrance floor and the second floor adopt the back porch layout to ensure that all rooms face the paddy field.
▼飞茑集民宿首层的室外平台和浅水池,Outdoor terrain and shallow pool on 1st floor of StrayBirds B&B
▼露台成为户外休闲的绝好地方,Terrace as wonderful place for outdoor leisure activities
负一层并不是地下,而是利用场地原有高差形成的错层。负一层和入口层在剖面上错开,负一层的屋顶正好成为入口层的室外平台。这里建筑师除了阳台外,还设计了一个联通的浅水池,在为客房提供舒适小环境的同时,也增加了室外活动的趣味性和建筑的视觉性。
The first floor is not underground, but a staggered floor formed by using the original height difference of the site. The first floor and the entrance floor are staggered on the section, and the roof of the first floor just becomes the outdoor platform of the entrance floor. In addition to the balcony, the architect also designed a connected shallow pool, which not only provides a comfortable environment for the guest rooms, but also increases the interest of outdoor activities and the visual quality of the building.
▼民宿负一层的天井,Patio on basement floor of B & B
错层的处理也使建筑在视觉上分为两段,弱化了建筑总高三层给人的压迫感。飞茑集客房南侧有一棵老树,它携带了原场地的场所记忆。建筑师刻意保留了老树,建筑邻树而建,形成了一种共生关系。树下利用木平台与负一层的屋顶浅水池相连,成为户外休闲的场地。
The treatment of staggered floors also makes the building visually divided into two sections, weakening the oppressive feeling of the total height of three floors. There is an old tree on the south side of the guest rooms of StrayBirds, which carries the memory of the original site. The architect deliberately kept the old tree, and the building is built next to it, forming a symbiotic relationship. The wooden platform under the tree is connected with the shallow pool on the roof of the first floor, which becomes an outdoor leisure site.
▼民宿底层和上面两层错开,减小建筑的尺度 ,Bottom and upper floors of B & B are staggered to reduce scale of building
民宿元白主要位于稻田南侧的山脚下,由3栋二层的建筑组成。建筑外观朝向稻田的一面使用落地玻璃,将好的景观引入客房,分体式的布局保证了各客房之间的私密性,以及“家庭式”的体验感。
The Yuanbai B&B is mainly located at the foot of the mountain on the south side of the paddy field and consists of three two-storey buildings. Floor-to-ceiling glass windows are equipped on the side of the building facing the paddy field to introduce the good landscape into the guest rooms. The split layout ensures the privacy between the guest rooms and the sense of “family style” experience.
▼民宿区域,B&B area
客房的建筑外观总体朴素平静,不刻意追求形体的雕塑感和现代性。建筑以双坡顶为主,出檐深远,回应了垫江地区多雨的气候条件。墙面使用了新型土坯墙材料,在具有传统民居外观的前提下,保证了后期维护低成本的诉求。
The external feeling of the guest rooms is simple and calm, and the sculptural sense and modernity of the body are not pursued. The building is mainly of double slope tops with far-reaching eaves, responding to the rainy climate in Dianjiang area. The new adobe wall material is used on the wall, which ensures the demand of low maintenance cost under the premise of traditional residential appearance.
▼民宿使用了场地原有的老石料和木头,Old stone and wood of the original site are used in the B&B
书吧和泳池:对场地和传统民居的转译
Book bar and swimming pool: Translation of venues and traditional dwellings
除了客房和接待区,本项目中还有一些小建筑,他们分散布置在场地中,在功能上是民宿的公共配套,在精神层面上他们起到点景的作用,与环境景观一起定义了项目的整体气质。
In addition to guest rooms and reception areas, there are also some small buildings in the project, which are scattered in the site. In terms of function, they are the public supporting facilities of B & B, and in terms of spirit, they play the role of scenery staffage, defining the overall temperament of the project together with the environmental landscape.
▼环抱稻田的书吧、泳池和餐厅,Book bar, swimming pool and restaurant surrounding paddy field
▼书吧、泳池与元白民宿和餐厅相对而望,Book bar, swimming pool stand face to face to Yuanbai B & B and restaurant
书吧的功能包含图书馆和水吧,它位于这个场地的北侧,与室外大泳池毗邻,和民宿元白的客房相对。这座建筑拥有一个大尺度的屋顶,这是对本地传统民居超尺度屋顶的一种转译。在垫江,传统民居经常会将厢房一侧的屋顶与其背后的厨房、猪圈屋顶连为一体,构成一个连续的,檐口接近地面的大屋顶。建筑师认为这是该地区极具特征性的建筑元素,就将其采样、适当变形,运用到书吧的设计中。书吧的双坡屋顶被分开,且不对称,面向稻田的屋顶檐口被刻意压低,形成一个超常规的屋顶形式,给建筑一种独特的气质:平静的不凡。压低的檐口框选出来的水平构图,将人的视线引向稻田,客房和餐厅,人坐在书吧中可以更集中的观想当下的风景。
The function of the book bar includes a library and a water bar, which is located on the north side of the venue, adjacent to the outdoor swimming pool and opposite to the guest room of the Yuanbai B & B hotsel. The building has a large-scale roof, which is a translation of the super scale roof of the local traditional residence. In Dianjiang, traditional dwellings often connect the roof on one side of the wing room with the kitchen and pigsty roof behind it to form a continuous roof with eaves close to the ground. The architect thinks that this is the most characteristic architectural element in the area and applies it to the design of the book bar. The double slope roof of the book bar is separated and asymmetric, and the cornice of the roof facing the paddy field is deliberately lowered, forming a unconventional roof form that gives the building a unique temperament: calm and extraordinary. The horizontal scenery composition enframed from the low cornice leads people’s eyes to the paddy field, guest rooms and restaurants. People can enjoy the current scenery more intensively by sitting in the book bar.
▼书吧轴侧爆炸图,Exploded axonometric view of book bar
▼书吧夸张的大屋顶借鉴了本地传统建筑语汇,Exaggerated roof of book bar learns from local traditional architectural vocabulary
▼稻田中的小径连接书吧和餐厅,Path in paddy field connects book bar and restaurant
室外泳池是在原场地鱼塘的基址上改造而成的。这样的处理既减少了土方量,又让改造前后的图景形成了戏剧性张力。当今,无边泳池已是高端民宿的标配,建筑师希望创造一个“稻田中”的无边泳池。随着后续农业景观的完善,泳池将与稻田更紧密的结合,闻着稻香,手可触及到稻穗的游泳体验,想来还是很浪漫的。
The outdoor swimming pool is reconstructed on the original site of the fish pond. This kind of treatment not only reduces the earthwork, but also forms dramatic tension of the scenery before and after the transformation. Today, infinity swimming pool has become the standard configuration of high-end B & B. The architect hopes to create an infinity swimming pool “in paddy field”. With the improvement of the follow-up agricultural landscape, the swimming pool will be more closely combined with the paddy field. The swimming experience of smelling the fragrance of rice and touching the rice ears would be so romantic.
▼从泳池方向看书吧,Book bar seen from swimming pool
▼从泳池方向看飞茑集民宿,StrayBirds B&B seen from swimming pool
餐厅:隐于稻田,迎接日出
Restaurant: Hidden in paddy field to welcome sunrise
现有餐厅的规模很小,在二期大餐厅完成后,它将主要承担小型的特色餐饮服务。在设计之初,建筑师希望在场地东侧,山豁口处建造一栋小建筑,它一方面起到点景的作用,另一方面可以为客人提供在崖口观看云海、日出、远眺县城的落脚点。
The scale of the existing restaurant is very small which, after the completion of the second phase of the large restaurant, will mainly undertake small-scale special catering services. At the beginning of the design, the architect hoped to build a small building in the east side of the site, at the gap of the mountain. On the one hand, it could play the role of scenery staffage. On the other hand, it could provide guests with a foothold to watch the sea of clouds and sunrise and to overlook the county.
▼餐厅是观日出的绝佳地点,Restaurant as a great place to watch the sunrise
建筑被选在稻田边缘建设,为了不破坏稻田的整体景观,建筑师利用地形的高差,将建筑埋入地下,隐于稻田中。建筑形态尽量简洁,平面呈折线形,扣入场地中。单坡顶,混凝土结构,朝向崖口的立面采用落地玻璃,让建筑的室内外保持通透。屋顶采用反梁,室内天花保持水平。没有使用常规的屋面处理方式,而是采用无土栽培方式种植了水稻,此时,反梁成为保持水面的隔档。屋顶水稻与建筑周边的稻田融为一体,让建筑消隐,同时也给了建筑鲜明的个性。
The building is selected to be built on the edge of the paddy field. In order not to damage the overall landscape of the paddy field, the architect uses the elevation difference of the terrain to bury the building underground and hide it in the paddy field. The architectural form should be as simple as possible, and the plane should be in the form of broken line, which should be buckled into the site. Single slope top, concrete structure and floor-to-ceiling glass windows of the facade facing the cliff mouth keep the indoor and outdoor transparency of the building. The roof adopts counter beams, and the indoor ceiling is kept level. Instead of using conventional roof treatment, rice is planted in soilless culture on the roof and, meanwhile, the counter beams become the partition to keep the water surface. The rice on the roof is integrated with the paddy field around the building, which makes the building invisible and gives the building distinct personality.
▼餐厅轴侧爆炸图,Exploded axonometric view of restaurant
▼从场地东侧山豁口可以看到县城,County town can be seen from mountain opening in the east side of site
▼日出时分的餐厅,Restaurant at sunrise
餐厅旁边,应业主的要求增设了小型的泡池。泡池位于崖口,具有绝好的视野。在清晨,餐厅和泡池朝向东方,是迎接日出第一缕阳光的绝佳位置;在傍晚,透过餐厅室内温暖的灯光,及室外平台上的烛光,一种罗曼蒂克式的气氛油然而生。
Next to the restaurant, a small outdoor spa pool has been added at the request of the owner. The spa pool is located at the mouth of the cliff with an amazing view. In the early morning, the restaurant and the spa pool face the east, which is the best place to welcome the first ray of sunlight at sunrise; in the evening, through the warm lights in the restaurant and the candlelight on the outdoor platform, a romantic atmosphere arises spontaneously.
▼餐厅、崖口泡池和室外木平台,Restaurant, cliff mouth spa pool and outdoor wooden platform
▼餐厅夜景,Restaurant night view
景观:尊重环境,质朴自然
Landscape: Respect the environment, simple and natural
本项目的场地具有一种特殊的气质:三面有山,东面开敞,山林环抱着中间的一片稻田,有一种世外桃源的氛围。这里不是城市,是当代都市人向往的“诗与远方”之地。因此,本项目的景观设计希望尽量少的城市化元素,质朴的乡野气息是核心。
The site of this project has a special temperament: with mountains on three sides, open to the east, surrounded by mountains and forests, and a paddy field in the middle, which has the atmosphere of a paradise. This is not a venue in the city, but a place of “poetry and distance” that contemporary urbanites yearn for. Therefore, the landscape design of this project hopes to minimize the urbanization elements and make the rustic flavor the core.
▼步行小径沿原有田垄布置,朴素自然,Walking path along the original ridge layout, simple and natural
稻田被完整保留,原来位于村落和稻田之间的道路被移到新建筑西侧,建筑与稻田之间得以更直接的联通。新开辟的步行小径串联几个建筑体,它们依循原有的田垄和林间小路而设。路面不追求完全的平整,条石和砧木是主要的路面材料,人行走期间,轻松但需要稍慢的步速和关注脚下。民宿和公共建筑周边的区域多为硬质铺装,这里采用了本地的青石碎拼,或利用场地中老建筑遗留下的基石作为主要材料,既具有在地性,又有淡淡的乡愁。
The paddy field is completely preserved and the original road between the village and the paddy field has been moved to the west side of the new building to connect the building and the paddy field more directly. The newly opened walking path connects several buildings, which follow the original ridges and forest paths. The road surface is not completely flat. The main road materials are stones and rootstocks, on which people need to walk at a slower pace and watch their steps. Most of the areas around B & B and public buildings are paved with hard materials, incl. local bluestone or the cornerstones left by the old buildings in the site mainly, which have both local characteristics and a touch of nostalgia.
▼步道采用砧木和石条铺设,Trail is paved with rootstocks and stone strips
夜晚,照亮小径的光由简单的灯泡提供,它们被安装在低矮的竹棍上,竹棍插在路边稻田里,灯泡上面有个简单的竹编灯罩,用于遮挡灯泡,也让灯光柔和的溢出。这个设计显得简单、随性,但这就是建筑师希望传达的气质。
At night, the light to illuminate the path is provided by simple light bulbs, which are installed on low bamboo sticks inserted in the roadside rice fields. There is a simple bamboo lampshade on the light bulb, which is used to cover the light bulb and let the light flow out gently. The design seems simple and casual, but that’s what the architect wants to convey.
▼灯光以建筑内透光为主,Lighting is mainly transmitted through the building
结语:主客不分,山人之境
Conclusion: A realm with no subject or object, but only man in mountain
巴谷宿集的建筑设计并不追求一种新奇的造型,它更多是讨论建筑、自然和人之间的关系与互动。场地原始的自然条件被尽力保留,建筑以一种“点”的方式加入空间,成为视觉和行为的锚点。最后是人,他们游走在建筑和山水之间,从主客二分到逐渐成为风景的一部分。时间变慢,自然、建筑和人也在不知不觉间成为一体。这也许就是中国古人所追求的“山人”之境吧。
The architectural design of Dianjiang Bagu·Suji does not pursue a novel shape, but is more about the relationship and interaction between architecture, nature and human. The original natural conditions of the site are preserved as much as possible, and the buildings are added to the space in a “pointed” way, becoming the anchor of vision and behavior. Finally, there are people, who wander between architecture and landscape, from the dichotomy of subject and object to gradually becoming a part of the landscape. As time slows down, nature, architecture and man become one unconsciously, which may be the realm of “man in mountain (the recluse)” pursued by ancient Chinese.
▼夜晚鸟瞰,Bird’s-eye view at night © 金伟琦
巴谷宿集建成后,凭借优越的自然环境迅速走红,在业内引起了不小的反响,成为了不少游人的“打卡地”。其利用乡村闲置资产,以新业态、新设计进行激活的模式也成为了当地农村“三变改革政策”的重要案例,为当地乡村发展提供了一定的参考。这也是得益于政府、业主、运营方、设计方多方合作,共同努力所取得的成果。
After its completion, relying on the superior natural environment, Dianjiang Bagu·Suji has become popular rapidly. It has caused a lot of repercussions in the industry and become a “punch-in spot” for tourists. The mode of using idle assets in rural areas and activating them with new formats and design has become an important case of the local rural “three changes reform policy”, which provides a certain reference for the local rural development. This is also the result of the cooperation and joint efforts of the government, the owner, the operator and the designer.
▼总平面图,General plan
▼元白民宿南区首层平面图,1st floor plan of Yanbai B & B south area
▼元白民宿西区首层平面图,1st floor plan of Yanbai B & B west area
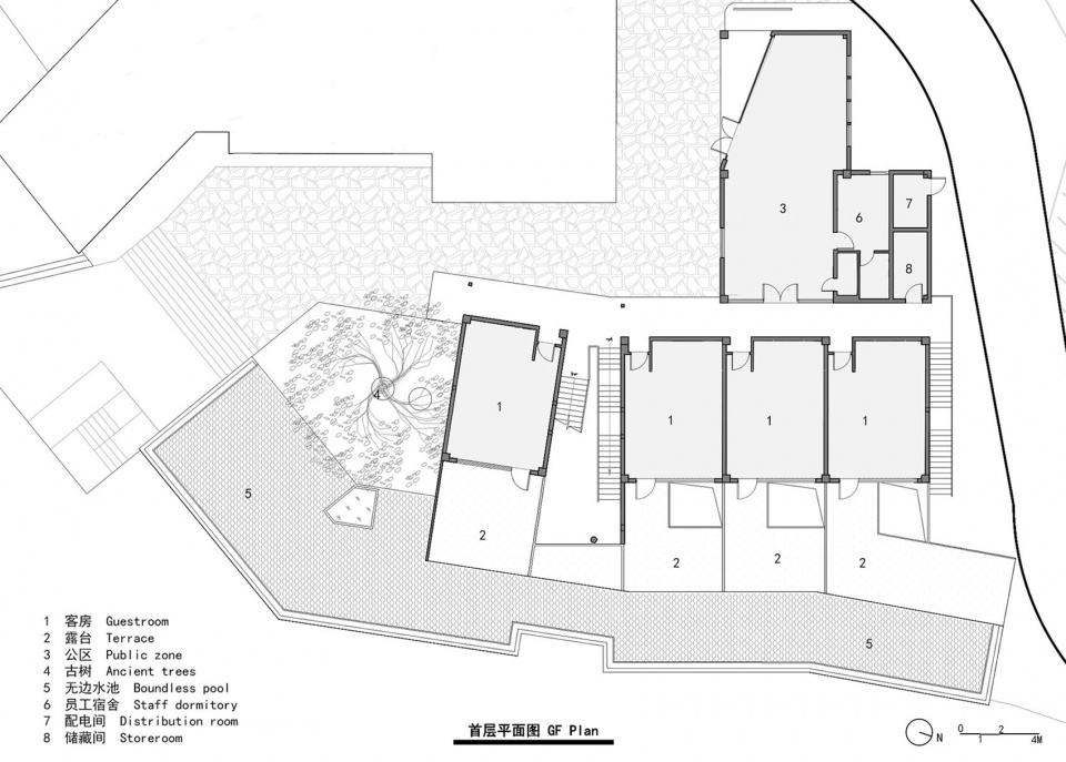
▼飞茑集民宿首层平面图,1st floor plan of StrayBirds B&B
▼飞茑集民宿剖面,Section of StrayBirds B&B




















































